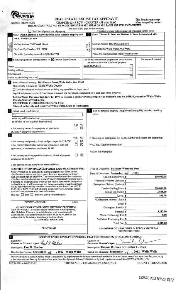
Property
Account |
| Property ID: | 9939 | Abbreviated Legal Description: | SPRING GROVE #1 TAX 4 BLK 6 |
| Parcel Number: | 360728710604 | Agent Code: | |
| Type: | Real | | |
| Tax Area: | 6 - OL-140-F-FB | Land Use Code | 11 |
| Open Space: | N | DFL | N |
| Historic Property: | N | Remodel Property: | N |
| Multi-Family Redevelopment: | N | | |
| Township: | 7 | Section: | 28 |
| Range: | 36 |
Location |
| Address: | 1150 WOODLAWN ST WA 99362 | Mapsco: | |
| Neighborhood: | G Res | Map ID: | |
| Neighborhood CD: | 614011 |
Owner |
| Name: | O DONNELL THOMAS J | Owner ID: | 62000 |
| Mailing Address: | 1150 WOODLAWN ST WALLA WALLA, WA 99362 | % Ownership: | 100.0000000000% |
| | | Exemptions: | |
Taxes and Assessment Details
Values
| (+) Improvement Homesite Value: | + | $0 | |
| (+) Improvement Non-Homesite Value: | + | $639,400 | |
| (+) Land Homesite Value: | + | $0 | |
| (+) Land Non-Homesite Value: | + | $153,530 | |
| (+) Curr Use (HS): | + | $0 | $0 |
| (+) Curr Use (NHS): | + | $0 | $0 |
| | | -------------------------- | |
| (=) Market Value: | = | $792,930 | |
| (–) Productivity Loss: | – | $0 | |
| | | -------------------------- | |
| (=) Subtotal: | = | $792,930 | |
| (+) Senior Appraised Value: | + | $0 | |
| (+) Non-Senior Appraised Value: | + | $792,930 | |
| | | -------------------------- | |
| (=) Total Appraised Value: | = | $792,930 | |
| (–) Senior Exemption Loss: | – | $0 | |
| (–) Exemption Loss: | – | $0 | |
| | | -------------------------- | |
| (=) Taxable Value: | = | $792,930 | |
Taxing Jurisdiction
| Owner: | O DONNELL THOMAS J | | |
| % Ownership: | 100.0000000000% | | |
| Total Value: | $792,930 | | |
| Tax Area: | 6 - OL-140-F-FB |
| CERFD | CURRENT EXPENSE REFUND 010 | 0.0000000000 | $792,930 | $792,930 | $0.00 | | |
| CURREXP | CURRENT EXPENSE 010 | 1.0175366760 | $792,930 | $792,930 | $806.84 | | |
| HUMNSERV | HUMAN SERVICES 119 | 0.0250000000 | $792,930 | $792,930 | $19.82 | | |
| SLDREL | SOLDIERS RELIEF 121 | 0.0155990005 | $792,930 | $792,930 | $12.37 | | |
| EMERGSER | EMS 147 | 0.3792580840 | $792,930 | $792,930 | $300.73 | | |
| EMSRFD | EMS REFUND 147 | 0.0000000000 | $792,930 | $792,930 | $0.00 | | |
| PORTRFD | PORT REFUND 640 | 0.0000000000 | $792,930 | $792,930 | $0.00 | | |
| PORTWWGEN | PORT OF WW 640 | 0.2460186015 | $792,930 | $792,930 | $195.08 | | |
| SD140BOND | SD #140 BOND 764 | 0.8342371393 | $792,930 | $792,930 | $661.49 | | |
| SD140GEN | SD #140 GENERAL 760 | 2.0646500647 | $792,930 | $792,930 | $1,637.12 | | |
| ST2 | STATE SCHOOL PART 2 600 | 0.8131451643 | $792,930 | $792,930 | $644.77 | | |
| STATESCHL | STATE SCHOOL 600 | 1.5158548041 | $792,930 | $792,930 | $1,201.97 | | |
| STREFUND | STATE REFUND LEVY 603 | 0.0000000000 | $792,930 | $792,930 | $0.00 | | |
| CWWBOND | C OF WW BOND 643 | 0.2760494372 | $792,930 | $792,930 | $218.89 | | |
| CWWGEN | CITY OF WW 631 | 1.6100204973 | $792,930 | $792,930 | $1,276.63 | | |
| CWWRFD | CITY OF WALLA WALLA REFUND 631 | 0.0000000000 | $792,930 | $792,930 | $0.00 | | |
| | Total Tax Rate: | 8.7973694689 | | | | | |
| | | | | Taxes w/Current Exemptions: | $6,975.71 | | |
| | | | | Taxes w/o Exemptions: | $6,975.71 | | |
Improvement / Building
| Improvement #1: | RESIDENTIAL | State Code: | 11 | 3764.0 sqft | Value: | $639,400 |
| Exterior Wall: | SIDING | Heating/Cooling: | WARM & COOLED AIR | | Number of Bathrooms: | 4 | Number of Bedrooms: | 4 | | Plumbing: | 14 | Roof Covering: | COMP SHINGLE |
|
| | Type | Description | Class CD | Sub Class CD | Year Built | Area |
| | MA | Main Area | 1 | 40 | 1940 | 3764.0 |
| | SI1 | SITE IMPROVEMENT | 1 | 40 | 1940 | 4.0 |
| | BASE | BASEMENT | 1 | 40 | 1940 | 1672.0 |
| | BPF | BASEMENT -PARTITIONED FINISH | 1 | 40 | 1940 | 1672.0 |
| | S2F | Single 2S Fireplace | 1 | 40 | 1940 | 1.0 |
| | S1F | Single One Story Fireplace | 1 | 40 | 1940 | 1.0 |
| | RPC | OPEN PORCH W/ROOF , CEILED | 1 | 40 | 1940 | 30.0 |
| | CPC | COVERED CARPORT/PATIO | 1 | 40 | 1940 | 198.0 |
| | CPC | COVERED CARPORT/PATIO | 1 | 40 | 1940 | 330.0 |
| | RPC | OPEN PORCH W/ROOF , CEILED | 1 | 40 | 1940 | 336.0 |
| | DTG | Detached Garage | 1 | 40 | 1940 | 462.0 |
Sketch
Property Image
Land
| 1 | RES 1 | Converted: Residential | 1.2900 | 0.00 | 0.00 | 0.00 | 1.00 | $153,530 | $0 |
Roll Value History
| 2025 | N/A | N/A | N/A | N/A | N/A |
| 2024 | $671,370 | $153,530 | $0 | $824,900 | $824,900 |
| 2023 | $639,400 | $153,530 | $0 | $792,930 | $792,930 |
| 2022 | $639,400 | $105,350 | $0 | $744,750 | $744,750 |
| 2021 | $532,830 | $105,350 | $0 | $638,180 | $638,180 |
| 2020 | $409,870 | $105,350 | $0 | $515,220 | $515,220 |
| 2019 | $409,870 | $105,350 | $0 | $515,220 | $515,220 |
| 2018 | $426,230 | $77,300 | $0 | $503,530 | $503,530 |
| 2017 | $426,230 | $77,300 | $0 | $503,530 | $503,530 |
| 2016 | $405,930 | $77,300 | $0 | $483,230 | $483,230 |
| 2015 | $405,930 | $77,300 | $0 | $483,230 | $483,230 |
| 2014 | $386,600 | $77,300 | $0 | $463,900 | $463,900 |
| 2013 | $386,600 | $77,300 | $0 | $463,900 | $463,900 |
| 2012 | $388,800 | $77,300 | $0 | $0 | $0 |
| 2011 | $388,800 | $77,300 | $0 | $0 | $0 |
| 2010 | $366,600 | $77,300 | $0 | $0 | $0 |
| 2009 | $392,500 | $77,300 | $0 | $0 | $0 |
| 2008 | $392,500 | $77,300 | $0 | $0 | $0 |
| 2007 | $224,900 | $45,700 | $0 | $0 | $0 |
| 2006 | $224,900 | $45,700 | $0 | $0 | $0 |
Deed and Sales History
| 1 | 05/03/2024 | SWD | STATUTORY WARRANTY DEED | O DONNELL THOMAS J | MUSKTHEL ROBERT & SIERRA | | | $830,000.00 | 147503 | 2024-02299 |
| 2 | 10/27/2017 | QCD | QUIT CLAIM DEED | O DONNELL THOMAS J & KRISTEN M | O DONNELL THOMAS J | | | $0.00 | 133559 | 2017-08849 |
| 3 | 02/06/2015 | SWD | STATUTORY WARRANTY DEED | SCHNEIDER LOWELL E & VIRGINIA | O DONNELL THOMAS J & KRISTEN M | | | $500,000.00 | 127404 | 2015-01248 |
Payout Agreement
| No payout information available.. |