Property
Account |
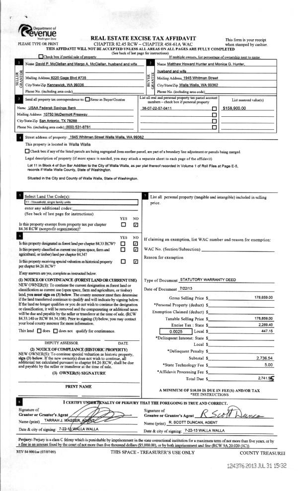
| Property ID: | 9934 | Abbreviated Legal Description: | SPRING GROVE #1 TAX 9 BLK 5 LESS N 2' |
| Parcel Number: | 360728710511 | Agent Code: | |
| Type: | Real | | |
| Tax Area: | 15 - WW City Annex | Land Use Code | 11 |
| Open Space: | N | DFL | N |
| Historic Property: | N | Remodel Property: | N |
| Multi-Family Redevelopment: | N | | |
| Township: | 7 | Section: | 28 |
| Range: | 36 |
Location |
| Address: | 1121 WOODLAWN ST WA 99362 | Mapsco: | |
| Neighborhood: | G Res | Map ID: | |
| Neighborhood CD: | 614011 |
Owner |
| Name: | WEARSTLER BRADLEY A & RACHEL L | Owner ID: | 54707 |
| Mailing Address: | 1121 WOODLAWN ST WALLA WALLA, WA 99362 | % Ownership: | 100.0000000000% |
| | | Exemptions: | |
Taxes and Assessment Details
Values
| (+) Improvement Homesite Value: | + | $0 | |
| (+) Improvement Non-Homesite Value: | + | $400,350 | |
| (+) Land Homesite Value: | + | $0 | |
| (+) Land Non-Homesite Value: | + | $122,470 | |
| (+) Curr Use (HS): | + | $0 | $0 |
| (+) Curr Use (NHS): | + | $0 | $0 |
| | | -------------------------- | |
| (=) Market Value: | = | $522,820 | |
| (–) Productivity Loss: | – | $0 | |
| | | -------------------------- | |
| (=) Subtotal: | = | $522,820 | |
| (+) Senior Appraised Value: | + | $0 | |
| (+) Non-Senior Appraised Value: | + | $522,820 | |
| | | -------------------------- | |
| (=) Total Appraised Value: | = | $522,820 | |
| (–) Senior Exemption Loss: | – | $0 | |
| (–) Exemption Loss: | – | $0 | |
| | | -------------------------- | |
| (=) Taxable Value: | = | $522,820 | |
Taxing Jurisdiction
| Owner: | WEARSTLER BRADLEY A & RACHEL L | | |
| % Ownership: | 100.0000000000% | | |
| Total Value: | $522,820 | | |
| Tax Area: | 15 - WW City Annex |
| CERFD | CURRENT EXPENSE REFUND 010 | 0.0000000000 | $522,820 | $522,820 | $0.00 | | |
| CURREXP | CURRENT EXPENSE 010 | 1.0175366760 | $522,820 | $522,820 | $531.99 | | |
| HUMNSERV | HUMAN SERVICES 119 | 0.0250000000 | $522,820 | $522,820 | $13.07 | | |
| SLDREL | SOLDIERS RELIEF 121 | 0.0155990005 | $522,820 | $522,820 | $8.16 | | |
| EMERGSER | EMS 147 | 0.3792580840 | $522,820 | $522,820 | $198.28 | | |
| EMSRFD | EMS REFUND 147 | 0.0000000000 | $522,820 | $522,820 | $0.00 | | |
| PORTRFD | PORT REFUND 640 | 0.0000000000 | $522,820 | $522,820 | $0.00 | | |
| PORTWWGEN | PORT OF WW 640 | 0.2460186015 | $522,820 | $522,820 | $128.62 | | |
| SD140BOND | SD #140 BOND 764 | 0.8342371393 | $522,820 | $522,820 | $436.16 | | |
| SD140GEN | SD #140 GENERAL 760 | 2.0646500647 | $522,820 | $522,820 | $1,079.44 | | |
| ST2 | STATE SCHOOL PART 2 600 | 0.8131451643 | $522,820 | $522,820 | $425.13 | | |
| STATESCHL | STATE SCHOOL 600 | 1.5158548041 | $522,820 | $522,820 | $792.52 | | |
| STREFUND | STATE REFUND LEVY 603 | 0.0000000000 | $522,820 | $522,820 | $0.00 | | |
| CWWBOND | C OF WW BOND 643 | 0.2760494372 | $522,820 | $522,820 | $144.32 | | |
| CWWGEN | CITY OF WW 631 | 1.6100204973 | $522,820 | $522,820 | $841.75 | | |
| CWWRFD | CITY OF WALLA WALLA REFUND 631 | 0.0000000000 | $522,820 | $522,820 | $0.00 | | |
| | Total Tax Rate: | 8.7973694689 | | | | | |
| | | | | Taxes w/Current Exemptions: | $4,599.44 | | |
| | | | | Taxes w/o Exemptions: | $4,599.44 | | |
Improvement / Building
| Improvement #1: | RESIDENTIAL | State Code: | 11 | 1740.0 sqft | Value: | $400,350 |
| Exterior Wall: | PLYWOOD | Heating/Cooling: | WARM & COOLED AIR | | Number of Bathrooms: | 2 | Number of Bedrooms: | 3 | | Plumbing: | 9 | Roof Covering: | COMP SHINGLE |
|
| | Type | Description | Class CD | Sub Class CD | Year Built | Area |
| | MA | Main Area | 1 | 30 | 1963 | 1740.0 |
| | SI1 | SITE IMPROVEMENT | 1 | 30 | 1963 | 2.0 |
| | BASE | BASEMENT | 1 | 30 | 1963 | 1106.0 |
| | BPF | BASEMENT -PARTITIONED FINISH | 1 | 30 | 1963 | 963.0 |
| | D2F | Double 2 Story Fireplace | 1 | 30 | 1963 | 1.0 |
| | WOD | Wood Deck | 1 | 30 | 1963 | 27.0 |
| | DTG | Detached Garage | 1 | 30 | 1963 | 528.0 |
Sketch
Property Image
Land
| 1 | RES 1 | Converted: Residential | 0.3355 | 14614.00 | 0.00 | 0.00 | 1.00 | $122,470 | $0 |
Roll Value History
| 2025 | N/A | N/A | N/A | N/A | N/A |
| 2024 | $400,350 | $122,470 | $0 | $522,820 | $522,820 |
| 2023 | $400,350 | $122,470 | $0 | $522,820 | $522,820 |
| 2022 | $363,950 | $100,690 | $0 | $464,640 | $464,640 |
| 2021 | $259,970 | $100,690 | $0 | $360,660 | $360,660 |
| 2020 | $185,690 | $100,690 | $0 | $286,380 | $286,380 |
| 2019 | $185,690 | $100,690 | $0 | $286,380 | $286,380 |
| 2018 | $202,550 | $51,000 | $0 | $253,550 | $253,550 |
| 2017 | $202,550 | $51,000 | $0 | $253,550 | $253,550 |
| 2016 | $202,550 | $51,000 | $0 | $253,550 | $253,550 |
| 2015 | $192,900 | $51,000 | $0 | $243,900 | $243,900 |
| 2014 | $128,600 | $51,000 | $0 | $179,600 | $179,600 |
| 2013 | $128,600 | $51,000 | $0 | $179,600 | $179,600 |
| 2012 | $137,300 | $51,000 | $0 | $0 | $0 |
| 2011 | $137,300 | $51,000 | $0 | $0 | $0 |
| 2010 | $137,300 | $51,000 | $0 | $0 | $0 |
| 2009 | $158,200 | $51,000 | $0 | $0 | $0 |
| 2008 | $158,200 | $51,000 | $0 | $0 | $0 |
| 2007 | $129,200 | $28,500 | $0 | $0 | $0 |
| 2006 | $129,200 | $28,500 | $0 | $0 | $0 |
Deed and Sales History
| 1 | 03/25/2014 | SWD | STATUTORY WARRANTY DEED | CRAWFORD PETER B & MILDRED S | WEARSTLER BRADLEY A & RACHEL L | | | $265,000.00 | 125612 | 2014-02001 |
| 2 | 03/27/2013 | WARRANTY D | WARRANTY DEED | WADE, JAMES W & JEAN L TRUST | CRAWFORD, PETER B & MILDRED | | | $180,000.00 | 123676 | 2013-02919 |
| 3 | 01/03/1990 | QCD | QUIT CLAIM DEED | | | | | $0.00 | 0 | 1809-000040 |
Payout Agreement
| No payout information available.. |