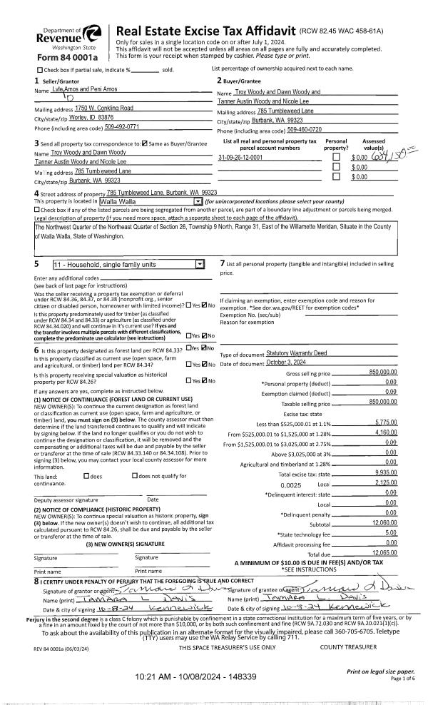
Property
Account |
| Property ID: | 9930 | Abbreviated Legal Description: | SPRING GROVE #1 TAX 3 BLK 5 |
| Parcel Number: | 360728710505 | Agent Code: | |
| Type: | Real | | |
| Tax Area: | 15 - WW City Annex | Land Use Code | 11 |
| Open Space: | N | DFL | N |
| Historic Property: | N | Remodel Property: | N |
| Multi-Family Redevelopment: | N | | |
| Township: | 7 | Section: | 28 |
| Range: | 36 |
Location |
| Address: | 806 E CHESTNUT ST WA 99362 | Mapsco: | |
| Neighborhood: | G Res | Map ID: | |
| Neighborhood CD: | 614011 |
Owner |
| Name: | UHREN MICHAEL P | Owner ID: | 55616 |
| Mailing Address: | KYREE LYNN ANDERSON 806 E CHESTNUT ST WALLA WALLA, WA 99362 | % Ownership: | 100.0000000000% |
| | | Exemptions: | |
Taxes and Assessment Details
Values
| (+) Improvement Homesite Value: | + | $0 | |
| (+) Improvement Non-Homesite Value: | + | $384,090 | |
| (+) Land Homesite Value: | + | $0 | |
| (+) Land Non-Homesite Value: | + | $110,000 | |
| (+) Curr Use (HS): | + | $0 | $0 |
| (+) Curr Use (NHS): | + | $0 | $0 |
| | | -------------------------- | |
| (=) Market Value: | = | $494,090 | |
| (–) Productivity Loss: | – | $0 | |
| | | -------------------------- | |
| (=) Subtotal: | = | $494,090 | |
| (+) Senior Appraised Value: | + | $0 | |
| (+) Non-Senior Appraised Value: | + | $494,090 | |
| | | -------------------------- | |
| (=) Total Appraised Value: | = | $494,090 | |
| (–) Senior Exemption Loss: | – | $0 | |
| (–) Exemption Loss: | – | $0 | |
| | | -------------------------- | |
| (=) Taxable Value: | = | $494,090 | |
Taxing Jurisdiction
| Owner: | UHREN MICHAEL P | | |
| % Ownership: | 100.0000000000% | | |
| Total Value: | $494,090 | | |
| Tax Area: | 15 - WW City Annex |
| CERFD | CURRENT EXPENSE REFUND 010 | 0.0000000000 | $494,090 | $494,090 | $0.00 | | |
| CURREXP | CURRENT EXPENSE 010 | 1.0175366760 | $494,090 | $494,090 | $502.75 | | |
| HUMNSERV | HUMAN SERVICES 119 | 0.0250000000 | $494,090 | $494,090 | $12.35 | | |
| SLDREL | SOLDIERS RELIEF 121 | 0.0155990005 | $494,090 | $494,090 | $7.71 | | |
| EMERGSER | EMS 147 | 0.3792580840 | $494,090 | $494,090 | $187.39 | | |
| EMSRFD | EMS REFUND 147 | 0.0000000000 | $494,090 | $494,090 | $0.00 | | |
| PORTRFD | PORT REFUND 640 | 0.0000000000 | $494,090 | $494,090 | $0.00 | | |
| PORTWWGEN | PORT OF WW 640 | 0.2460186015 | $494,090 | $494,090 | $121.56 | | |
| SD140BOND | SD #140 BOND 764 | 0.8342371393 | $494,090 | $494,090 | $412.19 | | |
| SD140GEN | SD #140 GENERAL 760 | 2.0646500647 | $494,090 | $494,090 | $1,020.12 | | |
| ST2 | STATE SCHOOL PART 2 600 | 0.8131451643 | $494,090 | $494,090 | $401.77 | | |
| STATESCHL | STATE SCHOOL 600 | 1.5158548041 | $494,090 | $494,090 | $748.97 | | |
| STREFUND | STATE REFUND LEVY 603 | 0.0000000000 | $494,090 | $494,090 | $0.00 | | |
| CWWBOND | C OF WW BOND 643 | 0.2760494372 | $494,090 | $494,090 | $136.39 | | |
| CWWGEN | CITY OF WW 631 | 1.6100204973 | $494,090 | $494,090 | $795.50 | | |
| CWWRFD | CITY OF WALLA WALLA REFUND 631 | 0.0000000000 | $494,090 | $494,090 | $0.00 | | |
| | Total Tax Rate: | 8.7973694689 | | | | | |
| | | | | Taxes w/Current Exemptions: | $4,346.70 | | |
| | | | | Taxes w/o Exemptions: | $4,346.70 | | |
Improvement / Building
| Improvement #1: | RESIDENTIAL | State Code: | 11 | 1872.0 sqft | Value: | $384,090 |
| Exterior Wall: | SHINGLE | Heating/Cooling: | FLOOR RADIANT | | Number of Bathrooms: | 2 | Number of Bedrooms: | 2 | | Plumbing: | 9 | Roof Covering: | COMP SHINGLE |
|
| | Type | Description | Class CD | Sub Class CD | Year Built | Area |
| | MA | Main Area | 1 | 35 | 1953 | 1872.0 |
| | SI1 | SITE IMPROVEMENT | 1 | 35 | 1953 | 1.0 |
| | BASE | BASEMENT | 1 | 35 | 1953 | 440.0 |
| | S1F | Single One Story Fireplace | 1 | 35 | 1953 | 2.0 |
| | ATG | Attached Garage | 1 | 35 | 1953 | 528.0 |
| | SHOP | SHOP BUILDING | 1 | 35 | 1953 | 324.0 |
Sketch
Property Image
Land
| 1 | RES 1 | Converted: Residential | 0.2525 | 11000.00 | 0.00 | 0.00 | 1.00 | $110,000 | $0 |
Roll Value History
| 2025 | N/A | N/A | N/A | N/A | N/A |
| 2024 | $384,090 | $110,000 | $0 | $494,090 | $494,090 |
| 2023 | $384,090 | $110,000 | $0 | $494,090 | $494,090 |
| 2022 | $384,090 | $90,750 | $0 | $474,840 | $474,840 |
| 2021 | $320,080 | $90,750 | $0 | $410,830 | $410,830 |
| 2020 | $188,280 | $90,750 | $0 | $279,030 | $279,030 |
| 2019 | $188,280 | $90,750 | $0 | $279,030 | $279,030 |
| 2018 | $210,830 | $48,000 | $0 | $258,830 | $258,830 |
| 2017 | $191,660 | $48,000 | $0 | $239,660 | $239,660 |
| 2016 | $174,240 | $48,000 | $0 | $222,240 | $222,240 |
| 2015 | $174,240 | $48,000 | $0 | $222,240 | $222,240 |
| 2014 | $145,200 | $48,000 | $0 | $193,200 | $193,200 |
| 2013 | $145,200 | $48,000 | $0 | $193,200 | $193,200 |
| 2012 | $141,100 | $48,000 | $0 | $0 | $0 |
| 2011 | $123,900 | $48,000 | $0 | $0 | $0 |
| 2010 | $115,700 | $48,000 | $0 | $0 | $0 |
| 2009 | $133,900 | $48,000 | $0 | $0 | $0 |
| 2008 | $133,900 | $48,000 | $0 | $0 | $0 |
| 2007 | $105,400 | $25,500 | $0 | $0 | $0 |
| 2006 | $105,400 | $25,500 | $0 | $0 | $0 |
Deed and Sales History
| 1 | 10/30/2014 | WARRANTY D | WARRANTY DEED | SWEARINGIN RANDY | UHREN MICHAEL P | | | $230,000.00 | 126880 | 2014-08021 |
| 2 | 10/18/2007 | QCD | QUIT CLAIM DEED | SWEARINGIN, DEBBIE | SWEARINGIN, RANDY | | | | 113910 | 2007-12152 |
| 3 | 07/09/1996 | WARRANTY D | WARRANTY DEED | | | | | $115,000.00 | 86468 | 2429-606814 |
Payout Agreement
| No payout information available.. |