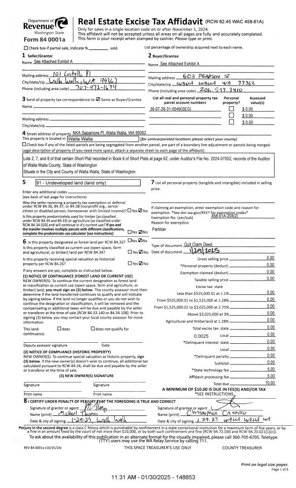
Property
Account |
| Property ID: | 9887 | Abbreviated Legal Description: | EAST SCHAFFERS SUB TAX 3 LOT 4 BLK 3 |
| Parcel Number: | 360728700325 | Agent Code: | |
| Type: | Real | | |
| Tax Area: | 105 - 140-F-4 | Land Use Code | 11 |
| Open Space: | N | DFL | N |
| Historic Property: | N | Remodel Property: | N |
| Multi-Family Redevelopment: | N | | |
| Township: | 7 | Section: | 28 |
| Range: | 36 |
Location |
| Address: | 1320 GRANT ST WA 99362 | Mapsco: | |
| Neighborhood: | A Res | Map ID: | |
| Neighborhood CD: | 613011 |
Owner |
| Name: | TAYLOR JESSICA | Owner ID: | 56549 |
| Mailing Address: | 1320 GRANT ST WALLA WALLA, WA 99362 | % Ownership: | 100.0000000000% |
| | | Exemptions: | |
Taxes and Assessment Details
Values
| (+) Improvement Homesite Value: | + | $0 | |
| (+) Improvement Non-Homesite Value: | + | $295,500 | |
| (+) Land Homesite Value: | + | $0 | |
| (+) Land Non-Homesite Value: | + | $93,600 | |
| (+) Curr Use (HS): | + | $0 | $0 |
| (+) Curr Use (NHS): | + | $0 | $0 |
| | | -------------------------- | |
| (=) Market Value: | = | $389,100 | |
| (–) Productivity Loss: | – | $0 | |
| | | -------------------------- | |
| (=) Subtotal: | = | $389,100 | |
| (+) Senior Appraised Value: | + | $0 | |
| (+) Non-Senior Appraised Value: | + | $389,100 | |
| | | -------------------------- | |
| (=) Total Appraised Value: | = | $389,100 | |
| (–) Senior Exemption Loss: | – | $0 | |
| (–) Exemption Loss: | – | $0 | |
| | | -------------------------- | |
| (=) Taxable Value: | = | $389,100 | |
Taxing Jurisdiction
| Owner: | TAYLOR JESSICA | | |
| % Ownership: | 100.0000000000% | | |
| Total Value: | $389,100 | | |
| Tax Area: | 105 - 140-F-4 |
| CERFD | CURRENT EXPENSE REFUND 010 | 0.0000000000 | $389,100 | $389,100 | $0.00 | | |
| CURREXP | CURRENT EXPENSE 010 | 1.0175366760 | $389,100 | $389,100 | $395.92 | | |
| HUMNSERV | HUMAN SERVICES 119 | 0.0250000000 | $389,100 | $389,100 | $9.73 | | |
| SLDREL | SOLDIERS RELIEF 121 | 0.0155990005 | $389,100 | $389,100 | $6.07 | | |
| EMERGSER | EMS 147 | 0.3792580840 | $389,100 | $389,100 | $147.57 | | |
| EMSRFD | EMS REFUND 147 | 0.0000000000 | $389,100 | $389,100 | $0.00 | | |
| FD4EXP | FD #4 EXPENSE 686 | 0.8836993059 | $389,100 | $389,100 | $343.85 | | |
| RLBRFD | RURAL LIBRARY REFUND 623 | 0.0000000000 | $389,100 | $389,100 | $0.00 | | |
| RURALLIB | RURAL LIBRARY 623 | 0.3710609029 | $389,100 | $389,100 | $144.38 | | |
| PORTRFD | PORT REFUND 640 | 0.0000000000 | $389,100 | $389,100 | $0.00 | | |
| PORTWWGEN | PORT OF WW 640 | 0.2460186015 | $389,100 | $389,100 | $95.73 | | |
| SD140BOND | SD #140 BOND 764 | 0.8342371393 | $389,100 | $389,100 | $324.60 | | |
| SD140GEN | SD #140 GENERAL 760 | 2.0646500647 | $389,100 | $389,100 | $803.36 | | |
| ST2 | STATE SCHOOL PART 2 600 | 0.8131451643 | $389,100 | $389,100 | $316.39 | | |
| STATESCHL | STATE SCHOOL 600 | 1.5158548041 | $389,100 | $389,100 | $589.82 | | |
| STREFUND | STATE REFUND LEVY 603 | 0.0000000000 | $389,100 | $389,100 | $0.00 | | |
| COROAD | COUNTY ROAD 115 | 1.6549953990 | $389,100 | $389,100 | $643.96 | | |
| CRPRD | COUNTY ROAD REFUND 115 | 0.0000000000 | $389,100 | $389,100 | $0.00 | | |
| | Total Tax Rate: | 9.8210551422 | | | | | |
| | | | | Taxes w/Current Exemptions: | $3,821.38 | | |
| | | | | Taxes w/o Exemptions: | $3,821.38 | | |
Improvement / Building
| Improvement #1: | RESIDENTIAL | State Code: | 11 | 1539.0 sqft | Value: | $295,500 |
| Exterior Wall: | STUCCO | Heating/Cooling: | WARM & COOLED AIR | | Number of Bathrooms: | 2 | Number of Bedrooms: | 3 | | Plumbing: | 9 | Roof Covering: | COMP SHINGLE |
|
| | Type | Description | Class CD | Sub Class CD | Year Built | Area |
| | MA | Main Area | 1 | 30 | 1953 | 1539.0 |
| | SI1 | SITE IMPROVEMENT | 1 | 30 | 1953 | 2.0 |
| | BASE | BASEMENT | 1 | 30 | 1953 | 288.0 |
| | S1F | Single One Story Fireplace | 1 | 30 | 1953 | 1.0 |
| | RPC | OPEN PORCH W/ROOF , CEILED | 1 | 30 | 1953 | 55.0 |
| | CPC | COVERED CARPORT/PATIO | 1 | 30 | 1953 | 280.0 |
| | ATG | Attached Garage | 1 | 30 | 1953 | 528.0 |
Sketch
Property Image
Land
| 1 | RES 1 | Converted: Residential | 0.3444 | 15000.00 | 0.00 | 0.00 | 1.00 | $93,600 | $0 |
Roll Value History
| 2025 | N/A | N/A | N/A | N/A | N/A |
| 2024 | $295,500 | $93,600 | $0 | $389,100 | $389,100 |
| 2023 | $295,500 | $93,600 | $0 | $389,100 | $389,100 |
| 2022 | $281,430 | $75,150 | $0 | $356,580 | $356,580 |
| 2021 | $208,470 | $75,150 | $0 | $283,620 | $283,620 |
| 2020 | $160,360 | $75,150 | $0 | $235,510 | $235,510 |
| 2019 | $160,360 | $75,150 | $0 | $235,510 | $235,510 |
| 2018 | $179,720 | $51,400 | $0 | $231,120 | $231,120 |
| 2017 | $128,370 | $51,400 | $0 | $179,770 | $179,770 |
| 2016 | $116,700 | $51,400 | $0 | $168,100 | $168,100 |
| 2015 | $116,700 | $51,400 | $0 | $168,100 | $168,100 |
| 2014 | $116,700 | $51,400 | $0 | $168,100 | $168,100 |
| 2013 | $116,700 | $51,400 | $0 | $168,100 | $168,100 |
| 2012 | $104,000 | $51,400 | $0 | $0 | $0 |
| 2011 | $104,000 | $51,400 | $0 | $0 | $0 |
| 2010 | $96,600 | $51,400 | $0 | $0 | $0 |
| 2009 | $113,000 | $51,400 | $0 | $0 | $0 |
| 2008 | $113,000 | $51,400 | $0 | $0 | $0 |
| 2007 | $88,400 | $28,900 | $0 | $0 | $0 |
| 2006 | $88,400 | $28,900 | $0 | $0 | $0 |
Deed and Sales History
| 1 | 04/22/2015 | QCD | QUIT CLAIM DEED | PAYNE KEITH | TAYLOR JESSICA | | | $0.00 | 127947 | 2015-03988 |
| 2 | 12/30/2011 | WARRANTY D | WARRANTY DEED | HAWKINS, WILLIAM & REBECCA | PAYNE, KEITH | | | $173,700.00 | 121209 | 2011-10342 |
| 3 | 09/13/2005 | WARRANTY D | WARRANTY DEED | WACHTEL, MARK L | HAWKINS, WILLIAM & REBECCA | | | $162,400.00 | 108474 | 2005--11349 |
| 4 | 10/24/2003 | WARRANTY D | WARRANTY DEED | ASHBECK, JEREMY | WACHTEL, MARK L | | | $141,000.00 | 103358 | 2003-16485 |
| 5 | 07/11/2002 | WARRANTY D | WARRANTY DEED | | | | | $118,000.00 | 99924 | 2002-0007877 |
Payout Agreement
| No payout information available.. |