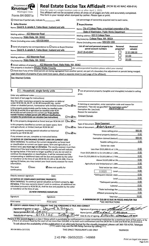
Property
Account |
| Property ID: | 9858 | Abbreviated Legal Description: | SCARPELLIS LOT 9 BLK 2 |
| Parcel Number: | 360728690209 | Agent Code: | |
| Type: | Real | | |
| Tax Area: | 1 - OL-140-F | Land Use Code | 11 |
| Open Space: | N | DFL | N |
| Historic Property: | N | Remodel Property: | N |
| Multi-Family Redevelopment: | N | | |
| Township: | 7 | Section: | 28 |
| Range: | 36 |
Location |
| Address: | 1818 CENTER ST WA 99362 | Mapsco: | |
| Neighborhood: | G Res | Map ID: | |
| Neighborhood CD: | 614011 |
Owner |
| Name: | WELLS NANCY K | Owner ID: | 13973 |
| Mailing Address: | 139 LOWER WHETSTONE RD WAITSBURG, WA 99361 | % Ownership: | 100.0000000000% |
| | | Exemptions: | |
Taxes and Assessment Details
Values
| (+) Improvement Homesite Value: | + | $0 | |
| (+) Improvement Non-Homesite Value: | + | $315,030 | |
| (+) Land Homesite Value: | + | $0 | |
| (+) Land Non-Homesite Value: | + | $100,800 | |
| (+) Curr Use (HS): | + | $0 | $0 |
| (+) Curr Use (NHS): | + | $0 | $0 |
| | | -------------------------- | |
| (=) Market Value: | = | $415,830 | |
| (–) Productivity Loss: | – | $0 | |
| | | -------------------------- | |
| (=) Subtotal: | = | $415,830 | |
| (+) Senior Appraised Value: | + | $0 | |
| (+) Non-Senior Appraised Value: | + | $415,830 | |
| | | -------------------------- | |
| (=) Total Appraised Value: | = | $415,830 | |
| (–) Senior Exemption Loss: | – | $0 | |
| (–) Exemption Loss: | – | $0 | |
| | | -------------------------- | |
| (=) Taxable Value: | = | $415,830 | |
Taxing Jurisdiction
| Owner: | WELLS NANCY K | | |
| % Ownership: | 100.0000000000% | | |
| Total Value: | $415,830 | | |
| Tax Area: | 1 - OL-140-F |
| CERFD | CURRENT EXPENSE REFUND 010 | 0.0000000000 | $415,830 | $415,830 | $0.00 | | |
| CURREXP | CURRENT EXPENSE 010 | 1.0175366760 | $415,830 | $415,830 | $423.12 | | |
| HUMNSERV | HUMAN SERVICES 119 | 0.0250000000 | $415,830 | $415,830 | $10.40 | | |
| SLDREL | SOLDIERS RELIEF 121 | 0.0155990005 | $415,830 | $415,830 | $6.49 | | |
| EMERGSER | EMS 147 | 0.3792580840 | $415,830 | $415,830 | $157.71 | | |
| EMSRFD | EMS REFUND 147 | 0.0000000000 | $415,830 | $415,830 | $0.00 | | |
| PORTRFD | PORT REFUND 640 | 0.0000000000 | $415,830 | $415,830 | $0.00 | | |
| PORTWWGEN | PORT OF WW 640 | 0.2460186015 | $415,830 | $415,830 | $102.30 | | |
| SD140BOND | SD #140 BOND 764 | 0.8342371393 | $415,830 | $415,830 | $346.90 | | |
| SD140GEN | SD #140 GENERAL 760 | 2.0646500647 | $415,830 | $415,830 | $858.54 | | |
| ST2 | STATE SCHOOL PART 2 600 | 0.8131451643 | $415,830 | $415,830 | $338.13 | | |
| STATESCHL | STATE SCHOOL 600 | 1.5158548041 | $415,830 | $415,830 | $630.34 | | |
| STREFUND | STATE REFUND LEVY 603 | 0.0000000000 | $415,830 | $415,830 | $0.00 | | |
| CWWBOND | C OF WW BOND 643 | 0.2760494372 | $415,830 | $415,830 | $114.79 | | |
| CWWGEN | CITY OF WW 631 | 1.6100204973 | $415,830 | $415,830 | $669.49 | | |
| CWWRFD | CITY OF WALLA WALLA REFUND 631 | 0.0000000000 | $415,830 | $415,830 | $0.00 | | |
| | Total Tax Rate: | 8.7973694689 | | | | | |
| | | | | Taxes w/Current Exemptions: | $3,658.21 | | |
| | | | | Taxes w/o Exemptions: | $3,658.21 | | |
Improvement / Building
| Improvement #1: | RESIDENTIAL | State Code: | 11 | 1408.0 sqft | Value: | $315,030 |
| Exterior Wall: | SIDING | Heating/Cooling: | WARM & COOLED AIR | | Number of Bathrooms: | 2 | Number of Bedrooms: | 3 | | Plumbing: | 9 | Roof Covering: | COMP SHINGLE |
|
| | Type | Description | Class CD | Sub Class CD | Year Built | Area |
| | MA | Main Area | 1 | 40 | 1955 | 1408.0 |
| | SI1 | SITE IMPROVEMENT | 1 | 40 | 1955 | 3.0 |
| | DTG | Detached Garage | 1 | 40 | 1955 | 480.0 |
| | S1F | Single One Story Fireplace | 1 | 40 | 1955 | 1.0 |
| | RPC | OPEN PORCH W/ROOF , CEILED | 1 | 40 | 1955 | 120.0 |
Sketch
Property Image
Land
| 1 | RES 1 | Converted: Residential | 0.2314 | 10080.00 | 0.00 | 0.00 | 1.00 | $100,800 | $0 |
Roll Value History
| 2025 | N/A | N/A | N/A | N/A | N/A |
| 2024 | $315,030 | $100,800 | $0 | $415,830 | $415,830 |
| 2023 | $315,030 | $100,800 | $0 | $415,830 | $415,830 |
| 2022 | $315,030 | $83,160 | $0 | $398,190 | $398,190 |
| 2021 | $242,330 | $83,160 | $0 | $325,490 | $325,490 |
| 2020 | $186,410 | $83,160 | $0 | $269,570 | $269,570 |
| 2019 | $186,410 | $83,160 | $0 | $269,570 | $269,570 |
| 2018 | $156,740 | $47,200 | $0 | $203,940 | $203,940 |
| 2017 | $149,280 | $47,200 | $0 | $196,480 | $196,480 |
| 2016 | $142,170 | $47,200 | $0 | $189,370 | $189,370 |
| 2015 | $135,400 | $47,200 | $0 | $182,600 | $182,600 |
| 2014 | $135,400 | $47,200 | $0 | $182,600 | $182,600 |
| 2013 | $135,400 | $47,200 | $0 | $182,600 | $182,600 |
| 2012 | $135,400 | $47,200 | $0 | $0 | $0 |
| 2011 | $135,400 | $47,200 | $0 | $0 | $0 |
| 2010 | $118,800 | $47,200 | $0 | $0 | $0 |
| 2009 | $137,200 | $47,200 | $0 | $0 | $0 |
| 2008 | $137,200 | $47,200 | $0 | $0 | $0 |
| 2007 | $97,000 | $24,700 | $0 | $0 | $0 |
| 2006 | $97,000 | $24,700 | $0 | $0 | $0 |
Deed and Sales History
| 1 | 07/25/2019 | DPR | DEED OF PERSONAL REPRESENTATIVE | SMART SARA R ESTATE OF | WELLS NANCY K | | | $285,000.00 | 137350 | 2019-05428 |
| 2 | 11/26/2003 | WARRANTY D | WARRANTY DEED | BUNDY, MARY ANN | SMART, SARA R | | | $149,900.00 | 103607 | 2003-18199 |
| 3 | 09/15/2003 | QCD | QUIT CLAIM DEED | BUNDY, JAMES E | BUNDY, MARY ANN | | | | 103013 | 2003-14051 |
| 4 | 10/28/1999 | WARRANTY D | WARRANTY DEED | | | | | $122,500.00 | 93909 | 2919-912391 |
Payout Agreement
| No payout information available.. |