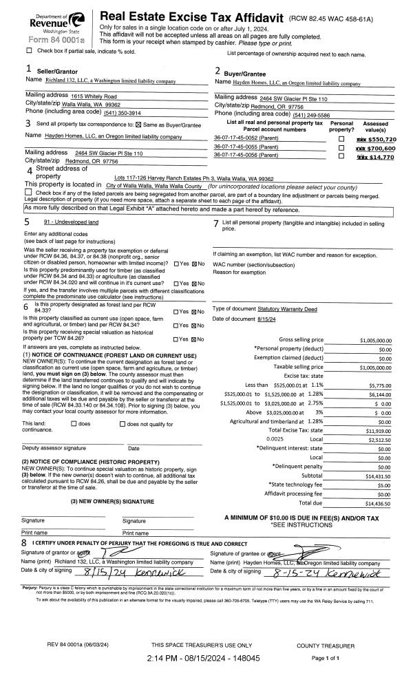
Property
Account |
| Property ID: | 9702 | Abbreviated Legal Description: | BRYANTS LOT 22 BLK 5 |
| Parcel Number: | 360728530522 | Agent Code: | |
| Type: | Real | | |
| Tax Area: | 1 - OL-140-F | Land Use Code | 12 |
| Open Space: | N | DFL | N |
| Historic Property: | N | Remodel Property: | N |
| Multi-Family Redevelopment: | N | | |
| Township: | 7 | Section: | 28 |
| Range: | 36 |
Location |
| Address: | 511 LOCUST ST WA 99362 | Mapsco: | |
| Neighborhood: | A Res Duplex | Map ID: | |
| Neighborhood CD: | 613031 |
Owner |
| Name: | BLOOM WILLIAM A & CHRISTINE M | Owner ID: | 71375 |
| Mailing Address: | ALLAN C THONNEY PO BOX 82 DIXIE, WA 99329 | % Ownership: | 100.0000000000% |
| | | Exemptions: | |
Taxes and Assessment Details
Values
| (+) Improvement Homesite Value: | + | $0 | |
| (+) Improvement Non-Homesite Value: | + | $160,260 | |
| (+) Land Homesite Value: | + | $0 | |
| (+) Land Non-Homesite Value: | + | $70,000 | |
| (+) Curr Use (HS): | + | $0 | $0 |
| (+) Curr Use (NHS): | + | $0 | $0 |
| | | -------------------------- | |
| (=) Market Value: | = | $230,260 | |
| (–) Productivity Loss: | – | $0 | |
| | | -------------------------- | |
| (=) Subtotal: | = | $230,260 | |
| (+) Senior Appraised Value: | + | $0 | |
| (+) Non-Senior Appraised Value: | + | $230,260 | |
| | | -------------------------- | |
| (=) Total Appraised Value: | = | $230,260 | |
| (–) Senior Exemption Loss: | – | $0 | |
| (–) Exemption Loss: | – | $0 | |
| | | -------------------------- | |
| (=) Taxable Value: | = | $230,260 | |
Taxing Jurisdiction
| Owner: | BLOOM WILLIAM A & CHRISTINE M | | |
| % Ownership: | 100.0000000000% | | |
| Total Value: | $230,260 | | |
| Tax Area: | 1 - OL-140-F |
| CERFD | CURRENT EXPENSE REFUND 010 | 0.0000000000 | $230,260 | $230,260 | $0.00 | | |
| CURREXP | CURRENT EXPENSE 010 | 1.0175366760 | $230,260 | $230,260 | $234.30 | | |
| HUMNSERV | HUMAN SERVICES 119 | 0.0250000000 | $230,260 | $230,260 | $5.76 | | |
| SLDREL | SOLDIERS RELIEF 121 | 0.0155990005 | $230,260 | $230,260 | $3.59 | | |
| EMERGSER | EMS 147 | 0.3792580840 | $230,260 | $230,260 | $87.33 | | |
| EMSRFD | EMS REFUND 147 | 0.0000000000 | $230,260 | $230,260 | $0.00 | | |
| PORTRFD | PORT REFUND 640 | 0.0000000000 | $230,260 | $230,260 | $0.00 | | |
| PORTWWGEN | PORT OF WW 640 | 0.2460186015 | $230,260 | $230,260 | $56.65 | | |
| SD140BOND | SD #140 BOND 764 | 0.8342371393 | $230,260 | $230,260 | $192.09 | | |
| SD140GEN | SD #140 GENERAL 760 | 2.0646500647 | $230,260 | $230,260 | $475.41 | | |
| ST2 | STATE SCHOOL PART 2 600 | 0.8131451643 | $230,260 | $230,260 | $187.23 | | |
| STATESCHL | STATE SCHOOL 600 | 1.5158548041 | $230,260 | $230,260 | $349.04 | | |
| STREFUND | STATE REFUND LEVY 603 | 0.0000000000 | $230,260 | $230,260 | $0.00 | | |
| CWWBOND | C OF WW BOND 643 | 0.2760494372 | $230,260 | $230,260 | $63.56 | | |
| CWWGEN | CITY OF WW 631 | 1.6100204973 | $230,260 | $230,260 | $370.72 | | |
| CWWRFD | CITY OF WALLA WALLA REFUND 631 | 0.0000000000 | $230,260 | $230,260 | $0.00 | | |
| | Total Tax Rate: | 8.7973694689 | | | | | |
| | | | | Taxes w/Current Exemptions: | $2,025.68 | | |
| | | | | Taxes w/o Exemptions: | $2,025.68 | | |
Improvement / Building
| Improvement #1: | RESIDENTIAL | State Code: | 12 | 1392.0 sqft | Value: | $160,260 |
| Exterior Wall: | SHINGLE | Heating/Cooling: | BASEBOARD ELECTRIC | | Number of Bathrooms: | 2 | Number of Bedrooms: | 4 | | Plumbing: | 12 | Roof Covering: | COMP SHINGLE |
|
| | Type | Description | Class CD | Sub Class CD | Year Built | Area |
| | MA | Main Area | 1 | 25 | 1890 | 1392.0 |
| | SI1 | SITE IMPROVEMENT | 1 | 25 | 1890 | 1.0 |
| | BASE | BASEMENT | 1 | 25 | 1890 | 529.0 |
| | OUT | OUTSIDE BASEMENT ENTRY | 1 | 25 | 1890 | 1.0 |
| | PRC | PORCH W STEPS, ROOF,CEILED | 1 | 25 | 1890 | 32.0 |
Sketch
Property Image
Land
| 1 | RES 1 | Converted: Residential | 0.1377 | 6000.00 | 0.00 | 0.00 | 1.00 | $70,000 | $0 |
Roll Value History
| 2025 | N/A | N/A | N/A | N/A | N/A |
| 2024 | $160,260 | $70,000 | $0 | $230,260 | $230,260 |
| 2023 | $160,260 | $70,000 | $0 | $230,260 | $230,260 |
| 2022 | $160,260 | $55,000 | $0 | $215,260 | $215,260 |
| 2021 | $80,130 | $55,000 | $0 | $135,130 | $135,130 |
| 2020 | $80,130 | $55,000 | $0 | $135,130 | $135,130 |
| 2019 | $80,130 | $55,000 | $0 | $135,130 | $135,130 |
| 2018 | $44,850 | $36,000 | $0 | $80,850 | $80,850 |
| 2017 | $40,770 | $36,000 | $0 | $76,770 | $76,770 |
| 2016 | $38,830 | $36,000 | $0 | $74,830 | $74,830 |
| 2015 | $38,830 | $36,000 | $0 | $74,830 | $74,830 |
| 2014 | $37,700 | $36,000 | $0 | $73,700 | $73,700 |
| 2013 | $37,700 | $36,000 | $0 | $73,700 | $73,700 |
| 2012 | $37,700 | $36,000 | $0 | $0 | $0 |
| 2011 | $37,700 | $36,000 | $0 | $0 | $0 |
| 2010 | $37,700 | $36,000 | $0 | $0 | $0 |
| 2009 | $45,900 | $36,000 | $0 | $0 | $0 |
| 2008 | $45,900 | $36,000 | $0 | $0 | $0 |
| 2007 | $55,700 | $18,000 | $0 | $0 | $0 |
| 2006 | $55,700 | $18,000 | $0 | $0 | $0 |
Deed and Sales History
| 1 | 03/31/2022 | SWD | STATUTORY WARRANTY DEED | THONNEY ALLAN C | BLOOM WILLIAM A & CHRISTINE M | | | $100,000.00 | 143669 | 2022-02674 |
| 2 | 12/03/2019 | TODD | TRANSFER ON DEATH DEED | THONNEY KARA L | THONNEY ALLAN C | | | | 0 | 2019-10024 |
| 3 | 08/16/2013 | WARRANTY D | WARRANTY DEED | WHITNEY, J GERALDINE ANGERMAN | THONNEY, ALLAN C | | | $75,000.00 | 124490 | 2013-08422 |
| 4 | 07/24/1978 | WARRANTY D | WARRANTY DEED | | | | | $12,000.00 | 70205 | 2205-41406 |
Payout Agreement
| No payout information available.. |