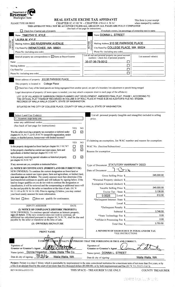
Property
Account |
| Property ID: | 9694 | Abbreviated Legal Description: | BRYANTS LOT 7 BLK 5 |
| Parcel Number: | 360728530507 | Agent Code: | |
| Type: | Real | | |
| Tax Area: | 1 - OL-140-F | Land Use Code | 11 |
| Open Space: | N | DFL | N |
| Historic Property: | N | Remodel Property: | N |
| Multi-Family Redevelopment: | N | | |
| Township: | 7 | Section: | 28 |
| Range: | 36 |
Location |
| Address: | 534 JUNIPER ST WA 99362 | Mapsco: | |
| Neighborhood: | A Res | Map ID: | |
| Neighborhood CD: | 613011 |
Owner |
| Name: | SAMPSON RANDALL W TRUST | Owner ID: | 57200 |
| Mailing Address: | 389 S 2ND AVE WALLA WALLA, WA 99362-3034 | % Ownership: | 100.0000000000% |
| | | Exemptions: | |
Taxes and Assessment Details
Values
| (+) Improvement Homesite Value: | + | $0 | |
| (+) Improvement Non-Homesite Value: | + | $232,590 | |
| (+) Land Homesite Value: | + | $0 | |
| (+) Land Non-Homesite Value: | + | $70,000 | |
| (+) Curr Use (HS): | + | $0 | $0 |
| (+) Curr Use (NHS): | + | $0 | $0 |
| | | -------------------------- | |
| (=) Market Value: | = | $302,590 | |
| (–) Productivity Loss: | – | $0 | |
| | | -------------------------- | |
| (=) Subtotal: | = | $302,590 | |
| (+) Senior Appraised Value: | + | $0 | |
| (+) Non-Senior Appraised Value: | + | $302,590 | |
| | | -------------------------- | |
| (=) Total Appraised Value: | = | $302,590 | |
| (–) Senior Exemption Loss: | – | $0 | |
| (–) Exemption Loss: | – | $0 | |
| | | -------------------------- | |
| (=) Taxable Value: | = | $302,590 | |
Taxing Jurisdiction
| Owner: | SAMPSON RANDALL W TRUST | | |
| % Ownership: | 100.0000000000% | | |
| Total Value: | $302,590 | | |
| Tax Area: | 1 - OL-140-F |
| CERFD | CURRENT EXPENSE REFUND 010 | 0.0000000000 | $302,590 | $302,590 | $0.00 | | |
| CURREXP | CURRENT EXPENSE 010 | 1.0175366760 | $302,590 | $302,590 | $307.90 | | |
| HUMNSERV | HUMAN SERVICES 119 | 0.0250000000 | $302,590 | $302,590 | $7.56 | | |
| SLDREL | SOLDIERS RELIEF 121 | 0.0155990005 | $302,590 | $302,590 | $4.72 | | |
| EMERGSER | EMS 147 | 0.3792580840 | $302,590 | $302,590 | $114.76 | | |
| EMSRFD | EMS REFUND 147 | 0.0000000000 | $302,590 | $302,590 | $0.00 | | |
| PORTRFD | PORT REFUND 640 | 0.0000000000 | $302,590 | $302,590 | $0.00 | | |
| PORTWWGEN | PORT OF WW 640 | 0.2460186015 | $302,590 | $302,590 | $74.44 | | |
| SD140BOND | SD #140 BOND 764 | 0.8342371393 | $302,590 | $302,590 | $252.43 | | |
| SD140GEN | SD #140 GENERAL 760 | 2.0646500647 | $302,590 | $302,590 | $624.74 | | |
| ST2 | STATE SCHOOL PART 2 600 | 0.8131451643 | $302,590 | $302,590 | $246.05 | | |
| STATESCHL | STATE SCHOOL 600 | 1.5158548041 | $302,590 | $302,590 | $458.68 | | |
| STREFUND | STATE REFUND LEVY 603 | 0.0000000000 | $302,590 | $302,590 | $0.00 | | |
| CWWBOND | C OF WW BOND 643 | 0.2760494372 | $302,590 | $302,590 | $83.53 | | |
| CWWGEN | CITY OF WW 631 | 1.6100204973 | $302,590 | $302,590 | $487.18 | | |
| CWWRFD | CITY OF WALLA WALLA REFUND 631 | 0.0000000000 | $302,590 | $302,590 | $0.00 | | |
| | Total Tax Rate: | 8.7973694689 | | | | | |
| | | | | Taxes w/Current Exemptions: | $2,661.99 | | |
| | | | | Taxes w/o Exemptions: | $2,661.99 | | |
Improvement / Building
| Improvement #1: | RESIDENTIAL | State Code: | 11 | 878.0 sqft | Value: | $232,590 |
| Exterior Wall: | SIDING | Heating/Cooling: | WARM & COOLED AIR | | Number of Bathrooms: | 1.5 | Number of Bedrooms: | 3 | | Plumbing: | 8 | Roof Covering: | COMP SHINGLE |
|
| | Type | Description | Class CD | Sub Class CD | Year Built | Area |
| | MA | Main Area | 1 | 30 | 1930 | 878.0 |
| | SI1 | SITE IMPROVEMENT | 1 | 30 | 1930 | 1.0 |
| | BASE | BASEMENT | 1 | 30 | 1930 | 480.0 |
| | BPF | BASEMENT -PARTITIONED FINISH | 1 | 30 | 1930 | 280.0 |
| | RPS | PORCH W/STEPS,ROOF | 1 | 30 | 1930 | 35.0 |
| | DTG | Detached Garage | 1 | 30 | 1930 | 352.0 |
| | GIF | GARAGE INTERIOR FINISH | 1 | 30 | 1930 | 352.0 |
| | FIXT | AVERAGE FIXTURE | 1 | 30 | 1930 | 5.0 |
Sketch
Property Image
Land
| 1 | RES 1 | Converted: Residential | 0.1377 | 6000.00 | 0.00 | 0.00 | 1.00 | $70,000 | $0 |
Roll Value History
| 2025 | N/A | N/A | N/A | N/A | N/A |
| 2024 | $232,590 | $70,000 | $0 | $302,590 | $302,590 |
| 2023 | $232,590 | $70,000 | $0 | $302,590 | $302,590 |
| 2022 | $211,440 | $55,000 | $0 | $266,440 | $266,440 |
| 2021 | $169,160 | $55,000 | $0 | $224,160 | $224,160 |
| 2020 | $125,300 | $55,000 | $0 | $180,300 | $180,300 |
| 2019 | $125,300 | $55,000 | $0 | $180,300 | $180,300 |
| 2018 | $140,670 | $36,000 | $0 | $176,670 | $176,670 |
| 2017 | $122,320 | $36,000 | $0 | $158,320 | $158,320 |
| 2016 | $106,370 | $36,000 | $0 | $142,370 | $142,370 |
| 2015 | $106,370 | $36,000 | $0 | $142,370 | $142,370 |
| 2014 | $101,300 | $36,000 | $0 | $137,300 | $137,300 |
| 2013 | $101,300 | $36,000 | $0 | $137,300 | $137,300 |
| 2012 | $101,300 | $36,000 | $0 | $0 | $0 |
| 2011 | $101,300 | $36,000 | $0 | $0 | $0 |
| 2010 | $83,400 | $36,000 | $0 | $0 | $0 |
| 2009 | $96,700 | $36,000 | $0 | $0 | $0 |
| 2008 | $96,700 | $36,000 | $0 | $0 | $0 |
| 2007 | $64,300 | $18,000 | $0 | $0 | $0 |
| 2006 | $64,300 | $18,000 | $0 | $0 | $0 |
Deed and Sales History
| 1 | 08/19/2015 | QCD | QUIT CLAIM DEED | SAMPSON RANDALL W | SAMPSON RANDALL W TRUST | | | $0.00 | 128655 | 2015-07285 |
| 2 | 05/24/2012 | QCD | QUIT CLAIM DEED | SAMPSON, MARTHA ALICE | SAMPSON, RANDALL W | | | | 121868 | 2012-04283 |
| 3 | 11/25/2003 | WARRANTY D | WARRANTY DEED | GURNETT, GREGORY E & MARLA G | SAMPSON, RANDALL W | | | $85,000.00 | 103601 | 2003-18140 |
| 4 | 11/25/2003 | WARRANTY D | WARRANTY DEED | GURNETT, GREGORY E & MARLA G | SAMPSON, RANDALL W | | | | 103690 | 2003-18746 |
| 5 | 08/25/2000 | WARRANTY D | WARRANTY DEED | | | | | $62,000.00 | 95698 | 3020-008135 |
Payout Agreement
| No payout information available.. |