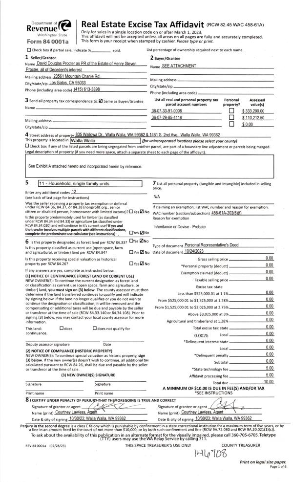
Property
Account |
| Property ID: | 9652 | Abbreviated Legal Description: | BRYANTS LOT 14 BLK 1 |
| Parcel Number: | 360728530114 | Agent Code: | |
| Type: | Real | | |
| Tax Area: | 1 - OL-140-F | Land Use Code | 11 |
| Open Space: | N | DFL | N |
| Historic Property: | N | Remodel Property: | N |
| Multi-Family Redevelopment: | N | | |
| Township: | 7 | Section: | 28 |
| Range: | 36 |
Location |
| Address: | 555 BALM ST WA 99362 | Mapsco: | |
| Neighborhood: | A Res | Map ID: | |
| Neighborhood CD: | 613011 |
Owner |
| Name: | MAGNAGHI FRANK R & ALYSON S | Owner ID: | 61008 |
| Mailing Address: | 555 BALM ST WALLA WALLA, WA 99362 | % Ownership: | 100.0000000000% |
| | | Exemptions: | |
Taxes and Assessment Details
Values
| (+) Improvement Homesite Value: | + | $0 | |
| (+) Improvement Non-Homesite Value: | + | $170,320 | |
| (+) Land Homesite Value: | + | $0 | |
| (+) Land Non-Homesite Value: | + | $70,000 | |
| (+) Curr Use (HS): | + | $0 | $0 |
| (+) Curr Use (NHS): | + | $0 | $0 |
| | | -------------------------- | |
| (=) Market Value: | = | $240,320 | |
| (–) Productivity Loss: | – | $0 | |
| | | -------------------------- | |
| (=) Subtotal: | = | $240,320 | |
| (+) Senior Appraised Value: | + | $0 | |
| (+) Non-Senior Appraised Value: | + | $240,320 | |
| | | -------------------------- | |
| (=) Total Appraised Value: | = | $240,320 | |
| (–) Senior Exemption Loss: | – | $0 | |
| (–) Exemption Loss: | – | $0 | |
| | | -------------------------- | |
| (=) Taxable Value: | = | $240,320 | |
Taxing Jurisdiction
| Owner: | MAGNAGHI FRANK R & ALYSON S | | |
| % Ownership: | 100.0000000000% | | |
| Total Value: | $240,320 | | |
| Tax Area: | 1 - OL-140-F |
| CERFD | CURRENT EXPENSE REFUND 010 | 0.0000000000 | $240,320 | $240,320 | $0.00 | | |
| CURREXP | CURRENT EXPENSE 010 | 1.0175366760 | $240,320 | $240,320 | $244.53 | | |
| HUMNSERV | HUMAN SERVICES 119 | 0.0250000000 | $240,320 | $240,320 | $6.01 | | |
| SLDREL | SOLDIERS RELIEF 121 | 0.0155990005 | $240,320 | $240,320 | $3.75 | | |
| EMERGSER | EMS 147 | 0.3792580840 | $240,320 | $240,320 | $91.14 | | |
| EMSRFD | EMS REFUND 147 | 0.0000000000 | $240,320 | $240,320 | $0.00 | | |
| PORTRFD | PORT REFUND 640 | 0.0000000000 | $240,320 | $240,320 | $0.00 | | |
| PORTWWGEN | PORT OF WW 640 | 0.2460186015 | $240,320 | $240,320 | $59.12 | | |
| SD140BOND | SD #140 BOND 764 | 0.8342371393 | $240,320 | $240,320 | $200.48 | | |
| SD140GEN | SD #140 GENERAL 760 | 2.0646500647 | $240,320 | $240,320 | $496.18 | | |
| ST2 | STATE SCHOOL PART 2 600 | 0.8131451643 | $240,320 | $240,320 | $195.42 | | |
| STATESCHL | STATE SCHOOL 600 | 1.5158548041 | $240,320 | $240,320 | $364.29 | | |
| STREFUND | STATE REFUND LEVY 603 | 0.0000000000 | $240,320 | $240,320 | $0.00 | | |
| CWWBOND | C OF WW BOND 643 | 0.2760494372 | $240,320 | $240,320 | $66.34 | | |
| CWWGEN | CITY OF WW 631 | 1.6100204973 | $240,320 | $240,320 | $386.92 | | |
| CWWRFD | CITY OF WALLA WALLA REFUND 631 | 0.0000000000 | $240,320 | $240,320 | $0.00 | | |
| | Total Tax Rate: | 8.7973694689 | | | | | |
| | | | | Taxes w/Current Exemptions: | $2,114.18 | | |
| | | | | Taxes w/o Exemptions: | $2,114.18 | | |
Improvement / Building
| Improvement #1: | RESIDENTIAL | State Code: | 11 | 866.0 sqft | Value: | $170,320 |
| Exterior Wall: | METAL/STEEL | Heating/Cooling: | BASEBOARD ELECTRIC | | Number of Bathrooms: | 1 | Number of Bedrooms: | 2 | | Plumbing: | 6 | Roof Covering: | COMP SHINGLE |
|
| | Type | Description | Class CD | Sub Class CD | Year Built | Area |
| | MA | Main Area | 1 | 30 | 1896 | 866.0 |
| | SI1 | SITE IMPROVEMENT | 1 | 30 | 1896 | 1.0 |
| | RPO | OPEN PORCH W/ROOF | 1 | 30 | 1896 | 84.0 |
| | DTG | Detached Garage | 1 | 30 | 1896 | 440.0 |
Sketch
Property Image
Land
| 1 | RES 1 | Converted: Residential | 0.1377 | 6000.00 | 0.00 | 0.00 | 1.00 | $70,000 | $0 |
Roll Value History
| 2025 | N/A | N/A | N/A | N/A | N/A |
| 2024 | $170,320 | $70,000 | $0 | $240,320 | $240,320 |
| 2023 | $170,320 | $70,000 | $0 | $240,320 | $240,320 |
| 2022 | $170,320 | $55,000 | $0 | $225,320 | $225,320 |
| 2021 | $131,020 | $55,000 | $0 | $186,020 | $186,020 |
| 2020 | $97,050 | $55,000 | $0 | $152,050 | $152,050 |
| 2019 | $97,050 | $55,000 | $0 | $152,050 | $152,050 |
| 2018 | $96,440 | $36,000 | $0 | $132,440 | $132,440 |
| 2017 | $87,680 | $36,000 | $0 | $123,680 | $123,680 |
| 2016 | $83,500 | $36,000 | $0 | $119,500 | $119,500 |
| 2015 | $83,500 | $36,000 | $0 | $119,500 | $119,500 |
| 2014 | $83,500 | $36,000 | $0 | $119,500 | $119,500 |
| 2013 | $83,500 | $36,000 | $0 | $119,500 | $119,500 |
| 2012 | $83,500 | $36,000 | $0 | $0 | $0 |
| 2011 | $83,500 | $36,000 | $0 | $0 | $0 |
| 2010 | $73,600 | $36,000 | $0 | $0 | $0 |
| 2009 | $85,800 | $36,000 | $0 | $0 | $0 |
| 2008 | $85,800 | $36,000 | $0 | $0 | $0 |
| 2007 | $47,600 | $18,000 | $0 | $0 | $0 |
| 2006 | $47,600 | $18,000 | $0 | $0 | $0 |
Deed and Sales History
| 1 | 06/01/2017 | SWD | STATUTORY WARRANTY DEED | OWEN WAYNE L & VIRGINIA | MAGNAGHI FRANK R & ALYSON S | | | $142,000.00 | 132521 | 2017-04193 |
| 2 | 03/15/1995 | WARRANTY D | WARRANTY DEED | | | | | $35,165.00 | 83679 | 2289-502400 |
Payout Agreement
| No payout information available.. |