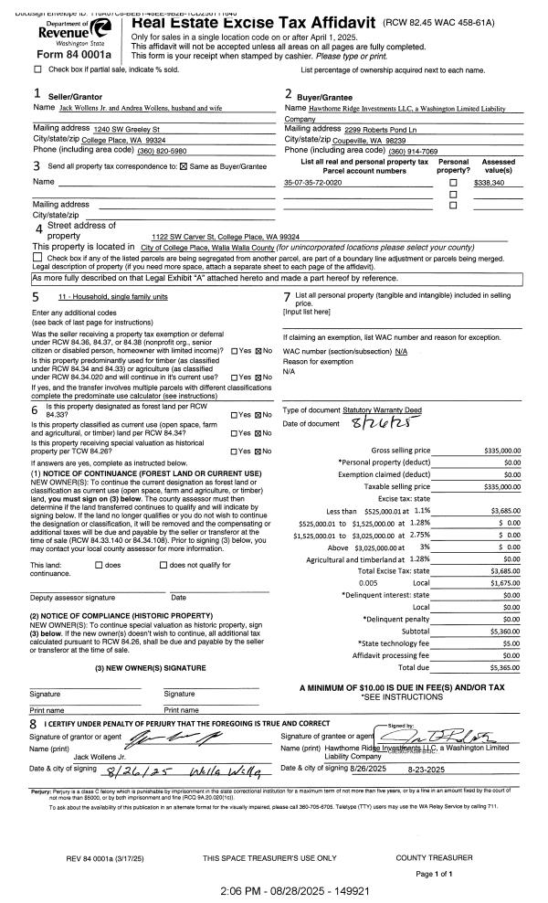
Property
Account |
| Property ID: | 9485 | Abbreviated Legal Description: | 28-7-36 TAX 20A |
| Parcel Number: | 360728210002 | Agent Code: | |
| Type: | Real | | |
| Tax Area: | 1 - OL-140-F | Land Use Code | 11 |
| Open Space: | N | DFL | N |
| Historic Property: | N | Remodel Property: | N |
| Multi-Family Redevelopment: | N | | |
| Township: | 7 | Section: | 28 |
| Range: | 36 |
Location |
| Address: | 604 FERN AVE WA 99362 | Mapsco: | |
| Neighborhood: | G Res | Map ID: | |
| Neighborhood CD: | 614011 |
Owner |
| Name: | WRIGHT JEFFREY D & BETTY M | Owner ID: | 64282 |
| Mailing Address: | 604 FERN AVE WALLA WALLA, WA 99362 | % Ownership: | 100.0000000000% |
| | | Exemptions: | |
Taxes and Assessment Details
Values
| (+) Improvement Homesite Value: | + | $0 | |
| (+) Improvement Non-Homesite Value: | + | $264,900 | |
| (+) Land Homesite Value: | + | $0 | |
| (+) Land Non-Homesite Value: | + | $120,820 | |
| (+) Curr Use (HS): | + | $0 | $0 |
| (+) Curr Use (NHS): | + | $0 | $0 |
| | | -------------------------- | |
| (=) Market Value: | = | $385,720 | |
| (–) Productivity Loss: | – | $0 | |
| | | -------------------------- | |
| (=) Subtotal: | = | $385,720 | |
| (+) Senior Appraised Value: | + | $0 | |
| (+) Non-Senior Appraised Value: | + | $385,720 | |
| | | -------------------------- | |
| (=) Total Appraised Value: | = | $385,720 | |
| (–) Senior Exemption Loss: | – | $0 | |
| (–) Exemption Loss: | – | $0 | |
| | | -------------------------- | |
| (=) Taxable Value: | = | $385,720 | |
Taxing Jurisdiction
| Owner: | WRIGHT JEFFREY D & BETTY M | | |
| % Ownership: | 100.0000000000% | | |
| Total Value: | $385,720 | | |
| Tax Area: | 1 - OL-140-F |
| CERFD | CURRENT EXPENSE REFUND 010 | 0.0000000000 | $385,720 | $385,720 | $0.00 | | |
| CURREXP | CURRENT EXPENSE 010 | 1.0175366760 | $385,720 | $385,720 | $392.48 | | |
| HUMNSERV | HUMAN SERVICES 119 | 0.0250000000 | $385,720 | $385,720 | $9.64 | | |
| SLDREL | SOLDIERS RELIEF 121 | 0.0155990005 | $385,720 | $385,720 | $6.02 | | |
| EMERGSER | EMS 147 | 0.3792580840 | $385,720 | $385,720 | $146.29 | | |
| EMSRFD | EMS REFUND 147 | 0.0000000000 | $385,720 | $385,720 | $0.00 | | |
| PORTRFD | PORT REFUND 640 | 0.0000000000 | $385,720 | $385,720 | $0.00 | | |
| PORTWWGEN | PORT OF WW 640 | 0.2460186015 | $385,720 | $385,720 | $94.89 | | |
| SD140BOND | SD #140 BOND 764 | 0.8342371393 | $385,720 | $385,720 | $321.78 | | |
| SD140GEN | SD #140 GENERAL 760 | 2.0646500647 | $385,720 | $385,720 | $796.38 | | |
| ST2 | STATE SCHOOL PART 2 600 | 0.8131451643 | $385,720 | $385,720 | $313.65 | | |
| STATESCHL | STATE SCHOOL 600 | 1.5158548041 | $385,720 | $385,720 | $584.70 | | |
| STREFUND | STATE REFUND LEVY 603 | 0.0000000000 | $385,720 | $385,720 | $0.00 | | |
| CWWBOND | C OF WW BOND 643 | 0.2760494372 | $385,720 | $385,720 | $106.48 | | |
| CWWGEN | CITY OF WW 631 | 1.6100204973 | $385,720 | $385,720 | $621.02 | | |
| CWWRFD | CITY OF WALLA WALLA REFUND 631 | 0.0000000000 | $385,720 | $385,720 | $0.00 | | |
| | Total Tax Rate: | 8.7973694689 | | | | | |
| | | | | Taxes w/Current Exemptions: | $3,393.33 | | |
| | | | | Taxes w/o Exemptions: | $3,393.33 | | |
Improvement / Building
| Improvement #1: | RESIDENTIAL | State Code: | 11 | 1403.0 sqft | Value: | $264,900 |
| Exterior Wall: | PLYWOOD | Foundation: | SLAB FOUNDATION | | Heating/Cooling: | WARM & COOLED AIR | Number of Bathrooms: | 2 | | Number of Bedrooms: | 3 | Plumbing: | 10 | | Roof Covering: | COMP SHINGLE |   |   |
|
| | Type | Description | Class CD | Sub Class CD | Year Built | Area |
| | MA | Main Area | 1 | 35 | 1971 | 1403.0 |
| | SI1 | SITE IMPROVEMENT | 1 | 35 | 1971 | 2.0 |
| | S1F | Single One Story Fireplace | 1 | 35 | 1971 | 1.0 |
| | RPO | OPEN PORCH W/ROOF | 1 | 35 | 1971 | 40.0 |
| | ATG | Attached Garage | 1 | 35 | 1971 | 441.0 |
Sketch
Property Image
Land
| 1 | RES 1 | Converted: Residential | 0.2970 | 12936.00 | 0.00 | 0.00 | 1.00 | $120,820 | $0 |
Roll Value History
| 2025 | N/A | N/A | N/A | N/A | N/A |
| 2024 | $264,900 | $120,820 | $0 | $385,720 | $385,720 |
| 2023 | $264,900 | $120,820 | $0 | $385,720 | $385,720 |
| 2022 | $264,900 | $99,740 | $0 | $364,640 | $364,640 |
| 2021 | $240,810 | $99,740 | $0 | $340,550 | $340,550 |
| 2020 | $172,010 | $99,740 | $0 | $271,750 | $271,750 |
| 2019 | $172,010 | $99,740 | $0 | $271,750 | $271,750 |
| 2018 | $138,380 | $49,600 | $0 | $187,980 | $187,980 |
| 2017 | $131,790 | $49,600 | $0 | $181,390 | $181,390 |
| 2016 | $114,600 | $49,600 | $0 | $164,200 | $164,200 |
| 2015 | $114,600 | $49,600 | $0 | $164,200 | $164,200 |
| 2014 | $114,600 | $49,600 | $0 | $164,200 | $164,200 |
| 2013 | $114,600 | $49,600 | $0 | $164,200 | $164,200 |
| 2012 | $114,600 | $49,600 | $0 | $0 | $0 |
| 2011 | $114,600 | $49,600 | $0 | $0 | $0 |
| 2010 | $99,700 | $49,600 | $0 | $0 | $0 |
| 2009 | $116,300 | $49,600 | $0 | $0 | $0 |
| 2008 | $116,300 | $49,600 | $0 | $0 | $0 |
| 2007 | $88,800 | $27,100 | $0 | $0 | $0 |
| 2006 | $88,800 | $27,100 | $0 | $0 | $0 |
Deed and Sales History
| 1 | 11/16/2018 | SWD | STATUTORY WARRANTY DEED | WILSON MICHAEL R & KARLYN J | WRIGHT JEFFREY D & BETTY M | | | $285,500.00 | 135960 | 2018-09547 |
| 2 | 01/03/1983 | QCD | QUIT CLAIM DEED | | | | | $63,900.00 | 0 | 1889-102021 |
Payout Agreement
| No payout information available.. |