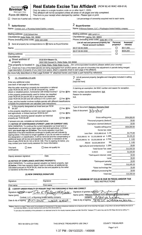
Property
Account |
| Property ID: | 9472 | Abbreviated Legal Description: | 28-7-36 TAX 163A |
| Parcel Number: | 360728140097 | Agent Code: | |
| Type: | Real | | |
| Tax Area: | 105 - 140-F-4 | Land Use Code | 11 |
| Open Space: | N | DFL | N |
| Historic Property: | N | Remodel Property: | N |
| Multi-Family Redevelopment: | N | | |
| Township: | 7 | Section: | 28 |
| Range: | 36 |
Location |
| Address: | 1111 STURM AVE WA 99362 | Mapsco: | |
| Neighborhood: | A Res | Map ID: | |
| Neighborhood CD: | 613011 |
Owner |
| Name: | GLADDEN DWIGHT E & ALICE M ROGERS | Owner ID: | 71669 |
| Mailing Address: | 1111 STURM AVE WALLA WALLA, WA 99362 | % Ownership: | 100.0000000000% |
| | | Exemptions: | |
Taxes and Assessment Details
Values
| (+) Improvement Homesite Value: | + | $0 | |
| (+) Improvement Non-Homesite Value: | + | $218,210 | |
| (+) Land Homesite Value: | + | $0 | |
| (+) Land Non-Homesite Value: | + | $99,710 | |
| (+) Curr Use (HS): | + | $0 | $0 |
| (+) Curr Use (NHS): | + | $0 | $0 |
| | | -------------------------- | |
| (=) Market Value: | = | $317,920 | |
| (–) Productivity Loss: | – | $0 | |
| | | -------------------------- | |
| (=) Subtotal: | = | $317,920 | |
| (+) Senior Appraised Value: | + | $0 | |
| (+) Non-Senior Appraised Value: | + | $317,920 | |
| | | -------------------------- | |
| (=) Total Appraised Value: | = | $317,920 | |
| (–) Senior Exemption Loss: | – | $0 | |
| (–) Exemption Loss: | – | $0 | |
| | | -------------------------- | |
| (=) Taxable Value: | = | $317,920 | |
Taxing Jurisdiction
| Owner: | GLADDEN DWIGHT E & ALICE M ROGERS | | |
| % Ownership: | 100.0000000000% | | |
| Total Value: | $317,920 | | |
| Tax Area: | 105 - 140-F-4 |
| CERFD | CURRENT EXPENSE REFUND 010 | 0.0000000000 | $317,920 | $317,920 | $0.00 | | |
| CURREXP | CURRENT EXPENSE 010 | 1.0175366760 | $317,920 | $317,920 | $323.50 | | |
| HUMNSERV | HUMAN SERVICES 119 | 0.0250000000 | $317,920 | $317,920 | $7.95 | | |
| SLDREL | SOLDIERS RELIEF 121 | 0.0155990005 | $317,920 | $317,920 | $4.96 | | |
| EMERGSER | EMS 147 | 0.3792580840 | $317,920 | $317,920 | $120.57 | | |
| EMSRFD | EMS REFUND 147 | 0.0000000000 | $317,920 | $317,920 | $0.00 | | |
| FD4EXP | FD #4 EXPENSE 686 | 0.8836993059 | $317,920 | $317,920 | $280.95 | | |
| RLBRFD | RURAL LIBRARY REFUND 623 | 0.0000000000 | $317,920 | $317,920 | $0.00 | | |
| RURALLIB | RURAL LIBRARY 623 | 0.3710609029 | $317,920 | $317,920 | $117.97 | | |
| PORTRFD | PORT REFUND 640 | 0.0000000000 | $317,920 | $317,920 | $0.00 | | |
| PORTWWGEN | PORT OF WW 640 | 0.2460186015 | $317,920 | $317,920 | $78.21 | | |
| SD140BOND | SD #140 BOND 764 | 0.8342371393 | $317,920 | $317,920 | $265.22 | | |
| SD140GEN | SD #140 GENERAL 760 | 2.0646500647 | $317,920 | $317,920 | $656.39 | | |
| ST2 | STATE SCHOOL PART 2 600 | 0.8131451643 | $317,920 | $317,920 | $258.52 | | |
| STATESCHL | STATE SCHOOL 600 | 1.5158548041 | $317,920 | $317,920 | $481.92 | | |
| STREFUND | STATE REFUND LEVY 603 | 0.0000000000 | $317,920 | $317,920 | $0.00 | | |
| COROAD | COUNTY ROAD 115 | 1.6549953990 | $317,920 | $317,920 | $526.16 | | |
| CRPRD | COUNTY ROAD REFUND 115 | 0.0000000000 | $317,920 | $317,920 | $0.00 | | |
| | Total Tax Rate: | 9.8210551422 | | | | | |
| | | | | Taxes w/Current Exemptions: | $3,122.32 | | |
| | | | | Taxes w/o Exemptions: | $3,122.32 | | |
Improvement / Building
| Improvement #1: | RESIDENTIAL | State Code: | 11 | 832.0 sqft | Value: | $218,210 |
| Exterior Wall: | SIDING | Heating/Cooling: | WARM & COOLED AIR | | Number of Bathrooms: | 1 | Number of Bedrooms: | 2 | | Plumbing: | 6 | Roof Covering: | GALVANIZED METAL |
|
| | Type | Description | Class CD | Sub Class CD | Year Built | Area |
| | MA | Main Area | 1 | 30 | 1946 | 832.0 |
| | SI1 | SITE IMPROVEMENT | 1 | 30 | 1946 | 1.5 |
| | BASE | BASEMENT | 1 | 30 | 1946 | 832.0 |
| | OSP | Open | 1 | 30 | 1946 | 25.0 |
| | RCD | WOOD DECK W/ROOF, CEILED | 1 | 30 | 1946 | 132.0 |
| | WOD | Wood Deck | 1 | 30 | 1946 | 339.0 |
| | DTG | Detached Garage | 1 | 30 | 1946 | 320.0 |
| | DTG | Detached Garage | 1 | 30 | 2014 | 988.0 |
Sketch
Property Image
Land
| 1 | RES 1 | Converted: Residential | 0.5287 | 23028.00 | 0.00 | 0.00 | 1.00 | $99,710 | $0 |
Roll Value History
| 2025 | N/A | N/A | N/A | N/A | N/A |
| 2024 | $218,210 | $99,710 | $0 | $317,920 | $317,920 |
| 2023 | $218,210 | $99,710 | $0 | $317,920 | $317,920 |
| 2022 | $207,820 | $79,450 | $0 | $287,270 | $287,270 |
| 2021 | $173,180 | $79,450 | $0 | $252,630 | $252,630 |
| 2020 | $144,320 | $79,450 | $0 | $223,770 | $223,770 |
| 2019 | $144,320 | $79,450 | $0 | $223,770 | $223,770 |
| 2018 | $113,300 | $58,200 | $0 | $171,500 | $171,500 |
| 2017 | $113,300 | $58,200 | $0 | $171,500 | $171,500 |
| 2016 | $103,000 | $58,200 | $0 | $161,200 | $161,200 |
| 2015 | $103,000 | $58,200 | $0 | $161,200 | $161,200 |
| 2014 | $103,000 | $58,200 | $0 | $161,200 | $161,200 |
| 2013 | $89,000 | $58,200 | $0 | $147,200 | $147,200 |
| 2012 | $96,900 | $58,200 | $0 | $0 | $0 |
| 2011 | $96,900 | $58,200 | $0 | $0 | $0 |
| 2010 | $76,700 | $58,200 | $0 | $0 | $0 |
| 2009 | $91,700 | $58,200 | $0 | $0 | $0 |
| 2008 | $91,700 | $58,200 | $0 | $0 | $0 |
| 2007 | $74,300 | $35,700 | $0 | $0 | $0 |
| 2006 | $74,300 | $35,700 | $0 | $0 | $0 |
Deed and Sales History
| 1 | 06/16/2022 | QCD | QUIT CLAIM DEED | | GLADDEN DWIGHT E & ALICE M ROGERS | | | | 144157 | 2022-05121 |
| 2 | 05/17/2022 | QCD | QUIT CLAIM DEED | GLADDEN DWIGHT | GLADDEN DWIGHT E & ALICE M ROGERS | | | $0.00 | 143956 | 2022-04202 |
| 3 | 06/21/1988 | WARRANTY D | WARRANTY DEED | | | | | $34,800.00 | 0 | 1718-803954 |
Payout Agreement
| No payout information available.. |