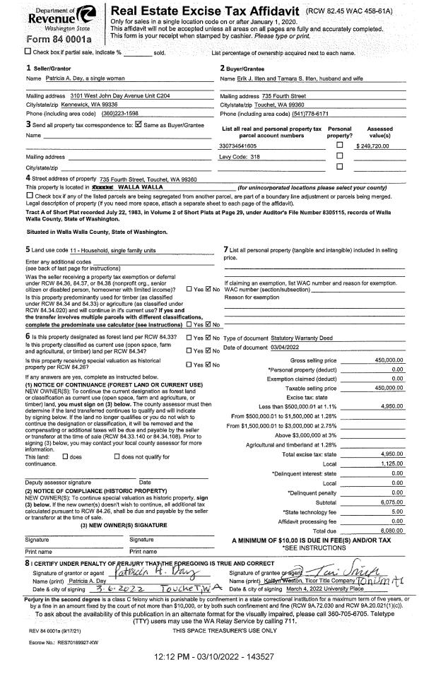
Property
Account |
| Property ID: | 9347 | Abbreviated Legal Description: | EAST WALLA WALLA 1ST LESS W 25' LOT 21 BLK 4; LOT 22 BLK 4 |
| Parcel Number: | 360727540422 | Agent Code: | |
| Type: | Real | | |
| Tax Area: | 1 - OL-140-F | Land Use Code | 11 |
| Open Space: | N | DFL | N |
| Historic Property: | N | Remodel Property: | N |
| Multi-Family Redevelopment: | N | | |
| Township: | 7 | Section: | 27 |
| Range: | 36 |
Location |
| Address: | 1943 PLEASANT ST WA 99362 | Mapsco: | |
| Neighborhood: | A Inferior Res | Map ID: | |
| Neighborhood CD: | 413111 |
Owner |
| Name: | BOARD SETH R & DANIELLE N | Owner ID: | 60043 |
| Mailing Address: | 1943 PLEASANT ST WALLA WALLA, WA 99362 | % Ownership: | 100.0000000000% |
| | | Exemptions: | |
Taxes and Assessment Details
Values
| (+) Improvement Homesite Value: | + | $0 | |
| (+) Improvement Non-Homesite Value: | + | $300,250 | |
| (+) Land Homesite Value: | + | $0 | |
| (+) Land Non-Homesite Value: | + | $72,000 | |
| (+) Curr Use (HS): | + | $0 | $0 |
| (+) Curr Use (NHS): | + | $0 | $0 |
| | | -------------------------- | |
| (=) Market Value: | = | $372,250 | |
| (–) Productivity Loss: | – | $0 | |
| | | -------------------------- | |
| (=) Subtotal: | = | $372,250 | |
| (+) Senior Appraised Value: | + | $0 | |
| (+) Non-Senior Appraised Value: | + | $372,250 | |
| | | -------------------------- | |
| (=) Total Appraised Value: | = | $372,250 | |
| (–) Senior Exemption Loss: | – | $0 | |
| (–) Exemption Loss: | – | $0 | |
| | | -------------------------- | |
| (=) Taxable Value: | = | $372,250 | |
Taxing Jurisdiction
| Owner: | BOARD SETH R & DANIELLE N | | |
| % Ownership: | 100.0000000000% | | |
| Total Value: | $372,250 | | |
| Tax Area: | 1 - OL-140-F |
| CERFD | CURRENT EXPENSE REFUND 010 | 0.0000000000 | $372,250 | $372,250 | $0.00 | | |
| CURREXP | CURRENT EXPENSE 010 | 1.0175366760 | $372,250 | $372,250 | $378.78 | | |
| HUMNSERV | HUMAN SERVICES 119 | 0.0250000000 | $372,250 | $372,250 | $9.31 | | |
| SLDREL | SOLDIERS RELIEF 121 | 0.0155990005 | $372,250 | $372,250 | $5.81 | | |
| EMERGSER | EMS 147 | 0.3792580840 | $372,250 | $372,250 | $141.18 | | |
| EMSRFD | EMS REFUND 147 | 0.0000000000 | $372,250 | $372,250 | $0.00 | | |
| PORTRFD | PORT REFUND 640 | 0.0000000000 | $372,250 | $372,250 | $0.00 | | |
| PORTWWGEN | PORT OF WW 640 | 0.2460186015 | $372,250 | $372,250 | $91.58 | | |
| SD140BOND | SD #140 BOND 764 | 0.8342371393 | $372,250 | $372,250 | $310.54 | | |
| SD140GEN | SD #140 GENERAL 760 | 2.0646500647 | $372,250 | $372,250 | $768.57 | | |
| ST2 | STATE SCHOOL PART 2 600 | 0.8131451643 | $372,250 | $372,250 | $302.69 | | |
| STATESCHL | STATE SCHOOL 600 | 1.5158548041 | $372,250 | $372,250 | $564.28 | | |
| STREFUND | STATE REFUND LEVY 603 | 0.0000000000 | $372,250 | $372,250 | $0.00 | | |
| CWWBOND | C OF WW BOND 643 | 0.2760494372 | $372,250 | $372,250 | $102.76 | | |
| CWWGEN | CITY OF WW 631 | 1.6100204973 | $372,250 | $372,250 | $599.33 | | |
| CWWRFD | CITY OF WALLA WALLA REFUND 631 | 0.0000000000 | $372,250 | $372,250 | $0.00 | | |
| | Total Tax Rate: | 8.7973694689 | | | | | |
| | | | | Taxes w/Current Exemptions: | $3,274.83 | | |
| | | | | Taxes w/o Exemptions: | $3,274.83 | | |
Improvement / Building
| Improvement #1: | RESIDENTIAL | State Code: | 11 | 1511.0 sqft | Value: | $300,250 |
| Exterior Wall: | SIDING | Heating/Cooling: | BASEBOARD ELECTRIC | | Number of Bathrooms: | 2 | Number of Bedrooms: | 2 | | Plumbing: | 9 | Roof Covering: | COMP SHINGLE |
|
| | Type | Description | Class CD | Sub Class CD | Year Built | Area |
| | MA | Main Area | 1 | 30 | 1949 | 1511.0 |
| | SI1 | SITE IMPROVEMENT | 1 | 30 | 0 | 3.0 |
| | CPC | COVERED CARPORT/PATIO | 1 | 30 | 1949 | 324.0 |
Sketch
Property Image
Land
| 1 | RES 1 | Converted: Residential | 0.2066 | 9000.00 | 0.00 | 0.00 | 1.00 | $72,000 | $0 |
Roll Value History
| 2025 | N/A | N/A | N/A | N/A | N/A |
| 2024 | $315,260 | $72,000 | $0 | $387,260 | $387,260 |
| 2023 | $300,250 | $72,000 | $0 | $372,250 | $372,250 |
| 2022 | $303,280 | $47,250 | $0 | $350,530 | $350,530 |
| 2021 | $224,650 | $47,250 | $0 | $271,900 | $271,900 |
| 2020 | $140,410 | $47,250 | $0 | $187,660 | $187,660 |
| 2019 | $140,410 | $47,250 | $0 | $187,660 | $187,660 |
| 2018 | $127,640 | $47,250 | $0 | $174,890 | $174,890 |
| 2017 | $127,640 | $47,250 | $0 | $174,890 | $174,890 |
| 2016 | $109,870 | $46,300 | $0 | $156,170 | $156,170 |
| 2015 | $99,880 | $46,300 | $0 | $146,180 | $146,180 |
| 2014 | $90,800 | $46,300 | $0 | $137,100 | $137,100 |
| 2013 | $90,800 | $46,300 | $0 | $137,100 | $137,100 |
| 2012 | $90,800 | $46,300 | $0 | $0 | $0 |
| 2011 | $93,300 | $46,300 | $0 | $0 | $0 |
| 2010 | $93,300 | $46,300 | $0 | $0 | $0 |
| 2009 | $108,800 | $46,300 | $0 | $0 | $0 |
| 2008 | $108,800 | $46,300 | $0 | $0 | $0 |
| 2007 | $80,700 | $23,800 | $0 | $0 | $0 |
| 2006 | $60,800 | $23,800 | $0 | $0 | $0 |
Deed and Sales History
| 1 | 11/21/2016 | SWD | STATUTORY WARRANTY DEED | LEISTIKO DEREK & AMY | BOARD SETH R & DANIELLE N | | | $175,000.00 | 131465 | 2016-09583 |
| 2 | 12/15/2003 | WARRANTY D | WARRANTY DEED | STUTSMAN, CLARENCE E ESTATE | LEISTIKO DEREK & AMY | | | $70,000.00 | 103728 | 2003-18923 |
| 3 | 04/01/1985 | WARRANTY D | WARRANTY DEED | | | | | $39,000.00 | 0 | 1498-502003 |
Payout Agreement
| No payout information available.. |