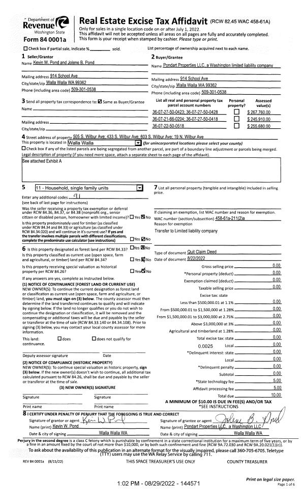
Property
Account |
| Property ID: | 9294 | Abbreviated Legal Description: | EAST WALLA WALLA LOT 7 BLK 3 |
| Parcel Number: | 360727530307 | Agent Code: | |
| Type: | Real | | |
| Tax Area: | 105 - 140-F-4 | Land Use Code | 11 |
| Open Space: | N | DFL | N |
| Historic Property: | N | Remodel Property: | N |
| Multi-Family Redevelopment: | N | | |
| Township: | 7 | Section: | 27 |
| Range: | 36 |
Location |
| Address: | 1922 PLEASANT ST WA 99362 | Mapsco: | |
| Neighborhood: | A Inferior Res | Map ID: | |
| Neighborhood CD: | 413111 |
Owner |
| Name: | HOLWAY JEFFREY S | Owner ID: | 71539 |
| Mailing Address: | 1081 LYNNWOOD AVE NE #C RENTON, WA 98056 | % Ownership: | 100.0000000000% |
| | | Exemptions: | |
Taxes and Assessment Details
Values
| (+) Improvement Homesite Value: | + | $0 | |
| (+) Improvement Non-Homesite Value: | + | $227,100 | |
| (+) Land Homesite Value: | + | $0 | |
| (+) Land Non-Homesite Value: | + | $64,660 | |
| (+) Curr Use (HS): | + | $0 | $0 |
| (+) Curr Use (NHS): | + | $0 | $0 |
| | | -------------------------- | |
| (=) Market Value: | = | $291,760 | |
| (–) Productivity Loss: | – | $0 | |
| | | -------------------------- | |
| (=) Subtotal: | = | $291,760 | |
| (+) Senior Appraised Value: | + | $0 | |
| (+) Non-Senior Appraised Value: | + | $291,760 | |
| | | -------------------------- | |
| (=) Total Appraised Value: | = | $291,760 | |
| (–) Senior Exemption Loss: | – | $0 | |
| (–) Exemption Loss: | – | $0 | |
| | | -------------------------- | |
| (=) Taxable Value: | = | $291,760 | |
Taxing Jurisdiction
| Owner: | HOLWAY JEFFREY S | | |
| % Ownership: | 100.0000000000% | | |
| Total Value: | $291,760 | | |
| Tax Area: | 105 - 140-F-4 |
| CERFD | CURRENT EXPENSE REFUND 010 | 0.0000000000 | $291,760 | $291,760 | $0.00 | | |
| CURREXP | CURRENT EXPENSE 010 | 1.0175366760 | $291,760 | $291,760 | $296.88 | | |
| HUMNSERV | HUMAN SERVICES 119 | 0.0250000000 | $291,760 | $291,760 | $7.29 | | |
| SLDREL | SOLDIERS RELIEF 121 | 0.0155990005 | $291,760 | $291,760 | $4.55 | | |
| EMERGSER | EMS 147 | 0.3792580840 | $291,760 | $291,760 | $110.65 | | |
| EMSRFD | EMS REFUND 147 | 0.0000000000 | $291,760 | $291,760 | $0.00 | | |
| FD4EXP | FD #4 EXPENSE 686 | 0.8836993059 | $291,760 | $291,760 | $257.83 | | |
| RLBRFD | RURAL LIBRARY REFUND 623 | 0.0000000000 | $291,760 | $291,760 | $0.00 | | |
| RURALLIB | RURAL LIBRARY 623 | 0.3710609029 | $291,760 | $291,760 | $108.26 | | |
| PORTRFD | PORT REFUND 640 | 0.0000000000 | $291,760 | $291,760 | $0.00 | | |
| PORTWWGEN | PORT OF WW 640 | 0.2460186015 | $291,760 | $291,760 | $71.78 | | |
| SD140BOND | SD #140 BOND 764 | 0.8342371393 | $291,760 | $291,760 | $243.40 | | |
| SD140GEN | SD #140 GENERAL 760 | 2.0646500647 | $291,760 | $291,760 | $602.38 | | |
| ST2 | STATE SCHOOL PART 2 600 | 0.8131451643 | $291,760 | $291,760 | $237.24 | | |
| STATESCHL | STATE SCHOOL 600 | 1.5158548041 | $291,760 | $291,760 | $442.27 | | |
| STREFUND | STATE REFUND LEVY 603 | 0.0000000000 | $291,760 | $291,760 | $0.00 | | |
| COROAD | COUNTY ROAD 115 | 1.6549953990 | $291,760 | $291,760 | $482.86 | | |
| CRPRD | COUNTY ROAD REFUND 115 | 0.0000000000 | $291,760 | $291,760 | $0.00 | | |
| | Total Tax Rate: | 9.8210551422 | | | | | |
| | | | | Taxes w/Current Exemptions: | $2,865.39 | | |
| | | | | Taxes w/o Exemptions: | $2,865.39 | | |
Improvement / Building
| Improvement #1: | RESIDENTIAL | State Code: | 11 | 1152.0 sqft | Value: | $227,100 |
| Exterior Wall: | PLYWOOD | Heating/Cooling: | HEAT PUMP | | Number of Bathrooms: | 1 | Number of Bedrooms: | 3 | | Plumbing: | 6 | Roof Covering: | COMP SHINGLE |
|
| | Type | Description | Class CD | Sub Class CD | Year Built | Area |
| | MA | Main Area | 1 | 30 | 1947 | 1152.0 |
| | CPC | COVERED CARPORT/PATIO | 1 | 30 | 0 | 234.0 |
| | SI1 | SITE IMPROVEMENT | 1 | 30 | 0 | 2.0 |
| | DTG | Detached Garage | 1 | 30 | 1947 | 294.0 |
| | RPS | PORCH W/STEPS,ROOF | 1 | 30 | 1947 | 25.0 |
| | WOD | Wood Deck | 1 | 30 | 1947 | 280.0 |
| | S1F | Single One Story Fireplace | 1 | 30 | 1947 | 1.0 |
Sketch
Property Image
Land
| 1 | RES 1 | Converted: Residential | 0.1855 | 8082.00 | 0.00 | 0.00 | 1.00 | $64,660 | $0 |
Roll Value History
| 2025 | N/A | N/A | N/A | N/A | N/A |
| 2024 | $238,460 | $64,660 | $0 | $303,120 | $303,120 |
| 2023 | $227,100 | $64,660 | $0 | $291,760 | $291,760 |
| 2022 | $239,050 | $42,430 | $0 | $281,480 | $281,480 |
| 2021 | $177,080 | $42,430 | $0 | $219,510 | $219,510 |
| 2020 | $126,480 | $42,430 | $0 | $168,910 | $168,910 |
| 2019 | $126,480 | $42,430 | $0 | $168,910 | $168,910 |
| 2018 | $120,460 | $42,430 | $0 | $162,890 | $162,890 |
| 2017 | $114,720 | $42,430 | $0 | $157,150 | $157,150 |
| 2016 | $89,420 | $45,500 | $0 | $134,920 | $134,920 |
| 2015 | $81,290 | $45,500 | $0 | $126,790 | $126,790 |
| 2014 | $73,900 | $45,500 | $0 | $119,400 | $119,400 |
| 2013 | $73,900 | $45,500 | $0 | $119,400 | $119,400 |
| 2012 | $73,900 | $45,500 | $0 | $0 | $0 |
| 2011 | $75,600 | $45,500 | $0 | $0 | $0 |
| 2010 | $75,600 | $45,500 | $0 | $0 | $0 |
| 2009 | $89,000 | $45,500 | $0 | $0 | $0 |
| 2008 | $89,000 | $45,500 | $0 | $0 | $0 |
| 2007 | $69,600 | $23,000 | $0 | $0 | $0 |
| 2006 | $69,600 | $23,000 | $0 | $0 | $0 |
Deed and Sales History
| 1 | 11/22/2023 | QCD | QUIT CLAIM DEED | HOLWAY JEFFREY S | HOLWAY JEFFREY & JANETTE GRANT | | | | 146842 | 2023-06824 |
| 2 | 04/07/2022 | QCD | QUIT CLAIM DEED | HOLWAY THOMAS N | HOLWAY JEFFREY S | | | $0.00 | 143791 | 2022-03313 |
| 3 | 04/07/2022 | LOPA | LACK OF PROBATE AFFIDAVIT | HOLWAY NORMA C ESTATE | HOLWAY THOMAS N | | | $0.00 | 143790 | 2022-03305 |
| 4 | 02/01/1968 | WARRANTY D | WARRANTY DEED | | | | | $13,217.00 | 0 | 3250-492361 |
Payout Agreement
| No payout information available.. |