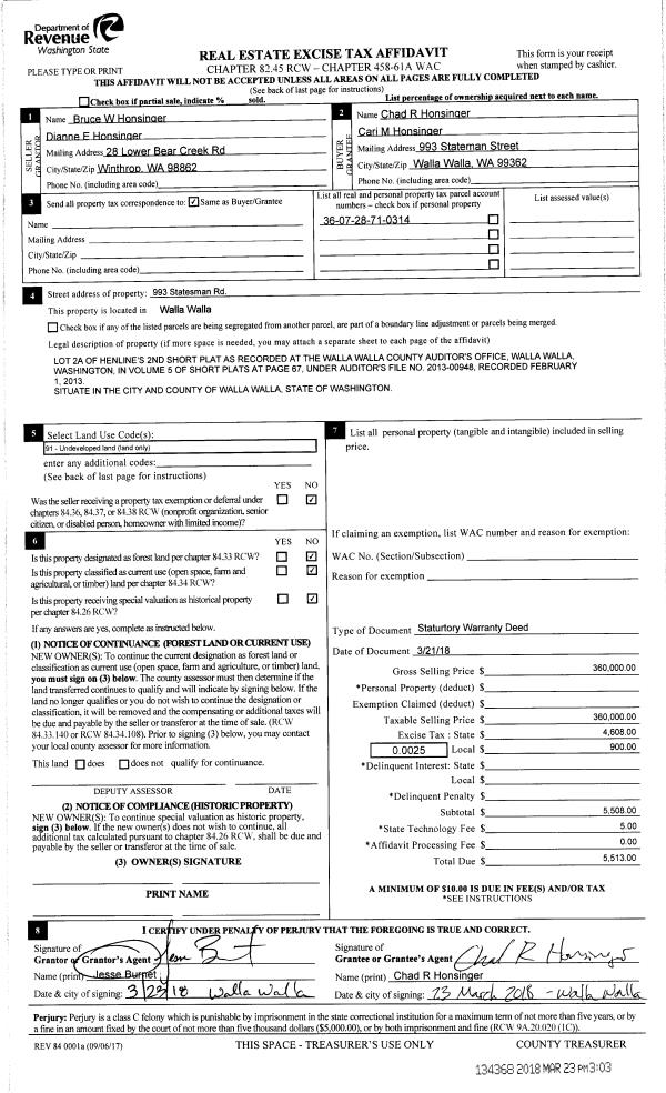
Property
Account |
| Property ID: | 9260 | Abbreviated Legal Description: | PARKSIDE LOT 23 BLK 4; N 8.43' OF LOT 22 BLK 4 |
| Parcel Number: | 360727500423 | Agent Code: | |
| Type: | Real | | |
| Tax Area: | 1 - OL-140-F | Land Use Code | 11 |
| Open Space: | N | DFL | N |
| Historic Property: | N | Remodel Property: | N |
| Multi-Family Redevelopment: | N | | |
| Township: | 7 | Section: | 27 |
| Range: | 36 |
Location |
| Address: | 505 S WILBUR AVE WA 99362 | Mapsco: | |
| Neighborhood: | A Res | Map ID: | |
| Neighborhood CD: | 613011 |
Owner |
| Name: | PONDART PROPERTIES LLC | Owner ID: | 73155 |
| Mailing Address: | 505 S WILBUR AVE WALLA WALLA, WA 99362 | % Ownership: | 100.0000000000% |
| | | Exemptions: | |
Taxes and Assessment Details
Values
| (+) Improvement Homesite Value: | + | $0 | |
| (+) Improvement Non-Homesite Value: | + | $283,060 | |
| (+) Land Homesite Value: | + | $0 | |
| (+) Land Non-Homesite Value: | + | $66,180 | |
| (+) Curr Use (HS): | + | $0 | $0 |
| (+) Curr Use (NHS): | + | $0 | $0 |
| | | -------------------------- | |
| (=) Market Value: | = | $349,240 | |
| (–) Productivity Loss: | – | $0 | |
| | | -------------------------- | |
| (=) Subtotal: | = | $349,240 | |
| (+) Senior Appraised Value: | + | $0 | |
| (+) Non-Senior Appraised Value: | + | $349,240 | |
| | | -------------------------- | |
| (=) Total Appraised Value: | = | $349,240 | |
| (–) Senior Exemption Loss: | – | $0 | |
| (–) Exemption Loss: | – | $0 | |
| | | -------------------------- | |
| (=) Taxable Value: | = | $349,240 | |
Taxing Jurisdiction
| Owner: | PONDART PROPERTIES LLC | | |
| % Ownership: | 100.0000000000% | | |
| Total Value: | $349,240 | | |
| Tax Area: | 1 - OL-140-F |
| CERFD | CURRENT EXPENSE REFUND 010 | 0.0000000000 | $349,240 | $349,240 | $0.00 | | |
| CURREXP | CURRENT EXPENSE 010 | 1.0175366760 | $349,240 | $349,240 | $355.36 | | |
| HUMNSERV | HUMAN SERVICES 119 | 0.0250000000 | $349,240 | $349,240 | $8.73 | | |
| SLDREL | SOLDIERS RELIEF 121 | 0.0155990005 | $349,240 | $349,240 | $5.45 | | |
| EMERGSER | EMS 147 | 0.3792580840 | $349,240 | $349,240 | $132.45 | | |
| EMSRFD | EMS REFUND 147 | 0.0000000000 | $349,240 | $349,240 | $0.00 | | |
| PORTRFD | PORT REFUND 640 | 0.0000000000 | $349,240 | $349,240 | $0.00 | | |
| PORTWWGEN | PORT OF WW 640 | 0.2460186015 | $349,240 | $349,240 | $85.92 | | |
| SD140BOND | SD #140 BOND 764 | 0.8342371393 | $349,240 | $349,240 | $291.35 | | |
| SD140GEN | SD #140 GENERAL 760 | 2.0646500647 | $349,240 | $349,240 | $721.06 | | |
| ST2 | STATE SCHOOL PART 2 600 | 0.8131451643 | $349,240 | $349,240 | $283.98 | | |
| STATESCHL | STATE SCHOOL 600 | 1.5158548041 | $349,240 | $349,240 | $529.40 | | |
| STREFUND | STATE REFUND LEVY 603 | 0.0000000000 | $349,240 | $349,240 | $0.00 | | |
| CWWBOND | C OF WW BOND 643 | 0.2760494372 | $349,240 | $349,240 | $96.41 | | |
| CWWGEN | CITY OF WW 631 | 1.6100204973 | $349,240 | $349,240 | $562.28 | | |
| CWWRFD | CITY OF WALLA WALLA REFUND 631 | 0.0000000000 | $349,240 | $349,240 | $0.00 | | |
| | Total Tax Rate: | 8.7973694689 | | | | | |
| | | | | Taxes w/Current Exemptions: | $3,072.39 | | |
| | | | | Taxes w/o Exemptions: | $3,072.39 | | |
Improvement / Building
| Improvement #1: | RESIDENTIAL | State Code: | 11 | 1032.0 sqft | Value: | $283,060 |
| Exterior Wall: | STUCCO | Heating/Cooling: | WARM & COOLED AIR | | Number of Bathrooms: | 1 | Number of Bedrooms: | 2 | | Plumbing: | 6 | Roof Covering: | COMP SHINGLE |
|
| | Type | Description | Class CD | Sub Class CD | Year Built | Area |
| | MA | Main Area | 1 | 30 | 1950 | 1032.0 |
| | SI1 | SITE IMPROVEMENT | 1 | 30 | 1950 | 1.5 |
| | BASE | BASEMENT | 1 | 30 | 1950 | 1032.0 |
| | BPF | BASEMENT -PARTITIONED FINISH | 1 | 30 | 2017 | 120.0 |
| | S1F | Single One Story Fireplace | 1 | 30 | 1950 | 1.0 |
| | OPS | OPEN PORCH W/STEPS | 1 | 30 | 2017 | 16.0 |
| | RPS | PORCH W/STEPS,ROOF | 1 | 30 | 2017 | 24.0 |
| | CPC | COVERED CARPORT/PATIO | 1 | 30 | 1950 | 299.0 |
| | ATG | Attached Garage | 1 | 30 | 1950 | 720.0 |
| | TOOL | TOOL SHED | 1 | 30 | 1950 | 240.0 |
Sketch
Property Image
Land
| 1 | RES 1 | Converted: Residential | 0.1688 | 7352.93 | 0.00 | 0.00 | 1.00 | $66,180 | $0 |
Roll Value History
| 2025 | N/A | N/A | N/A | N/A | N/A |
| 2024 | $283,060 | $66,180 | $0 | $349,240 | $349,240 |
| 2023 | $283,060 | $66,180 | $0 | $349,240 | $349,240 |
| 2022 | $257,330 | $53,320 | $0 | $310,650 | $310,650 |
| 2021 | $214,440 | $53,320 | $0 | $267,760 | $267,760 |
| 2020 | $153,170 | $53,320 | $0 | $206,490 | $206,490 |
| 2019 | $153,170 | $53,320 | $0 | $206,490 | $206,490 |
| 2018 | $137,160 | $44,100 | $0 | $181,260 | $181,260 |
| 2017 | $119,270 | $44,100 | $0 | $163,370 | $163,370 |
| 2016 | $90,600 | $44,100 | $0 | $134,700 | $134,700 |
| 2015 | $90,600 | $44,100 | $0 | $134,700 | $134,700 |
| 2014 | $90,600 | $44,100 | $0 | $134,700 | $134,700 |
| 2013 | $90,600 | $44,100 | $0 | $134,700 | $134,700 |
| 2012 | $95,400 | $44,100 | $0 | $0 | $0 |
| 2011 | $95,400 | $44,100 | $0 | $0 | $0 |
| 2010 | $95,400 | $44,100 | $0 | $0 | $0 |
| 2009 | $110,900 | $44,100 | $0 | $0 | $0 |
| 2008 | $110,900 | $44,100 | $0 | $0 | $0 |
| 2007 | $72,100 | $22,100 | $0 | $0 | $0 |
| 2006 | $72,100 | $22,100 | $0 | $0 | $0 |
Deed and Sales History
| 1 | 04/08/2025 | QCD | QUIT CLAIM DEED | POND KEVIN W & JOLENE B | PONDART PROPERTIES LLC | | | | 149187 | 2025-01842 |
| 2 | 08/29/2022 | QCD | QUIT CLAIM DEED | POND KEVIN W & JOLENE B | PONDART PROPERTIES LLC | | | | 144571 | 2022-07198 |
| 3 | 04/22/2016 | SWP | Special Warranty Deed | ELIZON MASTER PARTICIPATION TRUST I | POND KEVIN W & JOLENE B | | 2-PARCELS | $105,000.00 | 130075 | 2016-02996 |
|   | |
| 4 | 04/12/2016 | TRUSTEES D | TRUSTEE'S DEED | CLEAR RECON CORP | ELIZON MASTER PARTICIPATION TRUST I | | 2 PARCELS | $0.00 | 130199 | 2016-03539 |
| 5 | 07/28/2015 | TRUSTEES D | TRUSTEE'S DEED | REIFF CHRISTOPHER K | ELIZON MASTER PARTICIPATION TRUST I | | 2-PARCELS | $126,000.00 | 128482 | 2015-06430 |
|   | |
| 6 | 01/28/2000 | WARRANTY D | WARRANTY DEED | | | | | $99,000.00 | 94440 | 2940-000916 |
|   | |
Payout Agreement
| No payout information available.. |