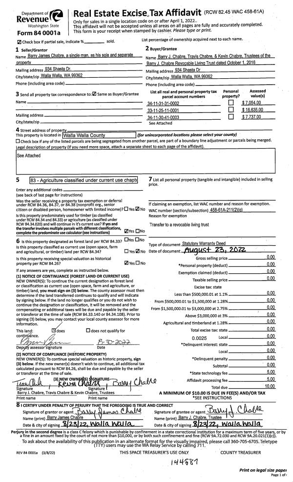
Property
Account |
| Property ID: | 9248 | Abbreviated Legal Description: | PARKSIDE LOT 15 BLK 3 |
| Parcel Number: | 360727500315 | Agent Code: | |
| Type: | Real | | |
| Tax Area: | 1 - OL-140-F | Land Use Code | 11 |
| Open Space: | N | DFL | N |
| Historic Property: | N | Remodel Property: | N |
| Multi-Family Redevelopment: | N | | |
| Township: | 7 | Section: | 27 |
| Range: | 36 |
Location |
| Address: | 615 HOLLY ST WA 99362 | Mapsco: | |
| Neighborhood: | A Res | Map ID: | |
| Neighborhood CD: | 613011 |
Owner |
| Name: | NESTEBY KENYA MARIE | Owner ID: | 71512 |
| Mailing Address: | 615 HOLLY ST WALLA WALLA, WA 99362 | % Ownership: | 100.0000000000% |
| | | Exemptions: | |
Taxes and Assessment Details
Values
| (+) Improvement Homesite Value: | + | $0 | |
| (+) Improvement Non-Homesite Value: | + | $156,940 | |
| (+) Land Homesite Value: | + | $0 | |
| (+) Land Non-Homesite Value: | + | $56,890 | |
| (+) Curr Use (HS): | + | $0 | $0 |
| (+) Curr Use (NHS): | + | $0 | $0 |
| | | -------------------------- | |
| (=) Market Value: | = | $213,830 | |
| (–) Productivity Loss: | – | $0 | |
| | | -------------------------- | |
| (=) Subtotal: | = | $213,830 | |
| (+) Senior Appraised Value: | + | $0 | |
| (+) Non-Senior Appraised Value: | + | $213,830 | |
| | | -------------------------- | |
| (=) Total Appraised Value: | = | $213,830 | |
| (–) Senior Exemption Loss: | – | $0 | |
| (–) Exemption Loss: | – | $0 | |
| | | -------------------------- | |
| (=) Taxable Value: | = | $213,830 | |
Taxing Jurisdiction
| Owner: | NESTEBY KENYA MARIE | | |
| % Ownership: | 100.0000000000% | | |
| Total Value: | $213,830 | | |
| Tax Area: | 1 - OL-140-F |
| CERFD | CURRENT EXPENSE REFUND 010 | 0.0000000000 | $213,830 | $213,830 | $0.00 | | |
| CURREXP | CURRENT EXPENSE 010 | 1.0175366760 | $213,830 | $213,830 | $217.58 | | |
| HUMNSERV | HUMAN SERVICES 119 | 0.0250000000 | $213,830 | $213,830 | $5.35 | | |
| SLDREL | SOLDIERS RELIEF 121 | 0.0155990005 | $213,830 | $213,830 | $3.34 | | |
| EMERGSER | EMS 147 | 0.3792580840 | $213,830 | $213,830 | $81.10 | | |
| EMSRFD | EMS REFUND 147 | 0.0000000000 | $213,830 | $213,830 | $0.00 | | |
| PORTRFD | PORT REFUND 640 | 0.0000000000 | $213,830 | $213,830 | $0.00 | | |
| PORTWWGEN | PORT OF WW 640 | 0.2460186015 | $213,830 | $213,830 | $52.61 | | |
| SD140BOND | SD #140 BOND 764 | 0.8342371393 | $213,830 | $213,830 | $178.38 | | |
| SD140GEN | SD #140 GENERAL 760 | 2.0646500647 | $213,830 | $213,830 | $441.48 | | |
| ST2 | STATE SCHOOL PART 2 600 | 0.8131451643 | $213,830 | $213,830 | $173.87 | | |
| STATESCHL | STATE SCHOOL 600 | 1.5158548041 | $213,830 | $213,830 | $324.14 | | |
| STREFUND | STATE REFUND LEVY 603 | 0.0000000000 | $213,830 | $213,830 | $0.00 | | |
| CWWBOND | C OF WW BOND 643 | 0.2760494372 | $213,830 | $213,830 | $59.03 | | |
| CWWGEN | CITY OF WW 631 | 1.6100204973 | $213,830 | $213,830 | $344.27 | | |
| CWWRFD | CITY OF WALLA WALLA REFUND 631 | 0.0000000000 | $213,830 | $213,830 | $0.00 | | |
| | Total Tax Rate: | 8.7973694689 | | | | | |
| | | | | Taxes w/Current Exemptions: | $1,881.15 | | |
| | | | | Taxes w/o Exemptions: | $1,881.15 | | |
Improvement / Building
| Improvement #1: | RESIDENTIAL | State Code: | 11 | 760.0 sqft | Value: | $156,940 |
| Exterior Wall: | SIDING | Heating/Cooling: | BASEBOARD ELECTRIC | | Number of Bathrooms: | 2 | Number of Bedrooms: | 2 | | Plumbing: | 10 | Roof Covering: | WOOD SHINGLE |
|
| | Type | Description | Class CD | Sub Class CD | Year Built | Area |
| | MA | Main Area | 1 | 30 | 1949 | 760.0 |
| | SI1 | SITE IMPROVEMENT | 1 | 30 | 1949 | 1.0 |
| | BASE | BASEMENT | 1 | 30 | 1949 | 720.0 |
| | BRF | BASEMENT - REC FINISH | 1 | 30 | 1949 | 530.0 |
| | RPS | PORCH W/STEPS,ROOF | 1 | 30 | 1949 | 16.0 |
| | CPC | COVERED CARPORT/PATIO | 1 | 30 | 1949 | 154.0 |
Sketch
Property Image
Land
| 1 | RES 1 | Converted: Residential | 0.1451 | 6321.00 | 0.00 | 0.00 | 1.00 | $56,890 | $0 |
Roll Value History
| 2025 | N/A | N/A | N/A | N/A | N/A |
| 2024 | $156,940 | $56,890 | $0 | $213,830 | $213,830 |
| 2023 | $156,940 | $56,890 | $0 | $213,830 | $213,830 |
| 2022 | $149,460 | $45,830 | $0 | $195,290 | $195,290 |
| 2021 | $124,550 | $45,830 | $0 | $170,380 | $170,380 |
| 2020 | $95,810 | $45,830 | $0 | $141,640 | $141,640 |
| 2019 | $95,810 | $45,830 | $0 | $141,640 | $141,640 |
| 2018 | $103,740 | $37,900 | $0 | $141,640 | $141,640 |
| 2017 | $103,740 | $37,900 | $0 | $141,640 | $141,640 |
| 2016 | $79,800 | $37,900 | $0 | $117,700 | $117,700 |
| 2015 | $79,800 | $37,900 | $0 | $117,700 | $117,700 |
| 2014 | $79,800 | $37,900 | $0 | $117,700 | $117,700 |
| 2013 | $79,800 | $37,900 | $0 | $117,700 | $117,700 |
| 2012 | $76,200 | $37,900 | $0 | $0 | $0 |
| 2011 | $76,200 | $37,900 | $0 | $0 | $0 |
| 2010 | $70,800 | $37,900 | $0 | $0 | $0 |
| 2009 | $82,900 | $37,900 | $0 | $0 | $0 |
| 2008 | $82,900 | $37,900 | $0 | $0 | $0 |
| 2007 | $62,600 | $19,000 | $0 | $0 | $0 |
| 2006 | $62,600 | $19,000 | $0 | $0 | $0 |
Deed and Sales History
| 1 | 04/22/2022 | SWD | STATUTORY WARRANTY DEED | MC ALAVY EDITH I | NESTEBY KENYA MARIE | | | $227,000.00 | 143823 | 2022-03465 |
| 2 | 10/16/2003 | WARRANTY D | WARRANTY DEED | ADAMS, ALICE A JOHNSON | MC ALAVY, EDITH I | | | $92,000.00 | 103286 | 2003-16011 |
| 3 | 10/16/2003 | QCD | QUIT CLAIM DEED | MC ALAVY, GUY E | MC ALAVY, EDITH I | | | | 103285 | 2003-16010 |
| 4 | 07/08/1982 | WARRANTY D | WARRANTY DEED | | | | | $35,250.00 | 0 | 1338-204899 |
Payout Agreement
| No payout information available.. |