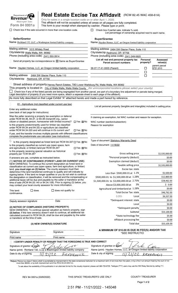
Property
Account |
| Property ID: | 9232 | Abbreviated Legal Description: | PARKSIDE LOT 5 BLK 2 |
| Parcel Number: | 360727500205 | Agent Code: | |
| Type: | Real | | |
| Tax Area: | 1 - OL-140-F | Land Use Code | 11 |
| Open Space: | N | DFL | N |
| Historic Property: | N | Remodel Property: | N |
| Multi-Family Redevelopment: | N | | |
| Township: | 7 | Section: | 27 |
| Range: | 36 |
Location |
| Address: | 518 SYCAMORE ST WA 99362 | Mapsco: | |
| Neighborhood: | A Res | Map ID: | |
| Neighborhood CD: | 613011 |
Owner |
| Name: | SMITH JOEL B | Owner ID: | 62511 |
| Mailing Address: | 518 SYCAMORE ST WALLA WALLA, WA 99362 | % Ownership: | 100.0000000000% |
| | | Exemptions: | |
Taxes and Assessment Details
Values
| (+) Improvement Homesite Value: | + | $0 | |
| (+) Improvement Non-Homesite Value: | + | $240,820 | |
| (+) Land Homesite Value: | + | $0 | |
| (+) Land Non-Homesite Value: | + | $58,290 | |
| (+) Curr Use (HS): | + | $0 | $0 |
| (+) Curr Use (NHS): | + | $0 | $0 |
| | | -------------------------- | |
| (=) Market Value: | = | $299,110 | |
| (–) Productivity Loss: | – | $0 | |
| | | -------------------------- | |
| (=) Subtotal: | = | $299,110 | |
| (+) Senior Appraised Value: | + | $0 | |
| (+) Non-Senior Appraised Value: | + | $299,110 | |
| | | -------------------------- | |
| (=) Total Appraised Value: | = | $299,110 | |
| (–) Senior Exemption Loss: | – | $0 | |
| (–) Exemption Loss: | – | $0 | |
| | | -------------------------- | |
| (=) Taxable Value: | = | $299,110 | |
Taxing Jurisdiction
| Owner: | SMITH JOEL B | | |
| % Ownership: | 100.0000000000% | | |
| Total Value: | $299,110 | | |
| Tax Area: | 1 - OL-140-F |
| CERFD | CURRENT EXPENSE REFUND 010 | 0.0000000000 | $299,110 | $299,110 | $0.00 | | |
| CURREXP | CURRENT EXPENSE 010 | 1.0175366760 | $299,110 | $299,110 | $304.36 | | |
| HUMNSERV | HUMAN SERVICES 119 | 0.0250000000 | $299,110 | $299,110 | $7.48 | | |
| SLDREL | SOLDIERS RELIEF 121 | 0.0155990005 | $299,110 | $299,110 | $4.67 | | |
| EMERGSER | EMS 147 | 0.3792580840 | $299,110 | $299,110 | $113.44 | | |
| EMSRFD | EMS REFUND 147 | 0.0000000000 | $299,110 | $299,110 | $0.00 | | |
| PORTRFD | PORT REFUND 640 | 0.0000000000 | $299,110 | $299,110 | $0.00 | | |
| PORTWWGEN | PORT OF WW 640 | 0.2460186015 | $299,110 | $299,110 | $73.59 | | |
| SD140BOND | SD #140 BOND 764 | 0.8342371393 | $299,110 | $299,110 | $249.53 | | |
| SD140GEN | SD #140 GENERAL 760 | 2.0646500647 | $299,110 | $299,110 | $617.56 | | |
| ST2 | STATE SCHOOL PART 2 600 | 0.8131451643 | $299,110 | $299,110 | $243.22 | | |
| STATESCHL | STATE SCHOOL 600 | 1.5158548041 | $299,110 | $299,110 | $453.41 | | |
| STREFUND | STATE REFUND LEVY 603 | 0.0000000000 | $299,110 | $299,110 | $0.00 | | |
| CWWBOND | C OF WW BOND 643 | 0.2760494372 | $299,110 | $299,110 | $82.57 | | |
| CWWGEN | CITY OF WW 631 | 1.6100204973 | $299,110 | $299,110 | $481.57 | | |
| CWWRFD | CITY OF WALLA WALLA REFUND 631 | 0.0000000000 | $299,110 | $299,110 | $0.00 | | |
| | Total Tax Rate: | 8.7973694689 | | | | | |
| | | | | Taxes w/Current Exemptions: | $2,631.40 | | |
| | | | | Taxes w/o Exemptions: | $2,631.40 | | |
Improvement / Building
| Improvement #1: | RESIDENTIAL | State Code: | 11 | 2388.0 sqft | Value: | $240,820 |
| Exterior Wall: | VINYL | Heating/Cooling: | BASEBOARD ELECTRIC | | Number of Bathrooms: | 4 | Number of Bedrooms: | 4 | | Plumbing: | 16 | Roof Covering: | COMP SHINGLE |
|
| | Type | Description | Class CD | Sub Class CD | Year Built | Area |
| | MA | Main Area | 4 | 25 | 1948 | 2388.0 |
| | UPFL | Upper Floor (included in main area) | 4 | 25 | 1948 | 620.0 |
| | SI1 | SITE IMPROVEMENT | 4 | 25 | 1948 | 1.5 |
| | BASE | BASEMENT | 4 | 25 | 1948 | 704.0 |
| | BPF | BASEMENT -PARTITIONED FINISH | 4 | 25 | 1948 | 704.0 |
| | RPO | OPEN PORCH W/ROOF | 4 | 25 | 1948 | 88.0 |
| | CPC | COVERED CARPORT/PATIO | 4 | 25 | 1948 | 100.0 |
Sketch
Property Image
Land
| 1 | RES 1 | Converted: Residential | 0.1487 | 6477.00 | 0.00 | 0.00 | 1.00 | $58,290 | $0 |
Roll Value History
| 2025 | N/A | N/A | N/A | N/A | N/A |
| 2024 | $240,820 | $58,290 | $0 | $299,110 | $299,110 |
| 2023 | $240,820 | $58,290 | $0 | $299,110 | $299,110 |
| 2022 | $229,350 | $46,960 | $0 | $276,310 | $276,310 |
| 2021 | $191,130 | $46,960 | $0 | $238,090 | $238,090 |
| 2020 | $136,520 | $46,960 | $0 | $183,480 | $183,480 |
| 2019 | $136,520 | $46,960 | $0 | $183,480 | $183,480 |
| 2018 | $144,580 | $38,900 | $0 | $183,480 | $183,480 |
| 2017 | $144,580 | $38,900 | $0 | $183,480 | $183,480 |
| 2016 | $131,440 | $38,900 | $0 | $170,340 | $170,340 |
| 2015 | $125,180 | $38,900 | $0 | $164,080 | $164,080 |
| 2014 | $113,800 | $38,900 | $0 | $152,700 | $152,700 |
| 2013 | $113,800 | $38,900 | $0 | $152,700 | $152,700 |
| 2012 | $113,800 | $38,900 | $0 | $0 | $0 |
| 2011 | $106,900 | $38,900 | $0 | $0 | $0 |
| 2010 | $106,900 | $38,900 | $0 | $0 | $0 |
| 2009 | $123,100 | $38,900 | $0 | $0 | $0 |
| 2008 | $123,100 | $38,900 | $0 | $0 | $0 |
| 2007 | $86,600 | $19,400 | $0 | $0 | $0 |
| 2006 | $86,600 | $19,400 | $0 | $0 | $0 |
Deed and Sales History
| 1 | 01/30/2018 | SWD | STATUTORY WARRANTY DEED | MURPHY ROBERT | SMITH JOEL B | | | $166,000.00 | 134063 | 2018-00810 |
| 2 | 11/29/1984 | WARRANTY D | WARRANTY DEED | | | | | $35,000.00 | 0 | 1478-408076 |
Payout Agreement
| No payout information available.. |