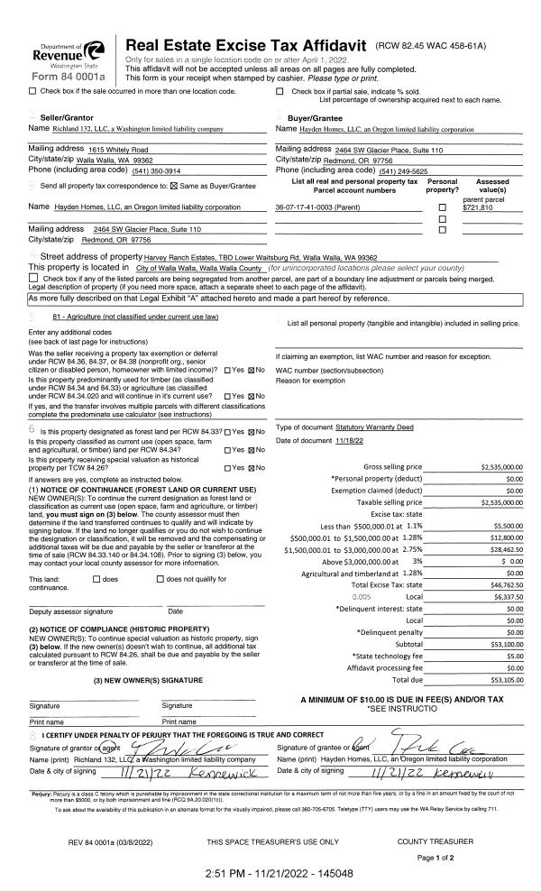
Property
Account |
| Property ID: | 9200 | Abbreviated Legal Description: | 27-7-36 TAX 35B |
| Parcel Number: | 360727330035 | Agent Code: | |
| Type: | Real | | |
| Tax Area: | 105 - 140-F-4 | Land Use Code | 11 |
| Open Space: | N | DFL | N |
| Historic Property: | N | Remodel Property: | N |
| Multi-Family Redevelopment: | N | | |
| Township: | 7 | Section: | 27 |
| Range: | 36 |
Location |
| Address: | 1543 SHELTON RD WA 99362 | Mapsco: | |
| Neighborhood: | G Res Rural/City Inf | Map ID: | |
| Neighborhood CD: | 614012 |
Owner |
| Name: | DAVIN CANDICE | Owner ID: | 68312 |
| Mailing Address: | 1543 SHELTON RD WALLA WALLA, WA 99362 | % Ownership: | 100.0000000000% |
| | | Exemptions: | |
Taxes and Assessment Details
Values
| (+) Improvement Homesite Value: | + | $0 | |
| (+) Improvement Non-Homesite Value: | + | $328,540 | |
| (+) Land Homesite Value: | + | $0 | |
| (+) Land Non-Homesite Value: | + | $126,050 | |
| (+) Curr Use (HS): | + | $0 | $0 |
| (+) Curr Use (NHS): | + | $0 | $0 |
| | | -------------------------- | |
| (=) Market Value: | = | $454,590 | |
| (–) Productivity Loss: | – | $0 | |
| | | -------------------------- | |
| (=) Subtotal: | = | $454,590 | |
| (+) Senior Appraised Value: | + | $0 | |
| (+) Non-Senior Appraised Value: | + | $454,590 | |
| | | -------------------------- | |
| (=) Total Appraised Value: | = | $454,590 | |
| (–) Senior Exemption Loss: | – | $0 | |
| (–) Exemption Loss: | – | $0 | |
| | | -------------------------- | |
| (=) Taxable Value: | = | $454,590 | |
Taxing Jurisdiction
| Owner: | DAVIN CANDICE | | |
| % Ownership: | 100.0000000000% | | |
| Total Value: | $454,590 | | |
| Tax Area: | 105 - 140-F-4 |
| CERFD | CURRENT EXPENSE REFUND 010 | 0.0000000000 | $454,590 | $454,590 | $0.00 | | |
| CURREXP | CURRENT EXPENSE 010 | 1.0175366760 | $454,590 | $454,590 | $462.56 | | |
| HUMNSERV | HUMAN SERVICES 119 | 0.0250000000 | $454,590 | $454,590 | $11.36 | | |
| SLDREL | SOLDIERS RELIEF 121 | 0.0155990005 | $454,590 | $454,590 | $7.09 | | |
| EMERGSER | EMS 147 | 0.3792580840 | $454,590 | $454,590 | $172.41 | | |
| EMSRFD | EMS REFUND 147 | 0.0000000000 | $454,590 | $454,590 | $0.00 | | |
| FD4EXP | FD #4 EXPENSE 686 | 0.8836993059 | $454,590 | $454,590 | $401.72 | | |
| RLBRFD | RURAL LIBRARY REFUND 623 | 0.0000000000 | $454,590 | $454,590 | $0.00 | | |
| RURALLIB | RURAL LIBRARY 623 | 0.3710609029 | $454,590 | $454,590 | $168.68 | | |
| PORTRFD | PORT REFUND 640 | 0.0000000000 | $454,590 | $454,590 | $0.00 | | |
| PORTWWGEN | PORT OF WW 640 | 0.2460186015 | $454,590 | $454,590 | $111.84 | | |
| SD140BOND | SD #140 BOND 764 | 0.8342371393 | $454,590 | $454,590 | $379.24 | | |
| SD140GEN | SD #140 GENERAL 760 | 2.0646500647 | $454,590 | $454,590 | $938.57 | | |
| ST2 | STATE SCHOOL PART 2 600 | 0.8131451643 | $454,590 | $454,590 | $369.65 | | |
| STATESCHL | STATE SCHOOL 600 | 1.5158548041 | $454,590 | $454,590 | $689.09 | | |
| STREFUND | STATE REFUND LEVY 603 | 0.0000000000 | $454,590 | $454,590 | $0.00 | | |
| COROAD | COUNTY ROAD 115 | 1.6549953990 | $454,590 | $454,590 | $752.34 | | |
| CRPRD | COUNTY ROAD REFUND 115 | 0.0000000000 | $454,590 | $454,590 | $0.00 | | |
| | Total Tax Rate: | 9.8210551422 | | | | | |
| | | | | Taxes w/Current Exemptions: | $4,464.55 | | |
| | | | | Taxes w/o Exemptions: | $4,464.55 | | |
Improvement / Building
| Improvement #1: | RESIDENTIAL | State Code: | 11 | 2164.0 sqft | Value: | $328,540 |
| Exterior Wall: | SIDING | Heating/Cooling: | WARM & COOLED AIR | | Number of Bathrooms: | 3 | Number of Bedrooms: | 4 | | Plumbing: | 11 | Roof Covering: | COMP SHINGLE |
|
| | Type | Description | Class CD | Sub Class CD | Year Built | Area |
| | MA | Main Area | 4 | 30 | 1957 | 2164.0 |
| | UPFL | Upper Floor (included in main area) | 4 | 30 | 1957 | 624.0 |
| | SI1 | SITE IMPROVEMENT | 4 | 30 | 1957 | 2.0 |
| | S1F | Single One Story Fireplace | 4 | 30 | 1957 | 1.0 |
| | RPO | OPEN PORCH W/ROOF | 4 | 30 | 1957 | 40.0 |
| | CPC | COVERED CARPORT/PATIO | 4 | 30 | 1957 | 464.0 |
| | ATG | Attached Garage | 4 | 30 | 1957 | 576.0 |
| | BARN | BARN-AVE | 4 | 30 | 1957 | 192.0 |
Sketch
Property Image
Land
| 1 | RES 1 | Converted: Residential | 0.4200 | 18295.00 | 0.00 | 0.00 | 1.00 | $126,050 | $0 |
Roll Value History
| 2025 | N/A | N/A | N/A | N/A | N/A |
| 2024 | $344,960 | $126,050 | $0 | $471,010 | $471,010 |
| 2023 | $328,540 | $126,050 | $0 | $454,590 | $454,590 |
| 2022 | $328,540 | $103,180 | $0 | $431,720 | $431,720 |
| 2021 | $234,670 | $103,180 | $0 | $337,850 | $337,850 |
| 2020 | $167,620 | $103,180 | $0 | $270,800 | $270,800 |
| 2019 | $167,620 | $103,180 | $0 | $270,800 | $270,800 |
| 2018 | $185,560 | $54,200 | $0 | $239,760 | $239,760 |
| 2017 | $176,720 | $54,200 | $0 | $230,920 | $230,920 |
| 2016 | $153,670 | $54,200 | $0 | $207,870 | $207,870 |
| 2015 | $139,700 | $54,200 | $0 | $193,900 | $193,900 |
| 2014 | $139,700 | $54,200 | $0 | $193,900 | $193,900 |
| 2013 | $139,700 | $54,200 | $0 | $193,900 | $193,900 |
| 2012 | $127,900 | $54,200 | $0 | $0 | $0 |
| 2011 | $127,900 | $54,200 | $0 | $0 | $0 |
| 2010 | $131,600 | $54,200 | $0 | $0 | $0 |
| 2009 | $152,200 | $54,200 | $0 | $0 | $0 |
| 2008 | $152,200 | $54,200 | $0 | $0 | $0 |
| 2007 | $112,700 | $31,700 | $0 | $0 | $0 |
| 2006 | $112,700 | $31,700 | $0 | $0 | $0 |
Deed and Sales History
| 1 | 11/18/2020 | QCD | QUIT CLAIM DEED | DAVIN JACOB & CANDICE | DAVIN CANDICE | | | | 140369 | 2020-12190 |
| 2 | 07/27/2016 | SWD | STATUTORY WARRANTY DEED | ZEHNER KIRK & KARI | DAVIN JACOB & CANDICE | | | $249,000.00 | 130702 | 2016-05885 |
| 3 | 07/21/2005 | WARRANTY D | WARRANTY DEED | MC KINNEY, ROBERT M & KRISTY L | ZEHNER, KIRK & KARI | | | $204,000.00 | 108018 | 2005-08858 |
Payout Agreement
| No payout information available.. |