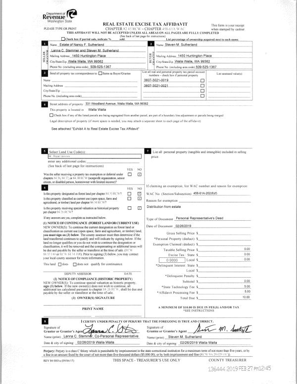
Property
Account |
| Property ID: | 9153 | Abbreviated Legal Description: | 27-7-36 TAX 18B |
| Parcel Number: | 360727230011 | Agent Code: | |
| Type: | Real | | |
| Tax Area: | 105 - 140-F-4 | Land Use Code | 11 |
| Open Space: | N | DFL | N |
| Historic Property: | N | Remodel Property: | N |
| Multi-Family Redevelopment: | N | | |
| Township: | 7 | Section: | 27 |
| Range: | 36 |
Location |
| Address: | 1137 ANKENY ST WA 99362 | Mapsco: | |
| Neighborhood: | A Res | Map ID: | |
| Neighborhood CD: | 613011 |
Owner |
| Name: | HOPKINS SUSAN G | Owner ID: | 46745 |
| Mailing Address: | 1137 ANKENY ST WALLA WALLA, WA 99362 | % Ownership: | 100.0000000000% |
| | | Exemptions: | |
Taxes and Assessment Details
Values
| (+) Improvement Homesite Value: | + | $0 | |
| (+) Improvement Non-Homesite Value: | + | $286,430 | |
| (+) Land Homesite Value: | + | $0 | |
| (+) Land Non-Homesite Value: | + | $86,250 | |
| (+) Curr Use (HS): | + | $0 | $0 |
| (+) Curr Use (NHS): | + | $0 | $0 |
| | | -------------------------- | |
| (=) Market Value: | = | $372,680 | |
| (–) Productivity Loss: | – | $0 | |
| | | -------------------------- | |
| (=) Subtotal: | = | $372,680 | |
| (+) Senior Appraised Value: | + | $0 | |
| (+) Non-Senior Appraised Value: | + | $372,680 | |
| | | -------------------------- | |
| (=) Total Appraised Value: | = | $372,680 | |
| (–) Senior Exemption Loss: | – | $0 | |
| (–) Exemption Loss: | – | $0 | |
| | | -------------------------- | |
| (=) Taxable Value: | = | $372,680 | |
Taxing Jurisdiction
| Owner: | HOPKINS SUSAN G | | |
| % Ownership: | 100.0000000000% | | |
| Total Value: | $372,680 | | |
| Tax Area: | 105 - 140-F-4 |
| CERFD | CURRENT EXPENSE REFUND 010 | 0.0000000000 | $372,680 | $372,680 | $0.00 | | |
| CURREXP | CURRENT EXPENSE 010 | 1.0175366760 | $372,680 | $372,680 | $379.22 | | |
| HUMNSERV | HUMAN SERVICES 119 | 0.0250000000 | $372,680 | $372,680 | $9.32 | | |
| SLDREL | SOLDIERS RELIEF 121 | 0.0155990005 | $372,680 | $372,680 | $5.81 | | |
| EMERGSER | EMS 147 | 0.3792580840 | $372,680 | $372,680 | $141.34 | | |
| EMSRFD | EMS REFUND 147 | 0.0000000000 | $372,680 | $372,680 | $0.00 | | |
| FD4EXP | FD #4 EXPENSE 686 | 0.8836993059 | $372,680 | $372,680 | $329.34 | | |
| RLBRFD | RURAL LIBRARY REFUND 623 | 0.0000000000 | $372,680 | $372,680 | $0.00 | | |
| RURALLIB | RURAL LIBRARY 623 | 0.3710609029 | $372,680 | $372,680 | $138.29 | | |
| PORTRFD | PORT REFUND 640 | 0.0000000000 | $372,680 | $372,680 | $0.00 | | |
| PORTWWGEN | PORT OF WW 640 | 0.2460186015 | $372,680 | $372,680 | $91.69 | | |
| SD140BOND | SD #140 BOND 764 | 0.8342371393 | $372,680 | $372,680 | $310.90 | | |
| SD140GEN | SD #140 GENERAL 760 | 2.0646500647 | $372,680 | $372,680 | $769.45 | | |
| ST2 | STATE SCHOOL PART 2 600 | 0.8131451643 | $372,680 | $372,680 | $303.04 | | |
| STATESCHL | STATE SCHOOL 600 | 1.5158548041 | $372,680 | $372,680 | $564.93 | | |
| STREFUND | STATE REFUND LEVY 603 | 0.0000000000 | $372,680 | $372,680 | $0.00 | | |
| COROAD | COUNTY ROAD 115 | 1.6549953990 | $372,680 | $372,680 | $616.78 | | |
| CRPRD | COUNTY ROAD REFUND 115 | 0.0000000000 | $372,680 | $372,680 | $0.00 | | |
| | Total Tax Rate: | 9.8210551422 | | | | | |
| | | | | Taxes w/Current Exemptions: | $3,660.11 | | |
| | | | | Taxes w/o Exemptions: | $3,660.11 | | |
Improvement / Building
| Improvement #1: | RESIDENTIAL | State Code: | 11 | 1758.0 sqft | Value: | $286,430 |
| Exterior Wall: | PLYWOOD | Foundation: | SLAB FOUNDATION | | Heating/Cooling: | WARM & COOLED AIR | Number of Bathrooms: | 2.5 | | Number of Bedrooms: | 3 | Plumbing: | 13 | | Roof Covering: | COMP SHINGLE |   |   |
|
| | Type | Description | Class CD | Sub Class CD | Year Built | Area |
| | MA | Main Area | 1 | 30 | 1971 | 1758.0 |
| | SI1 | SITE IMPROVEMENT | 1 | 30 | 1971 | 1.5 |
| | RPO | OPEN PORCH W/ROOF | 1 | 30 | 1971 | 16.0 |
| | ATG | Attached Garage | 1 | 30 | 1971 | 648.0 |
| | TOOL | TOOL SHED | 1 | 30 | 1971 | 168.0 |
Sketch
Property Image
Land
| 1 | RES 1 | Converted: Residential | 0.2200 | 9583.00 | 0.00 | 0.00 | 1.00 | $86,250 | $0 |
Roll Value History
| 2025 | N/A | N/A | N/A | N/A | N/A |
| 2024 | $286,430 | $86,250 | $0 | $372,680 | $372,680 |
| 2023 | $286,430 | $86,250 | $0 | $372,680 | $372,680 |
| 2022 | $272,790 | $69,480 | $0 | $342,270 | $342,270 |
| 2021 | $218,230 | $69,480 | $0 | $287,710 | $287,710 |
| 2020 | $155,880 | $69,480 | $0 | $225,360 | $225,360 |
| 2019 | $155,880 | $69,480 | $0 | $225,360 | $225,360 |
| 2018 | $161,920 | $46,800 | $0 | $208,720 | $208,720 |
| 2017 | $140,800 | $46,800 | $0 | $187,600 | $187,600 |
| 2016 | $128,000 | $46,800 | $0 | $174,800 | $174,800 |
| 2015 | $121,910 | $46,800 | $0 | $168,710 | $168,710 |
| 2014 | $116,100 | $46,800 | $0 | $162,900 | $162,900 |
| 2013 | $116,100 | $46,800 | $0 | $162,900 | $162,900 |
| 2012 | $116,100 | $46,800 | $0 | $0 | $0 |
| 2011 | $116,100 | $46,800 | $0 | $0 | $0 |
| 2010 | $101,300 | $46,800 | $0 | $0 | $0 |
| 2009 | $117,700 | $46,800 | $0 | $0 | $0 |
| 2008 | $117,700 | $46,800 | $0 | $0 | $0 |
| 2007 | $93,200 | $24,300 | $0 | $0 | $0 |
| 2006 | $93,200 | $24,300 | $0 | $0 | $0 |
Deed and Sales History
| 1 | 01/25/2019 | SWD | STATUTORY WARRANTY DEED | GILL THOMAS K & EMMA JEAN M | HOPKINS SUSAN G | | | $235,000.00 | 136300 | 2019-00529 |
| 2 | 10/19/2017 | QCD | QUIT CLAIM DEED | GILL THOMAS K | GILL THOMAS K & EMMA JEAN M | | | $0.00 | 133445 | 2017-08351 |
| 3 | 10/17/2017 | DEATH CERT | DEATH CERTIFICATE | GILL ELLEN IRENE | | | | | 0 | 2017-08236 |
| 4 | | COMMUNITY | COMMUNITY PROPERTY AGREEMENT | GILL THOMAS K & ELLEN I | GILL THOMAS K & ELLEN I | | | | 0 | 1983-00143 |
| 5 | 07/26/1976 | WARRANTY D | WARRANTY DEED | | | | | $34,750.00 | 0 | 4505-56246 |
Payout Agreement
| No payout information available.. |