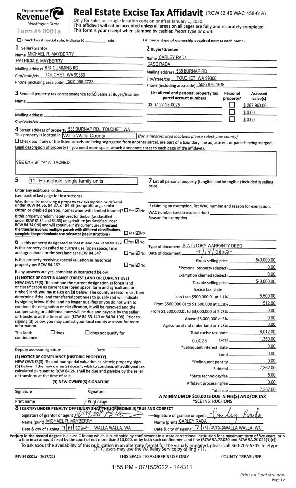
Property
Account |
| Property ID: | 9069 | Abbreviated Legal Description: | SUN BAR LOT 4 BLK 4 |
| Parcel Number: | 360722570404 | Agent Code: | |
| Type: | Real | | |
| Tax Area: | 1 - OL-140-F | Land Use Code | 11 |
| Open Space: | N | DFL | N |
| Historic Property: | N | Remodel Property: | N |
| Multi-Family Redevelopment: | N | | |
| Township: | 7 | Section: | 22 |
| Range: | 36 |
Location |
| Address: | 1845 WHITMAN ST WA 99362 | Mapsco: | |
| Neighborhood: | A SFR | Map ID: | |
| Neighborhood CD: | 413011 |
Owner |
| Name: | FLETCHER LYLE GLENN & KARALEEN D | Owner ID: | 70585 |
| Mailing Address: | 1845 WHITMAN ST WALLA WALLA, WA 99362 | % Ownership: | 100.0000000000% |
| | | Exemptions: | |
Taxes and Assessment Details
Values
| (+) Improvement Homesite Value: | + | $0 | |
| (+) Improvement Non-Homesite Value: | + | $374,950 | |
| (+) Land Homesite Value: | + | $0 | |
| (+) Land Non-Homesite Value: | + | $76,800 | |
| (+) Curr Use (HS): | + | $0 | $0 |
| (+) Curr Use (NHS): | + | $0 | $0 |
| | | -------------------------- | |
| (=) Market Value: | = | $451,750 | |
| (–) Productivity Loss: | – | $0 | |
| | | -------------------------- | |
| (=) Subtotal: | = | $451,750 | |
| (+) Senior Appraised Value: | + | $0 | |
| (+) Non-Senior Appraised Value: | + | $451,750 | |
| | | -------------------------- | |
| (=) Total Appraised Value: | = | $451,750 | |
| (–) Senior Exemption Loss: | – | $0 | |
| (–) Exemption Loss: | – | $0 | |
| | | -------------------------- | |
| (=) Taxable Value: | = | $451,750 | |
Taxing Jurisdiction
| Owner: | FLETCHER LYLE GLENN & KARALEEN D | | |
| % Ownership: | 100.0000000000% | | |
| Total Value: | $451,750 | | |
| Tax Area: | 1 - OL-140-F |
| CERFD | CURRENT EXPENSE REFUND 010 | 0.0000000000 | $451,750 | $451,750 | $0.00 | | |
| CURREXP | CURRENT EXPENSE 010 | 1.0175366760 | $451,750 | $451,750 | $459.67 | | |
| HUMNSERV | HUMAN SERVICES 119 | 0.0250000000 | $451,750 | $451,750 | $11.29 | | |
| SLDREL | SOLDIERS RELIEF 121 | 0.0155990005 | $451,750 | $451,750 | $7.05 | | |
| EMERGSER | EMS 147 | 0.3792580840 | $451,750 | $451,750 | $171.33 | | |
| EMSRFD | EMS REFUND 147 | 0.0000000000 | $451,750 | $451,750 | $0.00 | | |
| PORTRFD | PORT REFUND 640 | 0.0000000000 | $451,750 | $451,750 | $0.00 | | |
| PORTWWGEN | PORT OF WW 640 | 0.2460186015 | $451,750 | $451,750 | $111.14 | | |
| SD140BOND | SD #140 BOND 764 | 0.8342371393 | $451,750 | $451,750 | $376.87 | | |
| SD140GEN | SD #140 GENERAL 760 | 2.0646500647 | $451,750 | $451,750 | $932.71 | | |
| ST2 | STATE SCHOOL PART 2 600 | 0.8131451643 | $451,750 | $451,750 | $367.34 | | |
| STATESCHL | STATE SCHOOL 600 | 1.5158548041 | $451,750 | $451,750 | $684.79 | | |
| STREFUND | STATE REFUND LEVY 603 | 0.0000000000 | $451,750 | $451,750 | $0.00 | | |
| CWWBOND | C OF WW BOND 643 | 0.2760494372 | $451,750 | $451,750 | $124.71 | | |
| CWWGEN | CITY OF WW 631 | 1.6100204973 | $451,750 | $451,750 | $727.33 | | |
| CWWRFD | CITY OF WALLA WALLA REFUND 631 | 0.0000000000 | $451,750 | $451,750 | $0.00 | | |
| | Total Tax Rate: | 8.7973694689 | | | | | |
| | | | | Taxes w/Current Exemptions: | $3,974.23 | | |
| | | | | Taxes w/o Exemptions: | $3,974.23 | | |
Improvement / Building
| Improvement #1: | RESIDENTIAL | State Code: | 11 | 1484.0 sqft | Value: | $374,950 |
| Exterior Wall: | CEMENT FIBER | Heating/Cooling: | WARM & COOLED AIR | | Number of Bathrooms: | 2 | Number of Bedrooms: | 4 | | Plumbing: | 9 | Roof Covering: | COMP SHINGLE |
|
| | Type | Description | Class CD | Sub Class CD | Year Built | Area |
| | MA | Main Area | 4 | 35 | 1979 | 1484.0 |
| | UPFL | Upper Floor (included in main area) | 4 | 35 | 1979 | 539.0 |
| | SI1 | SITE IMPROVEMENT | 4 | 35 | 1979 | 4.0 |
| | S1F | Single One Story Fireplace | 4 | 35 | 1979 | 1.0 |
| | OPS | OPEN PORCH W/STEPS | 4 | 35 | 1979 | 16.0 |
| | BONU | BONUS ROOM W/FINISH | 4 | 35 | 0 | 512.0 |
| | ATG | Attached Garage | 4 | 35 | 1979 | 500.0 |
| | DTG | Detached Garage | 4 | 35 | 1979 | 768.0 |
| | WOD | Wood Deck | 4 | 35 | 2019 | 160.0 |
| | EWS | EXT WOOD STAIRS | 4 | 35 | 2019 | 1.0 |
Sketch
Property Image
Land
| 1 | RES 1 | Converted: Residential | 0.2204 | 9600.00 | 0.00 | 0.00 | 1.00 | $76,800 | $0 |
Roll Value History
| 2025 | N/A | N/A | N/A | N/A | N/A |
| 2024 | $374,950 | $76,800 | $0 | $451,750 | $451,750 |
| 2023 | $374,950 | $76,800 | $0 | $451,750 | $451,750 |
| 2022 | $397,450 | $50,400 | $0 | $447,850 | $447,850 |
| 2021 | $235,180 | $50,400 | $0 | $285,580 | $285,580 |
| 2020 | $204,500 | $50,400 | $0 | $254,900 | $254,900 |
| 2019 | $204,500 | $50,400 | $0 | $254,900 | $254,900 |
| 2018 | $177,600 | $50,400 | $0 | $228,000 | $228,000 |
| 2017 | $161,460 | $50,400 | $0 | $211,860 | $211,860 |
| 2016 | $167,440 | $38,400 | $0 | $205,840 | $205,840 |
| 2015 | $167,440 | $38,400 | $0 | $205,840 | $205,840 |
| 2014 | $128,800 | $38,400 | $0 | $167,200 | $167,200 |
| 2013 | $128,800 | $38,400 | $0 | $167,200 | $167,200 |
| 2012 | $128,800 | $38,400 | $0 | $0 | $0 |
| 2011 | $133,900 | $38,400 | $0 | $0 | $0 |
| 2010 | $133,900 | $38,400 | $0 | $0 | $0 |
| 2009 | $153,000 | $38,400 | $0 | $0 | $0 |
| 2008 | $153,000 | $38,400 | $0 | $0 | $0 |
| 2007 | $153,000 | $38,400 | $0 | $0 | $0 |
| 2006 | $138,300 | $19,000 | $0 | $0 | $0 |
Deed and Sales History
| 1 | 11/01/2021 | QCD | QUIT CLAIM DEED | FLETCHER LYLE G | FLETCHER LYLE GLENN & KARALEEN D | | | $0.00 | 142826 | 2021-13336 |
| 2 | 05/20/2005 | WARRANTY D | WARRANTY DEED | FLETCHER, KARALEEN | FLETCHER, LYLE G | | | | 0 | 04-3--00323-1 |
| 3 | 11/13/2000 | WARRANTY D | WARRANTY DEED | | | | | $127,900.00 | 96158 | 3040-010829 |
Payout Agreement
| No payout information available.. |