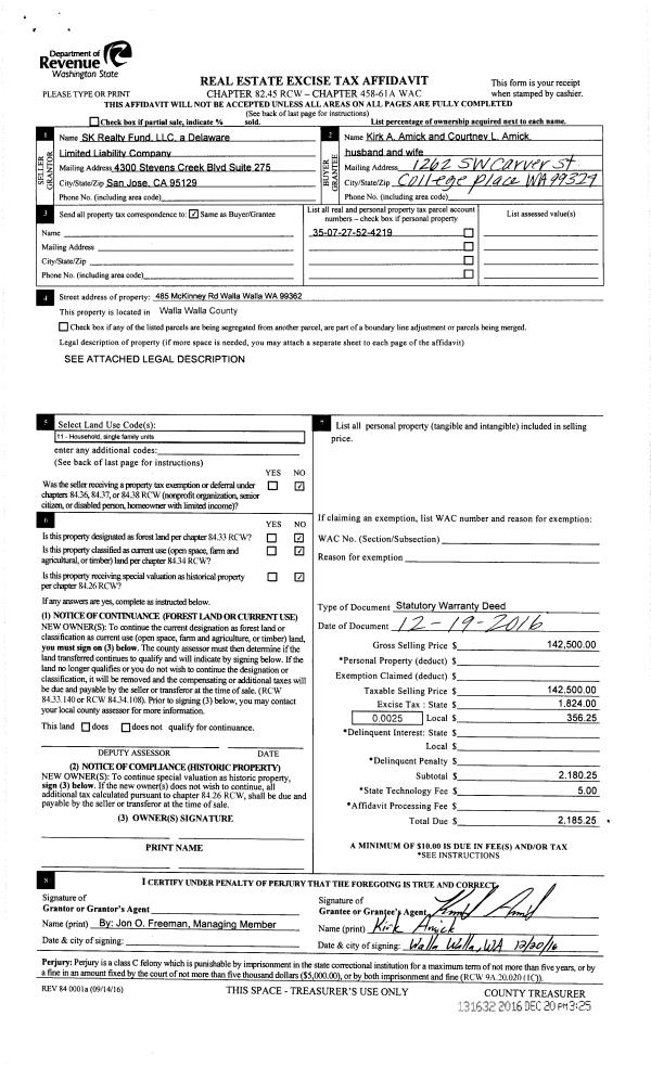
Property
Account |
| Property ID: | 9066 | Abbreviated Legal Description: | SUN BAR LOT 7 BLK 3 |
| Parcel Number: | 360722570307 | Agent Code: | |
| Type: | Real | | |
| Tax Area: | 1 - OL-140-F | Land Use Code | 11 |
| Open Space: | N | DFL | N |
| Historic Property: | N | Remodel Property: | N |
| Multi-Family Redevelopment: | N | | |
| Township: | 7 | Section: | 22 |
| Range: | 36 |
Location |
| Address: | 490 SHICK ST WA 99362 | Mapsco: | |
| Neighborhood: | A SFR | Map ID: | |
| Neighborhood CD: | 413011 |
Owner |
| Name: | HEIN TROY E | Owner ID: | 71082 |
| Mailing Address: | 490 SHICK ST WALLA WALLA, WA 99362 | % Ownership: | 100.0000000000% |
| | | Exemptions: | |
Taxes and Assessment Details
Values
| (+) Improvement Homesite Value: | + | $0 | |
| (+) Improvement Non-Homesite Value: | + | $397,030 | |
| (+) Land Homesite Value: | + | $0 | |
| (+) Land Non-Homesite Value: | + | $78,720 | |
| (+) Curr Use (HS): | + | $0 | $0 |
| (+) Curr Use (NHS): | + | $0 | $0 |
| | | -------------------------- | |
| (=) Market Value: | = | $475,750 | |
| (–) Productivity Loss: | – | $0 | |
| | | -------------------------- | |
| (=) Subtotal: | = | $475,750 | |
| (+) Senior Appraised Value: | + | $0 | |
| (+) Non-Senior Appraised Value: | + | $475,750 | |
| | | -------------------------- | |
| (=) Total Appraised Value: | = | $475,750 | |
| (–) Senior Exemption Loss: | – | $0 | |
| (–) Exemption Loss: | – | $0 | |
| | | -------------------------- | |
| (=) Taxable Value: | = | $475,750 | |
Taxing Jurisdiction
| Owner: | HEIN TROY E | | |
| % Ownership: | 100.0000000000% | | |
| Total Value: | $475,750 | | |
| Tax Area: | 1 - OL-140-F |
| CERFD | CURRENT EXPENSE REFUND 010 | 0.0000000000 | $475,750 | $475,750 | $0.00 | | |
| CURREXP | CURRENT EXPENSE 010 | 1.0175366760 | $475,750 | $475,750 | $484.09 | | |
| HUMNSERV | HUMAN SERVICES 119 | 0.0250000000 | $475,750 | $475,750 | $11.89 | | |
| SLDREL | SOLDIERS RELIEF 121 | 0.0155990005 | $475,750 | $475,750 | $7.42 | | |
| EMERGSER | EMS 147 | 0.3792580840 | $475,750 | $475,750 | $180.43 | | |
| EMSRFD | EMS REFUND 147 | 0.0000000000 | $475,750 | $475,750 | $0.00 | | |
| PORTRFD | PORT REFUND 640 | 0.0000000000 | $475,750 | $475,750 | $0.00 | | |
| PORTWWGEN | PORT OF WW 640 | 0.2460186015 | $475,750 | $475,750 | $117.04 | | |
| SD140BOND | SD #140 BOND 764 | 0.8342371393 | $475,750 | $475,750 | $396.89 | | |
| SD140GEN | SD #140 GENERAL 760 | 2.0646500647 | $475,750 | $475,750 | $982.26 | | |
| ST2 | STATE SCHOOL PART 2 600 | 0.8131451643 | $475,750 | $475,750 | $386.85 | | |
| STATESCHL | STATE SCHOOL 600 | 1.5158548041 | $475,750 | $475,750 | $721.17 | | |
| STREFUND | STATE REFUND LEVY 603 | 0.0000000000 | $475,750 | $475,750 | $0.00 | | |
| CWWBOND | C OF WW BOND 643 | 0.2760494372 | $475,750 | $475,750 | $131.33 | | |
| CWWGEN | CITY OF WW 631 | 1.6100204973 | $475,750 | $475,750 | $765.97 | | |
| CWWRFD | CITY OF WALLA WALLA REFUND 631 | 0.0000000000 | $475,750 | $475,750 | $0.00 | | |
| | Total Tax Rate: | 8.7973694689 | | | | | |
| | | | | Taxes w/Current Exemptions: | $4,185.34 | | |
| | | | | Taxes w/o Exemptions: | $4,185.34 | | |
Improvement / Building
| Improvement #1: | RESIDENTIAL | State Code: | 11 | 1792.0 sqft | Value: | $397,030 |
| Exterior Wall: | PLYWOOD | Foundation: | SLAB FOUNDATION | | Heating/Cooling: | MINI-SPLIT HP SYSTEM | Number of Bathrooms: | 2.5 | | Number of Bedrooms: | 4 | Plumbing: | 14 | | Roof Covering: | COMP SHINGLE |   |   |
|
| | Type | Description | Class CD | Sub Class CD | Year Built | Area |
| | MA | Main Area | 3 | 40 | 1986 | 1792.0 |
| | SI1 | SITE IMPROVEMENT | 3 | 40 | 0 | 5.0 |
| | OPS | OPEN PORCH W/STEPS | 3 | 40 | 1986 | 48.0 |
| | WOD | Wood Deck | 3 | 40 | 1986 | 280.0 |
| | ATG | Attached Garage | 3 | 40 | 1986 | 576.0 |
| | UPFL | Upper Floor (included in main area) | 3 | 40 | 1986 | 672.0 |
| | GFP | GAS FIREPLACE | 3 | 40 | 1986 | 1.0 |
| | TOOL | TOOL SHED | 2 | 40 | 1986 | 392.0 |
Sketch
Property Image
Land
| 1 | RES 1 | Converted: Residential | 0.2259 | 9840.00 | 0.00 | 0.00 | 1.00 | $78,720 | $0 |
Roll Value History
| 2025 | N/A | N/A | N/A | N/A | N/A |
| 2024 | $397,030 | $78,720 | $0 | $475,750 | $475,750 |
| 2023 | $397,030 | $78,720 | $0 | $475,750 | $475,750 |
| 2022 | $377,920 | $51,660 | $0 | $429,580 | $429,580 |
| 2021 | $209,960 | $51,660 | $0 | $261,620 | $261,620 |
| 2020 | $199,960 | $51,660 | $0 | $251,620 | $251,620 |
| 2019 | $199,960 | $51,660 | $0 | $251,620 | $251,620 |
| 2018 | $181,780 | $51,660 | $0 | $233,440 | $233,440 |
| 2017 | $173,120 | $51,660 | $0 | $224,780 | $224,780 |
| 2016 | $173,120 | $39,400 | $0 | $212,520 | $212,520 |
| 2015 | $164,880 | $39,400 | $0 | $204,280 | $204,280 |
| 2014 | $137,400 | $39,400 | $0 | $176,800 | $176,800 |
| 2013 | $137,400 | $39,400 | $0 | $176,800 | $176,800 |
| 2012 | $129,000 | $39,400 | $0 | $0 | $0 |
| 2011 | $130,700 | $39,400 | $0 | $0 | $0 |
| 2010 | $130,700 | $39,400 | $0 | $0 | $0 |
| 2009 | $139,600 | $39,400 | $0 | $0 | $0 |
| 2008 | $139,600 | $39,400 | $0 | $0 | $0 |
| 2007 | $139,600 | $39,400 | $0 | $0 | $0 |
| 2006 | $111,500 | $19,000 | $0 | $0 | $0 |
Deed and Sales History
| 1 | 02/02/2022 | SWD | STATUTORY WARRANTY DEED | FONDAHN JOSEPH A & EKATERINA S | HEIN TROY E | | | $505,000.00 | 143337 | 2022-01008 |
| 2 | 04/30/2019 | SWD | STATUTORY WARRANTY DEED | SVOBODA CHERYL | FONDAHN JOSEPH A & EKATERINA S | | | $260,000.00 | 136790 | 2019-02808 |
| 3 | 12/23/2016 | SWD | STATUTORY WARRANTY DEED | BURR JAY R | SVOBODA CHERYL | | | $249,500.00 | 131655 | 2016-10562 |
| 4 | 05/02/2014 | SWD | STATUTORY WARRANTY DEED | PONTI R GARY & MARILYN K | BURR JAY R | | | $227,000.00 | 125816 | 2014-03019 |
| 5 | 04/13/1990 | WARRANTY D | WARRANTY DEED | | | | | $91,500.00 | 0 | 1829-002427 |
Payout Agreement
| No payout information available.. |