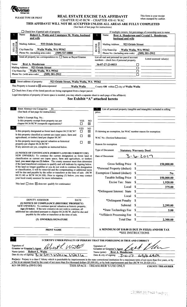
Property
Account |
| Property ID: | 9027 | Abbreviated Legal Description: | VALLEY HOMES TAX 19 LOT 13 |
| Parcel Number: | 360722560151 | Agent Code: | |
| Type: | Real | | |
| Tax Area: | 6 - OL-140-F-FB | Land Use Code | 11 |
| Open Space: | N | DFL | N |
| Historic Property: | N | Remodel Property: | N |
| Multi-Family Redevelopment: | N | | |
| Township: | 7 | Section: | 22 |
| Range: | 36 |
Location |
| Address: | 1939 E ALDER ST WA 99362 | Mapsco: | |
| Neighborhood: | A SFR | Map ID: | |
| Neighborhood CD: | 413011 |
Owner |
| Name: | LUCKSTEAD MARCUS & ABBY | Owner ID: | 59558 |
| Mailing Address: | 1939 E ALDER ST WALLA WALLA, WA 99362 | % Ownership: | 100.0000000000% |
| | | Exemptions: | |
Taxes and Assessment Details
Values
| (+) Improvement Homesite Value: | + | $0 | |
| (+) Improvement Non-Homesite Value: | + | $684,540 | |
| (+) Land Homesite Value: | + | $0 | |
| (+) Land Non-Homesite Value: | + | $90,720 | |
| (+) Curr Use (HS): | + | $0 | $0 |
| (+) Curr Use (NHS): | + | $0 | $0 |
| | | -------------------------- | |
| (=) Market Value: | = | $775,260 | |
| (–) Productivity Loss: | – | $0 | |
| | | -------------------------- | |
| (=) Subtotal: | = | $775,260 | |
| (+) Senior Appraised Value: | + | $0 | |
| (+) Non-Senior Appraised Value: | + | $775,260 | |
| | | -------------------------- | |
| (=) Total Appraised Value: | = | $775,260 | |
| (–) Senior Exemption Loss: | – | $0 | |
| (–) Exemption Loss: | – | $0 | |
| | | -------------------------- | |
| (=) Taxable Value: | = | $775,260 | |
Taxing Jurisdiction
| Owner: | LUCKSTEAD MARCUS & ABBY | | |
| % Ownership: | 100.0000000000% | | |
| Total Value: | $775,260 | | |
| Tax Area: | 6 - OL-140-F-FB |
| CERFD | CURRENT EXPENSE REFUND 010 | 0.0000000000 | $775,260 | $775,260 | $0.00 | | |
| CURREXP | CURRENT EXPENSE 010 | 1.0175366760 | $775,260 | $775,260 | $788.86 | | |
| HUMNSERV | HUMAN SERVICES 119 | 0.0250000000 | $775,260 | $775,260 | $19.38 | | |
| SLDREL | SOLDIERS RELIEF 121 | 0.0155990005 | $775,260 | $775,260 | $12.09 | | |
| EMERGSER | EMS 147 | 0.3792580840 | $775,260 | $775,260 | $294.02 | | |
| EMSRFD | EMS REFUND 147 | 0.0000000000 | $775,260 | $775,260 | $0.00 | | |
| PORTRFD | PORT REFUND 640 | 0.0000000000 | $775,260 | $775,260 | $0.00 | | |
| PORTWWGEN | PORT OF WW 640 | 0.2460186015 | $775,260 | $775,260 | $190.73 | | |
| SD140BOND | SD #140 BOND 764 | 0.8342371393 | $775,260 | $775,260 | $646.75 | | |
| SD140GEN | SD #140 GENERAL 760 | 2.0646500647 | $775,260 | $775,260 | $1,600.64 | | |
| ST2 | STATE SCHOOL PART 2 600 | 0.8131451643 | $775,260 | $775,260 | $630.40 | | |
| STATESCHL | STATE SCHOOL 600 | 1.5158548041 | $775,260 | $775,260 | $1,175.18 | | |
| STREFUND | STATE REFUND LEVY 603 | 0.0000000000 | $775,260 | $775,260 | $0.00 | | |
| CWWBOND | C OF WW BOND 643 | 0.2760494372 | $775,260 | $775,260 | $214.01 | | |
| CWWGEN | CITY OF WW 631 | 1.6100204973 | $775,260 | $775,260 | $1,248.18 | | |
| CWWRFD | CITY OF WALLA WALLA REFUND 631 | 0.0000000000 | $775,260 | $775,260 | $0.00 | | |
| | Total Tax Rate: | 8.7973694689 | | | | | |
| | | | | Taxes w/Current Exemptions: | $6,820.24 | | |
| | | | | Taxes w/o Exemptions: | $6,820.24 | | |
Improvement / Building
| Improvement #1: | RESIDENTIAL | State Code: | 11 | 2910.0 sqft | Value: | $684,540 |
| Exterior Wall: | SIDING | Heating/Cooling: | WARM & COOLED AIR | | Number of Bathrooms: | 4 | Number of Bedrooms: | 5 | | Plumbing: | 18 | Roof Covering: | COMP SHINGLE |
|
| | Type | Description | Class CD | Sub Class CD | Year Built | Area |
| | MA | Main Area | 4 | 45 | 1958 | 2910.0 |
| | SI1 | SITE IMPROVEMENT | 4 | 45 | 0 | 7.0 |
| | BASE | BASEMENT | 4 | 45 | 1958 | 424.0 |
| | DTG | Detached Garage | 4 | 45 | 1958 | 1080.0 |
| | UPFL | Upper Floor (included in main area) | 4 | 45 | 1958 | 632.0 |
| | S1F | Single One Story Fireplace | 4 | 45 | 1958 | 1.0 |
| | BMF | BASEMENT - MIN FINISH | 4 | 45 | 1958 | 390.0 |
| | UTST | Utility Storage Shed | 4 | 45 | 1958 | 390.0 |
| | RPO | OPEN PORCH W/ROOF | 4 | 45 | 1958 | 114.0 |
| | BLW | WOOD BALCONIES | 4 | 45 | 1958 | 410.0 |
Sketch
Property Image
Land
| 1 | RES 1 | Converted: Residential | 0.6428 | 28000.00 | 0.00 | 0.00 | 1.00 | $90,720 | $0 |
Roll Value History
| 2025 | N/A | N/A | N/A | N/A | N/A |
| 2024 | $684,540 | $90,720 | $0 | $775,260 | $775,260 |
| 2023 | $684,540 | $90,720 | $0 | $775,260 | $775,260 |
| 2022 | $660,110 | $66,920 | $0 | $727,030 | $727,030 |
| 2021 | $440,080 | $66,920 | $0 | $507,000 | $507,000 |
| 2020 | $400,070 | $66,920 | $0 | $466,990 | $466,990 |
| 2019 | $400,070 | $66,920 | $0 | $466,990 | $466,990 |
| 2018 | $400,070 | $66,920 | $0 | $466,990 | $466,990 |
| 2017 | $363,700 | $66,920 | $0 | $430,620 | $430,620 |
| 2016 | $293,830 | $53,500 | $0 | $347,330 | $347,330 |
| 2015 | $293,830 | $53,500 | $0 | $347,330 | $347,330 |
| 2014 | $255,500 | $53,500 | $0 | $309,000 | $309,000 |
| 2013 | $255,500 | $53,500 | $0 | $309,000 | $309,000 |
| 2012 | $215,200 | $53,500 | $0 | $0 | $0 |
| 2011 | $217,100 | $53,500 | $0 | $0 | $0 |
| 2010 | $217,100 | $53,500 | $0 | $0 | $0 |
| 2009 | $247,200 | $53,500 | $0 | $0 | $0 |
| 2008 | $247,200 | $53,500 | $0 | $0 | $0 |
| 2007 | $247,200 | $53,500 | $0 | $0 | $0 |
| 2006 | $141,600 | $25,400 | $0 | $0 | $0 |
Deed and Sales History
| 1 | 08/17/2016 | SWD | STATUTORY WARRANTY DEED | JAMES CHARLES W & LAURA A | LUCKSTEAD MARCUS & ABBY | | 2-PARCELS | $475,000.00 | 130844 | 2016-06564 |
|   | |
| 2 | 07/14/2000 | WARRANTY D | WARRANTY DEED | | | | | $170,000.00 | 95433 | 3000-006735 |
|   | |
Payout Agreement
| No payout information available.. |