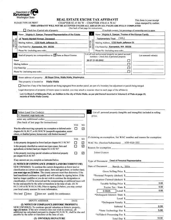
Property
Account |
| Property ID: | 8894 | Abbreviated Legal Description: | ALDERBROOK PARK LOT 5 BLK 3 |
| Parcel Number: | 360722510305 | Agent Code: | |
| Type: | Real | | |
| Tax Area: | 6 - OL-140-F-FB | Land Use Code | 11 |
| Open Space: | N | DFL | N |
| Historic Property: | N | Remodel Property: | N |
| Multi-Family Redevelopment: | N | | |
| Township: | 7 | Section: | 22 |
| Range: | 36 |
Location |
| Address: | 1860 CELESTIA DR WA 99362 | Mapsco: | |
| Neighborhood: | A SFR | Map ID: | |
| Neighborhood CD: | 413011 |
Owner |
| Name: | PRICE NATHAN TYLER | Owner ID: | 65721 |
| Mailing Address: | MONNA LEIGH LANE 1860 CELESTIA DR WALLA WALLA, WA 99362 | % Ownership: | 100.0000000000% |
| | | Exemptions: | |
Taxes and Assessment Details
Values
| (+) Improvement Homesite Value: | + | $0 | |
| (+) Improvement Non-Homesite Value: | + | $215,450 | |
| (+) Land Homesite Value: | + | $0 | |
| (+) Land Non-Homesite Value: | + | $60,480 | |
| (+) Curr Use (HS): | + | $0 | $0 |
| (+) Curr Use (NHS): | + | $0 | $0 |
| | | -------------------------- | |
| (=) Market Value: | = | $275,930 | |
| (–) Productivity Loss: | – | $0 | |
| | | -------------------------- | |
| (=) Subtotal: | = | $275,930 | |
| (+) Senior Appraised Value: | + | $0 | |
| (+) Non-Senior Appraised Value: | + | $275,930 | |
| | | -------------------------- | |
| (=) Total Appraised Value: | = | $275,930 | |
| (–) Senior Exemption Loss: | – | $0 | |
| (–) Exemption Loss: | – | $0 | |
| | | -------------------------- | |
| (=) Taxable Value: | = | $275,930 | |
Taxing Jurisdiction
| Owner: | PRICE NATHAN TYLER | | |
| % Ownership: | 100.0000000000% | | |
| Total Value: | $275,930 | | |
| Tax Area: | 6 - OL-140-F-FB |
| CERFD | CURRENT EXPENSE REFUND 010 | 0.0000000000 | $275,930 | $275,930 | $0.00 | | |
| CURREXP | CURRENT EXPENSE 010 | 1.0175366760 | $275,930 | $275,930 | $280.77 | | |
| HUMNSERV | HUMAN SERVICES 119 | 0.0250000000 | $275,930 | $275,930 | $6.90 | | |
| SLDREL | SOLDIERS RELIEF 121 | 0.0155990005 | $275,930 | $275,930 | $4.30 | | |
| EMERGSER | EMS 147 | 0.3792580840 | $275,930 | $275,930 | $104.65 | | |
| EMSRFD | EMS REFUND 147 | 0.0000000000 | $275,930 | $275,930 | $0.00 | | |
| PORTRFD | PORT REFUND 640 | 0.0000000000 | $275,930 | $275,930 | $0.00 | | |
| PORTWWGEN | PORT OF WW 640 | 0.2460186015 | $275,930 | $275,930 | $67.88 | | |
| SD140BOND | SD #140 BOND 764 | 0.8342371393 | $275,930 | $275,930 | $230.19 | | |
| SD140GEN | SD #140 GENERAL 760 | 2.0646500647 | $275,930 | $275,930 | $569.70 | | |
| ST2 | STATE SCHOOL PART 2 600 | 0.8131451643 | $275,930 | $275,930 | $224.37 | | |
| STATESCHL | STATE SCHOOL 600 | 1.5158548041 | $275,930 | $275,930 | $418.27 | | |
| STREFUND | STATE REFUND LEVY 603 | 0.0000000000 | $275,930 | $275,930 | $0.00 | | |
| CWWBOND | C OF WW BOND 643 | 0.2760494372 | $275,930 | $275,930 | $76.17 | | |
| CWWGEN | CITY OF WW 631 | 1.6100204973 | $275,930 | $275,930 | $444.25 | | |
| CWWRFD | CITY OF WALLA WALLA REFUND 631 | 0.0000000000 | $275,930 | $275,930 | $0.00 | | |
| | Total Tax Rate: | 8.7973694689 | | | | | |
| | | | | Taxes w/Current Exemptions: | $2,427.45 | | |
| | | | | Taxes w/o Exemptions: | $2,427.45 | | |
Improvement / Building
| Improvement #1: | RESIDENTIAL | State Code: | 11 | 768.0 sqft | Value: | $215,450 |
| Exterior Wall: | STUCCO | Heating/Cooling: | WARM & COOLED AIR | | Number of Bathrooms: | 1 | Number of Bedrooms: | 4 | | Plumbing: | 6 | Roof Covering: | COMP SHINGLE |
|
| | Type | Description | Class CD | Sub Class CD | Year Built | Area |
| | MA | Main Area | 1 | 30 | 1950 | 768.0 |
| | SI1 | SITE IMPROVEMENT | 1 | 30 | 0 | 2.0 |
| | BASE | BASEMENT | 1 | 30 | 1950 | 768.0 |
| | OPS | OPEN PORCH W/STEPS | 1 | 30 | 1950 | 32.0 |
| | BPF | BASEMENT -PARTITIONED FINISH | 1 | 30 | 1950 | 768.0 |
| | DTG | Detached Garage | 1 | 30 | 1950 | 264.0 |
Sketch
Property Image
Land
| 1 | RES 1 | Converted: Residential | 0.1736 | 7560.00 | 0.00 | 0.00 | 1.00 | $60,480 | $0 |
Roll Value History
| 2025 | N/A | N/A | N/A | N/A | N/A |
| 2024 | $215,450 | $60,480 | $0 | $275,930 | $275,930 |
| 2023 | $215,450 | $60,480 | $0 | $275,930 | $275,930 |
| 2022 | $233,220 | $39,690 | $0 | $272,910 | $272,910 |
| 2021 | $133,270 | $39,690 | $0 | $172,960 | $172,960 |
| 2020 | $88,850 | $39,690 | $0 | $128,540 | $128,540 |
| 2019 | $88,850 | $39,690 | $0 | $128,540 | $128,540 |
| 2018 | $84,620 | $39,690 | $0 | $124,310 | $124,310 |
| 2017 | $80,590 | $39,690 | $0 | $120,280 | $120,280 |
| 2016 | $73,100 | $30,200 | $0 | $103,300 | $103,300 |
| 2015 | $73,100 | $30,200 | $0 | $103,300 | $103,300 |
| 2014 | $73,100 | $30,200 | $0 | $103,300 | $103,300 |
| 2013 | $73,100 | $30,200 | $0 | $103,300 | $103,300 |
| 2012 | $73,100 | $30,200 | $0 | $0 | $0 |
| 2011 | $72,800 | $30,200 | $0 | $0 | $0 |
| 2010 | $72,800 | $30,200 | $0 | $0 | $0 |
| 2009 | $84,200 | $30,200 | $0 | $0 | $0 |
| 2008 | $84,200 | $30,200 | $0 | $0 | $0 |
| 2007 | $84,200 | $30,200 | $0 | $0 | $0 |
| 2006 | $53,900 | $15,100 | $0 | $0 | $0 |
Deed and Sales History
| 1 | | MARRIAGE | MARRIAGE CERTIFICATE | PRICE MONNA LEIGH | LANE MONNA LEIGH | | | | 0 | 2008-03247 |
| 2 | 01/12/2012 | QCD | QUIT CLAIM DEED | PRICE, NATHAN T | PRICE, NATHAN TYLER | | | | 121270 | 2012-00345 |
| 3 | 07/26/2006 | QCD | QUIT CLAIM DEED | PRICE, MONNA LEIGH | PRICE, NATHAN TYLER | | | | 110801 | 2006-08743 |
| 4 | 07/25/2006 | QCD | QUIT CLAIM DEED | PRICE, NATHAN TYLER | PRICE, NATHAN TYLER | | | | 110797 | 2006-08726 |
| 5 | 11/10/1999 | WARRANTY D | WARRANTY DEED | | | | | $69,500.00 | 93992 | 2919-912890 |
Payout Agreement
| No payout information available.. |