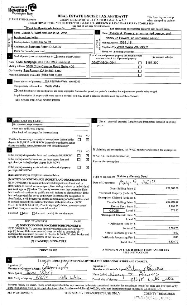
Property
Account |
| Property ID: | 8889 | Abbreviated Legal Description: | ALDERBROOK PARK LOT 23 BLK 2 PLUS STRIP LY TO THE NW. |
| Parcel Number: | 360722510223 | Agent Code: | |
| Type: | Real | | |
| Tax Area: | 6 - OL-140-F-FB | Land Use Code | 11 |
| Open Space: | N | DFL | N |
| Historic Property: | N | Remodel Property: | N |
| Multi-Family Redevelopment: | N | | |
| Township: | 7 | Section: | 22 |
| Range: | 36 |
Location |
| Address: | 304 BERNEY DR WA 99362 | Mapsco: | |
| Neighborhood: | A SFR | Map ID: | |
| Neighborhood CD: | 413011 |
Owner |
| Name: | COLE TANNER & STEPHANIE LIGER | Owner ID: | 65117 |
| Mailing Address: | 304 BERNEY DR WALLA WALLA, WA 99362 | % Ownership: | 100.0000000000% |
| | | Exemptions: | |
Taxes and Assessment Details
Values
| (+) Improvement Homesite Value: | + | $0 | |
| (+) Improvement Non-Homesite Value: | + | $290,510 | |
| (+) Land Homesite Value: | + | $0 | |
| (+) Land Non-Homesite Value: | + | $81,460 | |
| (+) Curr Use (HS): | + | $0 | $0 |
| (+) Curr Use (NHS): | + | $0 | $0 |
| | | -------------------------- | |
| (=) Market Value: | = | $371,970 | |
| (–) Productivity Loss: | – | $0 | |
| | | -------------------------- | |
| (=) Subtotal: | = | $371,970 | |
| (+) Senior Appraised Value: | + | $0 | |
| (+) Non-Senior Appraised Value: | + | $371,970 | |
| | | -------------------------- | |
| (=) Total Appraised Value: | = | $371,970 | |
| (–) Senior Exemption Loss: | – | $0 | |
| (–) Exemption Loss: | – | $0 | |
| | | -------------------------- | |
| (=) Taxable Value: | = | $371,970 | |
Taxing Jurisdiction
| Owner: | COLE TANNER & STEPHANIE LIGER | | |
| % Ownership: | 100.0000000000% | | |
| Total Value: | $371,970 | | |
| Tax Area: | 6 - OL-140-F-FB |
| CERFD | CURRENT EXPENSE REFUND 010 | 0.0000000000 | $371,970 | $371,970 | $0.00 | | |
| CURREXP | CURRENT EXPENSE 010 | 1.0175366760 | $371,970 | $371,970 | $378.49 | | |
| HUMNSERV | HUMAN SERVICES 119 | 0.0250000000 | $371,970 | $371,970 | $9.30 | | |
| SLDREL | SOLDIERS RELIEF 121 | 0.0155990005 | $371,970 | $371,970 | $5.80 | | |
| EMERGSER | EMS 147 | 0.3792580840 | $371,970 | $371,970 | $141.07 | | |
| EMSRFD | EMS REFUND 147 | 0.0000000000 | $371,970 | $371,970 | $0.00 | | |
| PORTRFD | PORT REFUND 640 | 0.0000000000 | $371,970 | $371,970 | $0.00 | | |
| PORTWWGEN | PORT OF WW 640 | 0.2460186015 | $371,970 | $371,970 | $91.51 | | |
| SD140BOND | SD #140 BOND 764 | 0.8342371393 | $371,970 | $371,970 | $310.31 | | |
| SD140GEN | SD #140 GENERAL 760 | 2.0646500647 | $371,970 | $371,970 | $767.99 | | |
| ST2 | STATE SCHOOL PART 2 600 | 0.8131451643 | $371,970 | $371,970 | $302.47 | | |
| STATESCHL | STATE SCHOOL 600 | 1.5158548041 | $371,970 | $371,970 | $563.85 | | |
| STREFUND | STATE REFUND LEVY 603 | 0.0000000000 | $371,970 | $371,970 | $0.00 | | |
| CWWBOND | C OF WW BOND 643 | 0.2760494372 | $371,970 | $371,970 | $102.68 | | |
| CWWGEN | CITY OF WW 631 | 1.6100204973 | $371,970 | $371,970 | $598.88 | | |
| CWWRFD | CITY OF WALLA WALLA REFUND 631 | 0.0000000000 | $371,970 | $371,970 | $0.00 | | |
| | Total Tax Rate: | 8.7973694689 | | | | | |
| | | | | Taxes w/Current Exemptions: | $3,272.35 | | |
| | | | | Taxes w/o Exemptions: | $3,272.35 | | |
Improvement / Building
| Improvement #1: | RESIDENTIAL | State Code: | 11 | 1205.0 sqft | Value: | $290,510 |
| Exterior Wall: | VINYL | Heating/Cooling: | HEAT PUMP | | Number of Bathrooms: | 2 | Number of Bedrooms: | 3 | | Plumbing: | 12 | Roof Covering: | COMP SHINGLE |
|
| | Type | Description | Class CD | Sub Class CD | Year Built | Area |
| | MA | Main Area | 1 | 30 | 1975 | 1205.0 |
| | CPC | COVERED CARPORT/PATIO | 1 | 30 | 0 | 300.0 |
| | FBAT | FULL BATH | 1 | 30 | 0 | 1.0 |
| | GUH | GUEST HOUSE | 1 | 30 | 0 | 310.0 |
| | SI1 | SITE IMPROVEMENT | 1 | 30 | 0 | 1.5 |
| | BASE | BASEMENT | 1 | 30 | 1975 | 929.0 |
| | BPF | BASEMENT -PARTITIONED FINISH | 1 | 30 | 1975 | 929.0 |
| | DTG | Detached Garage | 1 | 30 | 1975 | 864.0 |
| | UTST | Utility Storage Shed | 1 | 30 | 1975 | 40.0 |
Sketch
Property Image
Land
| 1 | RES 1 | Converted: Residential | 0.2864 | 12474.00 | 0.00 | 0.00 | 1.00 | $81,460 | $0 |
Roll Value History
| 2025 | N/A | N/A | N/A | N/A | N/A |
| 2024 | $290,510 | $81,460 | $0 | $371,970 | $371,970 |
| 2023 | $290,510 | $81,460 | $0 | $371,970 | $371,970 |
| 2022 | $290,510 | $54,510 | $0 | $345,020 | $345,020 |
| 2021 | $264,100 | $54,510 | $0 | $318,610 | $318,610 |
| 2020 | $155,360 | $54,510 | $0 | $209,870 | $209,870 |
| 2019 | $155,360 | $54,510 | $0 | $209,870 | $209,870 |
| 2018 | $141,230 | $54,510 | $0 | $195,740 | $195,740 |
| 2017 | $141,230 | $54,510 | $0 | $195,740 | $195,740 |
| 2016 | $119,600 | $41,900 | $0 | $161,500 | $161,500 |
| 2015 | $119,600 | $41,900 | $0 | $161,500 | $161,500 |
| 2014 | $113,900 | $41,900 | $0 | $155,800 | $155,800 |
| 2013 | $113,900 | $41,900 | $0 | $155,800 | $155,800 |
| 2012 | $113,900 | $41,900 | $0 | $0 | $0 |
| 2011 | $123,900 | $41,900 | $0 | $0 | $0 |
| 2010 | $123,900 | $41,900 | $0 | $0 | $0 |
| 2009 | $142,300 | $41,900 | $0 | $0 | $0 |
| 2008 | $142,300 | $41,900 | $0 | $0 | $0 |
| 2007 | $142,300 | $41,900 | $0 | $0 | $0 |
| 2006 | $108,400 | $20,300 | $0 | $0 | $0 |
Deed and Sales History
| 1 | 05/17/2019 | SWD | STATUTORY WARRANTY DEED | BOETTCHER MIKE R & BRENDA | COLE TANNER & STEPHANIE LIGER | | | $349,900.00 | 136896 | 2019-03306 |
| 2 | 12/29/1995 | WARRANTY D | WARRANTY DEED | | | | | $129,900.00 | 85366 | 2379-512636 |
Payout Agreement
| No payout information available.. |