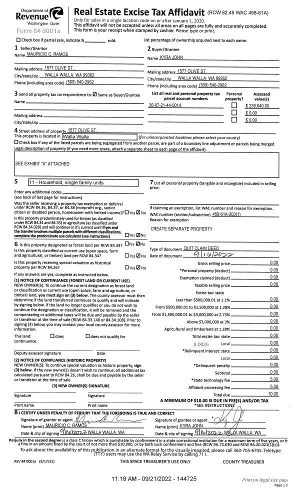
Property
Account |
| Property ID: | 8875 | Abbreviated Legal Description: | ALDERBROOK PARK LOT 4 BLK 1 LESS PTN ST PLUS CORNER TO SE |
| Parcel Number: | 360722510125 | Agent Code: | |
| Type: | Real | | |
| Tax Area: | 6 - OL-140-F-FB | Land Use Code | 11 |
| Open Space: | N | DFL | N |
| Historic Property: | N | Remodel Property: | N |
| Multi-Family Redevelopment: | N | | |
| Township: | 7 | Section: | 22 |
| Range: | 36 |
Location |
| Address: | 325 SCHOOL AVE WA 99362 | Mapsco: | |
| Neighborhood: | A SFR | Map ID: | |
| Neighborhood CD: | 413011 |
Owner |
| Name: | BRASHEAR SCOTT | Owner ID: | 71254 |
| Mailing Address: | WENDY MINOR 2399 LOWER DRY CREEK RD WALLA WALLA, WA 99362 | % Ownership: | 100.0000000000% |
| | | Exemptions: | |
Taxes and Assessment Details
Values
| (+) Improvement Homesite Value: | + | $0 | |
| (+) Improvement Non-Homesite Value: | + | $146,790 | |
| (+) Land Homesite Value: | + | $0 | |
| (+) Land Non-Homesite Value: | + | $69,920 | |
| (+) Curr Use (HS): | + | $0 | $0 |
| (+) Curr Use (NHS): | + | $0 | $0 |
| | | -------------------------- | |
| (=) Market Value: | = | $216,710 | |
| (–) Productivity Loss: | – | $0 | |
| | | -------------------------- | |
| (=) Subtotal: | = | $216,710 | |
| (+) Senior Appraised Value: | + | $0 | |
| (+) Non-Senior Appraised Value: | + | $216,710 | |
| | | -------------------------- | |
| (=) Total Appraised Value: | = | $216,710 | |
| (–) Senior Exemption Loss: | – | $0 | |
| (–) Exemption Loss: | – | $0 | |
| | | -------------------------- | |
| (=) Taxable Value: | = | $216,710 | |
Taxing Jurisdiction
| Owner: | BRASHEAR SCOTT | | |
| % Ownership: | 100.0000000000% | | |
| Total Value: | $216,710 | | |
| Tax Area: | 6 - OL-140-F-FB |
| CERFD | CURRENT EXPENSE REFUND 010 | 0.0000000000 | $216,710 | $216,710 | $0.00 | | |
| CURREXP | CURRENT EXPENSE 010 | 1.0175366760 | $216,710 | $216,710 | $220.51 | | |
| HUMNSERV | HUMAN SERVICES 119 | 0.0250000000 | $216,710 | $216,710 | $5.42 | | |
| SLDREL | SOLDIERS RELIEF 121 | 0.0155990005 | $216,710 | $216,710 | $3.38 | | |
| EMERGSER | EMS 147 | 0.3792580840 | $216,710 | $216,710 | $82.19 | | |
| EMSRFD | EMS REFUND 147 | 0.0000000000 | $216,710 | $216,710 | $0.00 | | |
| PORTRFD | PORT REFUND 640 | 0.0000000000 | $216,710 | $216,710 | $0.00 | | |
| PORTWWGEN | PORT OF WW 640 | 0.2460186015 | $216,710 | $216,710 | $53.31 | | |
| SD140BOND | SD #140 BOND 764 | 0.8342371393 | $216,710 | $216,710 | $180.79 | | |
| SD140GEN | SD #140 GENERAL 760 | 2.0646500647 | $216,710 | $216,710 | $447.43 | | |
| ST2 | STATE SCHOOL PART 2 600 | 0.8131451643 | $216,710 | $216,710 | $176.22 | | |
| STATESCHL | STATE SCHOOL 600 | 1.5158548041 | $216,710 | $216,710 | $328.50 | | |
| STREFUND | STATE REFUND LEVY 603 | 0.0000000000 | $216,710 | $216,710 | $0.00 | | |
| CWWBOND | C OF WW BOND 643 | 0.2760494372 | $216,710 | $216,710 | $59.82 | | |
| CWWGEN | CITY OF WW 631 | 1.6100204973 | $216,710 | $216,710 | $348.91 | | |
| CWWRFD | CITY OF WALLA WALLA REFUND 631 | 0.0000000000 | $216,710 | $216,710 | $0.00 | | |
| | Total Tax Rate: | 8.7973694689 | | | | | |
| | | | | Taxes w/Current Exemptions: | $1,906.48 | | |
| | | | | Taxes w/o Exemptions: | $1,906.48 | | |
Improvement / Building
| Improvement #1: | RESIDENTIAL | State Code: | 11 | 856.0 sqft | Value: | $146,790 |
| Exterior Wall: | SIDING | Heating/Cooling: | WARM & COOLED AIR | | Number of Bathrooms: | 1 | Number of Bedrooms: | 2 | | Plumbing: | 6 | Roof Covering: | COMP SHINGLE |
|
| | Type | Description | Class CD | Sub Class CD | Year Built | Area |
| | MA | Main Area | 1 | 30 | 1950 | 856.0 |
| | CPC | COVERED CARPORT/PATIO | 1 | 30 | 0 | 234.0 |
| | SI1 | SITE IMPROVEMENT | 1 | 30 | 0 | 1.0 |
| | DTG | Detached Garage | 1 | 30 | 1950 | 392.0 |
Sketch
Property Image
Land
| 1 | RES 1 | Converted: Residential | 0.2006 | 8740.00 | 0.00 | 0.00 | 1.00 | $69,920 | $0 |
Roll Value History
| 2025 | N/A | N/A | N/A | N/A | N/A |
| 2024 | $146,790 | $69,920 | $0 | $216,710 | $216,710 |
| 2023 | $146,790 | $69,920 | $0 | $216,710 | $216,710 |
| 2022 | $165,350 | $45,890 | $0 | $211,240 | $211,240 |
| 2021 | $89,380 | $45,890 | $0 | $135,270 | $135,270 |
| 2020 | $59,580 | $45,890 | $0 | $105,470 | $105,470 |
| 2019 | $59,580 | $45,890 | $0 | $105,470 | $105,470 |
| 2018 | $54,170 | $45,890 | $0 | $100,060 | $100,060 |
| 2017 | $54,170 | $45,890 | $0 | $100,060 | $100,060 |
| 2016 | $65,000 | $35,000 | $0 | $100,000 | $100,000 |
| 2015 | $65,000 | $35,000 | $0 | $100,000 | $100,000 |
| 2014 | $52,000 | $35,000 | $0 | $87,000 | $87,000 |
| 2013 | $52,000 | $35,000 | $0 | $87,000 | $87,000 |
| 2012 | $52,000 | $35,000 | $0 | $0 | $0 |
| 2011 | $52,800 | $35,000 | $0 | $0 | $0 |
| 2010 | $52,800 | $35,000 | $0 | $0 | $0 |
| 2009 | $62,600 | $35,000 | $0 | $0 | $0 |
| 2008 | $62,600 | $35,000 | $0 | $0 | $0 |
| 2007 | $62,600 | $35,000 | $0 | $0 | $0 |
| 2006 | $39,900 | $17,500 | $0 | $0 | $0 |
Deed and Sales History
| 1 | 03/08/2022 | DPR | DEED OF PERSONAL REPRESENTATIVE | BRASHEAR DONALD V | BRASHEAR SCOTT | | | $0.00 | 143522 | 2022-02024 |
| 2 | 08/02/2017 | QCD | QUIT CLAIM DEED | BRASHEAR BETTY JO | BRASHEAR DONALD V | | | $0.00 | 132894 | 2017-05892 |
| 3 | 08/06/1974 | WARRANTY D | WARRANTY DEED | | | | | $8,500.00 | 62610 | 3170-473816 |
Payout Agreement
| No payout information available.. |