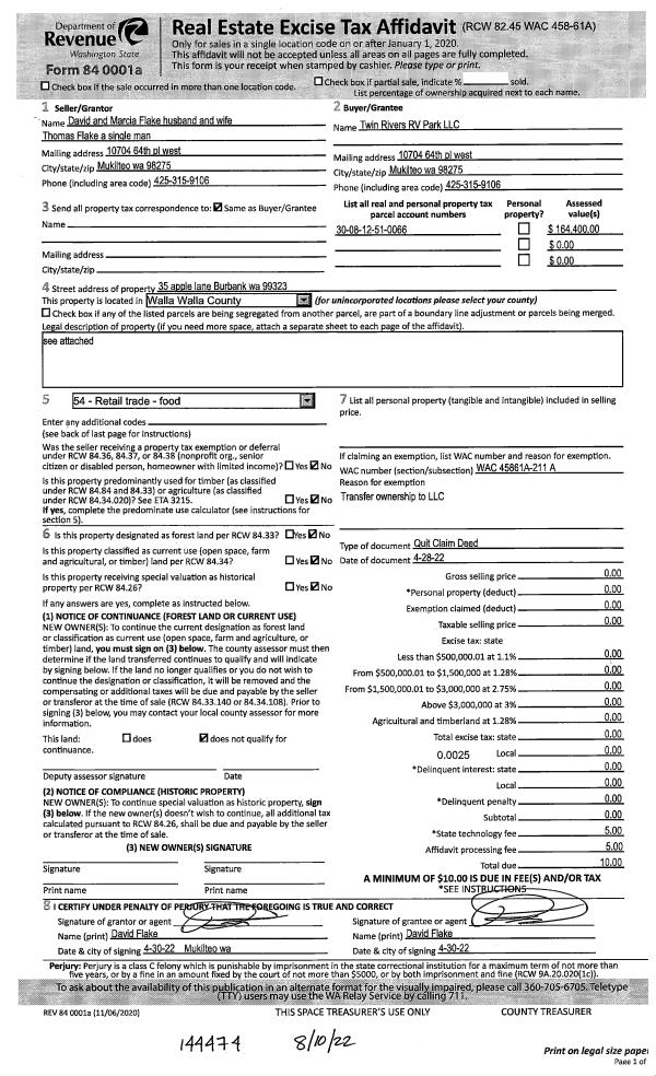
Property
Account |
| Property ID: | 8863 | Abbreviated Legal Description: | ALDERBROOK PARK LOT 8 BLK 1 |
| Parcel Number: | 360722510108 | Agent Code: | |
| Type: | Real | | |
| Tax Area: | 6 - OL-140-F-FB | Land Use Code | 11 |
| Open Space: | N | DFL | N |
| Historic Property: | N | Remodel Property: | N |
| Multi-Family Redevelopment: | N | | |
| Township: | 7 | Section: | 22 |
| Range: | 36 |
Location |
| Address: | 1824 E ALDER ST WA 99362 | Mapsco: | |
| Neighborhood: | A SFR | Map ID: | |
| Neighborhood CD: | 413011 |
Owner |
| Name: | FENTON THOMAS | Owner ID: | 69422 |
| Mailing Address: | 3307 FIDDLER CT WALLA WALLA WA | % Ownership: | 100.0000000000% |
| | | Exemptions: | |
Taxes and Assessment Details
Values
| (+) Improvement Homesite Value: | + | $0 | |
| (+) Improvement Non-Homesite Value: | + | $134,910 | |
| (+) Land Homesite Value: | + | $0 | |
| (+) Land Non-Homesite Value: | + | $62,400 | |
| (+) Curr Use (HS): | + | $0 | $0 |
| (+) Curr Use (NHS): | + | $0 | $0 |
| | | -------------------------- | |
| (=) Market Value: | = | $197,310 | |
| (–) Productivity Loss: | – | $0 | |
| | | -------------------------- | |
| (=) Subtotal: | = | $197,310 | |
| (+) Senior Appraised Value: | + | $0 | |
| (+) Non-Senior Appraised Value: | + | $197,310 | |
| | | -------------------------- | |
| (=) Total Appraised Value: | = | $197,310 | |
| (–) Senior Exemption Loss: | – | $0 | |
| (–) Exemption Loss: | – | $0 | |
| | | -------------------------- | |
| (=) Taxable Value: | = | $197,310 | |
Taxing Jurisdiction
| Owner: | FENTON THOMAS | | |
| % Ownership: | 100.0000000000% | | |
| Total Value: | $197,310 | | |
| Tax Area: | 6 - OL-140-F-FB |
| CERFD | CURRENT EXPENSE REFUND 010 | 0.0000000000 | $197,310 | $197,310 | $0.00 | | |
| CURREXP | CURRENT EXPENSE 010 | 1.0175366760 | $197,310 | $197,310 | $200.77 | | |
| HUMNSERV | HUMAN SERVICES 119 | 0.0250000000 | $197,310 | $197,310 | $4.93 | | |
| SLDREL | SOLDIERS RELIEF 121 | 0.0155990005 | $197,310 | $197,310 | $3.08 | | |
| EMERGSER | EMS 147 | 0.3792580840 | $197,310 | $197,310 | $74.83 | | |
| EMSRFD | EMS REFUND 147 | 0.0000000000 | $197,310 | $197,310 | $0.00 | | |
| PORTRFD | PORT REFUND 640 | 0.0000000000 | $197,310 | $197,310 | $0.00 | | |
| PORTWWGEN | PORT OF WW 640 | 0.2460186015 | $197,310 | $197,310 | $48.54 | | |
| SD140BOND | SD #140 BOND 764 | 0.8342371393 | $197,310 | $197,310 | $164.60 | | |
| SD140GEN | SD #140 GENERAL 760 | 2.0646500647 | $197,310 | $197,310 | $407.38 | | |
| ST2 | STATE SCHOOL PART 2 600 | 0.8131451643 | $197,310 | $197,310 | $160.44 | | |
| STATESCHL | STATE SCHOOL 600 | 1.5158548041 | $197,310 | $197,310 | $299.09 | | |
| STREFUND | STATE REFUND LEVY 603 | 0.0000000000 | $197,310 | $197,310 | $0.00 | | |
| CWWBOND | C OF WW BOND 643 | 0.2760494372 | $197,310 | $197,310 | $54.47 | | |
| CWWGEN | CITY OF WW 631 | 1.6100204973 | $197,310 | $197,310 | $317.67 | | |
| CWWRFD | CITY OF WALLA WALLA REFUND 631 | 0.0000000000 | $197,310 | $197,310 | $0.00 | | |
| | Total Tax Rate: | 8.7973694689 | | | | | |
| | | | | Taxes w/Current Exemptions: | $1,735.80 | | |
| | | | | Taxes w/o Exemptions: | $1,735.80 | | |
Improvement / Building
| Improvement #1: | RESIDENTIAL | State Code: | 11 | 933.0 sqft | Value: | $134,910 |
| Exterior Wall: | SIDING | Heating/Cooling: | BASEBOARD ELECTRIC | | Number of Bathrooms: | 1 | Number of Bedrooms: | 3 | | Plumbing: | 6 | Roof Covering: | COMP SHINGLE |
|
| | Type | Description | Class CD | Sub Class CD | Year Built | Area |
| | MA | Main Area | 1 | 30 | 1950 | 933.0 |
| | SI1 | SITE IMPROVEMENT | 1 | 30 | 0 | 2.0 |
| | BASE | BASEMENT | 1 | 30 | 1950 | 720.0 |
| | BPF | BASEMENT -PARTITIONED FINISH | 1 | 30 | 1950 | 216.0 |
| | SWP | Solid Wall Porch | 1 | 30 | 1950 | 36.0 |
| | RPS | PORCH W/STEPS,ROOF | 1 | 30 | 1950 | 20.0 |
Sketch
Property Image
Land
| 1 | RES 1 | Converted: Residential | 0.1791 | 7800.00 | 0.00 | 0.00 | 1.00 | $62,400 | $0 |
Roll Value History
| 2025 | N/A | N/A | N/A | N/A | N/A |
| 2024 | $134,910 | $62,400 | $0 | $197,310 | $197,310 |
| 2023 | $134,910 | $62,400 | $0 | $197,310 | $197,310 |
| 2022 | $134,910 | $40,950 | $0 | $175,860 | $175,860 |
| 2021 | $95,450 | $40,950 | $0 | $136,400 | $136,400 |
| 2020 | $86,770 | $40,950 | $0 | $127,720 | $127,720 |
| 2019 | $86,770 | $40,950 | $0 | $127,720 | $127,720 |
| 2018 | $96,420 | $40,950 | $0 | $137,370 | $137,370 |
| 2017 | $91,830 | $40,950 | $0 | $132,780 | $132,780 |
| 2016 | $100,750 | $31,200 | $0 | $131,950 | $131,950 |
| 2015 | $77,500 | $31,200 | $0 | $108,700 | $108,700 |
| 2014 | $77,500 | $31,200 | $0 | $108,700 | $108,700 |
| 2013 | $77,500 | $31,200 | $0 | $108,700 | $108,700 |
| 2012 | $77,500 | $31,200 | $0 | $0 | $0 |
| 2011 | $97,900 | $31,200 | $0 | $0 | $0 |
| 2010 | $97,900 | $31,200 | $0 | $0 | $0 |
| 2009 | $112,200 | $31,200 | $0 | $0 | $0 |
| 2008 | $83,500 | $31,200 | $0 | $0 | $0 |
| 2007 | $83,500 | $31,200 | $0 | $0 | $0 |
| 2006 | $64,700 | $15,600 | $0 | $0 | $0 |
Deed and Sales History
| 1 | 02/11/2022 | SWD | STATUTORY WARRANTY DEED | PROPST JOYCE E ESTATE OF | FENTON THOMAS | | | $122,500.00 | 143370 | 2022-01268 |
| 2 | 10/06/1987 | WARRANTY D | WARRANTY DEED | | | | | $32,000.00 | 0 | 1678-707575 |
Payout Agreement
| No payout information available.. |