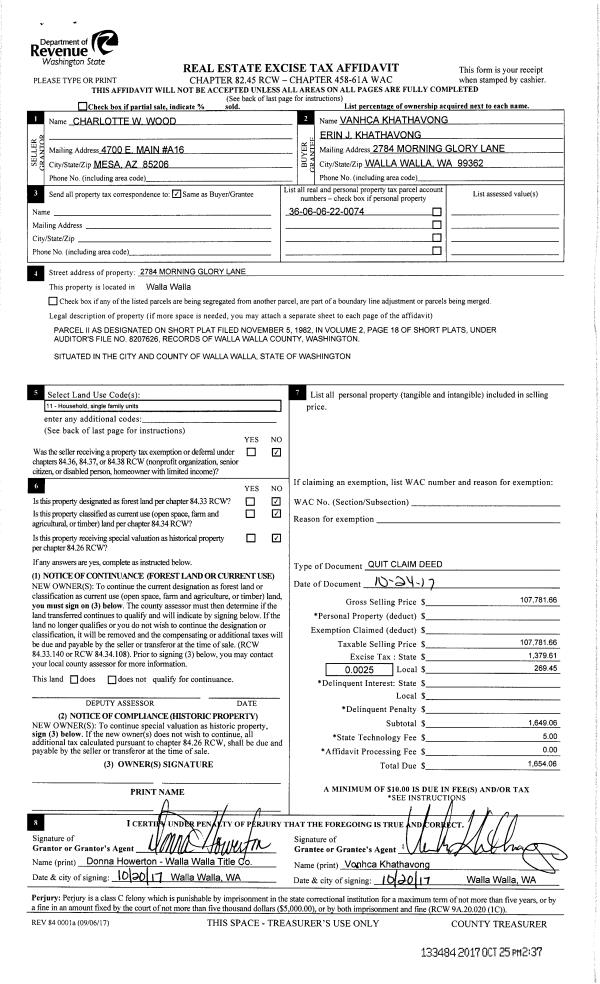
Property
Account |
| Property ID: | 8740 | Abbreviated Legal Description: | GREENS ANNEX TAX 19 BLK 15 |
| Parcel Number: | 360721751514 | Agent Code: | |
| Type: | Real | | |
| Tax Area: | 1 - OL-140-F | Land Use Code | 11 |
| Open Space: | N | DFL | N |
| Historic Property: | N | Remodel Property: | N |
| Multi-Family Redevelopment: | N | | |
| Township: | 7 | Section: | 21 |
| Range: | 36 |
Location |
| Address: | 334 N DIVISION ST WA 99362 | Mapsco: | |
| Neighborhood: | A-SFR | Map ID: | |
| Neighborhood CD: | 513011 |
Owner |
| Name: | EATON ANDREW H & STEPHANIE R | Owner ID: | 48971 |
| Mailing Address: | 730 CRESTVIEW PL WALLA WALLA, WA 99362 | % Ownership: | 100.0000000000% |
| | | Exemptions: | |
Taxes and Assessment Details
Values
| (+) Improvement Homesite Value: | + | $0 | |
| (+) Improvement Non-Homesite Value: | + | $275,210 | |
| (+) Land Homesite Value: | + | $0 | |
| (+) Land Non-Homesite Value: | + | $41,250 | |
| (+) Curr Use (HS): | + | $0 | $0 |
| (+) Curr Use (NHS): | + | $0 | $0 |
| | | -------------------------- | |
| (=) Market Value: | = | $316,460 | |
| (–) Productivity Loss: | – | $0 | |
| | | -------------------------- | |
| (=) Subtotal: | = | $316,460 | |
| (+) Senior Appraised Value: | + | $0 | |
| (+) Non-Senior Appraised Value: | + | $316,460 | |
| | | -------------------------- | |
| (=) Total Appraised Value: | = | $316,460 | |
| (–) Senior Exemption Loss: | – | $0 | |
| (–) Exemption Loss: | – | $0 | |
| | | -------------------------- | |
| (=) Taxable Value: | = | $316,460 | |
Taxing Jurisdiction
| Owner: | EATON ANDREW H & STEPHANIE R | | |
| % Ownership: | 100.0000000000% | | |
| Total Value: | $316,460 | | |
| Tax Area: | 1 - OL-140-F |
| CERFD | CURRENT EXPENSE REFUND 010 | 0.0000000000 | $316,460 | $316,460 | $0.00 | | |
| CURREXP | CURRENT EXPENSE 010 | 1.0175366760 | $316,460 | $316,460 | $322.01 | | |
| HUMNSERV | HUMAN SERVICES 119 | 0.0250000000 | $316,460 | $316,460 | $7.91 | | |
| SLDREL | SOLDIERS RELIEF 121 | 0.0155990005 | $316,460 | $316,460 | $4.94 | | |
| EMERGSER | EMS 147 | 0.3792580840 | $316,460 | $316,460 | $120.02 | | |
| EMSRFD | EMS REFUND 147 | 0.0000000000 | $316,460 | $316,460 | $0.00 | | |
| PORTRFD | PORT REFUND 640 | 0.0000000000 | $316,460 | $316,460 | $0.00 | | |
| PORTWWGEN | PORT OF WW 640 | 0.2460186015 | $316,460 | $316,460 | $77.86 | | |
| SD140BOND | SD #140 BOND 764 | 0.8342371393 | $316,460 | $316,460 | $264.00 | | |
| SD140GEN | SD #140 GENERAL 760 | 2.0646500647 | $316,460 | $316,460 | $653.38 | | |
| ST2 | STATE SCHOOL PART 2 600 | 0.8131451643 | $316,460 | $316,460 | $257.33 | | |
| STATESCHL | STATE SCHOOL 600 | 1.5158548041 | $316,460 | $316,460 | $479.71 | | |
| STREFUND | STATE REFUND LEVY 603 | 0.0000000000 | $316,460 | $316,460 | $0.00 | | |
| CWWBOND | C OF WW BOND 643 | 0.2760494372 | $316,460 | $316,460 | $87.36 | | |
| CWWGEN | CITY OF WW 631 | 1.6100204973 | $316,460 | $316,460 | $509.51 | | |
| CWWRFD | CITY OF WALLA WALLA REFUND 631 | 0.0000000000 | $316,460 | $316,460 | $0.00 | | |
| | Total Tax Rate: | 8.7973694689 | | | | | |
| | | | | Taxes w/Current Exemptions: | $2,784.03 | | |
| | | | | Taxes w/o Exemptions: | $2,784.03 | | |
Improvement / Building
| Improvement #1: | RESIDENTIAL | State Code: | 11 | 816.0 sqft | Value: | $275,210 |
| Exterior Wall: | SIDING | Heating/Cooling: | WARM & COOLED AIR | | Number of Bathrooms: | 1 | Number of Bedrooms: | 2 | | Plumbing: | 7 | Roof Covering: | COMP SHINGLE |
|
| | Type | Description | Class CD | Sub Class CD | Year Built | Area |
| | MA | Main Area | 1 | 30 | 1920 | 816.0 |
| | SI1 | SITE IMPROVEMENT | 1 | 30 | 1920 | 2.0 |
| | BASE | BASEMENT | 1 | 30 | 1920 | 400.0 |
| | BPF | BASEMENT -PARTITIONED FINISH | 1 | 30 | 2018 | 400.0 |
| | RCD | WOOD DECK W/ROOF, CEILED | 1 | 30 | 1920 | 80.0 |
| | DTG | Detached Garage | 1 | 30 | 2018 | 684.0 |
Sketch
Property Image
Land
| 1 | RES 1 | Converted: Residential | 0.1515 | 6600.00 | 0.00 | 0.00 | 1.00 | $41,250 | $0 |
Roll Value History
| 2025 | N/A | N/A | N/A | N/A | N/A |
| 2024 | $248,020 | $66,000 | $0 | $314,020 | $314,020 |
| 2023 | $275,210 | $41,250 | $0 | $316,460 | $316,460 |
| 2022 | $250,190 | $41,250 | $0 | $291,440 | $291,440 |
| 2021 | $227,450 | $41,250 | $0 | $268,700 | $268,700 |
| 2020 | $151,630 | $41,250 | $0 | $192,880 | $192,880 |
| 2019 | $151,630 | $41,250 | $0 | $192,880 | $192,880 |
| 2018 | $106,500 | $41,250 | $0 | $147,750 | $147,750 |
| 2017 | $47,570 | $26,400 | $0 | $73,970 | $73,970 |
| 2016 | $45,300 | $26,400 | $0 | $71,700 | $71,700 |
| 2015 | $45,300 | $26,400 | $0 | $71,700 | $71,700 |
| 2014 | $45,300 | $26,400 | $0 | $71,700 | $71,700 |
| 2013 | $45,300 | $26,400 | $0 | $71,700 | $71,700 |
| 2012 | $45,300 | $26,400 | $0 | $0 | $0 |
| 2011 | $45,300 | $26,400 | $0 | $0 | $0 |
| 2010 | $41,900 | $26,400 | $0 | $0 | $0 |
| 2009 | $49,500 | $26,400 | $0 | $0 | $0 |
| 2008 | $49,500 | $26,400 | $0 | $0 | $0 |
| 2007 | $49,500 | $26,400 | $0 | $0 | $0 |
| 2006 | $39,100 | $13,200 | $0 | $0 | $0 |
Deed and Sales History
| 1 | 04/10/2024 | QCD | QUIT CLAIM DEED | EATON ANDREW H & STEPHANIE R | EATON ANDREW H | | | | 147371 | 2024-01706 |
| 2 | 02/14/2014 | SWD | STATUTORY WARRANTY DEED | PETTRY SUSAN | EATON ANDREW H & STEPHANIE R | | | $75,000.00 | 125436 | 2014-01112 |
| 3 | 10/31/1996 | WARRANTY D | WARRANTY DEED | | | | | $45,900.00 | 87145 | 2459-610963 |
Payout Agreement
| No payout information available.. |