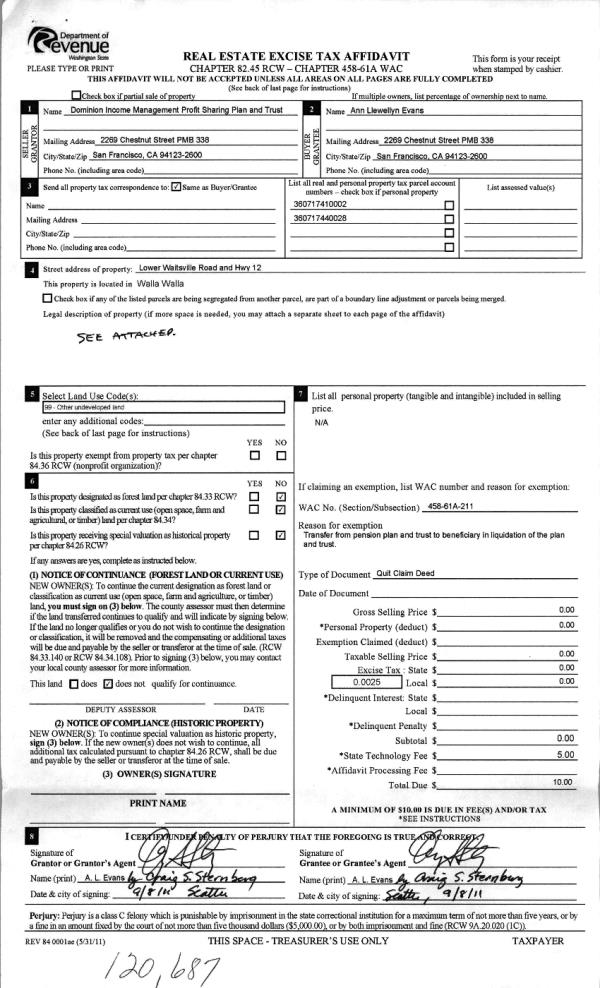
Property
Account |
| Property ID: | 8717 | Abbreviated Legal Description: | GREENS ANNEX TAX 14 BLK 11 LESS ST |
| Parcel Number: | 360721751119 | Agent Code: | |
| Type: | Real | | |
| Tax Area: | 1 - OL-140-F | Land Use Code | 62 |
| Open Space: | N | DFL | N |
| Historic Property: | N | Remodel Property: | N |
| Multi-Family Redevelopment: | N | | |
| Township: | 7 | Section: | 21 |
| Range: | 36 |
Location |
| Address: | 310 N ROOSEVELT ST WA 99362 | Mapsco: | |
| Neighborhood: | WW Downtown Core Area #2 | Map ID: | |
| Neighborhood CD: | 5342 |
Owner |
| Name: | CALHOON RYAN C | Owner ID: | 42770 |
| Mailing Address: | 107 FIRE STATION LANE WALLA WALLA, WA 99362 | % Ownership: | 100.0000000000% |
| | | Exemptions: | |
Taxes and Assessment Details
Values
| (+) Improvement Homesite Value: | + | $0 | |
| (+) Improvement Non-Homesite Value: | + | $20,300 | |
| (+) Land Homesite Value: | + | $0 | |
| (+) Land Non-Homesite Value: | + | $36,300 | |
| (+) Curr Use (HS): | + | $0 | $0 |
| (+) Curr Use (NHS): | + | $0 | $0 |
| | | -------------------------- | |
| (=) Market Value: | = | $56,600 | |
| (–) Productivity Loss: | – | $0 | |
| | | -------------------------- | |
| (=) Subtotal: | = | $56,600 | |
| (+) Senior Appraised Value: | + | $0 | |
| (+) Non-Senior Appraised Value: | + | $56,600 | |
| | | -------------------------- | |
| (=) Total Appraised Value: | = | $56,600 | |
| (–) Senior Exemption Loss: | – | $0 | |
| (–) Exemption Loss: | – | $0 | |
| | | -------------------------- | |
| (=) Taxable Value: | = | $56,600 | |
Taxing Jurisdiction
| Owner: | CALHOON RYAN C | | |
| % Ownership: | 100.0000000000% | | |
| Total Value: | $56,600 | | |
| Tax Area: | 1 - OL-140-F |
| CERFD | CURRENT EXPENSE REFUND 010 | 0.0000000000 | $56,600 | $56,600 | $0.00 | | |
| CURREXP | CURRENT EXPENSE 010 | 1.0175366760 | $56,600 | $56,600 | $57.59 | | |
| HUMNSERV | HUMAN SERVICES 119 | 0.0250000000 | $56,600 | $56,600 | $1.42 | | |
| SLDREL | SOLDIERS RELIEF 121 | 0.0155990005 | $56,600 | $56,600 | $0.88 | | |
| EMERGSER | EMS 147 | 0.3792580840 | $56,600 | $56,600 | $21.47 | | |
| EMSRFD | EMS REFUND 147 | 0.0000000000 | $56,600 | $56,600 | $0.00 | | |
| PORTRFD | PORT REFUND 640 | 0.0000000000 | $56,600 | $56,600 | $0.00 | | |
| PORTWWGEN | PORT OF WW 640 | 0.2460186015 | $56,600 | $56,600 | $13.92 | | |
| SD140BOND | SD #140 BOND 764 | 0.8342371393 | $56,600 | $56,600 | $47.22 | | |
| SD140GEN | SD #140 GENERAL 760 | 2.0646500647 | $56,600 | $56,600 | $116.86 | | |
| ST2 | STATE SCHOOL PART 2 600 | 0.8131451643 | $56,600 | $56,600 | $46.02 | | |
| STATESCHL | STATE SCHOOL 600 | 1.5158548041 | $56,600 | $56,600 | $85.80 | | |
| STREFUND | STATE REFUND LEVY 603 | 0.0000000000 | $56,600 | $56,600 | $0.00 | | |
| CWWBOND | C OF WW BOND 643 | 0.2760494372 | $56,600 | $56,600 | $15.62 | | |
| CWWGEN | CITY OF WW 631 | 1.6100204973 | $56,600 | $56,600 | $91.13 | | |
| CWWRFD | CITY OF WALLA WALLA REFUND 631 | 0.0000000000 | $56,600 | $56,600 | $0.00 | | |
| | Total Tax Rate: | 8.7973694689 | | | | | |
| | | | | Taxes w/Current Exemptions: | $497.93 | | |
| | | | | Taxes w/o Exemptions: | $497.93 | | |
Improvement / Building
| Improvement #1: | COMMERCIAL | State Code: | 62 | 560.0 sqft | Value: | $20,300 |
| | Type | Description | Class CD | Sub Class CD | Year Built | Area |
| | MA | Main Area | D | * | 1957 | 560.0 |
| | SI1 | SITE IMPROVEMENT | D | * | 1957 | 1.0 |
Sketch
Property Image
Land
| 1 | COM 1 | Converted: Commercial | 0.0833 | 3630.00 | 0.00 | 0.00 | 1.00 | $36,300 | $0 |
Roll Value History
| 2025 | N/A | N/A | N/A | N/A | N/A |
| 2024 | $22,800 | $36,300 | $0 | $59,100 | $59,100 |
| 2023 | $20,300 | $36,300 | $0 | $56,600 | $56,600 |
| 2022 | $20,300 | $36,300 | $0 | $56,600 | $56,600 |
| 2021 | $20,300 | $36,300 | $0 | $56,600 | $56,600 |
| 2020 | $20,300 | $36,300 | $0 | $56,600 | $56,600 |
| 2019 | $20,300 | $36,300 | $0 | $56,600 | $56,600 |
| 2018 | $20,300 | $36,300 | $0 | $56,600 | $56,600 |
| 2017 | $20,300 | $36,300 | $0 | $56,600 | $56,600 |
| 2016 | $20,300 | $36,300 | $0 | $56,600 | $56,600 |
| 2015 | $20,300 | $36,300 | $0 | $56,600 | $56,600 |
| 2014 | $20,300 | $36,300 | $0 | $56,600 | $56,600 |
| 2013 | $20,300 | $36,300 | $0 | $56,600 | $56,600 |
| 2012 | $23,600 | $16,300 | $0 | $0 | $0 |
| 2011 | $23,600 | $16,300 | $0 | $0 | $0 |
| 2010 | $23,600 | $16,300 | $0 | $0 | $0 |
| 2009 | $23,600 | $16,300 | $0 | $0 | $0 |
| 2008 | $23,600 | $16,300 | $0 | $0 | $0 |
| 2007 | $23,600 | $16,300 | $0 | $0 | $0 |
| 2006 | $25,800 | $10,900 | $0 | $0 | $0 |
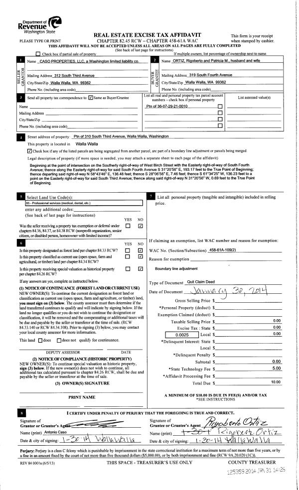
Deed and Sales History
| 1 | 01/22/2018 | QCD | QUIT CLAIM DEED | NORWICK TERRI L | CALHOON RYAN C | | | $0.00 | 134032 | 2018-00638 |
| 2 | 02/22/2001 | COURT CASE | COURT CASE | | CALHOON RYAN C | | | | 0 | CC 09-4-00082-2 |
| 3 | 10/03/2012 | WARRANTY D | WARRANTY DEED | "RABIDUE, CHALESE R" | | | | | 122749 | 2012--08727 |
| 4 | 03/25/1996 | WARRANTY D | WARRANTY DEED | | | | | $40,000.00 | 85818 | 2399-602897 |
Payout Agreement
| No payout information available.. |