Property
Account |
| Property ID: | 8716 | Abbreviated Legal Description: | GREENS ANNEX TAX 12 LOT 4 BLK 11 |
| Parcel Number: | 360721751117 | Agent Code: | |
| Type: | Real | | |
| Tax Area: | 1 - OL-140-F | Land Use Code | 56 |
| Open Space: | N | DFL | N |
| Historic Property: | N | Remodel Property: | N |
| Multi-Family Redevelopment: | N | | |
| Township: | 7 | Section: | 21 |
| Range: | 36 |
Location |
| Address: | 1759 ISAACS AVE WA 99362 | Mapsco: | |
| Neighborhood: | WW Downtown Core Area #2 | Map ID: | |
| Neighborhood CD: | 5342 |
Owner |
| Name: | EZ LAUNDRY LLC | Owner ID: | 70596 |
| Mailing Address: | 2052 GEMSTONE DR WALLA WALLA, WA 99362 | % Ownership: | 100.0000000000% |
| | | Exemptions: | |
Taxes and Assessment Details
Values
| (+) Improvement Homesite Value: | + | $0 | |
| (+) Improvement Non-Homesite Value: | + | $286,600 | |
| (+) Land Homesite Value: | + | $0 | |
| (+) Land Non-Homesite Value: | + | $152,500 | |
| (+) Curr Use (HS): | + | $0 | $0 |
| (+) Curr Use (NHS): | + | $0 | $0 |
| | | -------------------------- | |
| (=) Market Value: | = | $439,100 | |
| (–) Productivity Loss: | – | $0 | |
| | | -------------------------- | |
| (=) Subtotal: | = | $439,100 | |
| (+) Senior Appraised Value: | + | $0 | |
| (+) Non-Senior Appraised Value: | + | $439,100 | |
| | | -------------------------- | |
| (=) Total Appraised Value: | = | $439,100 | |
| (–) Senior Exemption Loss: | – | $0 | |
| (–) Exemption Loss: | – | $0 | |
| | | -------------------------- | |
| (=) Taxable Value: | = | $439,100 | |
Taxing Jurisdiction
| Owner: | EZ LAUNDRY LLC | | |
| % Ownership: | 100.0000000000% | | |
| Total Value: | $439,100 | | |
| Tax Area: | 1 - OL-140-F |
| CERFD | CURRENT EXPENSE REFUND 010 | 0.0000000000 | $439,100 | $439,100 | $0.00 | | |
| CURREXP | CURRENT EXPENSE 010 | 1.0175366760 | $439,100 | $439,100 | $446.80 | | |
| HUMNSERV | HUMAN SERVICES 119 | 0.0250000000 | $439,100 | $439,100 | $10.98 | | |
| SLDREL | SOLDIERS RELIEF 121 | 0.0155990005 | $439,100 | $439,100 | $6.85 | | |
| EMERGSER | EMS 147 | 0.3792580840 | $439,100 | $439,100 | $166.53 | | |
| EMSRFD | EMS REFUND 147 | 0.0000000000 | $439,100 | $439,100 | $0.00 | | |
| PORTRFD | PORT REFUND 640 | 0.0000000000 | $439,100 | $439,100 | $0.00 | | |
| PORTWWGEN | PORT OF WW 640 | 0.2460186015 | $439,100 | $439,100 | $108.03 | | |
| SD140BOND | SD #140 BOND 764 | 0.8342371393 | $439,100 | $439,100 | $366.31 | | |
| SD140GEN | SD #140 GENERAL 760 | 2.0646500647 | $439,100 | $439,100 | $906.59 | | |
| ST2 | STATE SCHOOL PART 2 600 | 0.8131451643 | $439,100 | $439,100 | $357.05 | | |
| STATESCHL | STATE SCHOOL 600 | 1.5158548041 | $439,100 | $439,100 | $665.61 | | |
| STREFUND | STATE REFUND LEVY 603 | 0.0000000000 | $439,100 | $439,100 | $0.00 | | |
| CWWBOND | C OF WW BOND 643 | 0.2760494372 | $439,100 | $439,100 | $121.21 | | |
| CWWGEN | CITY OF WW 631 | 1.6100204973 | $439,100 | $439,100 | $706.96 | | |
| CWWRFD | CITY OF WALLA WALLA REFUND 631 | 0.0000000000 | $439,100 | $439,100 | $0.00 | | |
| | Total Tax Rate: | 8.7973694689 | | | | | |
| | | | | Taxes w/Current Exemptions: | $3,862.92 | | |
| | | | | Taxes w/o Exemptions: | $3,862.92 | | |
Improvement / Building
| Improvement #1: | COMMERCIAL | State Code: | 56 | 4000.0 sqft | Value: | $286,600 |
| | Type | Description | Class CD | Sub Class CD | Year Built | Area |
| | MA | Main Area | D | | 1971 | 4000.0 |
| | SI1 | SITE IMPROVEMENT | D | * | 1971 | 4.0 |
| | PRKSTLA | PARK STALL AVERAGE | D | * | 1971 | 14.0 |
| | APP | APPLIANCE ALLOWANCE | D | * | 1971 | 30.0 |
Sketch
Property Image
Land
| 1 | COM 1 | Converted: Commercial | 0.3502 | 15254.00 | 0.00 | 0.00 | 1.00 | $152,500 | $0 |
Roll Value History
| 2025 | N/A | N/A | N/A | N/A | N/A |
| 2024 | $559,600 | $167,800 | $0 | $727,400 | $727,400 |
| 2023 | $286,600 | $152,500 | $0 | $439,100 | $439,100 |
| 2022 | $286,600 | $152,500 | $0 | $439,100 | $439,100 |
| 2021 | $286,600 | $152,500 | $0 | $439,100 | $439,100 |
| 2020 | $286,600 | $152,500 | $0 | $439,100 | $439,100 |
| 2019 | $286,600 | $152,500 | $0 | $439,100 | $439,100 |
| 2018 | $286,600 | $152,500 | $0 | $439,100 | $439,100 |
| 2017 | $286,600 | $152,500 | $0 | $439,100 | $439,100 |
| 2016 | $180,100 | $152,500 | $0 | $332,600 | $332,600 |
| 2015 | $180,100 | $152,500 | $0 | $332,600 | $332,600 |
| 2014 | $180,100 | $152,500 | $0 | $332,600 | $332,600 |
| 2013 | $180,100 | $152,500 | $0 | $332,600 | $332,600 |
| 2012 | $155,400 | $68,600 | $0 | $0 | $0 |
| 2011 | $155,400 | $68,600 | $0 | $0 | $0 |
| 2010 | $155,400 | $68,600 | $0 | $0 | $0 |
| 2009 | $155,400 | $68,600 | $0 | $0 | $0 |
| 2008 | $155,400 | $68,600 | $0 | $0 | $0 |
| 2007 | $155,400 | $68,600 | $0 | $0 | $0 |
| 2006 | $117,400 | $53,400 | $0 | $0 | $0 |
Deed and Sales History
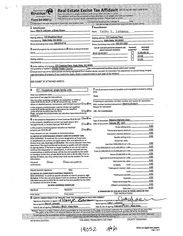
| 1 | 11/15/2021 | SWD | STATUTORY WARRANTY DEED | FRANK L KELLY DISCLAIMER TRUST | EZ LAUNDRY LLC | | | $750,000.00 | 142876 | 2021-13616 |
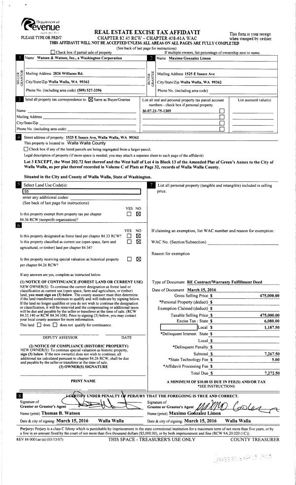
| 2 | 12/02/2016 | SWD | STATUTORY WARRANTY DEED | MORRISON JOHN K | FRANK L KELLY DISCLAIMER TRUST | | | $412,000.00 | 131523 | 2016-09856 |
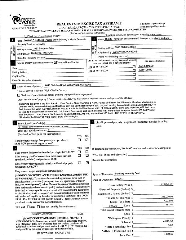
| 3 | 04/28/2011 | WARRANTY D | WARRANTY DEED | MORRISON, JACK M ESTATE OF | MORRISON, JOHN K | | | | 120061 | 2011-03416 |
| 4 | 07/29/2005 | WARRANTY D | WARRANTY DEED | MORRISON KATHERINE H | MORRISON JACK M | | | | 108086 | 2005-09308 |
| 5 | 04/05/1971 | WARRANTY D | WARRANTY DEED | | | | | $35,000.00 | 0 | 3400-513343 |
Payout Agreement
| No payout information available.. |