Property
Account |
| Property ID: | 8714 | Abbreviated Legal Description: | GREENS ANNEX LOT 4 BLK 11 LESS TAX 12 & 15 |
| Parcel Number: | 360721751115 | Agent Code: | |
| Type: | Real | | |
| Tax Area: | 1 - OL-140-F | Land Use Code | 69 |
| Open Space: | N | DFL | N |
| Historic Property: | N | Remodel Property: | N |
| Multi-Family Redevelopment: | N | | |
| Township: | 7 | Section: | 21 |
| Range: | 36 |
Location |
| Address: | 1737 ISAACS AVE WA 99362 | Mapsco: | |
| Neighborhood: | WW Downtown Core Area #2 | Map ID: | |
| Neighborhood CD: | 5342 |
Owner |
| Name: | THOMAS MICHAEL W ET AL | Owner ID: | 70930 |
| Mailing Address: | PO BOX 1813 WALLA WALLA, WA 99362 | % Ownership: | 100.0000000000% |
| | | Exemptions: | |
Taxes and Assessment Details
Values
| (+) Improvement Homesite Value: | + | $0 | |
| (+) Improvement Non-Homesite Value: | + | $216,300 | |
| (+) Land Homesite Value: | + | $0 | |
| (+) Land Non-Homesite Value: | + | $200,000 | |
| (+) Curr Use (HS): | + | $0 | $0 |
| (+) Curr Use (NHS): | + | $0 | $0 |
| | | -------------------------- | |
| (=) Market Value: | = | $416,300 | |
| (–) Productivity Loss: | – | $0 | |
| | | -------------------------- | |
| (=) Subtotal: | = | $416,300 | |
| (+) Senior Appraised Value: | + | $0 | |
| (+) Non-Senior Appraised Value: | + | $416,300 | |
| | | -------------------------- | |
| (=) Total Appraised Value: | = | $416,300 | |
| (–) Senior Exemption Loss: | – | $0 | |
| (–) Exemption Loss: | – | $0 | |
| | | -------------------------- | |
| (=) Taxable Value: | = | $416,300 | |
Taxing Jurisdiction
| Owner: | THOMAS MICHAEL W ET AL | | |
| % Ownership: | 100.0000000000% | | |
| Total Value: | $416,300 | | |
| Tax Area: | 1 - OL-140-F |
| CERFD | CURRENT EXPENSE REFUND 010 | 0.0000000000 | $416,300 | $416,300 | $0.00 | | |
| CURREXP | CURRENT EXPENSE 010 | 1.0175366760 | $416,300 | $416,300 | $423.60 | | |
| HUMNSERV | HUMAN SERVICES 119 | 0.0250000000 | $416,300 | $416,300 | $10.41 | | |
| SLDREL | SOLDIERS RELIEF 121 | 0.0155990005 | $416,300 | $416,300 | $6.49 | | |
| EMERGSER | EMS 147 | 0.3792580840 | $416,300 | $416,300 | $157.89 | | |
| EMSRFD | EMS REFUND 147 | 0.0000000000 | $416,300 | $416,300 | $0.00 | | |
| PORTRFD | PORT REFUND 640 | 0.0000000000 | $416,300 | $416,300 | $0.00 | | |
| PORTWWGEN | PORT OF WW 640 | 0.2460186015 | $416,300 | $416,300 | $102.42 | | |
| SD140BOND | SD #140 BOND 764 | 0.8342371393 | $416,300 | $416,300 | $347.29 | | |
| SD140GEN | SD #140 GENERAL 760 | 2.0646500647 | $416,300 | $416,300 | $859.51 | | |
| ST2 | STATE SCHOOL PART 2 600 | 0.8131451643 | $416,300 | $416,300 | $338.51 | | |
| STATESCHL | STATE SCHOOL 600 | 1.5158548041 | $416,300 | $416,300 | $631.05 | | |
| STREFUND | STATE REFUND LEVY 603 | 0.0000000000 | $416,300 | $416,300 | $0.00 | | |
| CWWBOND | C OF WW BOND 643 | 0.2760494372 | $416,300 | $416,300 | $114.92 | | |
| CWWGEN | CITY OF WW 631 | 1.6100204973 | $416,300 | $416,300 | $670.25 | | |
| CWWRFD | CITY OF WALLA WALLA REFUND 631 | 0.0000000000 | $416,300 | $416,300 | $0.00 | | |
| | Total Tax Rate: | 8.7973694689 | | | | | |
| | | | | Taxes w/Current Exemptions: | $3,662.34 | | |
| | | | | Taxes w/o Exemptions: | $3,662.34 | | |
Improvement / Building
| Improvement #1: | COMMERCIAL | State Code: | 69 | 9476.0 sqft | Value: | $216,300 |
| | Type | Description | Class CD | Sub Class CD | Year Built | Area |
| | MA | Main Area | D | | 1986 | 9476.0 |
| | SI1 | SITE IMPROVEMENT | D | * | 1986 | 7.0 |
Sketch
Property Image
Land
| 1 | COM 1 | Converted: Commercial | 0.4591 | 20000.00 | 0.00 | 0.00 | 1.00 | $200,000 | $0 |
Roll Value History
| 2025 | N/A | N/A | N/A | N/A | N/A |
| 2024 | $222,100 | $200,000 | $0 | $422,100 | $422,100 |
| 2023 | $216,300 | $200,000 | $0 | $416,300 | $416,300 |
| 2022 | $100,400 | $200,000 | $0 | $300,400 | $300,400 |
| 2021 | $100,400 | $200,000 | $0 | $300,400 | $300,400 |
| 2020 | $100,400 | $200,000 | $0 | $300,400 | $300,400 |
| 2019 | $100,400 | $200,000 | $0 | $300,400 | $300,400 |
| 2018 | $100,400 | $200,000 | $0 | $300,400 | $300,400 |
| 2017 | $89,500 | $200,000 | $0 | $289,500 | $289,500 |
| 2016 | $89,500 | $200,000 | $0 | $289,500 | $289,500 |
| 2015 | $89,500 | $200,000 | $0 | $289,500 | $289,500 |
| 2014 | $89,500 | $200,000 | $0 | $289,500 | $289,500 |
| 2013 | $89,500 | $200,000 | $0 | $289,500 | $289,500 |
| 2012 | $186,100 | $70,000 | $0 | $0 | $0 |
| 2011 | $186,100 | $70,000 | $0 | $0 | $0 |
| 2010 | $186,100 | $70,000 | $0 | $0 | $0 |
| 2009 | $186,100 | $70,000 | $0 | $0 | $0 |
| 2008 | $168,700 | $70,000 | $0 | $0 | $0 |
| 2007 | $168,700 | $70,000 | $0 | $0 | $0 |
| 2006 | $142,800 | $39,100 | $0 | $0 | $0 |
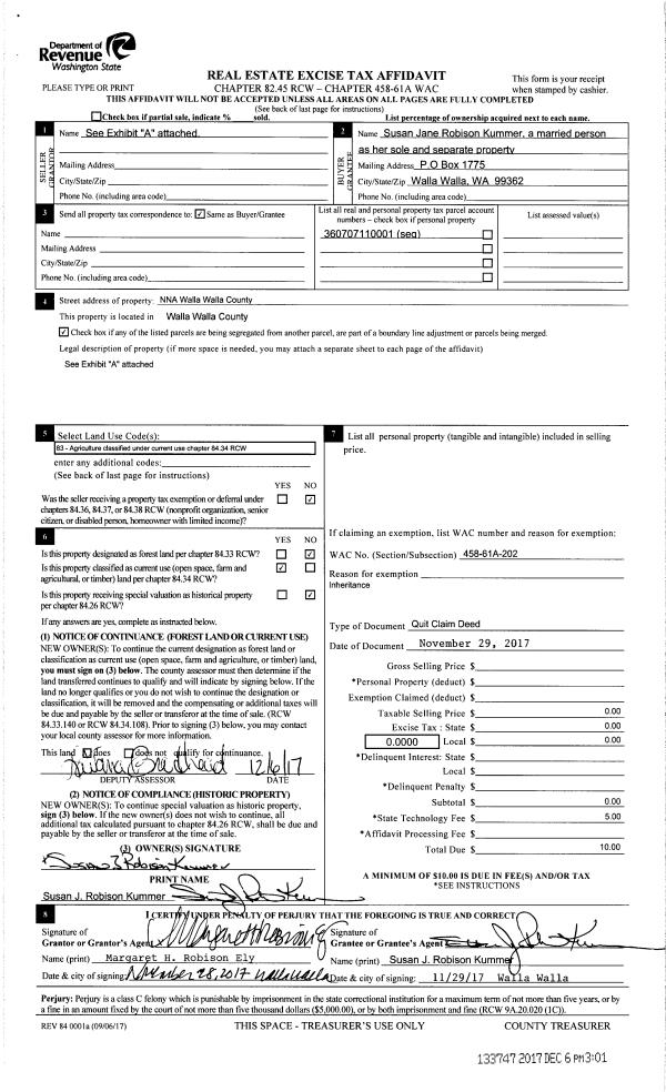
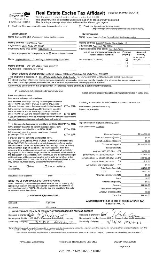
Deed and Sales History
| 1 | 12/21/2021 | SWD | STATUTORY WARRANTY DEED | ESARY MARY GARNER TRUST | THOMAS MICHAEL W ET AL | | 2-PARCELS | $725,000.00 | 143101 | 2021-14954 |
|   | |
| 2 | 06/13/1984 | WARRANTY D | WARRANTY DEED | | | | | $0.00 | 0 | 1448-404202 |
Payout Agreement
| No payout information available.. |