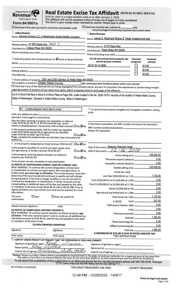
Property
Account |
| Property ID: | 8593 | Abbreviated Legal Description: | VILLAGES OF GARRISON CREEK P.U.D. PHASE VII LOT 114 |
| Parcel Number: | 350736880001 | Agent Code: | |
| Type: | Real | | |
| Tax Area: | 77 - CP-250-F | Land Use Code | 11 |
| Open Space: | N | DFL | N |
| Historic Property: | N | Remodel Property: | N |
| Multi-Family Redevelopment: | N | | |
| Township: | 7 | Section: | 36 |
| Range: | 35 |
Location |
| Address: | 705 SE HERON DR WA 99324 | Mapsco: | |
| Neighborhood: | G SFR | Map ID: | |
| Neighborhood CD: | 114011 |
Owner |
| Name: | NELSON DONALD JR & MENELL | Owner ID: | 70471 |
| Mailing Address: | 705 SE HERON DR COLLEGE PLACE, WA 99324 | % Ownership: | 100.0000000000% |
| | | Exemptions: | |
Taxes and Assessment Details
Values
| (+) Improvement Homesite Value: | + | $0 | |
| (+) Improvement Non-Homesite Value: | + | $431,570 | |
| (+) Land Homesite Value: | + | $0 | |
| (+) Land Non-Homesite Value: | + | $75,000 | |
| (+) Curr Use (HS): | + | $0 | $0 |
| (+) Curr Use (NHS): | + | $0 | $0 |
| | | -------------------------- | |
| (=) Market Value: | = | $506,570 | |
| (–) Productivity Loss: | – | $0 | |
| | | -------------------------- | |
| (=) Subtotal: | = | $506,570 | |
| (+) Senior Appraised Value: | + | $0 | |
| (+) Non-Senior Appraised Value: | + | $506,570 | |
| | | -------------------------- | |
| (=) Total Appraised Value: | = | $506,570 | |
| (–) Senior Exemption Loss: | – | $0 | |
| (–) Exemption Loss: | – | $0 | |
| | | -------------------------- | |
| (=) Taxable Value: | = | $506,570 | |
Taxing Jurisdiction
| Owner: | NELSON DONALD JR & MENELL | | |
| % Ownership: | 100.0000000000% | | |
| Total Value: | $506,570 | | |
| Tax Area: | 77 - CP-250-F |
| CERFD | CURRENT EXPENSE REFUND 010 | 0.0000000000 | $506,570 | $506,570 | $0.00 | | |
| CURREXP | CURRENT EXPENSE 010 | 1.0175366760 | $506,570 | $506,570 | $515.45 | | |
| HUMNSERV | HUMAN SERVICES 119 | 0.0250000000 | $506,570 | $506,570 | $12.66 | | |
| SLDREL | SOLDIERS RELIEF 121 | 0.0155990005 | $506,570 | $506,570 | $7.90 | | |
| COLLPLBOND | C OF CP BOND 644 | 0.4374241808 | $506,570 | $506,570 | $221.59 | | |
| COLLPLGEN | CITY OF CP 632 | 1.4453819216 | $506,570 | $506,570 | $732.19 | | |
| EMERGSER | EMS 147 | 0.3792580840 | $506,570 | $506,570 | $192.12 | | |
| EMSRFD | EMS REFUND 147 | 0.0000000000 | $506,570 | $506,570 | $0.00 | | |
| RURALLIB | RURAL LIBRARY 623 | 0.3710609029 | $506,570 | $506,570 | $187.97 | | |
| PORTRFD | PORT REFUND 640 | 0.0000000000 | $506,570 | $506,570 | $0.00 | | |
| PORTWWGEN | PORT OF WW 640 | 0.2460186015 | $506,570 | $506,570 | $124.63 | | |
| SD250BOND | SD #250 BOND 773 | 1.4560608159 | $506,570 | $506,570 | $737.60 | | |
| SD250GEN | SD #250 GENERAL 770 | 2.3880724087 | $506,570 | $506,570 | $1,209.73 | | |
| ST2 | STATE SCHOOL PART 2 600 | 0.8131451643 | $506,570 | $506,570 | $411.91 | | |
| STATESCHL | STATE SCHOOL 600 | 1.5158548041 | $506,570 | $506,570 | $767.89 | | |
| STREFUND | STATE REFUND LEVY 603 | 0.0000000000 | $506,570 | $506,570 | $0.00 | | |
| | Total Tax Rate: | 10.1104125603 | | | | | |
| | | | | Taxes w/Current Exemptions: | $5,121.64 | | |
| | | | | Taxes w/o Exemptions: | $5,121.64 | | |
Improvement / Building
| Improvement #1: | RESIDENTIAL | State Code: | 11 | 2032.0 sqft | Value: | $431,570 |
| Exterior Wall: | SIDING | Heating/Cooling: | WARM & COOLED AIR | | Number of Bathrooms: | 2 | Number of Bedrooms: | 3 | | Plumbing: | 13 | Roof Covering: | COMP SHINGLE |
|
| | Type | Description | Class CD | Sub Class CD | Year Built | Area |
| | MA | Main Area | 1 | 40 | 2004 | 2032.0 |
| | SI1 | SITE IMPROVEMENT | 1 | 40 | 0 | 3.0 |
| | ATG | Attached Garage | 1 | 40 | 2004 | 420.0 |
| | GFP | GAS FIREPLACE | 1 | 40 | 2004 | 1.0 |
| | RPC | OPEN PORCH W/ROOF , CEILED | 1 | 40 | 2004 | 60.0 |
| | RPC | OPEN PORCH W/ROOF , CEILED | 1 | 40 | 2004 | 125.0 |
Sketch
Property Image
Land
| 1 | RES 1 | Converted: Residential | 0.1286 | 5603.00 | 0.00 | 0.00 | 1.00 | $75,000 | $0 |
Roll Value History
| 2025 | N/A | N/A | N/A | N/A | N/A |
| 2024 | $431,570 | $75,000 | $0 | $506,570 | $506,570 |
| 2023 | $431,570 | $75,000 | $0 | $506,570 | $506,570 |
| 2022 | $411,020 | $75,000 | $0 | $486,020 | $486,020 |
| 2021 | $357,410 | $75,000 | $0 | $432,410 | $432,410 |
| 2020 | $274,930 | $75,000 | $0 | $349,930 | $349,930 |
| 2019 | $284,930 | $65,000 | $0 | $349,930 | $349,930 |
| 2018 | $247,770 | $65,000 | $0 | $312,770 | $312,770 |
| 2017 | $235,970 | $65,000 | $0 | $300,970 | $300,970 |
| 2016 | $224,730 | $65,000 | $0 | $289,730 | $289,730 |
| 2015 | $204,300 | $65,000 | $0 | $269,300 | $269,300 |
| 2014 | $204,300 | $65,000 | $0 | $269,300 | $269,300 |
| 2013 | $204,300 | $65,000 | $0 | $269,300 | $269,300 |
| 2012 | $234,200 | $65,000 | $0 | $0 | $0 |
| 2011 | $234,200 | $65,000 | $0 | $0 | $0 |
| 2010 | $234,200 | $65,000 | $0 | $0 | $0 |
| 2009 | $249,900 | $65,000 | $0 | $0 | $0 |
| 2008 | $221,000 | $35,000 | $0 | $0 | $0 |
| 2007 | $221,000 | $35,000 | $0 | $0 | $0 |
| 2006 | $221,000 | $35,000 | $0 | $0 | $0 |
Deed and Sales History
| 1 | 10/19/2021 | SWD | STATUTORY WARRANTY DEED | WADE JENNIFER M | NELSON DONALD JR & MENELL | | | $500,000.00 | 142710 | 2021-12693 |
| 2 | 07/08/2020 | SWD | STATUTORY WARRANTY DEED | VOGEL MARILYN R | WADE JENNIFER M | | | $415,000.00 | 139437 | 2020-06438 |
| 3 | 04/30/2018 | SWD | STATUTORY WARRANTY DEED | JACQUE KARIE MARIE | VOGEL MARILYN R | | | $356,000.00 | 134605 | 2018-03394 |
| 4 | 11/15/2016 | SWD | STATUTORY WARRANTY DEED | EHREN JOHN J & MELISSA | JACQUE KARIE MARIE | | | $349,000.00 | 131437 | 2016-09462 |
| 5 | 11/15/2012 | WARRANTY D | WARRANTY DEED | WESTENSKOW, AUDREY | EHREN, JOHN J & MELISSA | | | $285,000.00 | 123005 | 2012-10100 |
| 6 | 11/09/2006 | WARRANTY D | WARRANTY DEED | VALAER, EUGENE W & DOROTHY | WESTENSKOW, RON & AUDREY | | | $320,000.00 | 111625 | 2006-13517 |
| 7 | 04/20/2005 | WARRANTY D | WARRANTY DEED | PHASE FIVE DEVELOPMENT LLC | VALAER, EUGENE W & DOROTHY | | | $269,500.00 | 107284 | 2005-04472 |
Payout Agreement
| No payout information available.. |