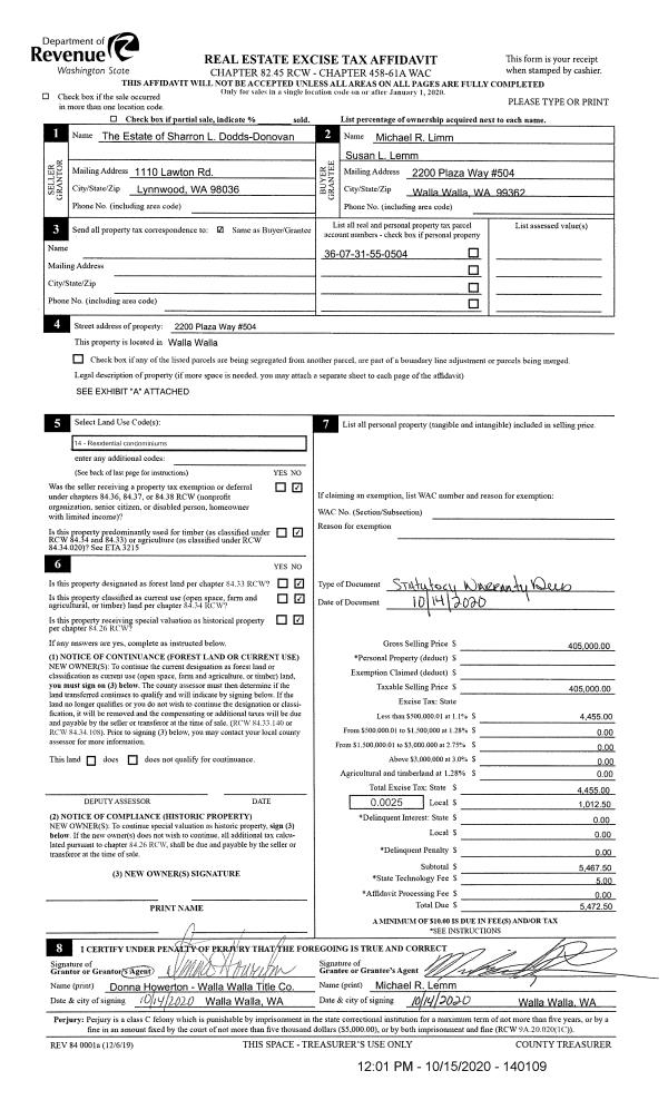
Property
Account |
| Property ID: | 8567 | Abbreviated Legal Description: | BLALOCK ORCHARDS ELY PTN TAX 7 BLK 38 |
| Parcel Number: | 350726523831 | Agent Code: | |
| Type: | Real | | |
| Tax Area: | 75 - CP 250 | Land Use Code | 11 |
| Open Space: | N | DFL | N |
| Historic Property: | N | Remodel Property: | N |
| Multi-Family Redevelopment: | N | | |
| Township: | 7 | Section: | 26 |
| Range: | 35 |
Location |
| Address: | 317 N COLLEGE AVE WA 99324 | Mapsco: | |
| Neighborhood: | A SFR | Map ID: | |
| Neighborhood CD: | 113011 |
Owner |
| Name: | CHAFFEY MATTHEW T & CARMEN R | Owner ID: | 64348 |
| Mailing Address: | 317 N COLLEGE AVE COLLEGE PLACE, WA 99324 | % Ownership: | 100.0000000000% |
| | | Exemptions: | |
Taxes and Assessment Details
Values
| (+) Improvement Homesite Value: | + | $0 | |
| (+) Improvement Non-Homesite Value: | + | $228,290 | |
| (+) Land Homesite Value: | + | $0 | |
| (+) Land Non-Homesite Value: | + | $62,860 | |
| (+) Curr Use (HS): | + | $0 | $0 |
| (+) Curr Use (NHS): | + | $0 | $0 |
| | | -------------------------- | |
| (=) Market Value: | = | $291,150 | |
| (–) Productivity Loss: | – | $0 | |
| | | -------------------------- | |
| (=) Subtotal: | = | $291,150 | |
| (+) Senior Appraised Value: | + | $0 | |
| (+) Non-Senior Appraised Value: | + | $291,150 | |
| | | -------------------------- | |
| (=) Total Appraised Value: | = | $291,150 | |
| (–) Senior Exemption Loss: | – | $0 | |
| (–) Exemption Loss: | – | $0 | |
| | | -------------------------- | |
| (=) Taxable Value: | = | $291,150 | |
Taxing Jurisdiction
| Owner: | CHAFFEY MATTHEW T & CARMEN R | | |
| % Ownership: | 100.0000000000% | | |
| Total Value: | $291,150 | | |
| Tax Area: | 75 - CP 250 |
| CERFD | CURRENT EXPENSE REFUND 010 | 0.0000000000 | $291,150 | $291,150 | $0.00 | | |
| CURREXP | CURRENT EXPENSE 010 | 1.0175366760 | $291,150 | $291,150 | $296.26 | | |
| HUMNSERV | HUMAN SERVICES 119 | 0.0250000000 | $291,150 | $291,150 | $7.28 | | |
| SLDREL | SOLDIERS RELIEF 121 | 0.0155990005 | $291,150 | $291,150 | $4.54 | | |
| COLLPLBOND | C OF CP BOND 644 | 0.4374241808 | $291,150 | $291,150 | $127.36 | | |
| COLLPLGEN | CITY OF CP 632 | 1.4453819216 | $291,150 | $291,150 | $420.82 | | |
| EMERGSER | EMS 147 | 0.3792580840 | $291,150 | $291,150 | $110.42 | | |
| EMSRFD | EMS REFUND 147 | 0.0000000000 | $291,150 | $291,150 | $0.00 | | |
| RURALLIB | RURAL LIBRARY 623 | 0.3710609029 | $291,150 | $291,150 | $108.03 | | |
| PORTRFD | PORT REFUND 640 | 0.0000000000 | $291,150 | $291,150 | $0.00 | | |
| PORTWWGEN | PORT OF WW 640 | 0.2460186015 | $291,150 | $291,150 | $71.63 | | |
| SD250BOND | SD #250 BOND 773 | 1.4560608159 | $291,150 | $291,150 | $423.93 | | |
| SD250GEN | SD #250 GENERAL 770 | 2.3880724087 | $291,150 | $291,150 | $695.29 | | |
| ST2 | STATE SCHOOL PART 2 600 | 0.8131451643 | $291,150 | $291,150 | $236.75 | | |
| STATESCHL | STATE SCHOOL 600 | 1.5158548041 | $291,150 | $291,150 | $441.34 | | |
| STREFUND | STATE REFUND LEVY 603 | 0.0000000000 | $291,150 | $291,150 | $0.00 | | |
| | Total Tax Rate: | 10.1104125603 | | | | | |
| | | | | Taxes w/Current Exemptions: | $2,943.65 | | |
| | | | | Taxes w/o Exemptions: | $2,943.65 | | |
Improvement / Building
| Improvement #1: | RESIDENTIAL | State Code: | 11 | 920.0 sqft | Value: | $228,290 |
| Exterior Wall: | SIDING | Heating/Cooling: | WARM & COOLED AIR | | Number of Bathrooms: | 1.5 | Number of Bedrooms: | 2 | | Plumbing: | 8 | Roof Covering: | COMP SHINGLE |
|
| | Type | Description | Class CD | Sub Class CD | Year Built | Area |
| | MA | Main Area | 1 | 30 | 1937 | 920.0 |
| | SI1 | SITE IMPROVEMENT | 1 | 30 | 1937 | 1.0 |
| | BASE | BASEMENT | 1 | 30 | 1937 | 920.0 |
| | DTG | Detached Garage | 1 | 30 | 1937 | 720.0 |
| | RPO | OPEN PORCH W/ROOF | 1 | 30 | 1937 | 16.0 |
Sketch
Property Image
Land
| 1 | RES 1 | Converted: Residential | 0.2945 | 12828.00 | 0.00 | 0.00 | 1.00 | $62,860 | $0 |
Roll Value History
| 2025 | N/A | N/A | N/A | N/A | N/A |
| 2024 | $228,290 | $62,860 | $0 | $291,150 | $291,150 |
| 2023 | $228,290 | $62,860 | $0 | $291,150 | $291,150 |
| 2022 | $190,240 | $62,860 | $0 | $253,100 | $253,100 |
| 2021 | $152,190 | $62,860 | $0 | $215,050 | $215,050 |
| 2020 | $84,550 | $62,860 | $0 | $147,410 | $147,410 |
| 2019 | $97,910 | $49,500 | $0 | $147,410 | $147,410 |
| 2018 | $93,240 | $49,500 | $0 | $142,740 | $142,740 |
| 2017 | $71,730 | $49,500 | $0 | $121,230 | $121,230 |
| 2016 | $71,730 | $49,500 | $0 | $121,230 | $121,230 |
| 2015 | $68,310 | $49,500 | $0 | $117,810 | $117,810 |
| 2014 | $75,900 | $49,500 | $0 | $125,400 | $125,400 |
| 2013 | $75,900 | $49,500 | $0 | $125,400 | $125,400 |
| 2012 | $75,900 | $49,500 | $0 | $0 | $0 |
| 2011 | $75,900 | $49,500 | $0 | $0 | $0 |
| 2010 | $75,900 | $49,500 | $0 | $0 | $0 |
| 2009 | $97,600 | $49,500 | $0 | $0 | $0 |
| 2008 | $63,200 | $27,200 | $0 | $0 | $0 |
| 2007 | $63,200 | $27,200 | $0 | $0 | $0 |
| 2006 | $63,200 | $27,200 | $0 | $0 | $0 |
Deed and Sales History
| 1 | 12/21/2018 | QCD | QUIT CLAIM DEED | HARVEY CARMEN RENEE | CHAFFEY MATTHEW T & CARMEN R | | | $0.00 | 136154 | 2018-10635 |
| 2 | 03/31/2004 | WARRANTY D | WARRANTY DEED | HAYS, JON D | CHAFFEY, MATTHEW THOMAS | | | $75,000.00 | 104394 | 2004-03378 |
| 3 | 03/31/2004 | PACD | PURCHASER'S ASSG CONTRACT&DEED | CHAFFEY, MATTHEW THOMAS | HARVEY, CARMEN RENEE | | | $36,745.00 | 104395 | 2004-03379 |
| 4 | 09/30/1992 | WARRANTY D | WARRANTY DEED | | | | | $40,000.00 | 77686 | 2009-208704 |
Payout Agreement
| No payout information available.. |