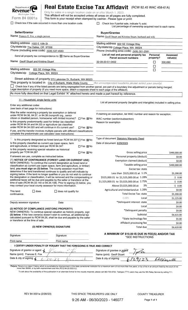
Property
Account |
| Property ID: | 8494 | Abbreviated Legal Description: | WATERTOWN LOT 10 BLK 10 |
| Parcel Number: | 360721731010 | Agent Code: | |
| Type: | Real | | |
| Tax Area: | 1 - OL-140-F | Land Use Code | 11 |
| Open Space: | N | DFL | N |
| Historic Property: | N | Remodel Property: | N |
| Multi-Family Redevelopment: | N | | |
| Township: | 7 | Section: | 21 |
| Range: | 36 |
Location |
| Address: | 1503 RUTH ST WA 99362 | Mapsco: | |
| Neighborhood: | A-SFR | Map ID: | |
| Neighborhood CD: | 513011 |
Owner |
| Name: | LOUTSIS CAROLINE J | Owner ID: | 9336 |
| Mailing Address: | C/O CHRIS LOUTSIS 1250 DEERING HOFF MOXEE, WA 98936 | % Ownership: | 100.0000000000% |
| | | Exemptions: | |
Taxes and Assessment Details
Values
| (+) Improvement Homesite Value: | + | $0 | |
| (+) Improvement Non-Homesite Value: | + | $148,200 | |
| (+) Land Homesite Value: | + | $0 | |
| (+) Land Non-Homesite Value: | + | $46,880 | |
| (+) Curr Use (HS): | + | $0 | $0 |
| (+) Curr Use (NHS): | + | $0 | $0 |
| | | -------------------------- | |
| (=) Market Value: | = | $195,080 | |
| (–) Productivity Loss: | – | $0 | |
| | | -------------------------- | |
| (=) Subtotal: | = | $195,080 | |
| (+) Senior Appraised Value: | + | $0 | |
| (+) Non-Senior Appraised Value: | + | $195,080 | |
| | | -------------------------- | |
| (=) Total Appraised Value: | = | $195,080 | |
| (–) Senior Exemption Loss: | – | $0 | |
| (–) Exemption Loss: | – | $0 | |
| | | -------------------------- | |
| (=) Taxable Value: | = | $195,080 | |
Taxing Jurisdiction
| Owner: | LOUTSIS CAROLINE J | | |
| % Ownership: | 100.0000000000% | | |
| Total Value: | $195,080 | | |
| Tax Area: | 1 - OL-140-F |
| CERFD | CURRENT EXPENSE REFUND 010 | 0.0000000000 | $195,080 | $195,080 | $0.00 | | |
| CURREXP | CURRENT EXPENSE 010 | 1.0175366760 | $195,080 | $195,080 | $198.50 | | |
| HUMNSERV | HUMAN SERVICES 119 | 0.0250000000 | $195,080 | $195,080 | $4.88 | | |
| SLDREL | SOLDIERS RELIEF 121 | 0.0155990005 | $195,080 | $195,080 | $3.04 | | |
| EMERGSER | EMS 147 | 0.3792580840 | $195,080 | $195,080 | $73.99 | | |
| EMSRFD | EMS REFUND 147 | 0.0000000000 | $195,080 | $195,080 | $0.00 | | |
| PORTRFD | PORT REFUND 640 | 0.0000000000 | $195,080 | $195,080 | $0.00 | | |
| PORTWWGEN | PORT OF WW 640 | 0.2460186015 | $195,080 | $195,080 | $47.99 | | |
| SD140BOND | SD #140 BOND 764 | 0.8342371393 | $195,080 | $195,080 | $162.74 | | |
| SD140GEN | SD #140 GENERAL 760 | 2.0646500647 | $195,080 | $195,080 | $402.77 | | |
| ST2 | STATE SCHOOL PART 2 600 | 0.8131451643 | $195,080 | $195,080 | $158.63 | | |
| STATESCHL | STATE SCHOOL 600 | 1.5158548041 | $195,080 | $195,080 | $295.71 | | |
| STREFUND | STATE REFUND LEVY 603 | 0.0000000000 | $195,080 | $195,080 | $0.00 | | |
| CWWBOND | C OF WW BOND 643 | 0.2760494372 | $195,080 | $195,080 | $53.85 | | |
| CWWGEN | CITY OF WW 631 | 1.6100204973 | $195,080 | $195,080 | $314.08 | | |
| CWWRFD | CITY OF WALLA WALLA REFUND 631 | 0.0000000000 | $195,080 | $195,080 | $0.00 | | |
| | Total Tax Rate: | 8.7973694689 | | | | | |
| | | | | Taxes w/Current Exemptions: | $1,716.18 | | |
| | | | | Taxes w/o Exemptions: | $1,716.18 | | |
Improvement / Building
| Improvement #1: | RESIDENTIAL | State Code: | 11 | 920.0 sqft | Value: | $148,200 |
| Exterior Wall: | PLYWOOD | Heating/Cooling: | BASEBOARD ELECTRIC | | Number of Bathrooms: | 1 | Number of Bedrooms: | 2 | | Plumbing: | 6 | Roof Covering: | METAL ROOFING |
|
| | Type | Description | Class CD | Sub Class CD | Year Built | Area |
| | MA | Main Area | 1 | 20 | 1906 | 920.0 |
| | SI1 | SITE IMPROVEMENT | 1 | 20 | 1906 | 1.0 |
| | WOD | Wood Deck | 1 | 20 | 1906 | 68.0 |
Sketch
Property Image
Land
| 1 | RES 1 | Converted: Residential | 0.1722 | 7500.00 | 0.00 | 0.00 | 1.00 | $46,880 | $0 |
Roll Value History
| 2025 | N/A | N/A | N/A | N/A | N/A |
| 2024 | $114,070 | $75,000 | $0 | $189,070 | $189,070 |
| 2023 | $148,200 | $46,880 | $0 | $195,080 | $195,080 |
| 2022 | $148,200 | $46,880 | $0 | $195,080 | $195,080 |
| 2021 | $98,800 | $46,880 | $0 | $145,680 | $145,680 |
| 2020 | $65,870 | $46,880 | $0 | $112,750 | $112,750 |
| 2019 | $65,870 | $46,880 | $0 | $112,750 | $112,750 |
| 2018 | $54,890 | $46,880 | $0 | $101,770 | $101,770 |
| 2017 | $42,960 | $30,000 | $0 | $72,960 | $72,960 |
| 2016 | $35,800 | $30,000 | $0 | $65,800 | $65,800 |
| 2015 | $35,800 | $30,000 | $0 | $65,800 | $65,800 |
| 2014 | $35,800 | $30,000 | $0 | $65,800 | $65,800 |
| 2013 | $35,800 | $30,000 | $0 | $65,800 | $65,800 |
| 2012 | $35,800 | $30,000 | $0 | $0 | $0 |
| 2011 | $52,300 | $30,000 | $0 | $0 | $0 |
| 2010 | $52,300 | $30,000 | $0 | $0 | $0 |
| 2009 | $61,400 | $30,000 | $0 | $0 | $0 |
| 2008 | $33,500 | $30,000 | $0 | $0 | $0 |
| 2007 | $33,500 | $30,000 | $0 | $0 | $0 |
| 2006 | $33,000 | $15,000 | $0 | $0 | $0 |
Deed and Sales History
| 1 | 08/15/1989 | QCD | QUIT CLAIM DEED | | | | | $0.00 | 0 | 1778-905164 |
Payout Agreement
| No payout information available.. |