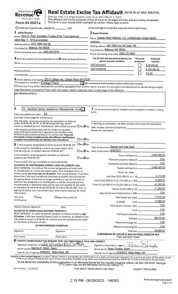
Property
Account |
| Property ID: | 8488 | Abbreviated Legal Description: | WATERTOWN LOT 4 BLK 10 |
| Parcel Number: | 360721731004 | Agent Code: | |
| Type: | Real | | |
| Tax Area: | 1 - OL-140-F | Land Use Code | 11 |
| Open Space: | N | DFL | N |
| Historic Property: | N | Remodel Property: | N |
| Multi-Family Redevelopment: | N | | |
| Township: | 7 | Section: | 21 |
| Range: | 36 |
Location |
| Address: | 1534 OLIVE ST WA 99362 | Mapsco: | |
| Neighborhood: | A-SFR | Map ID: | |
| Neighborhood CD: | 513011 |
Owner |
| Name: | BROUGHTON V CHARLES J | Owner ID: | 66643 |
| Mailing Address: | 1534 OLIVE ST WALLA WALLA, WA 99362 | % Ownership: | 100.0000000000% |
| | | Exemptions: | |
Taxes and Assessment Details
Values
| (+) Improvement Homesite Value: | + | $0 | |
| (+) Improvement Non-Homesite Value: | + | $192,270 | |
| (+) Land Homesite Value: | + | $0 | |
| (+) Land Non-Homesite Value: | + | $46,880 | |
| (+) Curr Use (HS): | + | $0 | $0 |
| (+) Curr Use (NHS): | + | $0 | $0 |
| | | -------------------------- | |
| (=) Market Value: | = | $239,150 | |
| (–) Productivity Loss: | – | $0 | |
| | | -------------------------- | |
| (=) Subtotal: | = | $239,150 | |
| (+) Senior Appraised Value: | + | $0 | |
| (+) Non-Senior Appraised Value: | + | $239,150 | |
| | | -------------------------- | |
| (=) Total Appraised Value: | = | $239,150 | |
| (–) Senior Exemption Loss: | – | $0 | |
| (–) Exemption Loss: | – | $0 | |
| | | -------------------------- | |
| (=) Taxable Value: | = | $239,150 | |
Taxing Jurisdiction
| Owner: | BROUGHTON V CHARLES J | | |
| % Ownership: | 100.0000000000% | | |
| Total Value: | $239,150 | | |
| Tax Area: | 1 - OL-140-F |
| CERFD | CURRENT EXPENSE REFUND 010 | 0.0000000000 | $239,150 | $239,150 | $0.00 | | |
| CURREXP | CURRENT EXPENSE 010 | 1.0175366760 | $239,150 | $239,150 | $243.34 | | |
| HUMNSERV | HUMAN SERVICES 119 | 0.0250000000 | $239,150 | $239,150 | $5.98 | | |
| SLDREL | SOLDIERS RELIEF 121 | 0.0155990005 | $239,150 | $239,150 | $3.73 | | |
| EMERGSER | EMS 147 | 0.3792580840 | $239,150 | $239,150 | $90.70 | | |
| EMSRFD | EMS REFUND 147 | 0.0000000000 | $239,150 | $239,150 | $0.00 | | |
| PORTRFD | PORT REFUND 640 | 0.0000000000 | $239,150 | $239,150 | $0.00 | | |
| PORTWWGEN | PORT OF WW 640 | 0.2460186015 | $239,150 | $239,150 | $58.84 | | |
| SD140BOND | SD #140 BOND 764 | 0.8342371393 | $239,150 | $239,150 | $199.51 | | |
| SD140GEN | SD #140 GENERAL 760 | 2.0646500647 | $239,150 | $239,150 | $493.76 | | |
| ST2 | STATE SCHOOL PART 2 600 | 0.8131451643 | $239,150 | $239,150 | $194.46 | | |
| STATESCHL | STATE SCHOOL 600 | 1.5158548041 | $239,150 | $239,150 | $362.52 | | |
| STREFUND | STATE REFUND LEVY 603 | 0.0000000000 | $239,150 | $239,150 | $0.00 | | |
| CWWBOND | C OF WW BOND 643 | 0.2760494372 | $239,150 | $239,150 | $66.02 | | |
| CWWGEN | CITY OF WW 631 | 1.6100204973 | $239,150 | $239,150 | $385.04 | | |
| CWWRFD | CITY OF WALLA WALLA REFUND 631 | 0.0000000000 | $239,150 | $239,150 | $0.00 | | |
| | Total Tax Rate: | 8.7973694689 | | | | | |
| | | | | Taxes w/Current Exemptions: | $2,103.90 | | |
| | | | | Taxes w/o Exemptions: | $2,103.90 | | |
Improvement / Building
| Improvement #1: | RESIDENTIAL | State Code: | 11 | 1026.0 sqft | Value: | $192,270 |
| Exterior Wall: | SIDING | Heating/Cooling: | WARM & COOLED AIR | | Number of Bathrooms: | 1 | Number of Bedrooms: | 2 | | Plumbing: | 6 | Roof Covering: | COMP SHINGLE |
|
| | Type | Description | Class CD | Sub Class CD | Year Built | Area |
| | MA | Main Area | 1 | 20 | 1916 | 1026.0 |
| | SI1 | SITE IMPROVEMENT | 1 | 20 | 1916 | 1.0 |
| | OPS | OPEN PORCH W/STEPS | 1 | 20 | 1916 | 36.0 |
| | DTG | Detached Garage | 1 | 20 | 1916 | 240.0 |
Sketch
Property Image
Land
| 1 | RES 1 | Converted: Residential | 0.1722 | 7500.00 | 0.00 | 0.00 | 1.00 | $46,880 | $0 |
Roll Value History
| 2025 | N/A | N/A | N/A | N/A | N/A |
| 2024 | $164,710 | $75,000 | $0 | $239,710 | $239,710 |
| 2023 | $192,270 | $46,880 | $0 | $239,150 | $239,150 |
| 2022 | $167,190 | $46,880 | $0 | $214,070 | $214,070 |
| 2021 | $119,420 | $46,880 | $0 | $166,300 | $166,300 |
| 2020 | $59,710 | $46,880 | $0 | $106,590 | $106,590 |
| 2019 | $59,710 | $46,880 | $0 | $106,590 | $106,590 |
| 2018 | $59,710 | $46,880 | $0 | $106,590 | $106,590 |
| 2017 | $65,610 | $30,000 | $0 | $95,610 | $95,610 |
| 2016 | $62,490 | $30,000 | $0 | $92,490 | $92,490 |
| 2015 | $59,510 | $30,000 | $0 | $89,510 | $89,510 |
| 2014 | $54,100 | $30,000 | $0 | $84,100 | $84,100 |
| 2013 | $54,100 | $30,000 | $0 | $84,100 | $84,100 |
| 2012 | $54,100 | $30,000 | $0 | $0 | $0 |
| 2011 | $58,500 | $30,000 | $0 | $0 | $0 |
| 2010 | $58,500 | $30,000 | $0 | $0 | $0 |
| 2009 | $68,300 | $30,000 | $0 | $0 | $0 |
| 2008 | $59,400 | $30,000 | $0 | $0 | $0 |
| 2007 | $59,400 | $30,000 | $0 | $0 | $0 |
| 2006 | $49,800 | $15,000 | $0 | $0 | $0 |
Deed and Sales History
| 1 | 01/29/2020 | SWD | STATUTORY WARRANTY DEED | NORTHAM JEFF W & JENNIFER D | BROUGHTON V CHARLES J | | | $169,000.00 | 138520 | 2020-00844 |
| 2 | | FUL | FULFILLMENT DEED | KNUDSON EVERETT J | NORTHAM JEFF W & JENNIFER D | | | | 0 | 2017-08216 |
Payout Agreement
| No payout information available.. |