Property
Account |
| Property ID: | 8480 | Abbreviated Legal Description: | WATERTOWN LOT 2 BLK 9 |
| Parcel Number: | 360721730902 | Agent Code: | |
| Type: | Real | | |
| Tax Area: | 1 - OL-140-F | Land Use Code | 11 |
| Open Space: | N | DFL | N |
| Historic Property: | N | Remodel Property: | N |
| Multi-Family Redevelopment: | N | | |
| Township: | 7 | Section: | 21 |
| Range: | 36 |
Location |
| Address: | 1422 OLIVE ST WA 99362 | Mapsco: | |
| Neighborhood: | A-SFR | Map ID: | |
| Neighborhood CD: | 513011 |
Owner |
| Name: | CARLYLE KATHERINE F R | Owner ID: | 64154 |
| Mailing Address: | CHARLES WILLIAM RADICAN 1422 OLIVE ST WALLA WALLA, WA 99362 | % Ownership: | 100.0000000000% |
| | | Exemptions: | SNR/DSBL |
Taxes and Assessment Details
Values
| (+) Improvement Homesite Value: | + | $261,560 | |
| (+) Improvement Non-Homesite Value: | + | $0 | |
| (+) Land Homesite Value: | + | $46,880 | |
| (+) Land Non-Homesite Value: | + | $0 | |
| (+) Curr Use (HS): | + | $0 | $0 |
| (+) Curr Use (NHS): | + | $0 | $0 |
| | | -------------------------- | |
| (=) Market Value: | = | $308,440 | |
| (–) Productivity Loss: | – | $0 | |
| | | -------------------------- | |
| (=) Subtotal: | = | $308,440 | |
| (+) Senior Appraised Value: | + | $264,840 | |
| (+) Non-Senior Appraised Value: | + | $0 | |
| | | -------------------------- | |
| (=) Total Appraised Value: | = | $264,840 | |
| (–) Senior Exemption Loss: | – | $158,904 | |
| (–) Exemption Loss: | – | $0 | |
| | | -------------------------- | |
| (=) Taxable Value: | = | $105,936 | |
Taxing Jurisdiction
| Owner: | CARLYLE KATHERINE F R | | |
| % Ownership: | 100.0000000000% | | |
| Total Value: | $308,440 | | |
| Tax Area: | 1 - OL-140-F |
| CERFD | CURRENT EXPENSE REFUND 010 | 0.0000000000 | $308,440 | $105,936 | $0.00 | | |
| CURREXP | CURRENT EXPENSE 010 | 1.0175366760 | $308,440 | $105,936 | $107.79 | | |
| HUMNSERV | HUMAN SERVICES 119 | 0.0250000000 | $308,440 | $105,936 | $2.65 | | |
| SLDREL | SOLDIERS RELIEF 121 | 0.0155990005 | $308,440 | $105,936 | $1.65 | | |
| EMERGSER | EMS 147 | 0.3792580840 | $308,440 | $105,936 | $40.18 | | |
| EMSRFD | EMS REFUND 147 | 0.0000000000 | $308,440 | $105,936 | $0.00 | | |
| PORTRFD | PORT REFUND 640 | 0.0000000000 | $308,440 | $105,936 | $0.00 | | |
| PORTWWGEN | PORT OF WW 640 | 0.2460186015 | $308,440 | $105,936 | $26.06 | | |
| SD140BOND | SD #140 BOND 764 | 0.0000000000 | $308,440 | $0 | $0.00 | | |
| SD140GEN | SD #140 GENERAL 760 | 0.0000000000 | $308,440 | $0 | $0.00 | | |
| ST2 | STATE SCHOOL PART 2 600 | 0.0000000000 | $308,440 | $0 | $0.00 | | |
| STATESCHL | STATE SCHOOL 600 | 1.5158548041 | $308,440 | $105,936 | $160.58 | | |
| STREFUND | STATE REFUND LEVY 603 | 0.0000000000 | $308,440 | $105,936 | $0.00 | | |
| CWWBOND | C OF WW BOND 643 | 0.0000000000 | $308,440 | $0 | $0.00 | | |
| CWWGEN | CITY OF WW 631 | 1.6100204973 | $308,440 | $105,936 | $170.56 | | |
| CWWRFD | CITY OF WALLA WALLA REFUND 631 | 0.0000000000 | $308,440 | $105,936 | $0.00 | | |
| | Total Tax Rate: | 4.8092876634 | | | | | |
| | | | | Taxes w/Current Exemptions: | $509.47 | | |
| | | | | Taxes w/o Exemptions: | $2,713.45 | | |
Improvement / Building
| Improvement #1: | RESIDENTIAL | State Code: | 11 | 1205.0 sqft | Value: | $261,560 |
| Exterior Wall: | SIDING | Heating/Cooling: | FORCED AIR | | Number of Bathrooms: | 1 | Number of Bedrooms: | 2 | | Plumbing: | 7 | Roof Covering: | COMP SHINGLE |
|
| | Type | Description | Class CD | Sub Class CD | Year Built | Area |
| | MA | Main Area | 1 | 30 | 1947 | 1205.0 |
| | SI1 | SITE IMPROVEMENT | 1 | 30 | 1947 | 1.5 |
| | BASE | BASEMENT | 1 | 30 | 1947 | 1205.0 |
| | BPF | BASEMENT -PARTITIONED FINISH | 1 | 30 | 1947 | 300.0 |
| | D2F | Double 2 Story Fireplace | 1 | 30 | 1947 | 1.0 |
| | RPS | PORCH W/STEPS,ROOF | 1 | 30 | 1947 | 35.0 |
| | RPO | OPEN PORCH W/ROOF | 1 | 30 | 1947 | 48.0 |
| | ATG | Attached Garage | 1 | 30 | 1947 | 260.0 |
Sketch
Property Image
Land
| 1 | RES 1 | Converted: Residential | 0.1722 | 7500.00 | 0.00 | 0.00 | 1.00 | $46,880 | $0 |
Roll Value History
| 2025 | N/A | N/A | N/A | N/A | N/A |
| 2024 | $233,140 | $75,000 | $0 | $308,140 | $105,936 |
| 2023 | $261,560 | $46,880 | $0 | $308,440 | $105,936 |
| 2022 | $261,560 | $46,880 | $0 | $308,440 | $105,936 |
| 2021 | $217,960 | $46,880 | $0 | $264,840 | $105,936 |
| 2020 | $181,640 | $46,880 | $0 | $228,520 | $228,520 |
| 2019 | $181,640 | $46,880 | $0 | $228,520 | $228,520 |
| 2018 | $139,720 | $46,880 | $0 | $186,600 | $186,600 |
| 2017 | $146,790 | $30,000 | $0 | $176,790 | $176,790 |
| 2016 | $139,800 | $30,000 | $0 | $169,800 | $169,800 |
| 2015 | $139,800 | $30,000 | $0 | $169,800 | $169,800 |
| 2014 | $139,800 | $30,000 | $0 | $169,800 | $169,800 |
| 2013 | $139,800 | $30,000 | $0 | $169,800 | $169,800 |
| 2012 | $128,200 | $30,000 | $0 | $0 | $0 |
| 2011 | $136,500 | $30,000 | $0 | $0 | $0 |
| 2010 | $114,800 | $30,000 | $0 | $0 | $0 |
| 2009 | $130,900 | $30,000 | $0 | $0 | $0 |
| 2008 | $98,700 | $30,000 | $0 | $0 | $0 |
| 2007 | $98,700 | $30,000 | $0 | $0 | $0 |
| 2006 | $81,400 | $15,000 | $0 | $0 | $0 |
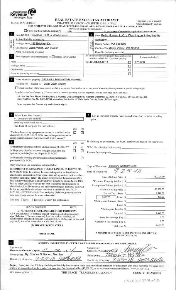
Deed and Sales History
| 1 | 10/25/2018 | SWD | STATUTORY WARRANTY DEED | STONE THAYNE P & VICKIE J | CARLYLE KATHERINE F R | | | $246,900.00 | 135789 | 2018-08787 |
| 2 | 04/07/2014 | QCD | QUIT CLAIM DEED | STONE THAYNE P | STONE THAYNE P & VICKIE J | | | | 125679 | 2014-02342 |
| 3 | 11/10/1999 | WARRANTY D | WARRANTY DEED | | | | | $95,500.00 | 93990 | 2919-912878 |
Payout Agreement
| No payout information available.. |