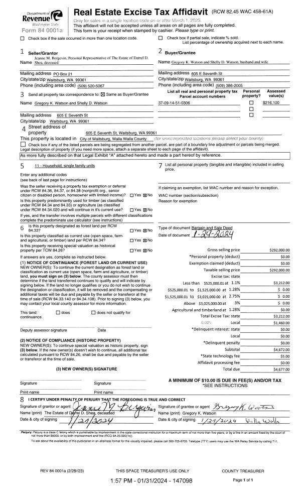
Property
Account |
| Property ID: | 8474 | Abbreviated Legal Description: | CP #2 TAX 5A LOT 4 BLK 5, TAX 17A LOT 2 BLK 5 LESS TAX 17B |
| Parcel Number: | 350736600508 | Agent Code: | |
| Type: | Real | | |
| Tax Area: | 75 - CP 250 | Land Use Code | 67 |
| Open Space: | N | DFL | N |
| Historic Property: | N | Remodel Property: | N |
| Multi-Family Redevelopment: | N | | |
| Township: | 7 | Section: | 36 |
| Range: | 35 |
Location |
| Address: | 625 S COLLEGE AVE WA 99324 | Mapsco: | |
| Neighborhood: | CP CITY | Map ID: | |
| Neighborhood CD: | 1342 |
Owner |
| Name: | COLLEGE PLACE CITY OF | Owner ID: | 2109 |
| Mailing Address: | C/O ACCOUNTS PAYABLE 625 S COLLEGE AVE COLLEGE PLACE, WA 99324 | % Ownership: | 100.0000000000% |
| | | Exemptions: | EX |
Taxes and Assessment Details
Values
| (+) Improvement Homesite Value: | + | $0 | |
| (+) Improvement Non-Homesite Value: | + | $3,002,400 | |
| (+) Land Homesite Value: | + | $0 | |
| (+) Land Non-Homesite Value: | + | $197,300 | |
| (+) Curr Use (HS): | + | $0 | $0 |
| (+) Curr Use (NHS): | + | $0 | $0 |
| | | -------------------------- | |
| (=) Market Value: | = | $3,199,700 | |
| (–) Productivity Loss: | – | $0 | |
| | | -------------------------- | |
| (=) Subtotal: | = | $3,199,700 | |
| (+) Senior Appraised Value: | + | $0 | |
| (+) Non-Senior Appraised Value: | + | $3,199,700 | |
| | | -------------------------- | |
| (=) Total Appraised Value: | = | $3,199,700 | |
| (–) Senior Exemption Loss: | – | $0 | |
| (–) Exemption Loss: | – | $3,199,700 | |
| | | -------------------------- | |
| (=) Taxable Value: | = | $0 | |
Taxing Jurisdiction
| Owner: | COLLEGE PLACE CITY OF | | |
| % Ownership: | 100.0000000000% | | |
| Total Value: | $3,199,700 | | |
| Tax Area: | 75 - CP 250 |
| CERFD | CURRENT EXPENSE REFUND 010 | 0.0000000000 | $3,199,700 | $0 | $0.00 | | |
| CURREXP | CURRENT EXPENSE 010 | 1.0175366760 | $3,199,700 | $0 | $0.00 | | |
| HUMNSERV | HUMAN SERVICES 119 | 0.0250000000 | $3,199,700 | $0 | $0.00 | | |
| SLDREL | SOLDIERS RELIEF 121 | 0.0155990005 | $3,199,700 | $0 | $0.00 | | |
| COLLPLBOND | C OF CP BOND 644 | 0.4374241808 | $3,199,700 | $0 | $0.00 | | |
| COLLPLGEN | CITY OF CP 632 | 1.4453819216 | $3,199,700 | $0 | $0.00 | | |
| EMERGSER | EMS 147 | 0.3792580840 | $3,199,700 | $0 | $0.00 | | |
| EMSRFD | EMS REFUND 147 | 0.0000000000 | $3,199,700 | $0 | $0.00 | | |
| RURALLIB | RURAL LIBRARY 623 | 0.3710609029 | $3,199,700 | $0 | $0.00 | | |
| PORTRFD | PORT REFUND 640 | 0.0000000000 | $3,199,700 | $0 | $0.00 | | |
| PORTWWGEN | PORT OF WW 640 | 0.2460186015 | $3,199,700 | $0 | $0.00 | | |
| SD250BOND | SD #250 BOND 773 | 1.4560608159 | $3,199,700 | $0 | $0.00 | | |
| SD250GEN | SD #250 GENERAL 770 | 2.3880724087 | $3,199,700 | $0 | $0.00 | | |
| ST2 | STATE SCHOOL PART 2 600 | 0.8131451643 | $3,199,700 | $0 | $0.00 | | |
| STATESCHL | STATE SCHOOL 600 | 1.5158548041 | $3,199,700 | $0 | $0.00 | | |
| STREFUND | STATE REFUND LEVY 603 | 0.0000000000 | $3,199,700 | $0 | $0.00 | | |
| | Total Tax Rate: | 10.1104125603 | | | | | |
| | | | | Taxes w/Current Exemptions: | $0.00 | | |
| | | | | Taxes w/o Exemptions: | $32,350.29 | | |
Improvement / Building
| Improvement #1: | COMMERCIAL | State Code: | 67 | 16376.0 sqft | Value: | $3,002,400 |
| | Type | Description | Class CD | Sub Class CD | Year Built | Area |
| | MA | Main Area | D | * | 2008 | 16376.0 |
| | RPC | OPEN PORCH W/ROOF , CEILED | D | * | 2008 | 300.0 |
| | UPFL | Upper Floor (included in main area) | D | * | 2008 | 4416.0 |
| | FIXT | AVERAGE FIXTURE | D | * | 2008 | 10.0 |
| | APP | APPLIANCE ALLOWANCE | D | * | 2008 | 4.0 |
Sketch
Property Image
Land
| 1 | COM 1 | Converted: Commercial | 1.2686 | 55260.00 | 0.00 | 0.00 | 1.00 | $197,300 | $0 |
Roll Value History
| 2025 | N/A | N/A | N/A | N/A | N/A |
| 2024 | $3,002,400 | $197,300 | $0 | $3,199,700 | $0 |
| 2023 | $3,002,400 | $197,300 | $0 | $3,199,700 | $0 |
| 2022 | $2,663,800 | $197,300 | $0 | $2,861,100 | $0 |
| 2021 | $2,663,800 | $197,300 | $0 | $2,861,100 | $0 |
| 2020 | $2,663,800 | $197,300 | $0 | $2,861,100 | $0 |
| 2019 | $2,500,000 | $250,400 | $0 | $2,750,400 | $0 |
| 2018 | $2,500,000 | $250,400 | $0 | $2,750,400 | $0 |
| 2017 | $2,500,000 | $250,400 | $0 | $2,750,400 | $0 |
| 2016 | $2,500,000 | $250,400 | $0 | $2,750,400 | $0 |
| 2015 | $2,500,000 | $250,400 | $0 | $2,750,400 | $0 |
| 2014 | $2,500,000 | $250,400 | $0 | $2,750,400 | $0 |
| 2013 | $2,500,000 | $250,400 | $0 | $2,750,400 | $0 |
| 2012 | $0 | $0 | $0 | $0 | $0 |
| 2011 | $0 | $0 | $0 | $0 | $0 |
| 2010 | $0 | $0 | $0 | $0 | $0 |
| 2009 | $0 | $0 | $0 | $0 | $0 |
| 2008 | $0 | $0 | $0 | $0 | $0 |
| 2007 | $0 | $0 | $0 | $0 | $0 |
| 2006 | $0 | $0 | $0 | $0 | $0 |
Deed and Sales History
| 1 | 10/11/2023 | SURVEY | SURVEY | COLLEGE PLACE CITY OF | | 14 | 135 | | 0 | 2023-05980 |
| 2 | 05/02/1972 | WARRANTY D | WARRANTY DEED | | | | | | 34733 | 3240-489707 |
Payout Agreement
| No payout information available.. |