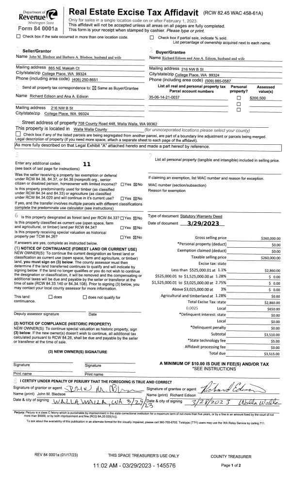
Property
Account |
| Property ID: | 8461 | Abbreviated Legal Description: | WATERTOWN LOT 5 BLK 6 |
| Parcel Number: | 360721730605 | Agent Code: | |
| Type: | Real | | |
| Tax Area: | 1 - OL-140-F | Land Use Code | 11 |
| Open Space: | N | DFL | N |
| Historic Property: | N | Remodel Property: | N |
| Multi-Family Redevelopment: | N | | |
| Township: | 7 | Section: | 21 |
| Range: | 36 |
Location |
| Address: | 1136 OLIVE ST WA 99362 | Mapsco: | |
| Neighborhood: | A-SFR | Map ID: | |
| Neighborhood CD: | 513011 |
Owner |
| Name: | DE LA CRUZ ISRAEL | Owner ID: | 73566 |
| Mailing Address: | 1136 OLIVE ST WALLA WALLA, WA 99362 | % Ownership: | 100.0000000000% |
| | | Exemptions: | |
Taxes and Assessment Details
Values
| (+) Improvement Homesite Value: | + | $206,260 | |
| (+) Improvement Non-Homesite Value: | + | $0 | |
| (+) Land Homesite Value: | + | $46,880 | |
| (+) Land Non-Homesite Value: | + | $0 | |
| (+) Curr Use (HS): | + | $0 | $0 |
| (+) Curr Use (NHS): | + | $0 | $0 |
| | | -------------------------- | |
| (=) Market Value: | = | $253,140 | |
| (–) Productivity Loss: | – | $0 | |
| | | -------------------------- | |
| (=) Subtotal: | = | $253,140 | |
| (+) Senior Appraised Value: | + | $0 | |
| (+) Non-Senior Appraised Value: | + | $253,140 | |
| | | -------------------------- | |
| (=) Total Appraised Value: | = | $253,140 | |
| (–) Senior Exemption Loss: | – | $0 | |
| (–) Exemption Loss: | – | $0 | |
| | | -------------------------- | |
| (=) Taxable Value: | = | $253,140 | |
Taxing Jurisdiction
| Owner: | DE LA CRUZ ISRAEL | | |
| % Ownership: | 100.0000000000% | | |
| Total Value: | $253,140 | | |
| Tax Area: | 1 - OL-140-F |
| CERFD | CURRENT EXPENSE REFUND 010 | 0.0000000000 | $253,140 | $253,140 | $0.00 | | |
| CURREXP | CURRENT EXPENSE 010 | 1.0175366760 | $253,140 | $253,140 | $257.58 | | |
| HUMNSERV | HUMAN SERVICES 119 | 0.0250000000 | $253,140 | $253,140 | $6.33 | | |
| SLDREL | SOLDIERS RELIEF 121 | 0.0155990005 | $253,140 | $253,140 | $3.95 | | |
| EMERGSER | EMS 147 | 0.3792580840 | $253,140 | $253,140 | $96.01 | | |
| EMSRFD | EMS REFUND 147 | 0.0000000000 | $253,140 | $253,140 | $0.00 | | |
| PORTRFD | PORT REFUND 640 | 0.0000000000 | $253,140 | $253,140 | $0.00 | | |
| PORTWWGEN | PORT OF WW 640 | 0.2460186015 | $253,140 | $253,140 | $62.28 | | |
| SD140BOND | SD #140 BOND 764 | 0.8342371393 | $253,140 | $253,140 | $211.18 | | |
| SD140GEN | SD #140 GENERAL 760 | 2.0646500647 | $253,140 | $253,140 | $522.65 | | |
| ST2 | STATE SCHOOL PART 2 600 | 0.8131451643 | $253,140 | $253,140 | $205.84 | | |
| STATESCHL | STATE SCHOOL 600 | 1.5158548041 | $253,140 | $253,140 | $383.72 | | |
| STREFUND | STATE REFUND LEVY 603 | 0.0000000000 | $253,140 | $253,140 | $0.00 | | |
| CWWBOND | C OF WW BOND 643 | 0.2760494372 | $253,140 | $253,140 | $69.88 | | |
| CWWGEN | CITY OF WW 631 | 1.6100204973 | $253,140 | $253,140 | $407.56 | | |
| CWWRFD | CITY OF WALLA WALLA REFUND 631 | 0.0000000000 | $253,140 | $253,140 | $0.00 | | |
| | Total Tax Rate: | 8.7973694689 | | | | | |
| | | | | Taxes w/Current Exemptions: | $2,226.98 | | |
| | | | | Taxes w/o Exemptions: | $2,226.98 | | |
Improvement / Building
| Improvement #1: | RESIDENTIAL | State Code: | 11 | 840.0 sqft | Value: | $206,260 |
| Exterior Wall: | SIDING | Heating/Cooling: | WARM & COOLED AIR | | Number of Bathrooms: | 2 | Number of Bedrooms: | 2 | | Plumbing: | 9 | Roof Covering: | COMP SHINGLE |
|
| | Type | Description | Class CD | Sub Class CD | Year Built | Area |
| | MA | Main Area | 1 | 35 | 1940 | 840.0 |
| | SI1 | SITE IMPROVEMENT | 1 | 35 | 1940 | 1.5 |
| | BASE | BASEMENT | 1 | 35 | 1940 | 840.0 |
| | BPF | BASEMENT -PARTITIONED FINISH | 1 | 35 | 1940 | 840.0 |
| | RPO | OPEN PORCH W/ROOF | 1 | 35 | 1940 | 24.0 |
| | CPC | COVERED CARPORT/PATIO | 1 | 35 | 1940 | 240.0 |
| | TOOL | TOOL SHED | 1 | 35 | 1940 | 90.0 |
| | DTG | Detached Garage | 1 | 35 | 1940 | 240.0 |
Sketch
Property Image
Land
| 1 | RES 1 | Converted: Residential | 0.1722 | 7500.00 | 0.00 | 0.00 | 1.00 | $46,880 | $0 |
Roll Value History
| 2025 | N/A | N/A | N/A | N/A | N/A |
| 2024 | $178,360 | $75,000 | $0 | $253,360 | $253,360 |
| 2023 | $206,260 | $46,880 | $0 | $253,140 | $253,140 |
| 2022 | $196,440 | $46,880 | $0 | $243,320 | $243,320 |
| 2021 | $170,810 | $46,880 | $0 | $217,690 | $73,412 |
| 2020 | $136,650 | $46,880 | $0 | $183,530 | $73,412 |
| 2019 | $136,650 | $46,880 | $0 | $183,530 | $73,412 |
| 2018 | $136,650 | $46,880 | $0 | $183,530 | $183,530 |
| 2017 | $135,140 | $30,000 | $0 | $165,140 | $66,056 |
| 2016 | $128,700 | $30,000 | $0 | $158,700 | $158,700 |
| 2015 | $128,700 | $30,000 | $0 | $158,700 | $158,700 |
| 2014 | $128,700 | $30,000 | $0 | $158,700 | $158,700 |
| 2013 | $128,700 | $30,000 | $0 | $158,700 | $158,700 |
| 2012 | $128,700 | $30,000 | $0 | $0 | $0 |
| 2011 | $128,700 | $30,000 | $0 | $0 | $0 |
| 2010 | $121,100 | $30,000 | $0 | $0 | $0 |
| 2009 | $137,900 | $30,000 | $0 | $0 | $0 |
| 2008 | $116,000 | $30,000 | $0 | $0 | $0 |
| 2007 | $116,000 | $30,000 | $0 | $0 | $0 |
| 2006 | $66,800 | $15,000 | $0 | $0 | $0 |
Deed and Sales History
| 1 | 05/05/2023 | DPR | DEED OF PERSONAL REPRESENTATIVE | MWEU MUKULU A ESTATE OF | DE LA CRUZ ISRAEL | | | $0.00 | 145769 | 2023-02391 |
| 2 | 05/09/2005 | WARRANTY D | WARRANTY DEED | DRYG, CHARLES J & SUSAN F | MWEU, MUKULA A | | | $148,000.00 | 107432 | 2005-05419 |
| 3 | 04/12/2000 | WARRANTY D | WARRANTY DEED | | | | | $84,000.00 | 94878 | 2970-003512 |
Payout Agreement
| No payout information available.. |