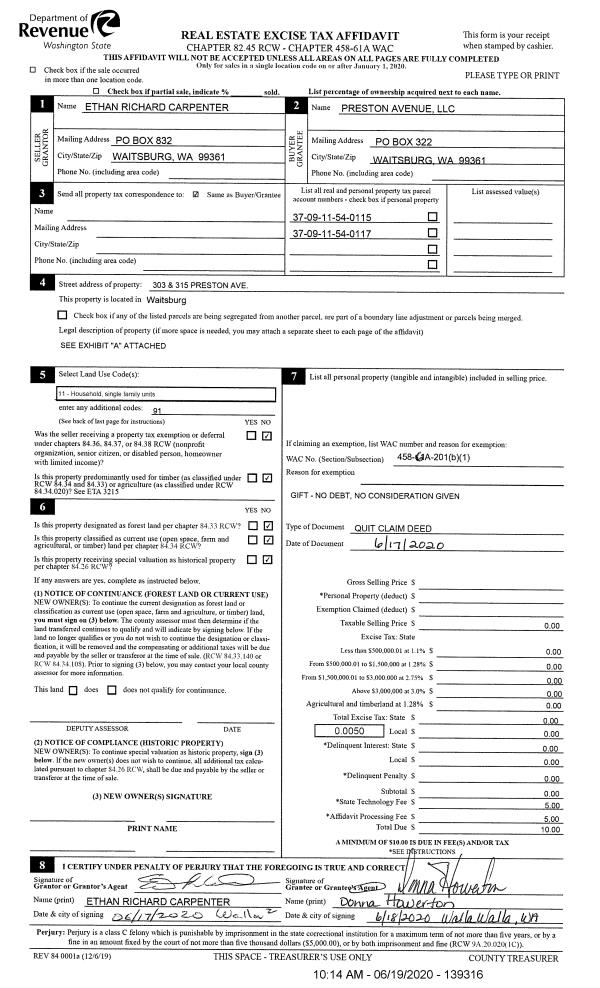
Property
Account |
| Property ID: | 8402 | Abbreviated Legal Description: | REEDS LOT 12 BLK 11 |
| Parcel Number: | 360721711112 | Agent Code: | |
| Type: | Real | | |
| Tax Area: | 1 - OL-140-F | Land Use Code | 11 |
| Open Space: | N | DFL | N |
| Historic Property: | N | Remodel Property: | N |
| Multi-Family Redevelopment: | N | | |
| Township: | 7 | Section: | 21 |
| Range: | 36 |
Location |
| Address: | 735 WHITMAN ST WA 99362 | Mapsco: | |
| Neighborhood: | G-SFR | Map ID: | |
| Neighborhood CD: | 514011 |
Owner |
| Name: | SLUSSER MICHAEL JAMES & EMILY MARESA | Owner ID: | 71084 |
| Mailing Address: | 2560 COVE CREEK CT HIGHLANDS RANCH, CO 80129-6463 | % Ownership: | 100.0000000000% |
| | | Exemptions: | |
Taxes and Assessment Details
Values
| (+) Improvement Homesite Value: | + | $0 | |
| (+) Improvement Non-Homesite Value: | + | $343,410 | |
| (+) Land Homesite Value: | + | $0 | |
| (+) Land Non-Homesite Value: | + | $50,030 | |
| (+) Curr Use (HS): | + | $0 | $0 |
| (+) Curr Use (NHS): | + | $0 | $0 |
| | | -------------------------- | |
| (=) Market Value: | = | $393,440 | |
| (–) Productivity Loss: | – | $0 | |
| | | -------------------------- | |
| (=) Subtotal: | = | $393,440 | |
| (+) Senior Appraised Value: | + | $0 | |
| (+) Non-Senior Appraised Value: | + | $393,440 | |
| | | -------------------------- | |
| (=) Total Appraised Value: | = | $393,440 | |
| (–) Senior Exemption Loss: | – | $0 | |
| (–) Exemption Loss: | – | $0 | |
| | | -------------------------- | |
| (=) Taxable Value: | = | $393,440 | |
Taxing Jurisdiction
| Owner: | SLUSSER MICHAEL JAMES & EMILY MARESA | | |
| % Ownership: | 100.0000000000% | | |
| Total Value: | $393,440 | | |
| Tax Area: | 1 - OL-140-F |
| CERFD | CURRENT EXPENSE REFUND 010 | 0.0000000000 | $393,440 | $393,440 | $0.00 | | |
| CURREXP | CURRENT EXPENSE 010 | 1.0175366760 | $393,440 | $393,440 | $400.34 | | |
| HUMNSERV | HUMAN SERVICES 119 | 0.0250000000 | $393,440 | $393,440 | $9.84 | | |
| SLDREL | SOLDIERS RELIEF 121 | 0.0155990005 | $393,440 | $393,440 | $6.14 | | |
| EMERGSER | EMS 147 | 0.3792580840 | $393,440 | $393,440 | $149.22 | | |
| EMSRFD | EMS REFUND 147 | 0.0000000000 | $393,440 | $393,440 | $0.00 | | |
| PORTRFD | PORT REFUND 640 | 0.0000000000 | $393,440 | $393,440 | $0.00 | | |
| PORTWWGEN | PORT OF WW 640 | 0.2460186015 | $393,440 | $393,440 | $96.79 | | |
| SD140BOND | SD #140 BOND 764 | 0.8342371393 | $393,440 | $393,440 | $328.22 | | |
| SD140GEN | SD #140 GENERAL 760 | 2.0646500647 | $393,440 | $393,440 | $812.32 | | |
| ST2 | STATE SCHOOL PART 2 600 | 0.8131451643 | $393,440 | $393,440 | $319.92 | | |
| STATESCHL | STATE SCHOOL 600 | 1.5158548041 | $393,440 | $393,440 | $596.40 | | |
| STREFUND | STATE REFUND LEVY 603 | 0.0000000000 | $393,440 | $393,440 | $0.00 | | |
| CWWBOND | C OF WW BOND 643 | 0.2760494372 | $393,440 | $393,440 | $108.61 | | |
| CWWGEN | CITY OF WW 631 | 1.6100204973 | $393,440 | $393,440 | $633.45 | | |
| CWWRFD | CITY OF WALLA WALLA REFUND 631 | 0.0000000000 | $393,440 | $393,440 | $0.00 | | |
| | Total Tax Rate: | 8.7973694689 | | | | | |
| | | | | Taxes w/Current Exemptions: | $3,461.25 | | |
| | | | | Taxes w/o Exemptions: | $3,461.25 | | |
Improvement / Building
| Improvement #1: | RESIDENTIAL | State Code: | 11 | 1673.0 sqft | Value: | $343,410 |
| Exterior Wall: | METAL/STEEL | Heating/Cooling: | WARM & COOLED AIR | | Number of Bathrooms: | 2 | Number of Bedrooms: | 4 | | Plumbing: | 10 | Roof Covering: | COMP SHINGLE |
|
| | Type | Description | Class CD | Sub Class CD | Year Built | Area |
| | MA | Main Area | 4 | 30 | 1901 | 1673.0 |
| | UPFL | Upper Floor (included in main area) | 4 | 30 | 1901 | 301.0 |
| | SI1 | SITE IMPROVEMENT | 4 | 30 | 1901 | 3.0 |
| | BASE | BASEMENT | 4 | 30 | 1901 | 100.0 |
| | SWP | Solid Wall Porch | 4 | 30 | 1901 | 126.0 |
| | RPO | OPEN PORCH W/ROOF | 4 | 30 | 1901 | 123.0 |
| | CPC | COVERED CARPORT/PATIO | 4 | 30 | 1901 | 300.0 |
Sketch
Property Image
Land
| 1 | RES 1 | Converted: Residential | 0.1584 | 6900.00 | 0.00 | 0.00 | 1.00 | $50,030 | $0 |
Roll Value History
| 2025 | N/A | N/A | N/A | N/A | N/A |
| 2024 | $316,610 | $75,900 | $0 | $392,510 | $392,510 |
| 2023 | $343,410 | $50,030 | $0 | $393,440 | $393,440 |
| 2022 | $312,190 | $50,030 | $0 | $362,220 | $362,220 |
| 2021 | $208,120 | $50,030 | $0 | $258,150 | $258,150 |
| 2020 | $173,440 | $50,030 | $0 | $223,470 | $223,470 |
| 2019 | $173,440 | $50,030 | $0 | $223,470 | $223,470 |
| 2018 | $157,670 | $50,030 | $0 | $207,700 | $207,700 |
| 2017 | $157,540 | $31,100 | $0 | $188,640 | $188,640 |
| 2016 | $150,040 | $31,100 | $0 | $181,140 | $181,140 |
| 2015 | $142,890 | $31,100 | $0 | $173,990 | $173,990 |
| 2014 | $129,900 | $31,100 | $0 | $161,000 | $161,000 |
| 2013 | $129,900 | $31,100 | $0 | $161,000 | $161,000 |
| 2012 | $130,600 | $31,100 | $0 | $0 | $0 |
| 2011 | $122,900 | $31,100 | $0 | $0 | $0 |
| 2010 | $97,200 | $31,100 | $0 | $0 | $0 |
| 2009 | $111,400 | $31,100 | $0 | $0 | $0 |
| 2008 | $108,100 | $27,600 | $0 | $0 | $0 |
| 2007 | $108,100 | $27,600 | $0 | $0 | $0 |
| 2006 | $79,000 | $13,800 | $0 | $0 | $0 |
Deed and Sales History
| 1 | 02/02/2022 | SWD | STATUTORY WARRANTY DEED | BENNETT EVAN C & BRANDY L | SLUSSER MICHAEL JAMES & EMILY MARESA | | | $400,000.00 | 143339 | 2022-01015 |
| 2 | 06/15/2020 | QCD | QUIT CLAIM DEED | BENNETT EVAN | BENNETT EVAN C & BRANDY L | | | $0.00 | 139315 | 2020-05634 |
| 3 | 07/31/2009 | WARRANTY D | WARRANTY DEED | ERIKSON, ADAM | BENNETT, EVAN | | | $165,000.00 | 117105 | 2009-07825 |
| 4 | 02/08/2005 | WARRANTY D | WARRANTY DEED | ERICKSON, ADAM | ERIKSON, ADAM | | | | 106739 | 2005-01543 |
| 5 | 05/26/2004 | QCD | QUIT CLAIM DEED | ELLISON, JENNIFER | ERICKSON, ADAM | | | $59,258.00 | 104854 | 2004-05719 |
| 6 | 01/06/2004 | WARRANTY D | WARRANTY DEED | FLEENOR, GINGER L | ERIKSON, ELLIS | | | $120,000.00 | 103868 | 2004-00141 |
Payout Agreement
| No payout information available.. |