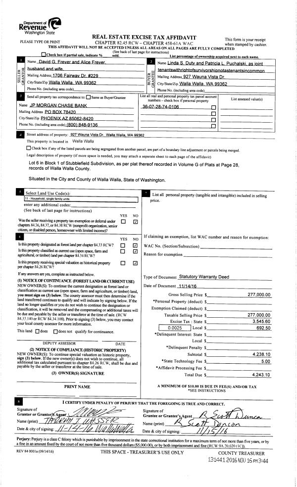
Property
Account |
| Property ID: | 8340 | Abbreviated Legal Description: | NORMANS SUB E 52.17' OF LOTS 7 AND 8 BLK 14 |
| Parcel Number: | 360721701419 | Agent Code: | |
| Type: | Real | | |
| Tax Area: | 1 - OL-140-F | Land Use Code | 11 |
| Open Space: | N | DFL | N |
| Historic Property: | N | Remodel Property: | N |
| Multi-Family Redevelopment: | N | | |
| Township: | 7 | Section: | 21 |
| Range: | 36 |
Location |
| Address: | 1440 PORTLAND AVE WA 99362 | Mapsco: | |
| Neighborhood: | A-SFR | Map ID: | |
| Neighborhood CD: | 513011 |
Owner |
| Name: | DIEDE DOROTHY | Owner ID: | 60255 |
| Mailing Address: | 1250 JEWEL LN WALLA WALLA, WA 99362 | % Ownership: | 100.0000000000% |
| | | Exemptions: | |
Taxes and Assessment Details
Values
| (+) Improvement Homesite Value: | + | $0 | |
| (+) Improvement Non-Homesite Value: | + | $259,530 | |
| (+) Land Homesite Value: | + | $0 | |
| (+) Land Non-Homesite Value: | + | $33,800 | |
| (+) Curr Use (HS): | + | $0 | $0 |
| (+) Curr Use (NHS): | + | $0 | $0 |
| | | -------------------------- | |
| (=) Market Value: | = | $293,330 | |
| (–) Productivity Loss: | – | $0 | |
| | | -------------------------- | |
| (=) Subtotal: | = | $293,330 | |
| (+) Senior Appraised Value: | + | $0 | |
| (+) Non-Senior Appraised Value: | + | $293,330 | |
| | | -------------------------- | |
| (=) Total Appraised Value: | = | $293,330 | |
| (–) Senior Exemption Loss: | – | $0 | |
| (–) Exemption Loss: | – | $0 | |
| | | -------------------------- | |
| (=) Taxable Value: | = | $293,330 | |
Taxing Jurisdiction
| Owner: | DIEDE DOROTHY | | |
| % Ownership: | 100.0000000000% | | |
| Total Value: | $293,330 | | |
| Tax Area: | 1 - OL-140-F |
| CERFD | CURRENT EXPENSE REFUND 010 | 0.0000000000 | $293,330 | $293,330 | $0.00 | | |
| CURREXP | CURRENT EXPENSE 010 | 1.0175366760 | $293,330 | $293,330 | $298.47 | | |
| HUMNSERV | HUMAN SERVICES 119 | 0.0250000000 | $293,330 | $293,330 | $7.33 | | |
| SLDREL | SOLDIERS RELIEF 121 | 0.0155990005 | $293,330 | $293,330 | $4.58 | | |
| EMERGSER | EMS 147 | 0.3792580840 | $293,330 | $293,330 | $111.25 | | |
| EMSRFD | EMS REFUND 147 | 0.0000000000 | $293,330 | $293,330 | $0.00 | | |
| PORTRFD | PORT REFUND 640 | 0.0000000000 | $293,330 | $293,330 | $0.00 | | |
| PORTWWGEN | PORT OF WW 640 | 0.2460186015 | $293,330 | $293,330 | $72.16 | | |
| SD140BOND | SD #140 BOND 764 | 0.8342371393 | $293,330 | $293,330 | $244.71 | | |
| SD140GEN | SD #140 GENERAL 760 | 2.0646500647 | $293,330 | $293,330 | $605.62 | | |
| ST2 | STATE SCHOOL PART 2 600 | 0.8131451643 | $293,330 | $293,330 | $238.52 | | |
| STATESCHL | STATE SCHOOL 600 | 1.5158548041 | $293,330 | $293,330 | $444.65 | | |
| STREFUND | STATE REFUND LEVY 603 | 0.0000000000 | $293,330 | $293,330 | $0.00 | | |
| CWWBOND | C OF WW BOND 643 | 0.2760494372 | $293,330 | $293,330 | $80.97 | | |
| CWWGEN | CITY OF WW 631 | 1.6100204973 | $293,330 | $293,330 | $472.27 | | |
| CWWRFD | CITY OF WALLA WALLA REFUND 631 | 0.0000000000 | $293,330 | $293,330 | $0.00 | | |
| | Total Tax Rate: | 8.7973694689 | | | | | |
| | | | | Taxes w/Current Exemptions: | $2,580.53 | | |
| | | | | Taxes w/o Exemptions: | $2,580.53 | | |
Improvement / Building
| Improvement #1: | RESIDENTIAL | State Code: | 11 | 864.0 sqft | Value: | $259,530 |
| Exterior Wall: | SIDING | Heating/Cooling: | FORCED AIR | | Number of Bathrooms: | 1 | Number of Bedrooms: | 2 | | Plumbing: | 6 | Roof Covering: | COMP SHINGLE |
|
| | Type | Description | Class CD | Sub Class CD | Year Built | Area |
| | MA | Main Area | 1 | 30 | 1944 | 864.0 |
| | SI1 | SITE IMPROVEMENT | 1 | 30 | 1944 | 2.0 |
| | BASE | BASEMENT | 1 | 30 | 1944 | 864.0 |
| | BPF | BASEMENT -PARTITIONED FINISH | 1 | 30 | 1944 | 120.0 |
| | DTG | Detached Garage | 1 | 30 | 1944 | 320.0 |
| | RPS | PORCH W/STEPS,ROOF | 1 | 30 | 1944 | 24.0 |
Sketch
Property Image
Land
| 1 | RES 1 | Converted: Residential | 0.1242 | 5408.00 | 0.00 | 0.00 | 1.00 | $33,800 | $0 |
Roll Value History
| 2025 | N/A | N/A | N/A | N/A | N/A |
| 2024 | $237,440 | $54,080 | $0 | $291,520 | $291,520 |
| 2023 | $259,530 | $33,800 | $0 | $293,330 | $293,330 |
| 2022 | $247,170 | $33,800 | $0 | $280,970 | $280,970 |
| 2021 | $176,550 | $33,800 | $0 | $210,350 | $210,350 |
| 2020 | $117,700 | $33,800 | $0 | $151,500 | $151,500 |
| 2019 | $117,700 | $33,800 | $0 | $151,500 | $151,500 |
| 2018 | $117,700 | $33,800 | $0 | $151,500 | $151,500 |
| 2017 | $114,110 | $21,600 | $0 | $135,710 | $135,710 |
| 2016 | $114,110 | $21,600 | $0 | $135,710 | $135,710 |
| 2015 | $108,680 | $21,600 | $0 | $130,280 | $130,280 |
| 2014 | $94,500 | $21,600 | $0 | $116,100 | $116,100 |
| 2013 | $94,500 | $21,600 | $0 | $116,100 | $116,100 |
| 2012 | $99,200 | $21,600 | $0 | $0 | $0 |
| 2011 | $93,400 | $21,600 | $0 | $0 | $0 |
| 2010 | $87,900 | $21,600 | $0 | $0 | $0 |
| 2009 | $100,100 | $21,600 | $0 | $0 | $0 |
| 2008 | $89,000 | $21,600 | $0 | $0 | $0 |
| 2007 | $89,000 | $21,600 | $0 | $0 | $0 |
| 2006 | $62,200 | $10,800 | $0 | $0 | $0 |
Deed and Sales History
| 1 | 08/15/2024 | SWD | STATUTORY WARRANTY DEED | DIEDE DOROTHY | MONTALVO CARLOS | | | $322,500.00 | 148041 | 2024-04560 |
| 2 | 01/10/2017 | SWD | STATUTORY WARRANTY DEED | WIGGINS PERRI LYNN | DIEDE DOROTHY | | | $100,200.00 | 131740 | 2017-00231 |
| 3 | 10/22/1997 | WARRANTY D | WARRANTY DEED | | | | | $70,000.00 | 89181 | 2589-710220 |
Payout Agreement
| No payout information available.. |