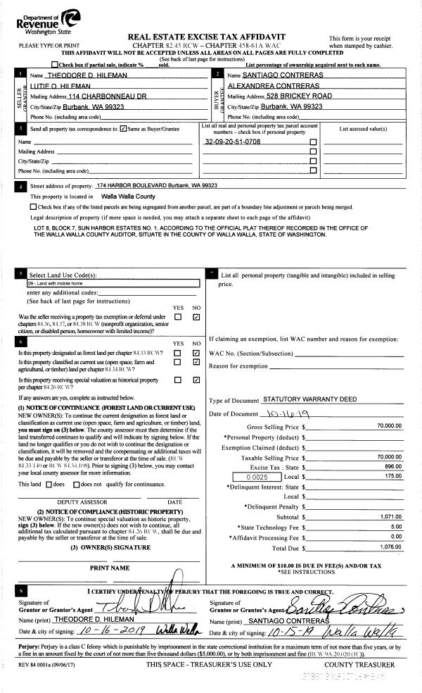
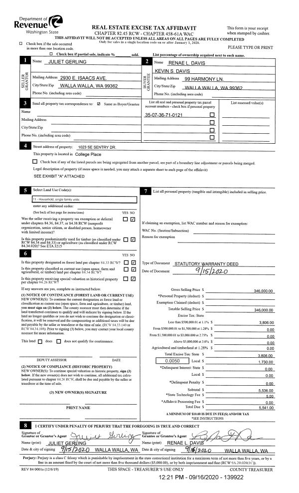
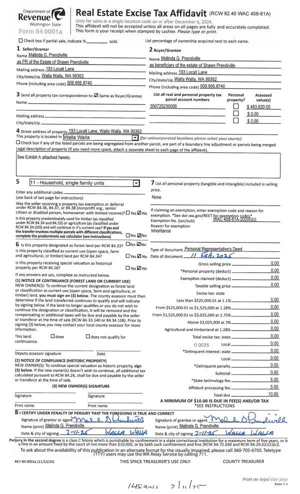
Property
Account |
| Property ID: | 8328 | Abbreviated Legal Description: | JM MOORE PLACE PARCEL 7 |
| Parcel Number: | 360721680907 | Agent Code: | |
| Type: | Real | | |
| Tax Area: | 1 - OL-140-F | Land Use Code | 66 |
| Open Space: | N | DFL | N |
| Historic Property: | N | Remodel Property: | N |
| Multi-Family Redevelopment: | N | | |
| Township: | 7 | Section: | 21 |
| Range: | 36 |
Location |
| Address: | 310 WELLINGTON AVE WA 99362 | Mapsco: | |
| Neighborhood: | WW Downtown Core Area #2 | Map ID: | |
| Neighborhood CD: | 5342 |
Owner |
| Name: | WATTS TYRONE | Owner ID: | 66509 |
| Mailing Address: | DONALD & TERA L DAVIS 837 WALLOWA DR WALLA WALLA, WA 99362 | % Ownership: | 100.0000000000% |
| | | Exemptions: | |
Taxes and Assessment Details
Values
| (+) Improvement Homesite Value: | + | $0 | |
| (+) Improvement Non-Homesite Value: | + | $105,900 | |
| (+) Land Homesite Value: | + | $0 | |
| (+) Land Non-Homesite Value: | + | $245,000 | |
| (+) Curr Use (HS): | + | $0 | $0 |
| (+) Curr Use (NHS): | + | $0 | $0 |
| | | -------------------------- | |
| (=) Market Value: | = | $350,900 | |
| (–) Productivity Loss: | – | $0 | |
| | | -------------------------- | |
| (=) Subtotal: | = | $350,900 | |
| (+) Senior Appraised Value: | + | $0 | |
| (+) Non-Senior Appraised Value: | + | $350,900 | |
| | | -------------------------- | |
| (=) Total Appraised Value: | = | $350,900 | |
| (–) Senior Exemption Loss: | – | $0 | |
| (–) Exemption Loss: | – | $0 | |
| | | -------------------------- | |
| (=) Taxable Value: | = | $350,900 | |
Taxing Jurisdiction
| Owner: | WATTS TYRONE | | |
| % Ownership: | 100.0000000000% | | |
| Total Value: | $350,900 | | |
| Tax Area: | 1 - OL-140-F |
| CERFD | CURRENT EXPENSE REFUND 010 | 0.0000000000 | $350,900 | $350,900 | $0.00 | | |
| CURREXP | CURRENT EXPENSE 010 | 1.0175366760 | $350,900 | $350,900 | $357.05 | | |
| HUMNSERV | HUMAN SERVICES 119 | 0.0250000000 | $350,900 | $350,900 | $8.77 | | |
| SLDREL | SOLDIERS RELIEF 121 | 0.0155990005 | $350,900 | $350,900 | $5.47 | | |
| EMERGSER | EMS 147 | 0.3792580840 | $350,900 | $350,900 | $133.08 | | |
| EMSRFD | EMS REFUND 147 | 0.0000000000 | $350,900 | $350,900 | $0.00 | | |
| PORTRFD | PORT REFUND 640 | 0.0000000000 | $350,900 | $350,900 | $0.00 | | |
| PORTWWGEN | PORT OF WW 640 | 0.2460186015 | $350,900 | $350,900 | $86.33 | | |
| SD140BOND | SD #140 BOND 764 | 0.8342371393 | $350,900 | $350,900 | $292.73 | | |
| SD140GEN | SD #140 GENERAL 760 | 2.0646500647 | $350,900 | $350,900 | $724.49 | | |
| ST2 | STATE SCHOOL PART 2 600 | 0.8131451643 | $350,900 | $350,900 | $285.33 | | |
| STATESCHL | STATE SCHOOL 600 | 1.5158548041 | $350,900 | $350,900 | $531.91 | | |
| STREFUND | STATE REFUND LEVY 603 | 0.0000000000 | $350,900 | $350,900 | $0.00 | | |
| CWWBOND | C OF WW BOND 643 | 0.2760494372 | $350,900 | $350,900 | $96.87 | | |
| CWWGEN | CITY OF WW 631 | 1.6100204973 | $350,900 | $350,900 | $564.96 | | |
| CWWRFD | CITY OF WALLA WALLA REFUND 631 | 0.0000000000 | $350,900 | $350,900 | $0.00 | | |
| | Total Tax Rate: | 8.7973694689 | | | | | |
| | | | | Taxes w/Current Exemptions: | $3,086.99 | | |
| | | | | Taxes w/o Exemptions: | $3,086.99 | | |
Improvement / Building
| Improvement #1: | COMMERCIAL | State Code: | 66 | 3776.0 sqft | Value: | $105,900 |
| | Type | Description | Class CD | Sub Class CD | Year Built | Area |
| | MA | Main Area | D | | 1977 | 3776.0 |
| | SI1 | SITE IMPROVEMENT | D | * | 1977 | 3.0 |
| | CPC | COVERED CARPORT/PATIO | 1 | 30 | 1977 | 1728.0 |
Sketch
Property Image
Land
| 1 | COM 1 | Converted: Commercial | 0.5624 | 24500.00 | 0.00 | 0.00 | 1.00 | $245,000 | $0 |
Roll Value History
| 2025 | N/A | N/A | N/A | N/A | N/A |
| 2024 | $105,900 | $245,000 | $0 | $350,900 | $350,900 |
| 2023 | $105,900 | $245,000 | $0 | $350,900 | $350,900 |
| 2022 | $105,900 | $245,000 | $0 | $350,900 | $350,900 |
| 2021 | $0 | $245,000 | $0 | $245,000 | $245,000 |
| 2020 | $0 | $245,000 | $0 | $245,000 | $245,000 |
| 2019 | $0 | $245,000 | $0 | $245,000 | $245,000 |
| 2018 | $0 | $245,000 | $0 | $245,000 | $245,000 |
| 2017 | $0 | $234,300 | $0 | $234,300 | $234,300 |
| 2016 | $0 | $234,300 | $0 | $234,300 | $234,300 |
| 2015 | $0 | $234,300 | $0 | $234,300 | $234,300 |
| 2014 | $0 | $234,300 | $0 | $234,300 | $234,300 |
| 2013 | $0 | $234,300 | $0 | $234,300 | $234,300 |
| 2012 | $0 | $110,300 | $0 | $0 | $0 |
| 2011 | $0 | $110,300 | $0 | $0 | $0 |
| 2010 | $0 | $110,300 | $0 | $0 | $0 |
| 2009 | $0 | $110,300 | $0 | $0 | $0 |
| 2008 | $0 | $110,300 | $0 | $0 | $0 |
| 2007 | $0 | $110,300 | $0 | $0 | $0 |
| 2006 | $0 | $73,500 | $0 | $0 | $0 |
Deed and Sales History
| 1 | 02/28/2025 | QCD | QUIT CLAIM DEED | WATTS TYRONE | DAVIS TERA LEE & DONALD JAMES | | | | 149003 | 2025-01058 |
| 2 | 12/31/2019 | QCD | QUIT CLAIM DEED | | WATTS TYRONE | | | $0.00 | 138338 | 20219-10833 |
| 3 | 12/31/2019 | SWD | STATUTORY WARRANTY DEED | MC CAULEY CATHERINE G FAMILY TRUST | WATTS TYRONE | | 2-PARCELS | $230,000.00 | 138337 | 2019-10832 |
| 4 | 01/04/2019 | FUL | FULFILLMENT DEED | | MC CAULEY DANIEL & CATHERINE | | | | 0 | 2019-00068 |
| 5 | 11/08/2018 | QCD | QUIT CLAIM DEED | MC CAULEY DANIEL & CATHERINE | MC CAULEY CATHERINE G FAMILY TRUST | | | $0.00 | 135907 | 2018-09300 |
| 6 | 03/22/1999 | WARRANTY D | WARRANTY DEED | | | | | $225,000.00 | 92398 | 2819-903588 |
Payout Agreement
| No payout information available.. |