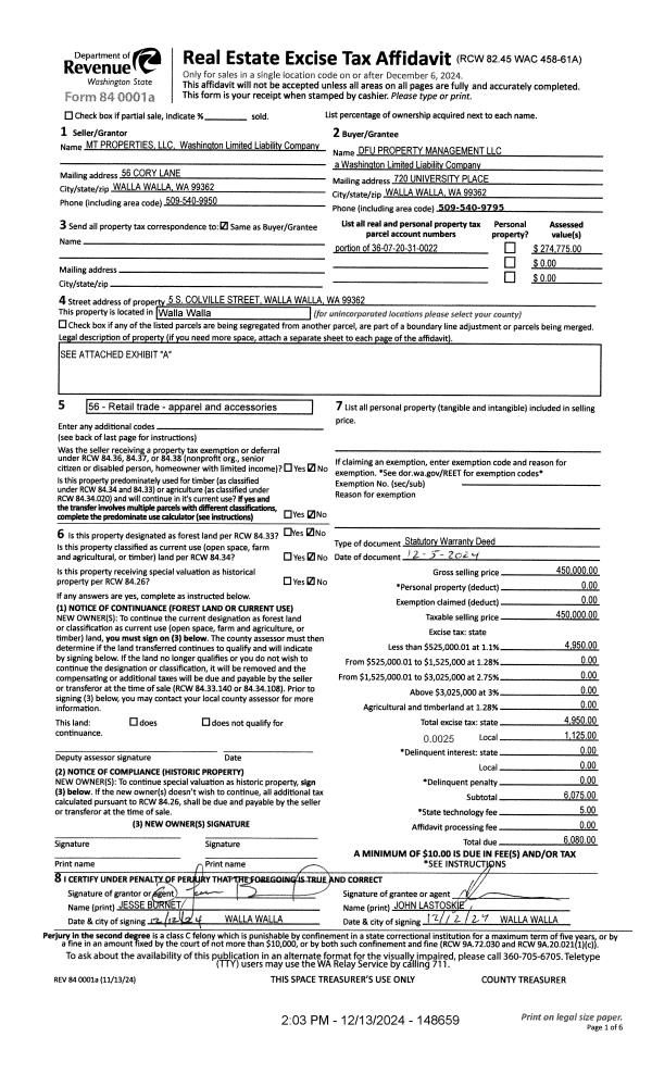
Property
Account |
| Property ID: | 8314 | Abbreviated Legal Description: | SOUTH MILBROOKE PARK LOT 40 |
| Parcel Number: | 360721670040 | Agent Code: | |
| Type: | Real | | |
| Tax Area: | 1 - OL-140-F | Land Use Code | 11 |
| Open Space: | N | DFL | N |
| Historic Property: | N | Remodel Property: | N |
| Multi-Family Redevelopment: | N | | |
| Township: | 7 | Section: | 21 |
| Range: | 36 |
Location |
| Address: | 1240 FRANCIS AVE WA 99362 | Mapsco: | |
| Neighborhood: | A-SFR | Map ID: | |
| Neighborhood CD: | 513011 |
Owner |
| Name: | CORBETT SHIRLEY K | Owner ID: | 1844 |
| Mailing Address: | 3855 FROG HOLLOW RD TOUCHET, WA 99360 | % Ownership: | 100.0000000000% |
| | | Exemptions: | |
Taxes and Assessment Details
Values
| (+) Improvement Homesite Value: | + | $0 | |
| (+) Improvement Non-Homesite Value: | + | $217,530 | |
| (+) Land Homesite Value: | + | $0 | |
| (+) Land Non-Homesite Value: | + | $42,000 | |
| (+) Curr Use (HS): | + | $0 | $0 |
| (+) Curr Use (NHS): | + | $0 | $0 |
| | | -------------------------- | |
| (=) Market Value: | = | $259,530 | |
| (–) Productivity Loss: | – | $0 | |
| | | -------------------------- | |
| (=) Subtotal: | = | $259,530 | |
| (+) Senior Appraised Value: | + | $0 | |
| (+) Non-Senior Appraised Value: | + | $259,530 | |
| | | -------------------------- | |
| (=) Total Appraised Value: | = | $259,530 | |
| (–) Senior Exemption Loss: | – | $0 | |
| (–) Exemption Loss: | – | $0 | |
| | | -------------------------- | |
| (=) Taxable Value: | = | $259,530 | |
Taxing Jurisdiction
| Owner: | CORBETT SHIRLEY K | | |
| % Ownership: | 100.0000000000% | | |
| Total Value: | $259,530 | | |
| Tax Area: | 1 - OL-140-F |
| CERFD | CURRENT EXPENSE REFUND 010 | 0.0000000000 | $259,530 | $259,530 | $0.00 | | |
| CURREXP | CURRENT EXPENSE 010 | 1.0175366760 | $259,530 | $259,530 | $264.08 | | |
| HUMNSERV | HUMAN SERVICES 119 | 0.0250000000 | $259,530 | $259,530 | $6.49 | | |
| SLDREL | SOLDIERS RELIEF 121 | 0.0155990005 | $259,530 | $259,530 | $4.05 | | |
| EMERGSER | EMS 147 | 0.3792580840 | $259,530 | $259,530 | $98.43 | | |
| EMSRFD | EMS REFUND 147 | 0.0000000000 | $259,530 | $259,530 | $0.00 | | |
| PORTRFD | PORT REFUND 640 | 0.0000000000 | $259,530 | $259,530 | $0.00 | | |
| PORTWWGEN | PORT OF WW 640 | 0.2460186015 | $259,530 | $259,530 | $63.85 | | |
| SD140BOND | SD #140 BOND 764 | 0.8342371393 | $259,530 | $259,530 | $216.51 | | |
| SD140GEN | SD #140 GENERAL 760 | 2.0646500647 | $259,530 | $259,530 | $535.84 | | |
| ST2 | STATE SCHOOL PART 2 600 | 0.8131451643 | $259,530 | $259,530 | $211.04 | | |
| STATESCHL | STATE SCHOOL 600 | 1.5158548041 | $259,530 | $259,530 | $393.41 | | |
| STREFUND | STATE REFUND LEVY 603 | 0.0000000000 | $259,530 | $259,530 | $0.00 | | |
| CWWBOND | C OF WW BOND 643 | 0.2760494372 | $259,530 | $259,530 | $71.64 | | |
| CWWGEN | CITY OF WW 631 | 1.6100204973 | $259,530 | $259,530 | $417.85 | | |
| CWWRFD | CITY OF WALLA WALLA REFUND 631 | 0.0000000000 | $259,530 | $259,530 | $0.00 | | |
| | Total Tax Rate: | 8.7973694689 | | | | | |
| | | | | Taxes w/Current Exemptions: | $2,283.19 | | |
| | | | | Taxes w/o Exemptions: | $2,283.19 | | |
Improvement / Building
| Improvement #1: | RESIDENTIAL | State Code: | 11 | 1110.0 sqft | Value: | $217,530 |
| Exterior Wall: | SIDING | Heating/Cooling: | WARM & COOLED AIR | | Number of Bathrooms: | 1 | Number of Bedrooms: | 3 | | Plumbing: | 6 | Roof Covering: | COMP SHINGLE |
|
| | Type | Description | Class CD | Sub Class CD | Year Built | Area |
| | MA | Main Area | 1 | 30 | 1951 | 1110.0 |
| | SI1 | SITE IMPROVEMENT | 1 | 30 | 1951 | 1.5 |
| | DTG | Detached Garage | 1 | 30 | 1951 | 384.0 |
| | OSP | Open | 1 | 30 | 1951 | 55.0 |
Sketch
Property Image
Land
| 1 | RES 1 | Converted: Residential | 0.1543 | 6720.00 | 0.00 | 0.00 | 1.00 | $42,000 | $0 |
Roll Value History
| 2025 | N/A | N/A | N/A | N/A | N/A |
| 2024 | $183,310 | $67,200 | $0 | $250,510 | $250,510 |
| 2023 | $217,530 | $42,000 | $0 | $259,530 | $259,530 |
| 2022 | $217,530 | $42,000 | $0 | $259,530 | $259,530 |
| 2021 | $155,380 | $42,000 | $0 | $197,380 | $197,380 |
| 2020 | $110,990 | $42,000 | $0 | $152,990 | $152,990 |
| 2019 | $110,990 | $42,000 | $0 | $152,990 | $152,990 |
| 2018 | $105,700 | $42,000 | $0 | $147,700 | $147,700 |
| 2017 | $114,140 | $26,900 | $0 | $141,040 | $141,040 |
| 2016 | $108,700 | $26,900 | $0 | $135,600 | $135,600 |
| 2015 | $108,700 | $26,900 | $0 | $135,600 | $135,600 |
| 2014 | $108,700 | $26,900 | $0 | $135,600 | $135,600 |
| 2013 | $108,700 | $26,900 | $0 | $135,600 | $135,600 |
| 2012 | $122,600 | $26,900 | $0 | $0 | $0 |
| 2011 | $122,600 | $26,900 | $0 | $0 | $0 |
| 2010 | $115,500 | $26,900 | $0 | $0 | $0 |
| 2009 | $131,300 | $26,900 | $0 | $0 | $0 |
| 2008 | $94,800 | $26,900 | $0 | $0 | $0 |
| 2007 | $94,800 | $26,900 | $0 | $0 | $0 |
| 2006 | $69,900 | $13,400 | $0 | $0 | $0 |
Deed and Sales History
| 1 | 10/23/1995 | WARRANTY D | WARRANTY DEED | | | | | $85,900.00 | 84961 | 2359-510298 |
Payout Agreement
| No payout information available.. |