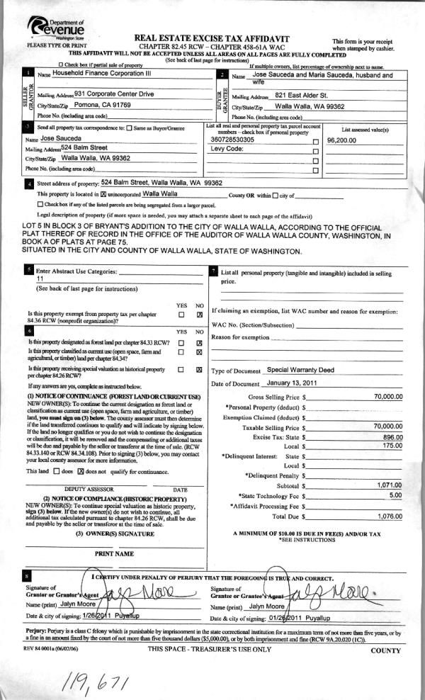
Property
Account |
| Property ID: | 8258 | Abbreviated Legal Description: | EAST MILBROOKE PARK LOT 3 BLK 4 |
| Parcel Number: | 360721660403 | Agent Code: | |
| Type: | Real | | |
| Tax Area: | 1 - OL-140-F | Land Use Code | 11 |
| Open Space: | N | DFL | N |
| Historic Property: | N | Remodel Property: | N |
| Multi-Family Redevelopment: | N | | |
| Township: | 7 | Section: | 21 |
| Range: | 36 |
Location |
| Address: | 1616 UNIVERSITY DR WA 99362 | Mapsco: | |
| Neighborhood: | A-Superior SFR | Map ID: | |
| Neighborhood CD: | 413211 |
Owner |
| Name: | HLUBUCEK MARTIN & TATJANA HLUBUCKOVA | Owner ID: | 54468 |
| Mailing Address: | 1616 UNIVERSITY DR WALLA WALLA, WA 99362 | % Ownership: | 100.0000000000% |
| | | Exemptions: | |
Taxes and Assessment Details
Values
| (+) Improvement Homesite Value: | + | $0 | |
| (+) Improvement Non-Homesite Value: | + | $299,700 | |
| (+) Land Homesite Value: | + | $0 | |
| (+) Land Non-Homesite Value: | + | $52,800 | |
| (+) Curr Use (HS): | + | $0 | $0 |
| (+) Curr Use (NHS): | + | $0 | $0 |
| | | -------------------------- | |
| (=) Market Value: | = | $352,500 | |
| (–) Productivity Loss: | – | $0 | |
| | | -------------------------- | |
| (=) Subtotal: | = | $352,500 | |
| (+) Senior Appraised Value: | + | $0 | |
| (+) Non-Senior Appraised Value: | + | $352,500 | |
| | | -------------------------- | |
| (=) Total Appraised Value: | = | $352,500 | |
| (–) Senior Exemption Loss: | – | $0 | |
| (–) Exemption Loss: | – | $0 | |
| | | -------------------------- | |
| (=) Taxable Value: | = | $352,500 | |
Taxing Jurisdiction
| Owner: | HLUBUCEK MARTIN & TATJANA HLUBUCKOVA | | |
| % Ownership: | 100.0000000000% | | |
| Total Value: | $352,500 | | |
| Tax Area: | 1 - OL-140-F |
| CERFD | CURRENT EXPENSE REFUND 010 | 0.0000000000 | $352,500 | $352,500 | $0.00 | | |
| CURREXP | CURRENT EXPENSE 010 | 1.0175366760 | $352,500 | $352,500 | $358.68 | | |
| HUMNSERV | HUMAN SERVICES 119 | 0.0250000000 | $352,500 | $352,500 | $8.81 | | |
| SLDREL | SOLDIERS RELIEF 121 | 0.0155990005 | $352,500 | $352,500 | $5.50 | | |
| EMERGSER | EMS 147 | 0.3792580840 | $352,500 | $352,500 | $133.69 | | |
| EMSRFD | EMS REFUND 147 | 0.0000000000 | $352,500 | $352,500 | $0.00 | | |
| PORTRFD | PORT REFUND 640 | 0.0000000000 | $352,500 | $352,500 | $0.00 | | |
| PORTWWGEN | PORT OF WW 640 | 0.2460186015 | $352,500 | $352,500 | $86.72 | | |
| SD140BOND | SD #140 BOND 764 | 0.8342371393 | $352,500 | $352,500 | $294.07 | | |
| SD140GEN | SD #140 GENERAL 760 | 2.0646500647 | $352,500 | $352,500 | $727.79 | | |
| ST2 | STATE SCHOOL PART 2 600 | 0.8131451643 | $352,500 | $352,500 | $286.63 | | |
| STATESCHL | STATE SCHOOL 600 | 1.5158548041 | $352,500 | $352,500 | $534.34 | | |
| STREFUND | STATE REFUND LEVY 603 | 0.0000000000 | $352,500 | $352,500 | $0.00 | | |
| CWWBOND | C OF WW BOND 643 | 0.2760494372 | $352,500 | $352,500 | $97.31 | | |
| CWWGEN | CITY OF WW 631 | 1.6100204973 | $352,500 | $352,500 | $567.53 | | |
| CWWRFD | CITY OF WALLA WALLA REFUND 631 | 0.0000000000 | $352,500 | $352,500 | $0.00 | | |
| | Total Tax Rate: | 8.7973694689 | | | | | |
| | | | | Taxes w/Current Exemptions: | $3,101.07 | | |
| | | | | Taxes w/o Exemptions: | $3,101.07 | | |
Improvement / Building
| Improvement #1: | RESIDENTIAL | State Code: | 11 | 1120.0 sqft | Value: | $299,700 |
| Exterior Wall: | SIDING | Heating/Cooling: | WARM & COOLED AIR | | Number of Bathrooms: | 2 | Number of Bedrooms: | 4 | | Plumbing: | 8 | Roof Covering: | COMP SHINGLE |
|
| | Type | Description | Class CD | Sub Class CD | Year Built | Area |
| | MA | Main Area | 1 | 30 | 1955 | 1120.0 |
| | SI1 | SITE IMPROVEMENT | 1 | 30 | 0 | 2.5 |
| | BASE | BASEMENT | 1 | 30 | 1955 | 1120.0 |
| | BPF | BASEMENT -PARTITIONED FINISH | 1 | 30 | 1955 | 1120.0 |
| | S1F | Single One Story Fireplace | 1 | 30 | 1955 | 1.0 |
| | OPS | OPEN PORCH W/STEPS | 1 | 30 | 1955 | 30.0 |
| | CPC | COVERED CARPORT/PATIO | 1 | 30 | 0 | 450.0 |
| | DTG | Detached Garage | 1 | 30 | 1955 | 300.0 |
Sketch
Property Image
Land
| 1 | RES 1 | Converted: Residential | 0.1515 | 6600.00 | 0.00 | 0.00 | 1.00 | $52,800 | $0 |
Roll Value History
| 2025 | N/A | N/A | N/A | N/A | N/A |
| 2024 | $269,730 | $52,800 | $0 | $322,530 | $322,530 |
| 2023 | $299,700 | $52,800 | $0 | $352,500 | $352,500 |
| 2022 | $266,780 | $34,650 | $0 | $301,430 | $301,430 |
| 2021 | $205,220 | $34,650 | $0 | $239,870 | $239,870 |
| 2020 | $178,450 | $34,650 | $0 | $213,100 | $213,100 |
| 2019 | $178,450 | $34,650 | $0 | $213,100 | $213,100 |
| 2018 | $162,230 | $34,650 | $0 | $196,880 | $196,880 |
| 2017 | $154,500 | $34,650 | $0 | $189,150 | $189,150 |
| 2016 | $127,400 | $26,400 | $0 | $153,800 | $153,800 |
| 2015 | $127,400 | $26,400 | $0 | $153,800 | $153,800 |
| 2014 | $134,100 | $26,400 | $0 | $160,500 | $160,500 |
| 2013 | $134,100 | $26,400 | $0 | $160,500 | $160,500 |
| 2012 | $134,100 | $26,400 | $0 | $0 | $0 |
| 2011 | $136,100 | $26,400 | $0 | $0 | $0 |
| 2010 | $121,300 | $26,400 | $0 | $0 | $0 |
| 2009 | $137,700 | $26,400 | $0 | $0 | $0 |
| 2008 | $122,800 | $26,400 | $0 | $0 | $0 |
| 2007 | $122,800 | $26,400 | $0 | $0 | $0 |
| 2006 | $72,600 | $13,200 | $0 | $0 | $0 |
Deed and Sales History
| 1 | 03/05/2014 | SWD | STATUTORY WARRANTY DEED | LARSON KATRINA | HLUBUCEK MARTIN & TATJANA HLUBUCKOVA | | | $150,000.00 | 125519 | 2014-01511 |
| 2 | 02/29/2000 | WARRANTY D | WARRANTY DEED | | | | | $86,000.00 | 94598 | 2950-001923 |
Payout Agreement
| No payout information available.. |