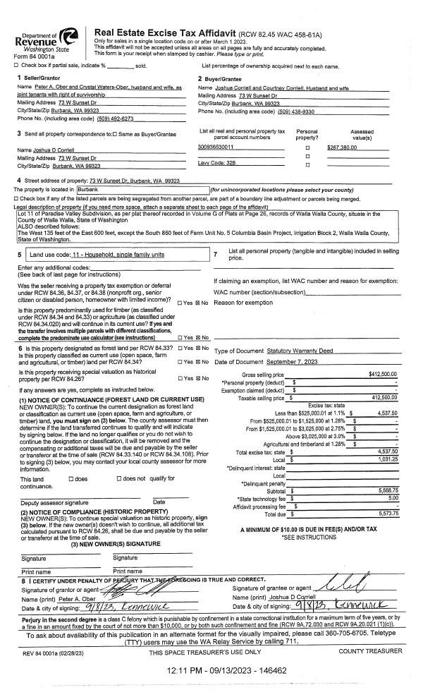
Property
Account |
| Property ID: | 8227 | Abbreviated Legal Description: | MILBROOKE PARK LOT 2 BLK 5 |
| Parcel Number: | 360721650502 | Agent Code: | |
| Type: | Real | | |
| Tax Area: | 1 - OL-140-F | Land Use Code | 11 |
| Open Space: | N | DFL | N |
| Historic Property: | N | Remodel Property: | N |
| Multi-Family Redevelopment: | N | | |
| Township: | 7 | Section: | 21 |
| Range: | 36 |
Location |
| Address: | 68 BOYER DR WA 99362 | Mapsco: | |
| Neighborhood: | A-Superior SFR | Map ID: | |
| Neighborhood CD: | 513211 |
Owner |
| Name: | CLEMENT LOLA J | Owner ID: | 68180 |
| Mailing Address: | 68 BOYER DR WALLA WALLA, WA 99362 | % Ownership: | 100.0000000000% |
| | | Exemptions: | |
Taxes and Assessment Details
Values
| (+) Improvement Homesite Value: | + | $0 | |
| (+) Improvement Non-Homesite Value: | + | $330,840 | |
| (+) Land Homesite Value: | + | $0 | |
| (+) Land Non-Homesite Value: | + | $43,710 | |
| (+) Curr Use (HS): | + | $0 | $0 |
| (+) Curr Use (NHS): | + | $0 | $0 |
| | | -------------------------- | |
| (=) Market Value: | = | $374,550 | |
| (–) Productivity Loss: | – | $0 | |
| | | -------------------------- | |
| (=) Subtotal: | = | $374,550 | |
| (+) Senior Appraised Value: | + | $0 | |
| (+) Non-Senior Appraised Value: | + | $374,550 | |
| | | -------------------------- | |
| (=) Total Appraised Value: | = | $374,550 | |
| (–) Senior Exemption Loss: | – | $0 | |
| (–) Exemption Loss: | – | $0 | |
| | | -------------------------- | |
| (=) Taxable Value: | = | $374,550 | |
Taxing Jurisdiction
| Owner: | CLEMENT LOLA J | | |
| % Ownership: | 100.0000000000% | | |
| Total Value: | $374,550 | | |
| Tax Area: | 1 - OL-140-F |
| CERFD | CURRENT EXPENSE REFUND 010 | 0.0000000000 | $374,550 | $374,550 | $0.00 | | |
| CURREXP | CURRENT EXPENSE 010 | 1.0175366760 | $374,550 | $374,550 | $381.12 | | |
| HUMNSERV | HUMAN SERVICES 119 | 0.0250000000 | $374,550 | $374,550 | $9.36 | | |
| SLDREL | SOLDIERS RELIEF 121 | 0.0155990005 | $374,550 | $374,550 | $5.84 | | |
| EMERGSER | EMS 147 | 0.3792580840 | $374,550 | $374,550 | $142.05 | | |
| EMSRFD | EMS REFUND 147 | 0.0000000000 | $374,550 | $374,550 | $0.00 | | |
| PORTRFD | PORT REFUND 640 | 0.0000000000 | $374,550 | $374,550 | $0.00 | | |
| PORTWWGEN | PORT OF WW 640 | 0.2460186015 | $374,550 | $374,550 | $92.15 | | |
| SD140BOND | SD #140 BOND 764 | 0.8342371393 | $374,550 | $374,550 | $312.46 | | |
| SD140GEN | SD #140 GENERAL 760 | 2.0646500647 | $374,550 | $374,550 | $773.31 | | |
| ST2 | STATE SCHOOL PART 2 600 | 0.8131451643 | $374,550 | $374,550 | $304.56 | | |
| STATESCHL | STATE SCHOOL 600 | 1.5158548041 | $374,550 | $374,550 | $567.76 | | |
| STREFUND | STATE REFUND LEVY 603 | 0.0000000000 | $374,550 | $374,550 | $0.00 | | |
| CWWBOND | C OF WW BOND 643 | 0.2760494372 | $374,550 | $374,550 | $103.39 | | |
| CWWGEN | CITY OF WW 631 | 1.6100204973 | $374,550 | $374,550 | $603.03 | | |
| CWWRFD | CITY OF WALLA WALLA REFUND 631 | 0.0000000000 | $374,550 | $374,550 | $0.00 | | |
| | Total Tax Rate: | 8.7973694689 | | | | | |
| | | | | Taxes w/Current Exemptions: | $3,295.03 | | |
| | | | | Taxes w/o Exemptions: | $3,295.03 | | |
Improvement / Building
| Improvement #1: | RESIDENTIAL | State Code: | 11 | 1358.0 sqft | Value: | $330,840 |
| Exterior Wall: | SIDING | Heating/Cooling: | REV-HEAT-PUMP-W/DUCT | | Number of Bathrooms: | 2 | Number of Bedrooms: | 4 | | Plumbing: | 9 | Roof Covering: | COMP SHINGLE |
|
| | Type | Description | Class CD | Sub Class CD | Year Built | Area |
| | MA | Main Area | 1 | 30 | 1951 | 1358.0 |
| | SI1 | SITE IMPROVEMENT | 1 | 30 | 1951 | 2.0 |
| | BASE | BASEMENT | 1 | 30 | 1951 | 960.0 |
| | BPF | BASEMENT -PARTITIONED FINISH | 1 | 30 | 1951 | 640.0 |
| | RPS | PORCH W/STEPS,ROOF | 1 | 30 | 1951 | 85.0 |
| | WOD | Wood Deck | 1 | 30 | 1951 | 326.0 |
| | POL3 | POLE BUILDING-CON,ELEC,INSU | 1 | 30 | 1951 | 720.0 |
Sketch
Property Image
Land
| 1 | RES 1 | Converted: Residential | 0.1605 | 6993.00 | 0.00 | 0.00 | 1.00 | $43,710 | $0 |
Roll Value History
| 2025 | N/A | N/A | N/A | N/A | N/A |
| 2024 | $304,840 | $69,930 | $0 | $374,770 | $374,770 |
| 2023 | $330,840 | $43,710 | $0 | $374,550 | $374,550 |
| 2022 | $315,080 | $43,710 | $0 | $358,790 | $358,790 |
| 2021 | $203,280 | $43,710 | $0 | $246,990 | $246,990 |
| 2020 | $145,200 | $43,710 | $0 | $188,910 | $188,910 |
| 2019 | $145,200 | $43,710 | $0 | $188,910 | $188,910 |
| 2018 | $132,000 | $43,710 | $0 | $175,710 | $175,710 |
| 2017 | $135,000 | $28,000 | $0 | $163,000 | $163,000 |
| 2016 | $135,000 | $28,000 | $0 | $163,000 | $163,000 |
| 2015 | $150,000 | $28,000 | $0 | $178,000 | $178,000 |
| 2014 | $150,000 | $28,000 | $0 | $178,000 | $178,000 |
| 2013 | $150,000 | $28,000 | $0 | $178,000 | $178,000 |
| 2012 | $159,600 | $28,000 | $0 | $0 | $0 |
| 2011 | $159,600 | $28,000 | $0 | $0 | $0 |
| 2010 | $150,700 | $28,000 | $0 | $0 | $0 |
| 2009 | $170,500 | $28,000 | $0 | $0 | $0 |
| 2008 | $137,400 | $28,000 | $0 | $0 | $0 |
| 2007 | $137,400 | $28,000 | $0 | $0 | $0 |
| 2006 | $92,500 | $14,000 | $0 | $0 | $0 |
Deed and Sales History
| 1 | 07/15/2021 | SWD | STATUTORY WARRANTY DEED | LYONS NICHOLAS J & CHRISTINE A | CLEMENT LOLA J | | | $367,000.00 | 142048 | 2021-08629 |
| 2 | 08/14/2018 | QCD | QUIT CLAIM DEED | LYONS NICHOLAS J | LYONS NICHOLAS J & CHRISTINE A | | | $0.00 | 135324 | 2018-06648 |
| 3 | 01/12/2016 | SWD | STATUTORY WARRANTY DEED | KINMAN BERTON E ESTATE OF | LYONS NICHOLAS J | | | $149,500.00 | 129511 | 2016-00265 |
| 4 | 03/04/2014 | DPR | DEED OF PERSONAL REPRESENTATIVE | KINMAN BEVERLY MARDELL ESTATE OF | KINMAN BERTON E ESTATE OF | | | | 125565 | 2014-01735 |
| 5 | 02/01/1967 | WARRANTY D | WARRANTY DEED | | | 321 | 261 | $13,900.00 | 0 | 3210-483268 |
Payout Agreement
| No payout information available.. |