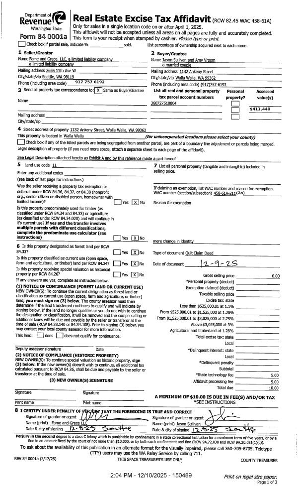
Property
Account |
| Property ID: | 8157 | Abbreviated Legal Description: | LUTCHERS LOT 15 BLK 6 |
| Parcel Number: | 360721640615 | Agent Code: | |
| Type: | Real | | |
| Tax Area: | 1 - OL-140-F | Land Use Code | 64 |
| Open Space: | N | DFL | N |
| Historic Property: | N | Remodel Property: | N |
| Multi-Family Redevelopment: | N | | |
| Township: | 7 | Section: | 21 |
| Range: | 36 |
Location |
| Address: | 420 CEDAR ST WA 99362 | Mapsco: | |
| Neighborhood: | WW Downtown Core area #4 | Map ID: | |
| Neighborhood CD: | 5344 |
Owner |
| Name: | STUBBLEFIELD STEPHEN & DEBORAH | Owner ID: | 2940 |
| Mailing Address: | 116 N 11TH AVE WALLA WALLA, WA 99362 | % Ownership: | 100.0000000000% |
| | | Exemptions: | |
Taxes and Assessment Details
Values
| (+) Improvement Homesite Value: | + | $0 | |
| (+) Improvement Non-Homesite Value: | + | $435,000 | |
| (+) Land Homesite Value: | + | $0 | |
| (+) Land Non-Homesite Value: | + | $40,500 | |
| (+) Curr Use (HS): | + | $0 | $0 |
| (+) Curr Use (NHS): | + | $0 | $0 |
| | | -------------------------- | |
| (=) Market Value: | = | $475,500 | |
| (–) Productivity Loss: | – | $0 | |
| | | -------------------------- | |
| (=) Subtotal: | = | $475,500 | |
| (+) Senior Appraised Value: | + | $0 | |
| (+) Non-Senior Appraised Value: | + | $475,500 | |
| | | -------------------------- | |
| (=) Total Appraised Value: | = | $475,500 | |
| (–) Senior Exemption Loss: | – | $0 | |
| (–) Exemption Loss: | – | $0 | |
| | | -------------------------- | |
| (=) Taxable Value: | = | $475,500 | |
Taxing Jurisdiction
| Owner: | STUBBLEFIELD STEPHEN & DEBORAH | | |
| % Ownership: | 100.0000000000% | | |
| Total Value: | $475,500 | | |
| Tax Area: | 1 - OL-140-F |
| CERFD | CURRENT EXPENSE REFUND 010 | 0.0000000000 | $475,500 | $475,500 | $0.00 | | |
| CURREXP | CURRENT EXPENSE 010 | 1.0175366760 | $475,500 | $475,500 | $483.84 | | |
| HUMNSERV | HUMAN SERVICES 119 | 0.0250000000 | $475,500 | $475,500 | $11.89 | | |
| SLDREL | SOLDIERS RELIEF 121 | 0.0155990005 | $475,500 | $475,500 | $7.42 | | |
| EMERGSER | EMS 147 | 0.3792580840 | $475,500 | $475,500 | $180.34 | | |
| EMSRFD | EMS REFUND 147 | 0.0000000000 | $475,500 | $475,500 | $0.00 | | |
| PORTRFD | PORT REFUND 640 | 0.0000000000 | $475,500 | $475,500 | $0.00 | | |
| PORTWWGEN | PORT OF WW 640 | 0.2460186015 | $475,500 | $475,500 | $116.98 | | |
| SD140BOND | SD #140 BOND 764 | 0.8342371393 | $475,500 | $475,500 | $396.68 | | |
| SD140GEN | SD #140 GENERAL 760 | 2.0646500647 | $475,500 | $475,500 | $981.74 | | |
| ST2 | STATE SCHOOL PART 2 600 | 0.8131451643 | $475,500 | $475,500 | $386.65 | | |
| STATESCHL | STATE SCHOOL 600 | 1.5158548041 | $475,500 | $475,500 | $720.79 | | |
| STREFUND | STATE REFUND LEVY 603 | 0.0000000000 | $475,500 | $475,500 | $0.00 | | |
| CWWBOND | C OF WW BOND 643 | 0.2760494372 | $475,500 | $475,500 | $131.26 | | |
| CWWGEN | CITY OF WW 631 | 1.6100204973 | $475,500 | $475,500 | $765.56 | | |
| CWWRFD | CITY OF WALLA WALLA REFUND 631 | 0.0000000000 | $475,500 | $475,500 | $0.00 | | |
| | Total Tax Rate: | 8.7973694689 | | | | | |
| | | | | Taxes w/Current Exemptions: | $4,183.15 | | |
| | | | | Taxes w/o Exemptions: | $4,183.15 | | |
Improvement / Building
| Improvement #1: | COMMERCIAL | State Code: | 64 | 8000.0 sqft | Value: | $435,000 |
| Exterior Wall: | PLYWOOD | Heating/Cooling: | WARM & COOLED AIR | | Plumbing: | 19 | Roof Covering: | COMP SHINGLE |
|
| | Type | Description | Class CD | Sub Class CD | Year Built | Area |
| | MA | Main Area | 7 | * | 2014 | 8000.0 |
| | SI1 | SITE IMPROVEMENT | 7 | * | 2014 | 2.0 |
| | UPFL | Upper Floor (included in main area) | 7 | * | 2014 | 3200.0 |
| | UPFL | Upper Floor (included in main area) | 7 | * | 2014 | 1600.0 |
| | BLW | WOOD BALCONIES | 7 | * | 2014 | 432.0 |
| | BLW | WOOD BALCONIES | 7 | * | 2014 | 320.0 |
| | EWS | EXT WOOD STAIRS | 7 | * | 2014 | 1.0 |
Sketch
Property Image
Land
| 1 | RES 1 | Converted: Residential | 0.1551 | 6756.00 | 0.00 | 0.00 | 1.00 | $40,500 | $0 |
Roll Value History
| 2025 | N/A | N/A | N/A | N/A | N/A |
| 2024 | $430,500 | $47,300 | $0 | $477,800 | $477,800 |
| 2023 | $435,000 | $40,500 | $0 | $475,500 | $475,500 |
| 2022 | $435,000 | $40,500 | $0 | $475,500 | $475,500 |
| 2021 | $435,000 | $40,500 | $0 | $475,500 | $475,500 |
| 2020 | $435,000 | $40,500 | $0 | $475,500 | $475,500 |
| 2019 | $435,000 | $40,500 | $0 | $475,500 | $475,500 |
| 2018 | $435,000 | $40,500 | $0 | $475,500 | $475,500 |
| 2017 | $487,700 | $27,000 | $0 | $514,700 | $514,700 |
| 2016 | $487,700 | $27,000 | $0 | $514,700 | $514,700 |
| 2015 | $487,700 | $27,000 | $0 | $514,700 | $514,700 |
| 2014 | $199,800 | $27,000 | $0 | $226,800 | $226,800 |
| 2013 | $0 | $27,000 | $0 | $27,000 | $27,000 |
| 2012 | $0 | $27,000 | $0 | $0 | $0 |
| 2011 | $0 | $27,000 | $0 | $0 | $0 |
| 2010 | $0 | $27,000 | $0 | $0 | $0 |
| 2009 | $0 | $27,000 | $0 | $0 | $0 |
| 2008 | $0 | $27,000 | $0 | $0 | $0 |
| 2007 | $0 | $27,000 | $0 | $0 | $0 |
| 2006 | $0 | $13,500 | $0 | $0 | $0 |
Deed and Sales History
| 1 | 02/01/2018 | SWD | STATUTORY WARRANTY DEED | HAYES CHAD | STUBBLEFIELD STEPHEN & DEBORAH | | | $450,000.00 | 134086 | 2018-00890 |
| 2 | 12/10/2013 | QCD | QUIT CLAIM DEED | H & N CONCRETE LLC | HAYES CHAD | | | | 125079 | 2013-11833 |
| 3 | 05/13/2013 | QCD | QUIT CLAIM DEED | JOHNSON, CHRIS & BROOKE | H & N CONCRETE LLC | | | $38,214.00 | 123952 | 2013-04788 |
| 4 | 04/16/2008 | WARRANTY D | WARRANTY DEED | MEADOWCROFT, THOMAS & PATRICIA | MEADOWCROFT, PATRICIA M | | | $0.00 | 114848 | 2008-03737 |
| 5 | 04/16/2008 | WARRANTY D | WARRANTY DEED | MEADOWCROFT, PATRICIA M | JOHNSON, CHRIS & BROOKE | | | $35,000.00 | 114848 | 2008-03738 |
| 6 | 09/08/1998 | WARRANTY D | WARRANTY DEED | | | | | $76,500.00 | 91196 | 2729-810323 |
Payout Agreement
| No payout information available.. |