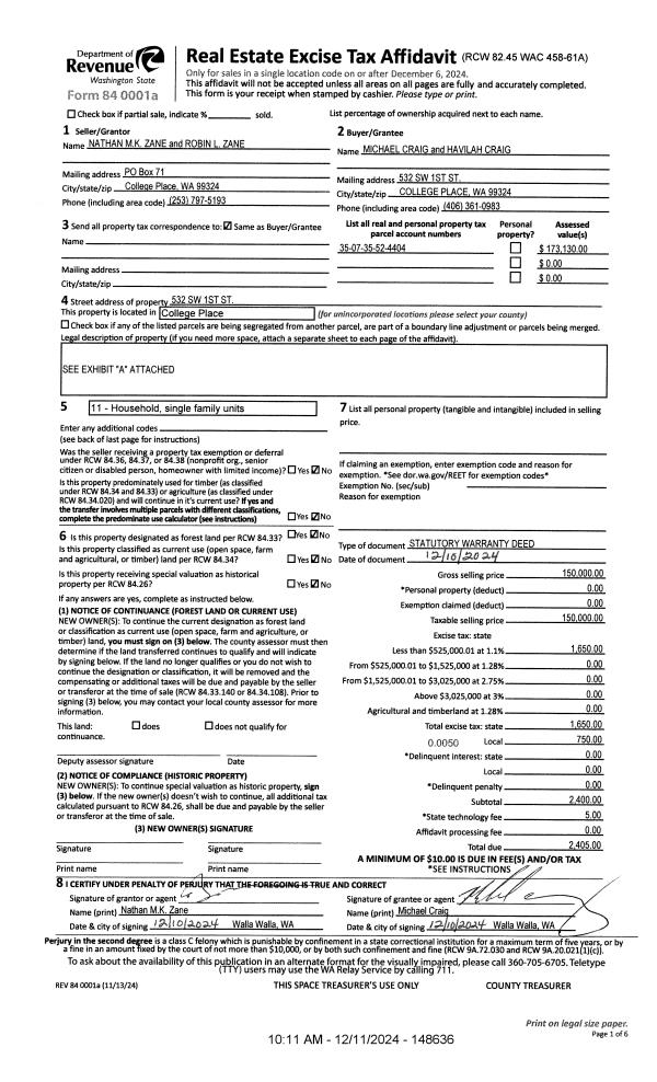
Property
Account |
| Property ID: | 8127 | Abbreviated Legal Description: | LENNONS & WILDWOOD LOT 3 BLK 5 |
| Parcel Number: | 360721630503 | Agent Code: | |
| Type: | Real | | |
| Tax Area: | 1 - OL-140-F | Land Use Code | 11 |
| Open Space: | N | DFL | N |
| Historic Property: | N | Remodel Property: | N |
| Multi-Family Redevelopment: | N | | |
| Township: | 7 | Section: | 21 |
| Range: | 36 |
Location |
| Address: | 1044 FRANCIS AVE WA 99362 | Mapsco: | |
| Neighborhood: | G-SFR | Map ID: | |
| Neighborhood CD: | 514011 |
Owner |
| Name: | CROWTHER PAUL G & MARY A | Owner ID: | 457 |
| Mailing Address: | 1044 FRANCIS AVE WALLA WALLA, WA 99362 | % Ownership: | 100.0000000000% |
| | | Exemptions: | |
Taxes and Assessment Details
Values
| (+) Improvement Homesite Value: | + | $263,980 | |
| (+) Improvement Non-Homesite Value: | + | $0 | |
| (+) Land Homesite Value: | + | $43,500 | |
| (+) Land Non-Homesite Value: | + | $0 | |
| (+) Curr Use (HS): | + | $0 | $0 |
| (+) Curr Use (NHS): | + | $0 | $0 |
| | | -------------------------- | |
| (=) Market Value: | = | $307,480 | |
| (–) Productivity Loss: | – | $0 | |
| | | -------------------------- | |
| (=) Subtotal: | = | $307,480 | |
| (+) Senior Appraised Value: | + | $0 | |
| (+) Non-Senior Appraised Value: | + | $307,480 | |
| | | -------------------------- | |
| (=) Total Appraised Value: | = | $307,480 | |
| (–) Senior Exemption Loss: | – | $0 | |
| (–) Exemption Loss: | – | $0 | |
| | | -------------------------- | |
| (=) Taxable Value: | = | $307,480 | |
Taxing Jurisdiction
| Owner: | CROWTHER PAUL G & MARY A | | |
| % Ownership: | 100.0000000000% | | |
| Total Value: | $307,480 | | |
| Tax Area: | 1 - OL-140-F |
| CERFD | CURRENT EXPENSE REFUND 010 | 0.0000000000 | $307,480 | $307,480 | $0.00 | | |
| CURREXP | CURRENT EXPENSE 010 | 1.0175366760 | $307,480 | $307,480 | $312.87 | | |
| HUMNSERV | HUMAN SERVICES 119 | 0.0250000000 | $307,480 | $307,480 | $7.69 | | |
| SLDREL | SOLDIERS RELIEF 121 | 0.0155990005 | $307,480 | $307,480 | $4.80 | | |
| EMERGSER | EMS 147 | 0.3792580840 | $307,480 | $307,480 | $116.61 | | |
| EMSRFD | EMS REFUND 147 | 0.0000000000 | $307,480 | $307,480 | $0.00 | | |
| PORTRFD | PORT REFUND 640 | 0.0000000000 | $307,480 | $307,480 | $0.00 | | |
| PORTWWGEN | PORT OF WW 640 | 0.2460186015 | $307,480 | $307,480 | $75.65 | | |
| SD140BOND | SD #140 BOND 764 | 0.8342371393 | $307,480 | $307,480 | $256.51 | | |
| SD140GEN | SD #140 GENERAL 760 | 2.0646500647 | $307,480 | $307,480 | $634.84 | | |
| ST2 | STATE SCHOOL PART 2 600 | 0.8131451643 | $307,480 | $307,480 | $250.03 | | |
| STATESCHL | STATE SCHOOL 600 | 1.5158548041 | $307,480 | $307,480 | $466.10 | | |
| STREFUND | STATE REFUND LEVY 603 | 0.0000000000 | $307,480 | $307,480 | $0.00 | | |
| CWWBOND | C OF WW BOND 643 | 0.2760494372 | $307,480 | $307,480 | $84.88 | | |
| CWWGEN | CITY OF WW 631 | 1.6100204973 | $307,480 | $307,480 | $495.05 | | |
| CWWRFD | CITY OF WALLA WALLA REFUND 631 | 0.0000000000 | $307,480 | $307,480 | $0.00 | | |
| | Total Tax Rate: | 8.7973694689 | | | | | |
| | | | | Taxes w/Current Exemptions: | $2,705.03 | | |
| | | | | Taxes w/o Exemptions: | $2,705.03 | | |
Improvement / Building
| Improvement #1: | RESIDENTIAL | State Code: | 11 | 908.0 sqft | Value: | $263,980 |
| Exterior Wall: | METAL/STEEL | Heating/Cooling: | FLOOR FURNACE | | Number of Bathrooms: | 2 | Number of Bedrooms: | 2 | | Plumbing: | 8 | Roof Covering: | COMP SHINGLE |
|
| | Type | Description | Class CD | Sub Class CD | Year Built | Area |
| | MA | Main Area | 1 | 30 | 1925 | 908.0 |
| | SI1 | SITE IMPROVEMENT | 1 | 30 | 1925 | 1.5 |
| | BASE | BASEMENT | 1 | 30 | 1925 | 908.0 |
| | BPF | BASEMENT -PARTITIONED FINISH | 1 | 30 | 1925 | 400.0 |
| | DTG | Detached Garage | 1 | 30 | 1925 | 460.0 |
| | RPC | OPEN PORCH W/ROOF , CEILED | 1 | 30 | 1925 | 80.0 |
| | CPC | COVERED CARPORT/PATIO | 1 | 30 | 1925 | 240.0 |
Sketch
Property Image
Land
| 1 | RES 1 | Converted: Residential | 0.1377 | 6000.00 | 0.00 | 0.00 | 1.00 | $43,500 | $0 |
Roll Value History
| 2025 | N/A | N/A | N/A | N/A | N/A |
| 2024 | $251,480 | $66,000 | $0 | $317,480 | $317,480 |
| 2023 | $263,980 | $43,500 | $0 | $307,480 | $307,480 |
| 2022 | $239,980 | $43,500 | $0 | $283,480 | $94,192 |
| 2021 | $191,980 | $43,500 | $0 | $235,480 | $94,192 |
| 2020 | $137,130 | $43,500 | $0 | $180,630 | $180,630 |
| 2019 | $137,130 | $43,500 | $0 | $180,630 | $180,630 |
| 2018 | $130,600 | $43,500 | $0 | $174,100 | $174,100 |
| 2017 | $139,620 | $27,000 | $0 | $166,620 | $166,620 |
| 2016 | $126,930 | $27,000 | $0 | $153,930 | $153,930 |
| 2015 | $115,390 | $27,000 | $0 | $142,390 | $142,390 |
| 2014 | $104,900 | $27,000 | $0 | $131,900 | $131,900 |
| 2013 | $104,900 | $27,000 | $0 | $131,900 | $131,900 |
| 2012 | $107,600 | $27,000 | $0 | $0 | $0 |
| 2011 | $107,600 | $27,000 | $0 | $0 | $0 |
| 2010 | $95,100 | $27,000 | $0 | $0 | $0 |
| 2009 | $108,700 | $27,000 | $0 | $0 | $0 |
| 2008 | $108,700 | $27,000 | $0 | $0 | $0 |
| 2007 | $108,700 | $27,000 | $0 | $0 | $0 |
| 2006 | $68,400 | $12,000 | $0 | $0 | $0 |
Deed and Sales History
| 1 | 08/13/2004 | WARRANTY D | WARRANTY DEED | LASSEN, DWIGHT D & JEANETTE | CROWTHER, PAUL G & MARY A | | | $137,900.00 | 105480 | 2004-09332 |
| 2 | 09/13/1999 | WARRANTY D | WARRANTY DEED | | | | | $82,000.00 | 93608 | 2899-910567 |
Payout Agreement
| No payout information available.. |