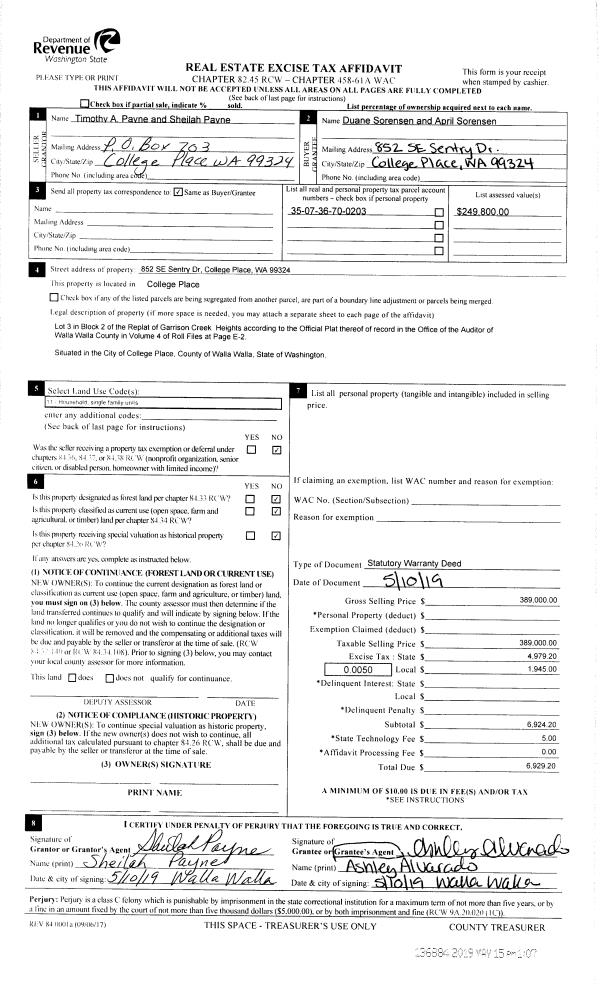
Property
Account |
| Property ID: | 8103 | Abbreviated Legal Description: | 2-6-35 TAX 26 |
| Parcel Number: | 350602220005 | Agent Code: | |
| Type: | Real | | |
| Tax Area: | 311 - 250-4 | Land Use Code | 11 |
| Open Space: | N | DFL | N |
| Historic Property: | N | Remodel Property: | N |
| Multi-Family Redevelopment: | N | | |
| Township: | 6 | Section: | 2 |
| Range: | 35 |
Location |
| Address: | 818 MOJONNIER RD WA 99324 | Mapsco: | |
| Neighborhood: | G SFR Rural/City Inf | Map ID: | |
| Neighborhood CD: | 114012 |
Owner |
| Name: | JOHNSON CALEB & HEIDI | Owner ID: | 69969 |
| Mailing Address: | 818 MOJONNIER RD WALLA WALLA, WA 99362 | % Ownership: | 100.0000000000% |
| | | Exemptions: | |
Taxes and Assessment Details
Values
| (+) Improvement Homesite Value: | + | $0 | |
| (+) Improvement Non-Homesite Value: | + | $343,780 | |
| (+) Land Homesite Value: | + | $0 | |
| (+) Land Non-Homesite Value: | + | $102,870 | |
| (+) Curr Use (HS): | + | $0 | $0 |
| (+) Curr Use (NHS): | + | $0 | $0 |
| | | -------------------------- | |
| (=) Market Value: | = | $446,650 | |
| (–) Productivity Loss: | – | $0 | |
| | | -------------------------- | |
| (=) Subtotal: | = | $446,650 | |
| (+) Senior Appraised Value: | + | $0 | |
| (+) Non-Senior Appraised Value: | + | $446,650 | |
| | | -------------------------- | |
| (=) Total Appraised Value: | = | $446,650 | |
| (–) Senior Exemption Loss: | – | $0 | |
| (–) Exemption Loss: | – | $0 | |
| | | -------------------------- | |
| (=) Taxable Value: | = | $446,650 | |
Taxing Jurisdiction
| Owner: | JOHNSON CALEB & HEIDI | | |
| % Ownership: | 100.0000000000% | | |
| Total Value: | $446,650 | | |
| Tax Area: | 311 - 250-4 |
| CERFD | CURRENT EXPENSE REFUND 010 | 0.0000000000 | $446,650 | $446,650 | $0.00 | | |
| CURREXP | CURRENT EXPENSE 010 | 1.0175366760 | $446,650 | $446,650 | $454.48 | | |
| HUMNSERV | HUMAN SERVICES 119 | 0.0250000000 | $446,650 | $446,650 | $11.17 | | |
| SLDREL | SOLDIERS RELIEF 121 | 0.0155990005 | $446,650 | $446,650 | $6.97 | | |
| EMERGSER | EMS 147 | 0.3792580840 | $446,650 | $446,650 | $169.40 | | |
| EMSRFD | EMS REFUND 147 | 0.0000000000 | $446,650 | $446,650 | $0.00 | | |
| FD4EXP | FD #4 EXPENSE 686 | 0.8836993059 | $446,650 | $446,650 | $394.70 | | |
| RLBRFD | RURAL LIBRARY REFUND 623 | 0.0000000000 | $446,650 | $446,650 | $0.00 | | |
| RURALLIB | RURAL LIBRARY 623 | 0.3710609029 | $446,650 | $446,650 | $165.73 | | |
| PORTRFD | PORT REFUND 640 | 0.0000000000 | $446,650 | $446,650 | $0.00 | | |
| PORTWWGEN | PORT OF WW 640 | 0.2460186015 | $446,650 | $446,650 | $109.88 | | |
| SD250BOND | SD #250 BOND 773 | 1.4560608159 | $446,650 | $446,650 | $650.35 | | |
| SD250GEN | SD #250 GENERAL 770 | 2.3880724087 | $446,650 | $446,650 | $1,066.63 | | |
| ST2 | STATE SCHOOL PART 2 600 | 0.8131451643 | $446,650 | $446,650 | $363.19 | | |
| STATESCHL | STATE SCHOOL 600 | 1.5158548041 | $446,650 | $446,650 | $677.06 | | |
| STREFUND | STATE REFUND LEVY 603 | 0.0000000000 | $446,650 | $446,650 | $0.00 | | |
| COROAD | COUNTY ROAD 115 | 1.6549953990 | $446,650 | $446,650 | $739.20 | | |
| CRPRD | COUNTY ROAD REFUND 115 | 0.0000000000 | $446,650 | $446,650 | $0.00 | | |
| | Total Tax Rate: | 10.7663011628 | | | | | |
| | | | | Taxes w/Current Exemptions: | $4,808.76 | | |
| | | | | Taxes w/o Exemptions: | $4,808.76 | | |
Improvement / Building
| Improvement #1: | RESIDENTIAL | State Code: | 11 | 1534.0 sqft | Value: | $343,780 |
| Exterior Wall: | VINYL | Heating/Cooling: | CEILING RADIANT | | Number of Bathrooms: | 2 | Number of Bedrooms: | 3 | | Plumbing: | 9 | Roof Covering: | COMP SHINGLE |
|
| | Type | Description | Class CD | Sub Class CD | Year Built | Area |
| | MA | Main Area | 1 | 30 | 1968 | 1534.0 |
| | SI1 | SITE IMPROVEMENT | 1 | 30 | 1968 | 2.5 |
| | ATG | Attached Garage | 1 | 30 | 1968 | 702.0 |
| | RPC | OPEN PORCH W/ROOF , CEILED | 1 | 30 | 1968 | 25.0 |
| | S1F | Single One Story Fireplace | 1 | 30 | 1968 | 1.0 |
| | POL3 | POLE BUILDING-CON,ELEC,INSU | 1 | 30 | 1968 | 480.0 |
| | POL1 | POLE BUILDING-GRAVEL | 1 | 30 | 1968 | 216.0 |
Sketch
Property Image
Land
| 1 | RES 1 | Converted: Residential | 0.6598 | 28740.00 | 0.00 | 0.00 | 1.00 | $102,870 | $0 |
Roll Value History
| 2025 | N/A | N/A | N/A | N/A | N/A |
| 2024 | $343,780 | $102,870 | $0 | $446,650 | $446,650 |
| 2023 | $343,780 | $102,870 | $0 | $446,650 | $446,650 |
| 2022 | $343,780 | $102,870 | $0 | $446,650 | $446,650 |
| 2021 | $171,890 | $102,870 | $0 | $274,760 | $274,760 |
| 2020 | $143,240 | $102,870 | $0 | $246,110 | $246,110 |
| 2019 | $160,610 | $85,500 | $0 | $246,110 | $246,110 |
| 2018 | $133,840 | $85,500 | $0 | $219,340 | $219,340 |
| 2017 | $127,470 | $85,500 | $0 | $212,970 | $23,600 |
| 2016 | $121,400 | $85,500 | $0 | $206,900 | $23,600 |
| 2015 | $121,400 | $85,500 | $0 | $206,900 | $23,600 |
| 2014 | $121,400 | $85,500 | $0 | $206,900 | $23,600 |
| 2013 | $121,400 | $85,500 | $0 | $206,900 | $23,600 |
| 2012 | $121,400 | $85,500 | $0 | $0 | $0 |
| 2011 | $106,200 | $111,600 | $0 | $0 | $0 |
| 2010 | $106,200 | $111,600 | $0 | $0 | $0 |
| 2009 | $130,400 | $111,600 | $0 | $0 | $0 |
| 2008 | $107,200 | $41,400 | $0 | $0 | $0 |
| 2007 | $107,200 | $41,400 | $0 | $0 | $0 |
| 2006 | $107,200 | $41,400 | $0 | $0 | $0 |
Deed and Sales History
| 1 | 07/30/2021 | SWD | STATUTORY WARRANTY DEED | BOSTWICK CHAD & MCKENZIE | JOHNSON CALEB & HEIDI | | 2-PARCELS | $471,500.00 | 142184 | 2021-09349 |
|   | |
| 2 | 11/01/2018 | SWD | STATUTORY WARRANTY DEED | JOHNSON V GENEVIEVE TRUSTEE | BOSTWICK CHAD & MCKENZIE | | 2-PARCELS | $249,000.00 | 135894 | 2018-09253 |
|   | |
| 3 | 06/30/1975 | WARRANTY D | WARRANTY DEED | | | | | | 0 | 1428-401725 |
Payout Agreement
| No payout information available.. |