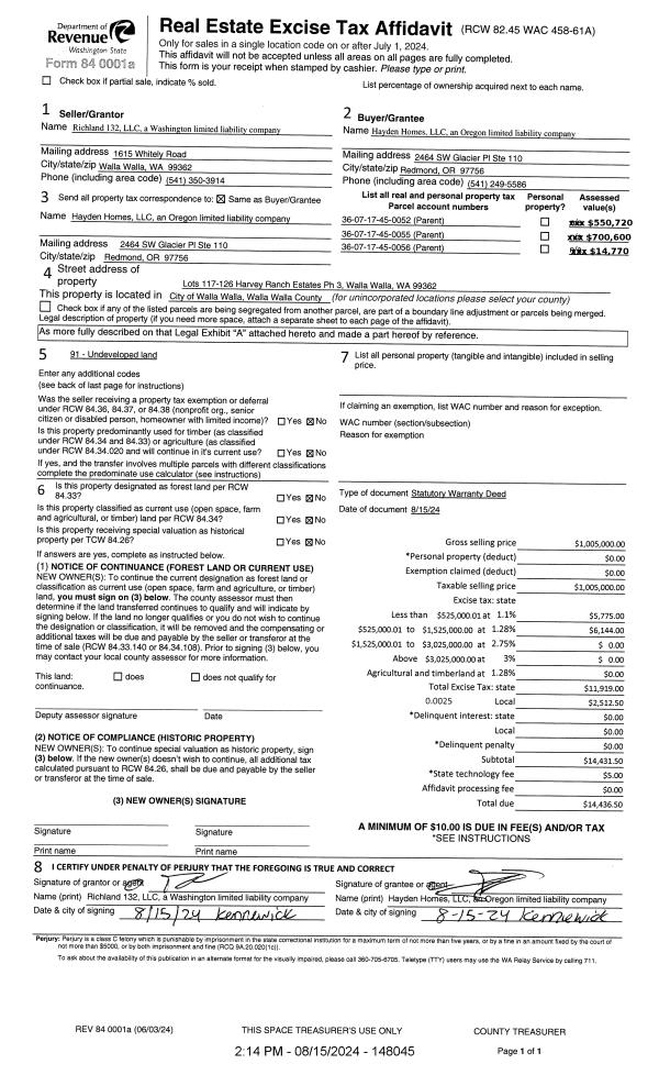
Property
Account |
| Property ID: | 7983 | Abbreviated Legal Description: | ISAACS TAX 2 BLK 10 |
| Parcel Number: | 360721571002 | Agent Code: | |
| Type: | Real | | |
| Tax Area: | 1 - OL-140-F | Land Use Code | 11 |
| Open Space: | N | DFL | N |
| Historic Property: | N | Remodel Property: | N |
| Multi-Family Redevelopment: | N | | |
| Township: | 7 | Section: | 21 |
| Range: | 36 |
Location |
| Address: | 928 HOBSON ST WA 99362 | Mapsco: | |
| Neighborhood: | G-SFR | Map ID: | |
| Neighborhood CD: | 514011 |
Owner |
| Name: | CUMBO GINA L & JOHN M GEORGE | Owner ID: | 72014 |
| Mailing Address: | 928 HOBSON ST WALLA WALLA, WA 99362 | % Ownership: | 100.0000000000% |
| | | Exemptions: | |
Taxes and Assessment Details
Values
| (+) Improvement Homesite Value: | + | $0 | |
| (+) Improvement Non-Homesite Value: | + | $377,750 | |
| (+) Land Homesite Value: | + | $0 | |
| (+) Land Non-Homesite Value: | + | $46,040 | |
| (+) Curr Use (HS): | + | $0 | $0 |
| (+) Curr Use (NHS): | + | $0 | $0 |
| | | -------------------------- | |
| (=) Market Value: | = | $423,790 | |
| (–) Productivity Loss: | – | $0 | |
| | | -------------------------- | |
| (=) Subtotal: | = | $423,790 | |
| (+) Senior Appraised Value: | + | $0 | |
| (+) Non-Senior Appraised Value: | + | $423,790 | |
| | | -------------------------- | |
| (=) Total Appraised Value: | = | $423,790 | |
| (–) Senior Exemption Loss: | – | $0 | |
| (–) Exemption Loss: | – | $0 | |
| | | -------------------------- | |
| (=) Taxable Value: | = | $423,790 | |
Taxing Jurisdiction
| Owner: | CUMBO GINA L & JOHN M GEORGE | | |
| % Ownership: | 100.0000000000% | | |
| Total Value: | $423,790 | | |
| Tax Area: | 1 - OL-140-F |
| CERFD | CURRENT EXPENSE REFUND 010 | 0.0000000000 | $423,790 | $423,790 | $0.00 | | |
| CURREXP | CURRENT EXPENSE 010 | 1.0175366760 | $423,790 | $423,790 | $431.22 | | |
| HUMNSERV | HUMAN SERVICES 119 | 0.0250000000 | $423,790 | $423,790 | $10.59 | | |
| SLDREL | SOLDIERS RELIEF 121 | 0.0155990005 | $423,790 | $423,790 | $6.61 | | |
| EMERGSER | EMS 147 | 0.3792580840 | $423,790 | $423,790 | $160.73 | | |
| EMSRFD | EMS REFUND 147 | 0.0000000000 | $423,790 | $423,790 | $0.00 | | |
| PORTRFD | PORT REFUND 640 | 0.0000000000 | $423,790 | $423,790 | $0.00 | | |
| PORTWWGEN | PORT OF WW 640 | 0.2460186015 | $423,790 | $423,790 | $104.26 | | |
| SD140BOND | SD #140 BOND 764 | 0.8342371393 | $423,790 | $423,790 | $353.54 | | |
| SD140GEN | SD #140 GENERAL 760 | 2.0646500647 | $423,790 | $423,790 | $874.98 | | |
| ST2 | STATE SCHOOL PART 2 600 | 0.8131451643 | $423,790 | $423,790 | $344.60 | | |
| STATESCHL | STATE SCHOOL 600 | 1.5158548041 | $423,790 | $423,790 | $642.40 | | |
| STREFUND | STATE REFUND LEVY 603 | 0.0000000000 | $423,790 | $423,790 | $0.00 | | |
| CWWBOND | C OF WW BOND 643 | 0.2760494372 | $423,790 | $423,790 | $116.99 | | |
| CWWGEN | CITY OF WW 631 | 1.6100204973 | $423,790 | $423,790 | $682.31 | | |
| CWWRFD | CITY OF WALLA WALLA REFUND 631 | 0.0000000000 | $423,790 | $423,790 | $0.00 | | |
| | Total Tax Rate: | 8.7973694689 | | | | | |
| | | | | Taxes w/Current Exemptions: | $3,728.23 | | |
| | | | | Taxes w/o Exemptions: | $3,728.23 | | |
Improvement / Building
| Improvement #1: | RESIDENTIAL | State Code: | 11 | 1370.0 sqft | Value: | $377,750 |
| Exterior Wall: | VINYL | Heating/Cooling: | WARM & COOLED AIR | | Number of Bathrooms: | 2 | Number of Bedrooms: | 2 | | Plumbing: | 10 |   |   |
|
| | Type | Description | Class CD | Sub Class CD | Year Built | Area |
| | MA | Main Area | 1 | 30 | 1955 | 1370.0 |
| | SI1 | SITE IMPROVEMENT | 1 | 30 | 1955 | 1.0 |
| | BASE | BASEMENT | 1 | 30 | 1955 | 1290.0 |
| | BPF | BASEMENT -PARTITIONED FINISH | 1 | 30 | 1955 | 324.0 |
| | D2F | Double 2 Story Fireplace | 1 | 30 | 1955 | 1.0 |
| | RPS | PORCH W/STEPS,ROOF | 1 | 30 | 1955 | 75.0 |
| | CPC | COVERED CARPORT/PATIO | 1 | 30 | 1955 | 232.0 |
| | CPC | COVERED CARPORT/PATIO | 1 | 30 | 1955 | 312.0 |
| | LNTD | LEAN TO DIRT FLOOR | 1 | 30 | 1955 | 336.0 |
Sketch
Property Image
Land
| 1 | RES 1 | Converted: Residential | 0.1458 | 6350.00 | 0.00 | 0.00 | 1.00 | $46,040 | $0 |
Roll Value History
| 2025 | N/A | N/A | N/A | N/A | N/A |
| 2024 | $331,550 | $69,850 | $0 | $401,400 | $401,400 |
| 2023 | $377,750 | $46,040 | $0 | $423,790 | $423,790 |
| 2022 | $343,410 | $46,040 | $0 | $389,450 | $389,450 |
| 2021 | $254,380 | $46,040 | $0 | $300,420 | $300,420 |
| 2020 | $181,700 | $46,040 | $0 | $227,740 | $227,740 |
| 2019 | $181,700 | $46,040 | $0 | $227,740 | $227,740 |
| 2018 | $165,180 | $46,040 | $0 | $211,220 | $211,220 |
| 2017 | $173,800 | $28,600 | $0 | $202,400 | $202,400 |
| 2016 | $158,000 | $28,600 | $0 | $186,600 | $186,600 |
| 2015 | $131,670 | $28,600 | $0 | $160,270 | $160,270 |
| 2014 | $119,700 | $28,600 | $0 | $148,300 | $148,300 |
| 2013 | $119,700 | $28,600 | $0 | $148,300 | $148,300 |
| 2012 | $119,700 | $28,600 | $0 | $0 | $0 |
| 2011 | $95,000 | $28,600 | $0 | $0 | $0 |
| 2010 | $89,100 | $28,600 | $0 | $0 | $0 |
| 2009 | $102,200 | $28,600 | $0 | $0 | $0 |
| 2008 | $102,200 | $28,600 | $0 | $0 | $0 |
| 2007 | $102,200 | $28,600 | $0 | $0 | $0 |
| 2006 | $84,100 | $12,700 | $0 | $0 | $0 |
Deed and Sales History
| 1 | 07/27/2022 | SWD | STATUTORY WARRANTY DEED | HALE C LARA | CUMBO GINA L & JOHN M GEORGE | | | $525,000.00 | 144366 | 2022-06268 |
| 2 | 06/29/2021 | SWD | STATUTORY WARRANTY DEED | STEELE TONI | HALE C LARA | | | $400,000.00 | 141912 | 2021-07866 |
| 3 | 09/26/1994 | WARRANTY D | WARRANTY DEED | | | | | $99,900.00 | 82655 | 2239-411160 |
Payout Agreement
| No payout information available.. |