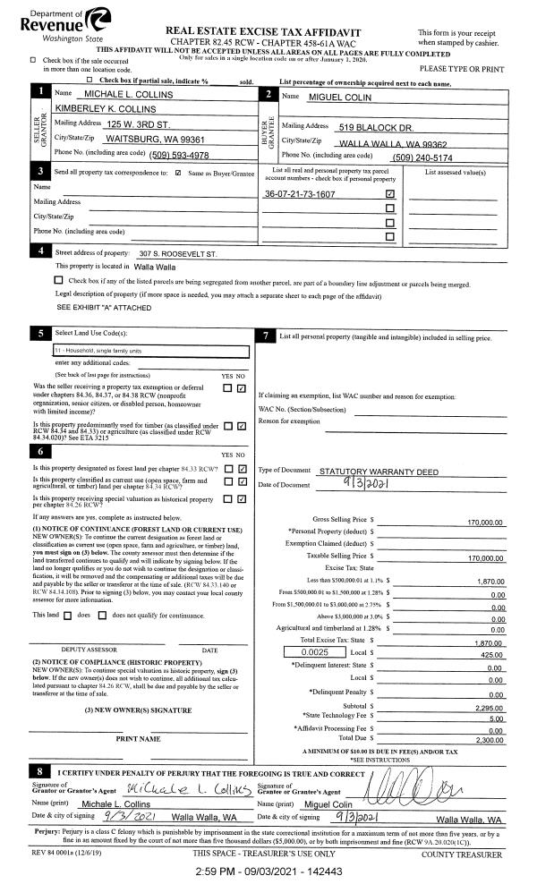
Property
Account |
| Property ID: | 7903 | Abbreviated Legal Description: | FEIGNER ADDN PHASE I TRACT B OF S/P (SLY PTN LOT 3) |
| Parcel Number: | 350726560005 | Agent Code: | |
| Type: | Real | | |
| Tax Area: | 311 - 250-4 | Land Use Code | 11 |
| Open Space: | N | DFL | N |
| Historic Property: | N | Remodel Property: | N |
| Multi-Family Redevelopment: | N | | |
| Township: | 7 | Section: | 26 |
| Range: | 35 |
Location |
| Address: | 175 RUSSET RD WA 99324 | Mapsco: | |
| Neighborhood: | MH A Rural/City Infl | Map ID: | |
| Neighborhood CD: | 313062 |
Owner |
| Name: | ROYER DAVID J & JENNIFER S | Owner ID: | 60192 |
| Mailing Address: | 175 RUSSET RD WALLA WALLA, WA 99362 | % Ownership: | 100.0000000000% |
| | | Exemptions: | |
Taxes and Assessment Details
Values
| (+) Improvement Homesite Value: | + | $0 | |
| (+) Improvement Non-Homesite Value: | + | $286,220 | |
| (+) Land Homesite Value: | + | $0 | |
| (+) Land Non-Homesite Value: | + | $130,000 | |
| (+) Curr Use (HS): | + | $0 | $0 |
| (+) Curr Use (NHS): | + | $0 | $0 |
| | | -------------------------- | |
| (=) Market Value: | = | $416,220 | |
| (–) Productivity Loss: | – | $0 | |
| | | -------------------------- | |
| (=) Subtotal: | = | $416,220 | |
| (+) Senior Appraised Value: | + | $0 | |
| (+) Non-Senior Appraised Value: | + | $416,220 | |
| | | -------------------------- | |
| (=) Total Appraised Value: | = | $416,220 | |
| (–) Senior Exemption Loss: | – | $0 | |
| (–) Exemption Loss: | – | $0 | |
| | | -------------------------- | |
| (=) Taxable Value: | = | $416,220 | |
Taxing Jurisdiction
| Owner: | ROYER DAVID J & JENNIFER S | | |
| % Ownership: | 100.0000000000% | | |
| Total Value: | $416,220 | | |
| Tax Area: | 311 - 250-4 |
| CERFD | CURRENT EXPENSE REFUND 010 | 0.0000000000 | $416,220 | $416,220 | $0.00 | | |
| CURREXP | CURRENT EXPENSE 010 | 1.0175366760 | $416,220 | $416,220 | $423.52 | | |
| HUMNSERV | HUMAN SERVICES 119 | 0.0250000000 | $416,220 | $416,220 | $10.41 | | |
| SLDREL | SOLDIERS RELIEF 121 | 0.0155990005 | $416,220 | $416,220 | $6.49 | | |
| EMERGSER | EMS 147 | 0.3792580840 | $416,220 | $416,220 | $157.85 | | |
| EMSRFD | EMS REFUND 147 | 0.0000000000 | $416,220 | $416,220 | $0.00 | | |
| FD4EXP | FD #4 EXPENSE 686 | 0.8836993059 | $416,220 | $416,220 | $367.81 | | |
| RLBRFD | RURAL LIBRARY REFUND 623 | 0.0000000000 | $416,220 | $416,220 | $0.00 | | |
| RURALLIB | RURAL LIBRARY 623 | 0.3710609029 | $416,220 | $416,220 | $154.44 | | |
| PORTRFD | PORT REFUND 640 | 0.0000000000 | $416,220 | $416,220 | $0.00 | | |
| PORTWWGEN | PORT OF WW 640 | 0.2460186015 | $416,220 | $416,220 | $102.40 | | |
| SD250BOND | SD #250 BOND 773 | 1.4560608159 | $416,220 | $416,220 | $606.04 | | |
| SD250GEN | SD #250 GENERAL 770 | 2.3880724087 | $416,220 | $416,220 | $993.96 | | |
| ST2 | STATE SCHOOL PART 2 600 | 0.8131451643 | $416,220 | $416,220 | $338.45 | | |
| STATESCHL | STATE SCHOOL 600 | 1.5158548041 | $416,220 | $416,220 | $630.93 | | |
| STREFUND | STATE REFUND LEVY 603 | 0.0000000000 | $416,220 | $416,220 | $0.00 | | |
| COROAD | COUNTY ROAD 115 | 1.6549953990 | $416,220 | $416,220 | $688.84 | | |
| CRPRD | COUNTY ROAD REFUND 115 | 0.0000000000 | $416,220 | $416,220 | $0.00 | | |
| | Total Tax Rate: | 10.7663011628 | | | | | |
| | | | | Taxes w/Current Exemptions: | $4,481.14 | | |
| | | | | Taxes w/o Exemptions: | $4,481.14 | | |
Improvement / Building
| Improvement #1: | MANUFACTURED HOME | State Code: | 11 | 2238.0 sqft | Value: | $286,220 |
| Exterior Wall: | HARDBOARD | Heating/Cooling: | WARM & COOLED AIR | | Number of Bathrooms: | 2 | Number of Bedrooms: | 3 | | Plumbing: | 8 | Roof Covering: | COMP SHINGLE |
|
| | Type | Description | Class CD | Sub Class CD | Year Built | Area |
| | MOBHOME | MANUFACTURD HOMES | 1 | 40 | 1999 | 2238.0 |
| | MI1 | MH SET-UP COSTS | 1 | 40 | 0 | 1.0 |
| | TIP | MH ADDITION | 1 | 40 | 0 | 260.0 |
| | WDR | WOOD DECK W/ROOF | 1 | 40 | 0 | 442.0 |
| | DTG | Detached Garage | 1 | 40 | 1999 | 576.0 |
| | WOD | Wood Deck | 1 | 40 | 1999 | 169.0 |
| | ATG | Attached Garage | 1 | 40 | 1999 | 576.0 |
| | UTST | Utility Storage Shed | 1 | 30 | 1999 | 216.0 |
| | CPC | COVERED CARPORT/PATIO | 1 | 40 | 1999 | 120.0 |
| | CPC | COVERED CARPORT/PATIO | 1 | 30 | 1999 | 504.0 |
Sketch
Property Image
Land
| 1 | RES 1 | Converted: Residential | 1.0000 | 0.00 | 0.00 | 0.00 | 1.00 | $130,000 | $0 |
Roll Value History
| 2025 | N/A | N/A | N/A | N/A | N/A |
| 2024 | $372,090 | $130,000 | $0 | $502,090 | $502,090 |
| 2023 | $286,220 | $130,000 | $0 | $416,220 | $416,220 |
| 2022 | $260,200 | $130,000 | $0 | $390,200 | $390,200 |
| 2021 | $256,910 | $75,000 | $0 | $331,910 | $331,910 |
| 2020 | $256,910 | $75,000 | $0 | $331,910 | $331,910 |
| 2019 | $256,910 | $75,000 | $0 | $331,910 | $331,910 |
| 2018 | $244,680 | $75,000 | $0 | $319,680 | $319,680 |
| 2017 | $233,030 | $75,000 | $0 | $308,030 | $308,030 |
| 2016 | $179,250 | $75,000 | $0 | $254,250 | $254,250 |
| 2015 | $160,000 | $75,000 | $0 | $235,000 | $235,000 |
| 2014 | $160,000 | $75,000 | $0 | $235,000 | $235,000 |
| 2013 | $160,000 | $75,000 | $0 | $235,000 | $235,000 |
| 2012 | $139,000 | $75,000 | $0 | $0 | $0 |
| 2011 | $139,000 | $75,000 | $0 | $0 | $0 |
| 2010 | $83,700 | $75,000 | $0 | $0 | $0 |
| 2009 | $131,300 | $45,000 | $0 | $0 | $0 |
| 2008 | $101,900 | $45,000 | $0 | $0 | $0 |
| 2007 | $101,900 | $45,000 | $0 | $0 | $0 |
| 2006 | $101,900 | $45,000 | $0 | $0 | $0 |
Deed and Sales History
| 1 | 12/21/2016 | SWD | STATUTORY WARRANTY DEED | GILES EDWIN A & JANET G | ROYER DAVID J & JENNIFER S | | | $339,900.00 | 131639 | 2016-10523 |
| 2 | 10/20/2010 | WARRANTY D | WARRANTY DEED | | GILES, EDWIN A & JANET G | | | $0.00 | 0 | 2010-08484 |
| 3 | 05/29/1998 | WARRANTY D | WARRANTY DEED | | | | | $27,000.00 | 90515 | 2679-805935 |
Payout Agreement
| No payout information available.. |