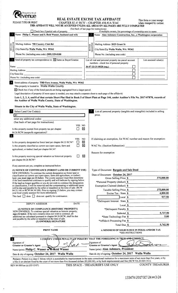
Property
Account |
| Property ID: | 7873 | Abbreviated Legal Description: | ENNIS ANNEX LOT 2 BLK 2; LESS TAX 9; LESS PUBLIC ROW |
| Parcel Number: | 360721550202 | Agent Code: | |
| Type: | Real | | |
| Tax Area: | 1 - OL-140-F | Land Use Code | 58 |
| Open Space: | N | DFL | N |
| Historic Property: | N | Remodel Property: | N |
| Multi-Family Redevelopment: | N | | |
| Township: | 7 | Section: | 21 |
| Range: | 36 |
Location |
| Address: | 1606 ISAACS AVE WA 99362 | Mapsco: | |
| Neighborhood: | WW Downtown Core area #3 | Map ID: | |
| Neighborhood CD: | 5343 |
Owner |
| Name: | HOLTZ PATRICK C | Owner ID: | 69966 |
| Mailing Address: | 1606 ISAACS AVE WALLA WALLA, WA 99362 | % Ownership: | 100.0000000000% |
| | | Exemptions: | |
Taxes and Assessment Details
Values
| (+) Improvement Homesite Value: | + | $0 | |
| (+) Improvement Non-Homesite Value: | + | $131,600 | |
| (+) Land Homesite Value: | + | $0 | |
| (+) Land Non-Homesite Value: | + | $204,900 | |
| (+) Curr Use (HS): | + | $0 | $0 |
| (+) Curr Use (NHS): | + | $0 | $0 |
| | | -------------------------- | |
| (=) Market Value: | = | $336,500 | |
| (–) Productivity Loss: | – | $0 | |
| | | -------------------------- | |
| (=) Subtotal: | = | $336,500 | |
| (+) Senior Appraised Value: | + | $0 | |
| (+) Non-Senior Appraised Value: | + | $336,500 | |
| | | -------------------------- | |
| (=) Total Appraised Value: | = | $336,500 | |
| (–) Senior Exemption Loss: | – | $0 | |
| (–) Exemption Loss: | – | $0 | |
| | | -------------------------- | |
| (=) Taxable Value: | = | $336,500 | |
Taxing Jurisdiction
| Owner: | HOLTZ PATRICK C | | |
| % Ownership: | 100.0000000000% | | |
| Total Value: | $336,500 | | |
| Tax Area: | 1 - OL-140-F |
| CERFD | CURRENT EXPENSE REFUND 010 | 0.0000000000 | $336,500 | $336,500 | $0.00 | | |
| CURREXP | CURRENT EXPENSE 010 | 1.0175366760 | $336,500 | $336,500 | $342.40 | | |
| HUMNSERV | HUMAN SERVICES 119 | 0.0250000000 | $336,500 | $336,500 | $8.41 | | |
| SLDREL | SOLDIERS RELIEF 121 | 0.0155990005 | $336,500 | $336,500 | $5.25 | | |
| EMERGSER | EMS 147 | 0.3792580840 | $336,500 | $336,500 | $127.62 | | |
| EMSRFD | EMS REFUND 147 | 0.0000000000 | $336,500 | $336,500 | $0.00 | | |
| PORTRFD | PORT REFUND 640 | 0.0000000000 | $336,500 | $336,500 | $0.00 | | |
| PORTWWGEN | PORT OF WW 640 | 0.2460186015 | $336,500 | $336,500 | $82.79 | | |
| SD140BOND | SD #140 BOND 764 | 0.8342371393 | $336,500 | $336,500 | $280.72 | | |
| SD140GEN | SD #140 GENERAL 760 | 2.0646500647 | $336,500 | $336,500 | $694.75 | | |
| ST2 | STATE SCHOOL PART 2 600 | 0.8131451643 | $336,500 | $336,500 | $273.62 | | |
| STATESCHL | STATE SCHOOL 600 | 1.5158548041 | $336,500 | $336,500 | $510.09 | | |
| STREFUND | STATE REFUND LEVY 603 | 0.0000000000 | $336,500 | $336,500 | $0.00 | | |
| CWWBOND | C OF WW BOND 643 | 0.2760494372 | $336,500 | $336,500 | $92.89 | | |
| CWWGEN | CITY OF WW 631 | 1.6100204973 | $336,500 | $336,500 | $541.77 | | |
| CWWRFD | CITY OF WALLA WALLA REFUND 631 | 0.0000000000 | $336,500 | $336,500 | $0.00 | | |
| | Total Tax Rate: | 8.7973694689 | | | | | |
| | | | | Taxes w/Current Exemptions: | $2,960.31 | | |
| | | | | Taxes w/o Exemptions: | $2,960.31 | | |
Improvement / Building
| Improvement #1: | COMMERCIAL | State Code: | 58 | 3352.0 sqft | Value: | $131,600 |
| | Type | Description | Class CD | Sub Class CD | Year Built | Area |
| | MA | Main Area | D | * | 1963 | 3352.0 |
| | SI1 | SITE IMPROVEMENT | D | * | 1963 | 7.0 |
Sketch
Property Image
Land
| 1 | COM 1 | Converted: Commercial | 0.7778 | 33879.00 | 0.00 | 0.00 | 1.00 | $204,900 | $0 |
Roll Value History
| 2025 | N/A | N/A | N/A | N/A | N/A |
| 2024 | $205,100 | $237,200 | $0 | $442,300 | $442,300 |
| 2023 | $131,600 | $204,900 | $0 | $336,500 | $336,500 |
| 2022 | $131,600 | $204,900 | $0 | $336,500 | $336,500 |
| 2021 | $131,600 | $204,900 | $0 | $336,500 | $336,500 |
| 2020 | $131,600 | $204,900 | $0 | $336,500 | $336,500 |
| 2019 | $131,600 | $204,900 | $0 | $336,500 | $336,500 |
| 2018 | $131,600 | $204,900 | $0 | $336,500 | $336,500 |
| 2017 | $127,900 | $204,200 | $0 | $332,100 | $332,100 |
| 2016 | $127,900 | $204,200 | $0 | $332,100 | $332,100 |
| 2015 | $127,900 | $204,200 | $0 | $332,100 | $332,100 |
| 2014 | $127,900 | $204,200 | $0 | $332,100 | $332,100 |
| 2013 | $111,000 | $204,200 | $0 | $315,200 | $315,200 |
| 2012 | $113,500 | $135,700 | $0 | $0 | $0 |
| 2011 | $113,500 | $135,700 | $0 | $0 | $0 |
| 2010 | $113,500 | $135,700 | $0 | $0 | $0 |
| 2009 | $113,500 | $135,700 | $0 | $0 | $0 |
| 2008 | $113,500 | $135,700 | $0 | $0 | $0 |
| 2007 | $113,500 | $135,700 | $0 | $0 | $0 |
| 2006 | $77,100 | $101,800 | $0 | $0 | $0 |
Deed and Sales History
| 1 | 07/21/2021 | SWD | STATUTORY WARRANTY DEED | REED ANDREW L | HOLTZ PATRICK C | | | $400,000.00 | 142148 | 2021-09249 |
| 2 | 07/06/2021 | SWD | STATUTORY WARRANTY DEED | H & R HOLDINGS LLC | REED ANDREW L | | | $0.00 | 142147 | 2021-09248 |
| 3 | 06/07/2018 | EASE | EASEMENT | H & R HOLDINGS LLC | CITY OF WALLA WALLA CITY CLERK | | | $430.00 | 134868 | 2018-04567 |
| 4 | 03/31/2016 | QCD | QUIT CLAIM DEED | REED ANDREW L | H & R HOLDINGS LLC | | | $0.00 | 129918 | 2016-02354 |
| 5 | 08/06/2007 | WARRANTY D | WARRANTY DEED | HEIMBIGNER LIVING TRUST | REED, ANDREW L | | | | 105100 | 2007-09068 |
| 6 | 06/25/2004 | WARRANTY D | WARRANTY DEED | HEIMBIGNER LIVING TRUST | REED, ANDREW L | | | $120,000.00 | 105100 | 2004-07120 |
| 7 | 06/25/2004 | QCD | QUIT CLAIM DEED | REED, AMY | REED, ANDREW L | | | | 105101 | 2004-07121 |
Payout Agreement
| No payout information available.. |