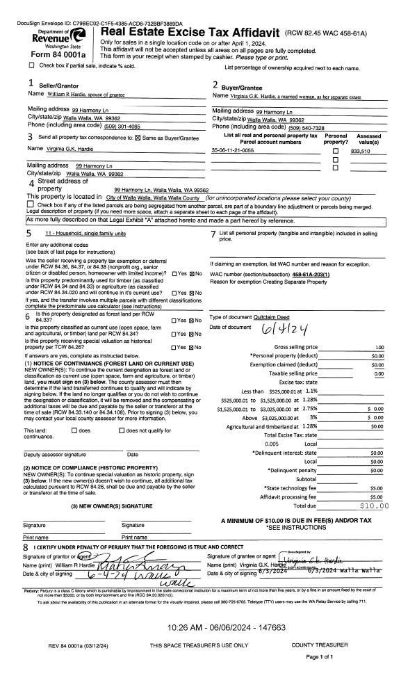
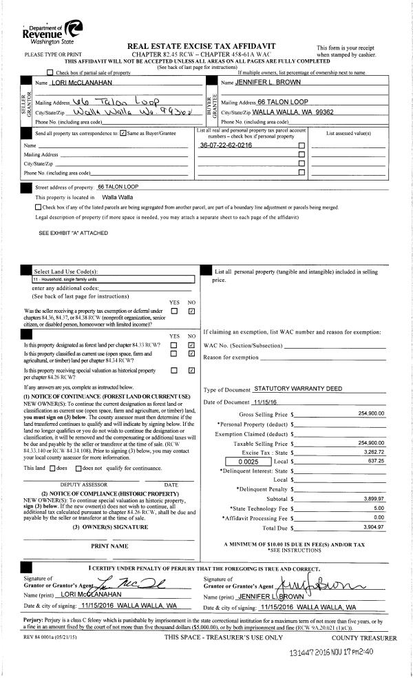
Property
Account |
| Property ID: | 7864 | Abbreviated Legal Description: | ENNIS ANNEX TAX 17 BLK 1 |
| Parcel Number: | 360721550118 | Agent Code: | |
| Type: | Real | | |
| Tax Area: | 1 - OL-140-F | Land Use Code | 11 |
| Open Space: | N | DFL | N |
| Historic Property: | N | Remodel Property: | N |
| Multi-Family Redevelopment: | N | | |
| Township: | 7 | Section: | 21 |
| Range: | 36 |
Location |
| Address: | 1713 EVERGREEN ST WA 99362 | Mapsco: | |
| Neighborhood: | A-SFR | Map ID: | |
| Neighborhood CD: | 513011 |
Owner |
| Name: | HOOK JOHN | Owner ID: | 58386 |
| Mailing Address: | 1713 EVERGREEN ST WALLA WALLA, WA 99362 | % Ownership: | 100.0000000000% |
| | | Exemptions: | |
Taxes and Assessment Details
Values
| (+) Improvement Homesite Value: | + | $0 | |
| (+) Improvement Non-Homesite Value: | + | $301,110 | |
| (+) Land Homesite Value: | + | $0 | |
| (+) Land Non-Homesite Value: | + | $34,450 | |
| (+) Curr Use (HS): | + | $0 | $0 |
| (+) Curr Use (NHS): | + | $0 | $0 |
| | | -------------------------- | |
| (=) Market Value: | = | $335,560 | |
| (–) Productivity Loss: | – | $0 | |
| | | -------------------------- | |
| (=) Subtotal: | = | $335,560 | |
| (+) Senior Appraised Value: | + | $0 | |
| (+) Non-Senior Appraised Value: | + | $335,560 | |
| | | -------------------------- | |
| (=) Total Appraised Value: | = | $335,560 | |
| (–) Senior Exemption Loss: | – | $0 | |
| (–) Exemption Loss: | – | $0 | |
| | | -------------------------- | |
| (=) Taxable Value: | = | $335,560 | |
Taxing Jurisdiction
| Owner: | HOOK JOHN | | |
| % Ownership: | 100.0000000000% | | |
| Total Value: | $335,560 | | |
| Tax Area: | 1 - OL-140-F |
| CERFD | CURRENT EXPENSE REFUND 010 | 0.0000000000 | $335,560 | $335,560 | $0.00 | | |
| CURREXP | CURRENT EXPENSE 010 | 1.0175366760 | $335,560 | $335,560 | $341.44 | | |
| HUMNSERV | HUMAN SERVICES 119 | 0.0250000000 | $335,560 | $335,560 | $8.39 | | |
| SLDREL | SOLDIERS RELIEF 121 | 0.0155990005 | $335,560 | $335,560 | $5.23 | | |
| EMERGSER | EMS 147 | 0.3792580840 | $335,560 | $335,560 | $127.26 | | |
| EMSRFD | EMS REFUND 147 | 0.0000000000 | $335,560 | $335,560 | $0.00 | | |
| PORTRFD | PORT REFUND 640 | 0.0000000000 | $335,560 | $335,560 | $0.00 | | |
| PORTWWGEN | PORT OF WW 640 | 0.2460186015 | $335,560 | $335,560 | $82.55 | | |
| SD140BOND | SD #140 BOND 764 | 0.8342371393 | $335,560 | $335,560 | $279.94 | | |
| SD140GEN | SD #140 GENERAL 760 | 2.0646500647 | $335,560 | $335,560 | $692.81 | | |
| ST2 | STATE SCHOOL PART 2 600 | 0.8131451643 | $335,560 | $335,560 | $272.86 | | |
| STATESCHL | STATE SCHOOL 600 | 1.5158548041 | $335,560 | $335,560 | $508.66 | | |
| STREFUND | STATE REFUND LEVY 603 | 0.0000000000 | $335,560 | $335,560 | $0.00 | | |
| CWWBOND | C OF WW BOND 643 | 0.2760494372 | $335,560 | $335,560 | $92.63 | | |
| CWWGEN | CITY OF WW 631 | 1.6100204973 | $335,560 | $335,560 | $540.26 | | |
| CWWRFD | CITY OF WALLA WALLA REFUND 631 | 0.0000000000 | $335,560 | $335,560 | $0.00 | | |
| | Total Tax Rate: | 8.7973694689 | | | | | |
| | | | | Taxes w/Current Exemptions: | $2,952.03 | | |
| | | | | Taxes w/o Exemptions: | $2,952.03 | | |
Improvement / Building
| Improvement #1: | RESIDENTIAL | State Code: | 11 | 1002.0 sqft | Value: | $301,110 |
| Exterior Wall: | VINYL | Heating/Cooling: | WARM & COOLED AIR | | Number of Bathrooms: | 2 | Number of Bedrooms: | 2 | | Plumbing: | 9 | Roof Covering: | COMP SHINGLE |
|
| | Type | Description | Class CD | Sub Class CD | Year Built | Area |
| | MA | Main Area | 1 | 30 | 1948 | 1002.0 |
| | SI1 | SITE IMPROVEMENT | 1 | 30 | 1948 | 1.5 |
| | BASE | BASEMENT | 1 | 30 | 1948 | 982.0 |
| | BMF | BASEMENT - MIN FINISH | 1 | 30 | 1948 | 416.0 |
| | DTG | Detached Garage | 1 | 30 | 1948 | 240.0 |
| | CPC | COVERED CARPORT/PATIO | 1 | 30 | 1948 | 112.0 |
| | OPS | OPEN PORCH W/STEPS | 1 | 30 | 1948 | 20.0 |
Sketch
Property Image
Land
| 1 | RES 1 | Converted: Residential | 0.1265 | 5512.00 | 0.00 | 0.00 | 1.00 | $34,450 | $0 |
Roll Value History
| 2025 | N/A | N/A | N/A | N/A | N/A |
| 2024 | $265,800 | $55,120 | $0 | $320,920 | $320,920 |
| 2023 | $301,110 | $34,450 | $0 | $335,560 | $335,560 |
| 2022 | $261,830 | $34,450 | $0 | $296,280 | $296,280 |
| 2021 | $209,470 | $34,450 | $0 | $243,920 | $243,920 |
| 2020 | $155,160 | $34,450 | $0 | $189,610 | $189,610 |
| 2019 | $155,160 | $34,450 | $0 | $189,610 | $189,610 |
| 2018 | $129,300 | $34,450 | $0 | $163,750 | $163,750 |
| 2017 | $139,910 | $22,000 | $0 | $161,910 | $161,910 |
| 2016 | $127,190 | $22,000 | $0 | $149,190 | $149,190 |
| 2015 | $127,190 | $22,000 | $0 | $149,190 | $149,190 |
| 2014 | $110,600 | $22,000 | $0 | $132,600 | $132,600 |
| 2013 | $110,600 | $22,000 | $0 | $132,600 | $132,600 |
| 2012 | $115,100 | $22,000 | $0 | $0 | $0 |
| 2011 | $115,100 | $22,000 | $0 | $0 | $0 |
| 2010 | $108,600 | $22,000 | $0 | $0 | $0 |
| 2009 | $123,100 | $22,000 | $0 | $0 | $0 |
| 2008 | $123,100 | $22,000 | $0 | $0 | $0 |
| 2007 | $123,100 | $22,000 | $0 | $0 | $0 |
| 2006 | $75,400 | $11,000 | $0 | $0 | $0 |
Deed and Sales History
| 1 | 03/08/2016 | QCD | QUIT CLAIM DEED | ANDERSON EMILY | HOOK JOHN | | | | 129795 | 2016-01766 |
| 2 | 03/08/2016 | SWD | STATUTORY WARRANTY DEED | HAPNER PATTY | HOOK JOHN | | | $149,900.00 | 129794 | 2016-01765 |
| 3 | 02/01/2010 | QCD | QUIT CLAIM DEED | BREINER, ROBERT MICHAEL | HAPNER, PATTY | | | | 117981 | 2010-01094 |
| 4 | 11/29/2004 | QCD | QUIT CLAIM DEED | ROYSE, DAVID DUANE | BREINER, ROBERT MICHAEL | | | | 106286 | 2004-13681 |
| 5 | 08/27/1979 | WARRANTY D | WARRANTY DEED | | | | | $36,900.00 | 0 | 1107-908107 |
Payout Agreement
| No payout information available.. |