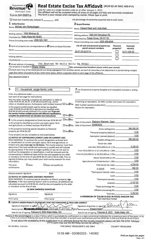
Property
Account |
| Property ID: | 7849 | Abbreviated Legal Description: | EASTLAWN W 1/2 LOT 7 BLK 6; E 1/2 OF LOT 8 BLK 6 |
| Parcel Number: | 360721530611 | Agent Code: | |
| Type: | Real | | |
| Tax Area: | 1 - OL-140-F | Land Use Code | 11 |
| Open Space: | N | DFL | N |
| Historic Property: | N | Remodel Property: | N |
| Multi-Family Redevelopment: | N | | |
| Township: | 7 | Section: | 21 |
| Range: | 36 |
Location |
| Address: | 1226 HOBSON ST WA 99362 | Mapsco: | |
| Neighborhood: | A-SFR | Map ID: | |
| Neighborhood CD: | 513011 |
Owner |
| Name: | SNYDER MEREDITH A | Owner ID: | 59076 |
| Mailing Address: | 1226 HOBSON ST WALLA WALLA, WA 99362 | % Ownership: | 100.0000000000% |
| | | Exemptions: | SNR/DSBL |
Taxes and Assessment Details
Values
| (+) Improvement Homesite Value: | + | $226,730 | |
| (+) Improvement Non-Homesite Value: | + | $0 | |
| (+) Land Homesite Value: | + | $36,560 | |
| (+) Land Non-Homesite Value: | + | $0 | |
| (+) Curr Use (HS): | + | $0 | $0 |
| (+) Curr Use (NHS): | + | $0 | $0 |
| | | -------------------------- | |
| (=) Market Value: | = | $263,290 | |
| (–) Productivity Loss: | – | $0 | |
| | | -------------------------- | |
| (=) Subtotal: | = | $263,290 | |
| (+) Senior Appraised Value: | + | $148,350 | |
| (+) Non-Senior Appraised Value: | + | $0 | |
| | | -------------------------- | |
| (=) Total Appraised Value: | = | $148,350 | |
| (–) Senior Exemption Loss: | – | $89,010 | |
| (–) Exemption Loss: | – | $0 | |
| | | -------------------------- | |
| (=) Taxable Value: | = | $59,340 | |
Taxing Jurisdiction
| Owner: | SNYDER MEREDITH A | | |
| % Ownership: | 100.0000000000% | | |
| Total Value: | $263,290 | | |
| Tax Area: | 1 - OL-140-F |
| CERFD | CURRENT EXPENSE REFUND 010 | 0.0000000000 | $263,290 | $59,340 | $0.00 | | |
| CURREXP | CURRENT EXPENSE 010 | 1.0175366760 | $263,290 | $59,340 | $60.38 | | |
| HUMNSERV | HUMAN SERVICES 119 | 0.0250000000 | $263,290 | $59,340 | $1.48 | | |
| SLDREL | SOLDIERS RELIEF 121 | 0.0155990005 | $263,290 | $59,340 | $0.93 | | |
| EMERGSER | EMS 147 | 0.3792580840 | $263,290 | $59,340 | $22.51 | | |
| EMSRFD | EMS REFUND 147 | 0.0000000000 | $263,290 | $59,340 | $0.00 | | |
| PORTRFD | PORT REFUND 640 | 0.0000000000 | $263,290 | $59,340 | $0.00 | | |
| PORTWWGEN | PORT OF WW 640 | 0.2460186015 | $263,290 | $59,340 | $14.60 | | |
| SD140BOND | SD #140 BOND 764 | 0.0000000000 | $263,290 | $0 | $0.00 | | |
| SD140GEN | SD #140 GENERAL 760 | 0.0000000000 | $263,290 | $0 | $0.00 | | |
| ST2 | STATE SCHOOL PART 2 600 | 0.0000000000 | $263,290 | $0 | $0.00 | | |
| STATESCHL | STATE SCHOOL 600 | 1.5158548041 | $263,290 | $59,340 | $89.95 | | |
| STREFUND | STATE REFUND LEVY 603 | 0.0000000000 | $263,290 | $59,340 | $0.00 | | |
| CWWBOND | C OF WW BOND 643 | 0.0000000000 | $263,290 | $0 | $0.00 | | |
| CWWGEN | CITY OF WW 631 | 1.6100204973 | $263,290 | $59,340 | $95.54 | | |
| CWWRFD | CITY OF WALLA WALLA REFUND 631 | 0.0000000000 | $263,290 | $59,340 | $0.00 | | |
| | Total Tax Rate: | 4.8092876634 | | | | | |
| | | | | Taxes w/Current Exemptions: | $285.39 | | |
| | | | | Taxes w/o Exemptions: | $2,316.25 | | |
Improvement / Building
| Improvement #1: | RESIDENTIAL | State Code: | 11 | 1146.0 sqft | Value: | $226,730 |
| Exterior Wall: | PLYWOOD | Heating/Cooling: | WARM & COOLED AIR | | Number of Bathrooms: | 2 | Number of Bedrooms: | 3 | | Plumbing: | 9 | Roof Covering: | COMP SHINGLE |
|
| | Type | Description | Class CD | Sub Class CD | Year Built | Area |
| | MA | Main Area | 1 | 30 | 1950 | 1146.0 |
| | SI1 | SITE IMPROVEMENT | 1 | 30 | 1950 | 1.0 |
| | CPC | COVERED CARPORT/PATIO | 1 | 30 | 1950 | 200.0 |
| | RPO | OPEN PORCH W/ROOF | 1 | 30 | 1950 | 42.0 |
| | WOD | Wood Deck | 1 | 30 | 1950 | 403.0 |
Sketch
Property Image
Land
| 1 | RES 1 | Converted: Residential | 0.1343 | 5850.00 | 0.00 | 0.00 | 1.00 | $36,560 | $0 |
Roll Value History
| 2025 | N/A | N/A | N/A | N/A | N/A |
| 2024 | $194,240 | $58,500 | $0 | $252,740 | $59,340 |
| 2023 | $226,730 | $36,560 | $0 | $263,290 | $59,340 |
| 2022 | $226,730 | $36,560 | $0 | $263,290 | $59,340 |
| 2021 | $188,950 | $36,560 | $0 | $225,510 | $59,340 |
| 2020 | $130,310 | $36,560 | $0 | $166,870 | $59,340 |
| 2019 | $130,310 | $36,560 | $0 | $166,870 | $59,340 |
| 2018 | $113,310 | $36,560 | $0 | $149,870 | $59,340 |
| 2017 | $124,950 | $23,400 | $0 | $148,350 | $59,340 |
| 2016 | $119,000 | $23,400 | $0 | $142,400 | $142,400 |
| 2015 | $119,000 | $23,400 | $0 | $142,400 | $142,400 |
| 2014 | $119,000 | $23,400 | $0 | $142,400 | $142,400 |
| 2013 | $119,000 | $23,400 | $0 | $142,400 | $142,400 |
| 2012 | $119,000 | $23,400 | $0 | $0 | $0 |
| 2011 | $119,000 | $23,400 | $0 | $0 | $0 |
| 2010 | $112,200 | $23,400 | $0 | $0 | $0 |
| 2009 | $127,300 | $23,400 | $0 | $0 | $0 |
| 2008 | $92,500 | $23,400 | $0 | $0 | $0 |
| 2007 | $92,500 | $23,400 | $0 | $0 | $0 |
| 2006 | $59,200 | $11,700 | $0 | $0 | $0 |
Deed and Sales History
| 1 | 07/15/2016 | SWD | STATUTORY WARRANTY DEED | BIELOH RACHELLE M | SNYDER MEREDITH A | | | $159,000.00 | 130626 | 2016-05527 |
| 2 | 10/02/2003 | QCD | QUIT CLAIM DEED | BIELOH, BRENT & RACHELLE YOUNG | BIELOH, RACHELLE M | | | | 103158 | 2003-15119 |
| 3 | 05/15/1985 | WARRANTY D | WARRANTY DEED | | | | | $25,500.00 | 0 | 1508-503121 |
Payout Agreement
| No payout information available.. |