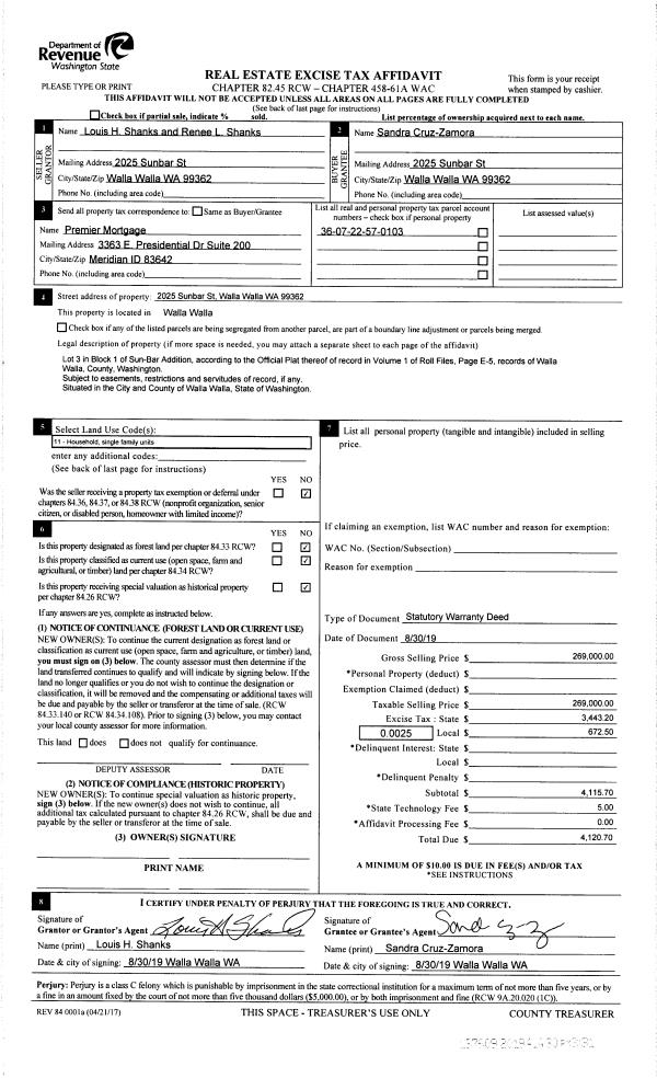
Property
Account |
| Property ID: | 7828 | Abbreviated Legal Description: | EASTLAWN LOT 4 & W 1/2 OF LOT 5 BLK 3 |
| Parcel Number: | 360721530304 | Agent Code: | |
| Type: | Real | | |
| Tax Area: | 1 - OL-140-F | Land Use Code | 11 |
| Open Space: | N | DFL | N |
| Historic Property: | N | Remodel Property: | N |
| Multi-Family Redevelopment: | N | | |
| Township: | 7 | Section: | 21 |
| Range: | 36 |
Location |
| Address: | 1515 HOBSON ST WA 99362 | Mapsco: | |
| Neighborhood: | A-SFR | Map ID: | |
| Neighborhood CD: | 513011 |
Owner |
| Name: | REID FAMILY TRUST | Owner ID: | 64819 |
| Mailing Address: | 10411 W ALLIANCE ST BOISE, ID 83704 | % Ownership: | 100.0000000000% |
| | | Exemptions: | |
Taxes and Assessment Details
Values
| (+) Improvement Homesite Value: | + | $0 | |
| (+) Improvement Non-Homesite Value: | + | $150,210 | |
| (+) Land Homesite Value: | + | $0 | |
| (+) Land Non-Homesite Value: | + | $49,500 | |
| (+) Curr Use (HS): | + | $0 | $0 |
| (+) Curr Use (NHS): | + | $0 | $0 |
| | | -------------------------- | |
| (=) Market Value: | = | $199,710 | |
| (–) Productivity Loss: | – | $0 | |
| | | -------------------------- | |
| (=) Subtotal: | = | $199,710 | |
| (+) Senior Appraised Value: | + | $0 | |
| (+) Non-Senior Appraised Value: | + | $199,710 | |
| | | -------------------------- | |
| (=) Total Appraised Value: | = | $199,710 | |
| (–) Senior Exemption Loss: | – | $0 | |
| (–) Exemption Loss: | – | $0 | |
| | | -------------------------- | |
| (=) Taxable Value: | = | $199,710 | |
Taxing Jurisdiction
| Owner: | REID FAMILY TRUST | | |
| % Ownership: | 100.0000000000% | | |
| Total Value: | $199,710 | | |
| Tax Area: | 1 - OL-140-F |
| CERFD | CURRENT EXPENSE REFUND 010 | 0.0000000000 | $199,710 | $199,710 | $0.00 | | |
| CURREXP | CURRENT EXPENSE 010 | 1.0175366760 | $199,710 | $199,710 | $203.21 | | |
| HUMNSERV | HUMAN SERVICES 119 | 0.0250000000 | $199,710 | $199,710 | $4.99 | | |
| SLDREL | SOLDIERS RELIEF 121 | 0.0155990005 | $199,710 | $199,710 | $3.12 | | |
| EMERGSER | EMS 147 | 0.3792580840 | $199,710 | $199,710 | $75.74 | | |
| EMSRFD | EMS REFUND 147 | 0.0000000000 | $199,710 | $199,710 | $0.00 | | |
| PORTRFD | PORT REFUND 640 | 0.0000000000 | $199,710 | $199,710 | $0.00 | | |
| PORTWWGEN | PORT OF WW 640 | 0.2460186015 | $199,710 | $199,710 | $49.13 | | |
| SD140BOND | SD #140 BOND 764 | 0.8342371393 | $199,710 | $199,710 | $166.61 | | |
| SD140GEN | SD #140 GENERAL 760 | 2.0646500647 | $199,710 | $199,710 | $412.33 | | |
| ST2 | STATE SCHOOL PART 2 600 | 0.8131451643 | $199,710 | $199,710 | $162.39 | | |
| STATESCHL | STATE SCHOOL 600 | 1.5158548041 | $199,710 | $199,710 | $302.73 | | |
| STREFUND | STATE REFUND LEVY 603 | 0.0000000000 | $199,710 | $199,710 | $0.00 | | |
| CWWBOND | C OF WW BOND 643 | 0.2760494372 | $199,710 | $199,710 | $55.13 | | |
| CWWGEN | CITY OF WW 631 | 1.6100204973 | $199,710 | $199,710 | $321.54 | | |
| CWWRFD | CITY OF WALLA WALLA REFUND 631 | 0.0000000000 | $199,710 | $199,710 | $0.00 | | |
| | Total Tax Rate: | 8.7973694689 | | | | | |
| | | | | Taxes w/Current Exemptions: | $1,756.92 | | |
| | | | | Taxes w/o Exemptions: | $1,756.92 | | |
Improvement / Building
| Improvement #1: | RESIDENTIAL | State Code: | 11 | 736.0 sqft | Value: | $150,210 |
| Exterior Wall: | CONCRETE BLOCK | Foundation: | SLAB FOUNDATION | | Heating/Cooling: | FLOOR FURNACE | Number of Bathrooms: | 1 | | Number of Bedrooms: | 2 | Plumbing: | 6 | | Roof Covering: | COMP SHINGLE |   |   |
|
| | Type | Description | Class CD | Sub Class CD | Year Built | Area |
| | MA | Main Area | 1 | 20 | 1947 | 736.0 |
| | SI1 | SITE IMPROVEMENT | 1 | 20 | 1947 | 1.0 |
| | OSP | Open | 1 | 20 | 1947 | 35.0 |
| | OSP | Open | 1 | 20 | 1947 | 42.0 |
| | DTG | Detached Garage | 1 | 20 | 1947 | 253.0 |
Sketch
Property Image
Land
| 1 | RES 1 | Converted: Residential | 0.1818 | 7920.00 | 0.00 | 0.00 | 1.00 | $49,500 | $0 |
Roll Value History
| 2025 | N/A | N/A | N/A | N/A | N/A |
| 2024 | $117,630 | $79,200 | $0 | $196,830 | $196,830 |
| 2023 | $150,210 | $49,500 | $0 | $199,710 | $199,710 |
| 2022 | $150,210 | $49,500 | $0 | $199,710 | $199,710 |
| 2021 | $107,290 | $49,500 | $0 | $156,790 | $156,790 |
| 2020 | $69,220 | $49,500 | $0 | $118,720 | $118,720 |
| 2019 | $69,220 | $49,500 | $0 | $118,720 | $118,720 |
| 2018 | $69,220 | $49,500 | $0 | $118,720 | $30,200 |
| 2017 | $70,950 | $31,700 | $0 | $102,650 | $30,200 |
| 2016 | $67,570 | $31,700 | $0 | $99,270 | $30,200 |
| 2015 | $64,350 | $31,700 | $0 | $96,050 | $30,200 |
| 2014 | $58,500 | $31,700 | $0 | $90,200 | $30,200 |
| 2013 | $58,500 | $31,700 | $0 | $90,200 | $90,200 |
| 2012 | $58,500 | $31,700 | $0 | $0 | $0 |
| 2011 | $58,500 | $31,700 | $0 | $0 | $0 |
| 2010 | $58,500 | $31,700 | $0 | $0 | $0 |
| 2009 | $68,500 | $31,700 | $0 | $0 | $0 |
| 2008 | $39,900 | $31,700 | $0 | $0 | $0 |
| 2007 | $39,900 | $31,700 | $0 | $0 | $0 |
| 2006 | $30,100 | $15,800 | $0 | $0 | $0 |
Deed and Sales History
| 1 | 03/04/2019 | DPR | DEED OF PERSONAL REPRESENTATIVE | MARTIN VIRGINIA L REID | REID FAMILY TRUST | | | $0.00 | 136508 | 2019-01590 |
| 2 | 09/01/1964 | QCD | QUIT CLAIM DEED | | | | | $0.00 | 0 | 3110-460891 |
Payout Agreement
| No payout information available.. |